Willa Eska 2







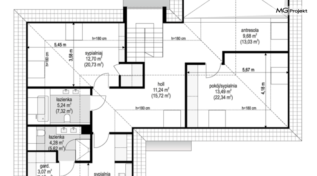
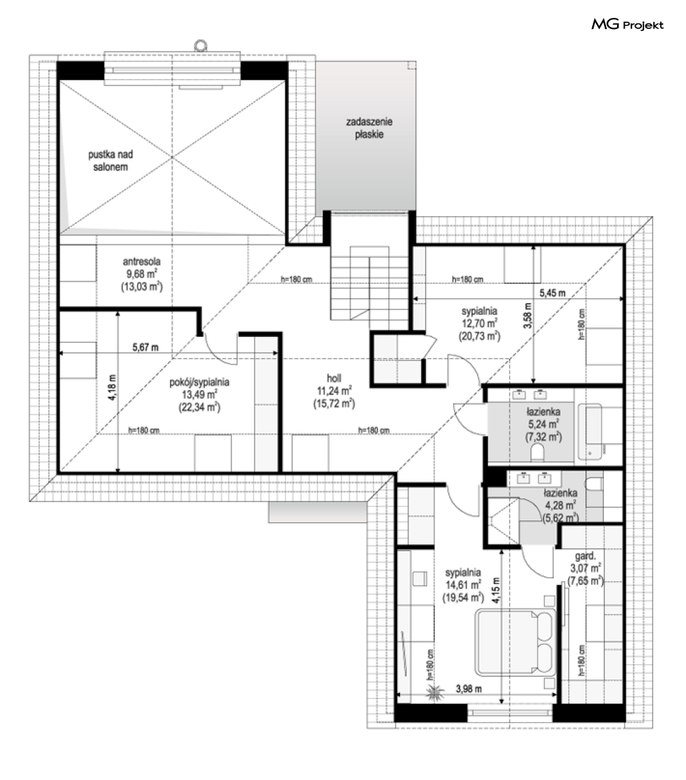
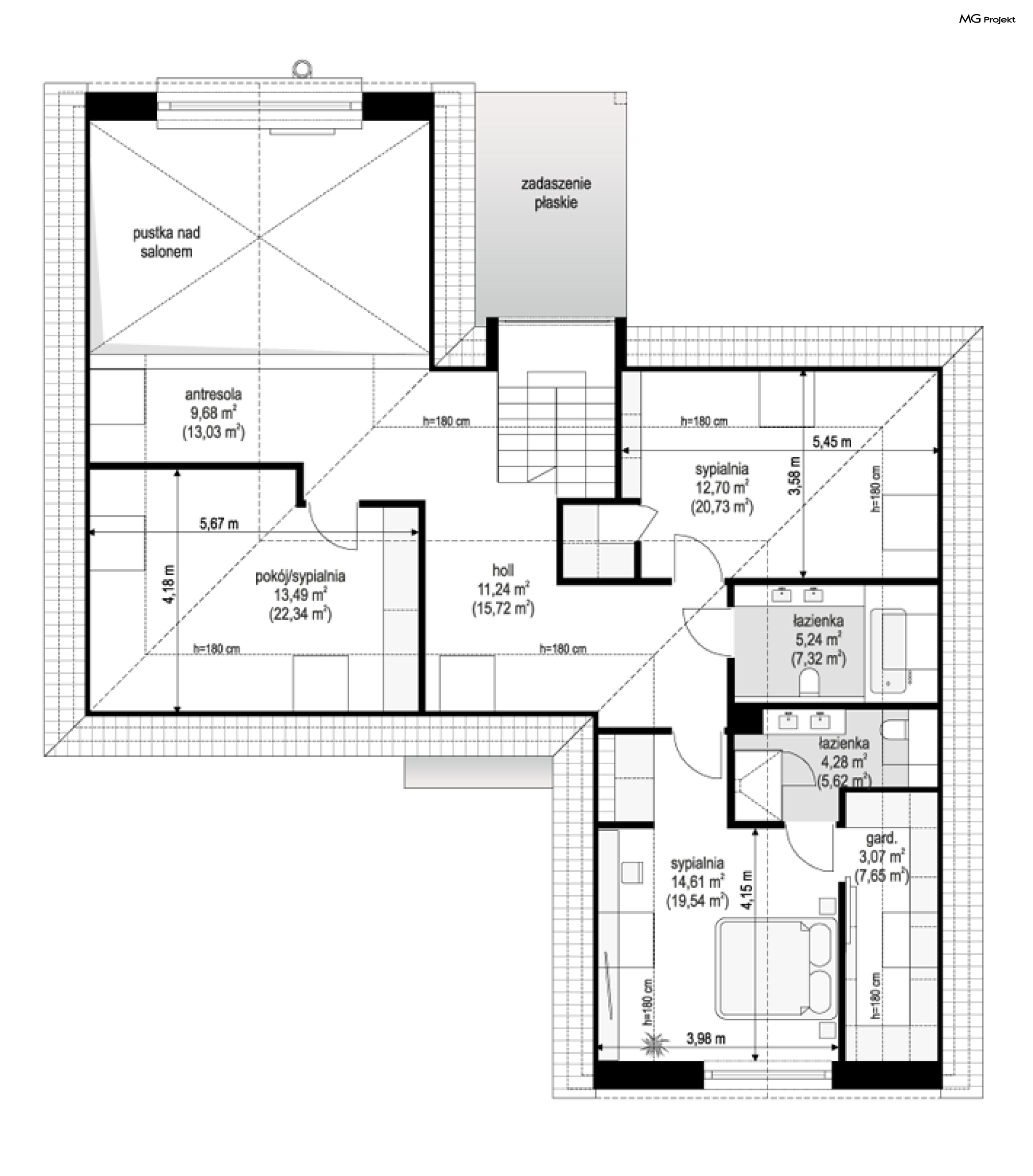
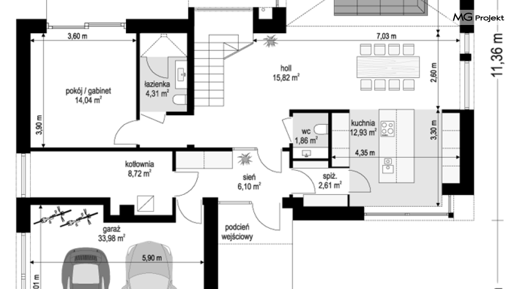
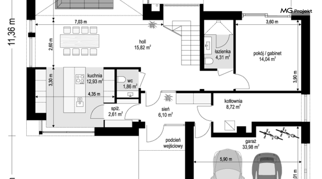
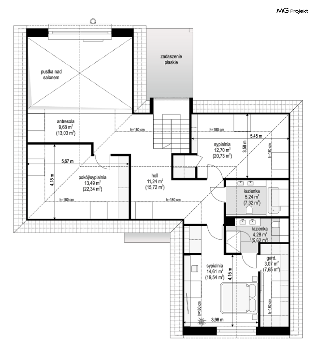
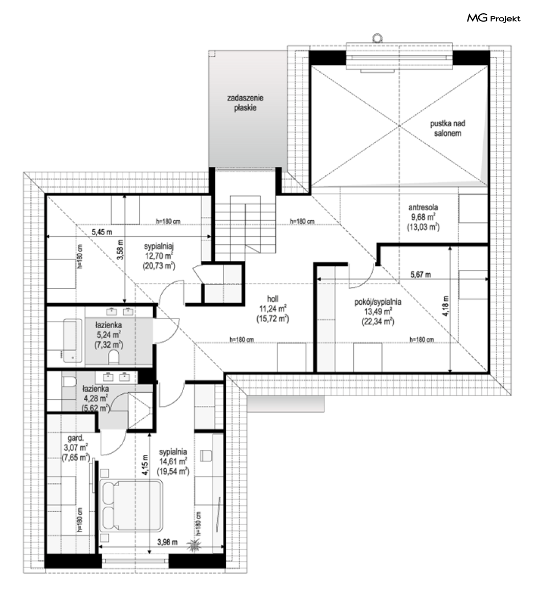
Projekt domu Willa Eska 2 - projekt domu jednorodzinnego z serii projektów o tej samej nazwie. Projekt jest parterowym domem jednorodzinnym z użytkowym poddaszem, przeznaczonym dla 4-5 osobowej familii. Nazwa domu nawiązuje do kształtu bryły przypominającej literę „S”, tworzącej bardzo korzystny funkcjonalnie i wizualnie plan - z dziedzińcem frontowym i z tylnym ogrodowym patio. Ideą projektu jest połączenie nowoczesnej architektury, detali i funkcji, z tradycyjnym kształtem budynku z dwuspadowym dachem. Dobrze dobrane proporcje, podziały miedzy powierzchnią ścian a przestrzeniami okien tworzą harmonijną sylwetkę domu, o ludzkiej skali. Front domu ozdabia reprezentacyjne wejście z naświetlami, zaakcentowane wnęką i daszkiem. Urozmaiceniem elewacji frontowej jest narożne okno kuchenne, oraz piękne wysokie okno na poddaszu z sypialni rodziców. Od strony elewacji ogrodowej atrakcyjności dodają duże okna salonu, oraz prostopadłościenny przeszklony wykusz klatki schodowej wykończony blachą na rąbek. Udane proporcje domu i gustownie dobrane materiały wykończeniowe, dają spójny atrakcyjny estetycznie efekt. Dodatkową ozdobą sylwetki budynku są oryginalne gzymsowania okapów. Wnętrze domu zaprojektowano w podziale na części : dzienną, gospodarczą i dodatkowy pokój na parterze, oraz część sypialną na poddaszu. Wchodząc do domu przez przeszklony przedsionek dostajemy się do reprezentacyjnego holu z pięknymi schodami i oknem na ogród. Z holu przechodzimy do części dziennej - z salonem, jadalnią i kuchnią. Nad salonem zaprojektowano otwarcie przestrzenne z antresolą. Komfortowa kuchnia z wyspą stanowi przedłużenie pokoju dziennego. Dzięki poprzecznemu ciągowi komunikacyjnemu uzyskano łatwe i praktyczne przejście z garażu, przez przedsionek i spiżarnię do kuchni. Na parterze wydzielono dodatkowy pokój z łazienką – sypialnię gościnną, lub seniora, lub pokój do pracy z dostępem do tarasu ogrodowego. Pozostałe pomieszczenia na parterze to dwustanowiskowy garaż i kotłownia. Na poddaszu zaprojektowano dwie sypialnie dziecięce z osobną łazienką, oraz apartament państwa domu z łazienką i garderobą. Spory hol może pełnić dodatkową funkcję bawialni. Na antresoli nad salonem można postawić domową bibliotekę i wygodną kanapę, albo biurko do pracy. Willa Eska to oryginalny, komfortowy dom jednorodzinny o nowoczesnym, trochę loftowym stylu, z wieloma cieszącymi oko detalami architektonicznymi. Dom inny, różniący się od setek sztampowo powtarzalnych budynków. Dom uwzględnia nowoczesne energooszczędne rozwiązania materiałowe i instalacyjne - będzie tani w eksploatacji, a w samej budowie nie powinien być trudny ani drogi. Stanowi doskonałą propozycję do osób ceniących ciekawą architekturę i nietuzinkowe rozwiązania. Zapraszamy !
