Zosia 2







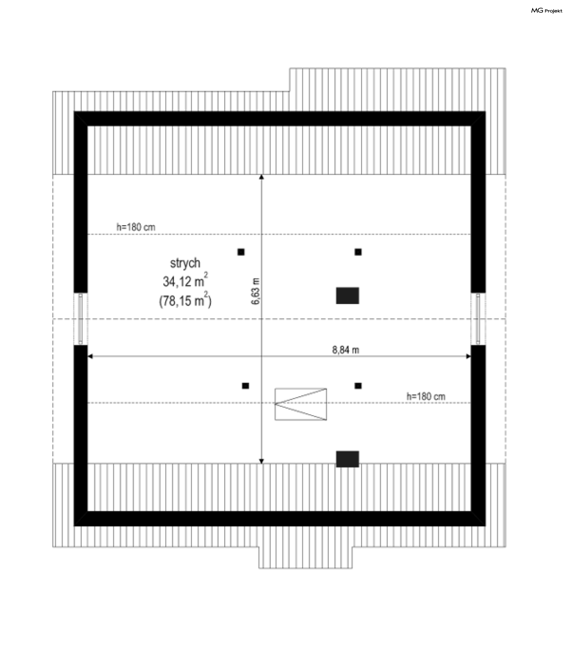
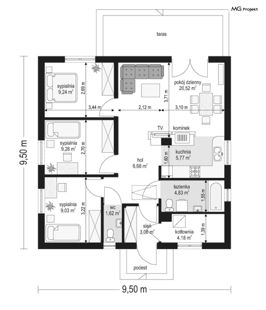
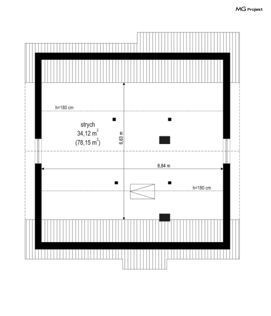
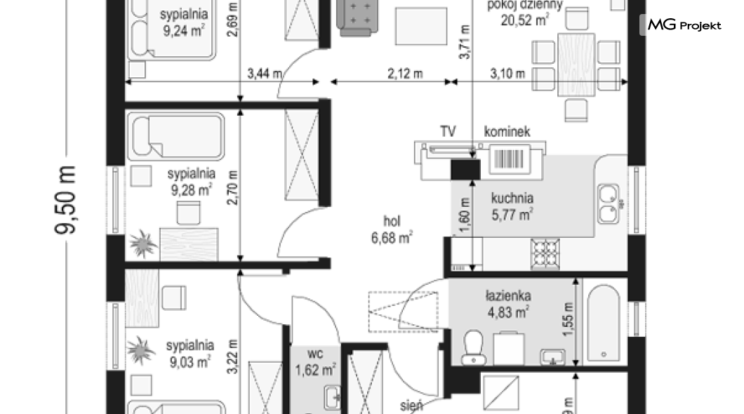
Projekt domu Zosia 2 to wersja popularnego projektu Zosia. Prosty jednorodzinny domek został wzbogacony o dodatkowy strych do możliwej późniejszej adaptacji na poddasze użytkowe. Projekt domu Zosia 2 ma możliwie najprostszą bryłę - zbudowany na planie kwadratu o boku 9,5 metra, przekryty jest dwuspadowym dachem. Taka konstrukcja zapewnia niedrogą budowę. Zwarta bryła mieści w sobie funkcjonalne wnętrze. Dzięki dobremu stosunkowi powierzchni przegród zewnętrznych do kubatury, dom jest ciepły i w łatwy sposób może być energooszczędny. Wnętrze domu: na parterze przewidziano część dzienną, z salonem, kuchnią i holem, oraz trzy sypialnie z łazienką. Dodatkowo przedsionek, kotłownię i wc. Strych nad parterem można w zaadaptować na poddasze użytkowe, gdzie z powodzeniem zmieszczą się dwa dodatkowe pokoje. Schody – dzięki drewnianej konstrukcji stropu - można łatwo wkomponować we wnętrze. Projekt domu Zosia 2 dostępna jest w odbiciu lustrzanym, oraz kilku wersjach: projekt domu Zosia, projekt domu Zosia 3, projekt domu Zosia 4, projekt domu Zosia 5, projekt domu Zosia 6, projekt domu Zosia 7, projekt domu Zosia 7B, projekt domu Zosia 8. Zapraszamy!
.

