Willa Moderna







Projekt domu Willa moderna to reprezentacyjna willa miejska przeznaczona na płytką działkę z ogrodem z boku domu, pasująca na parcelę z niekorzystną orientacją działki względem stron świata i nasłonecznienia. Dom Willa Moderna ma jednopiętrową dwukondygnacyjną bryłę z płaskim dachem i składa się z kilku mniejszych brył przenikających się wzajemnie.
Willa Moderna architektura
Architektura budynku Willa Moderna utrzymana jest w nowoczesnym stylu, z wykorzystaniem ciekawych materiałów wykończeniowych i nowych technologii. Wygląd zewnętrzny projektu Willa Moderna określają elewacje podzielone na pasy ścian z dużymi regularnymi przeszkleniami, oraz kontrastujące pasy stropów oddzielających piętra. W projekcie domu Willa Moderna wejście zaakcentowane jest wiszącym nad drzwiami pionowym wykuszem z narożnym oknem. Drugim elementem przerywającym poziomy rytm fasady w projekcie Willa Moderna jest prostopadłościenna bryła dwukondygnacyjnego salonu, z dużym narożnym przeszkleniem otwierającym salon na ogród i taras. Dodatkowymi elementami urozmaicającymi wygląd zewnętrzny domu Willa Moderna są praktyczny podcień - wiata przed garażem, taras nad częścią garażową dostępny szerokim przeszkleniem z apartamentu master, czy ciekawe zadaszenie tarasu, nie zasłaniające szklanej elewacji pokoju dziennego.
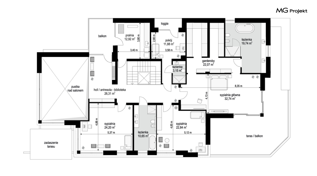
Willa Moderna wnętrze
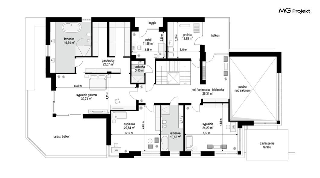
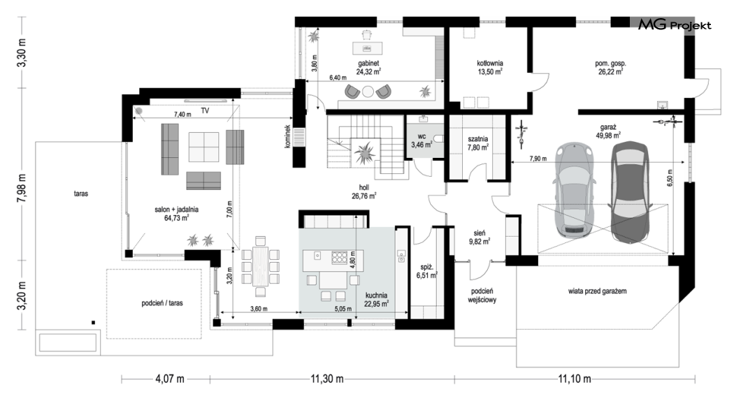
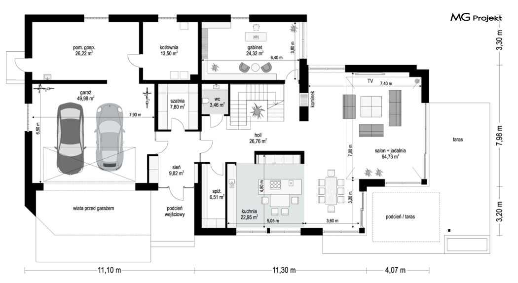
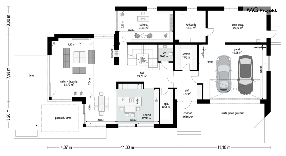
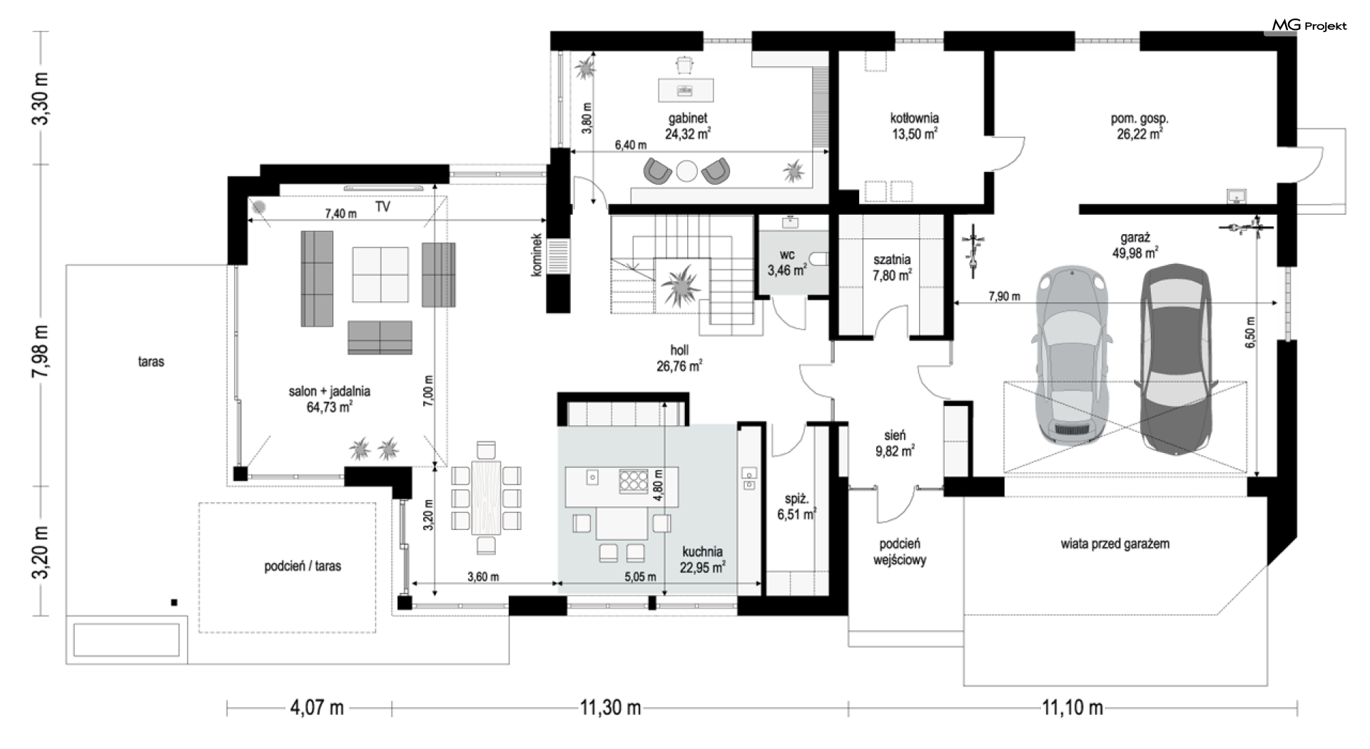
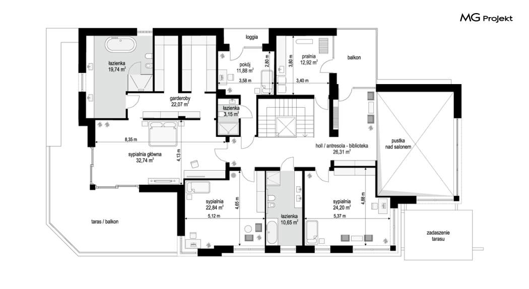
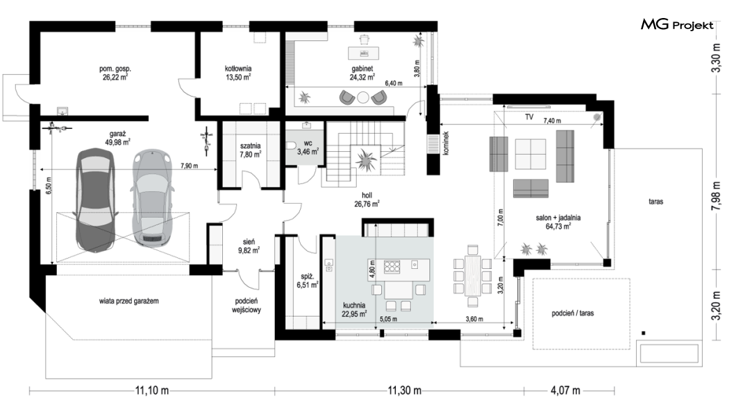
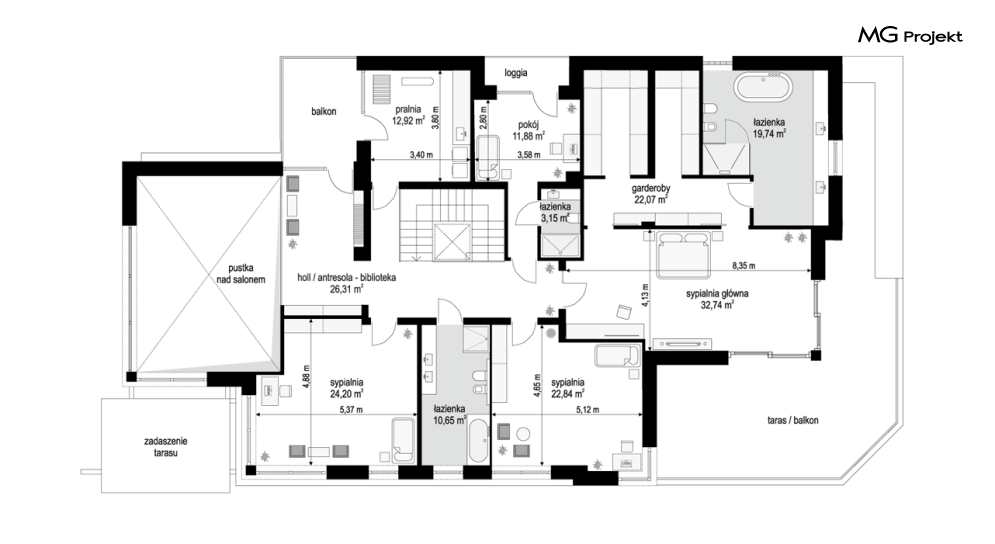
Wnętrze rezydencji Willa Moderna zaprojektowano z podziałem na maksymalnie otwartą część dzienną parteru i pokoje na piętrze. W projekcie willa moderna do budynku wchodzimy przez bardzo duży, niemal 10-metrowy przedsionek, do holu domu. Obok do dyspozycji jest duża szatnia i przejście do części garażowo-gospodarczej. W holu budynku centralne miejsce zajmują monumentalne reprezentacyjne schody z szeroką pustką w środku zabiegu schodów. Z holu przechodzimy do jeszcze bardziej spektakularnego wnętrza pokoju dziennego, którego większa część ma wysokość dwóch kondygnacji i piękne przeszklenie otwierające wnętrze na światło i ogród. W projekcie domu Willa Moderna od strony elewacji frontowej zaprojektowano kuchnię z wyspą i bardzo ładną spiżarnią – magazynem, oraz jadalnię. Pokój dzienny, poza narożnym wielkim oknem ma też ścianę rozrywkowo -telewizyjną, oraz piękny minimalistyczny trójstronny kominek, ozdabiający wnętrze i widoczny z wielu miejsc domu Willa Moderna. Za schodami przechodzimy do dodatkowego przestronnego gabinetu / biura domowego. Piętro stanowią głównie pokoje sypialne, oraz oddzielona antresola – biblioteka nad pustką salonu, stanowiąca jego przedłużenie i dopełnienie. Od frontu mamy dwie duże sypialnie dziecięce z łazienką, za schodami dodatkową sypialnię gościnną z własną łazienką, oraz pralnię-suszarnię z własnym balkonem, która jest na tyle duża aby pełnić również rolę pomieszczenia gospodarczo-pomocniczego na piętrze. Nad częścią garażową domu Willa Moderna mamy oddzielny bardzo luksusowy apartament master, z dużą sypialnią, podwójną garderobą Pani i Pana domu, oraz piękną łazienką. Apartament w projekcie Willa Moderna łączy się z bardzo ładnym tarasem na dachu.
Projekt Willa Moderna jest propozycją dla osób planujących budowę dużego wygodnego domu, mających doświadczenia z mniejszymi wnętrzami i stawiających przy kolejnej inwestycji na nieudawany komfort i wygodę. Ten dom zaprojektowaliśmy dla osób wiedzących czego chcą, zdających sobie sprawę, że luksus kosztuje, ale jest nie do przecenienia. W projekcie Willa Moderna zastosowano nowoczesne rozwiązania materiałowe i technologicznie. Dom Willa Moderna jest bardzo dobrze izolowany. Zastosowano w nim energooszczędne rozwiązania instalacyjne. Projekt rezydencji Willa Moderna można zamówić w odbiciu lustrzanym, dostępne są też inne wersje domu: Willa Moderna 2.

