Willa Moderna 2







Projekt domu Willa Moderna 2 to elegancka miejska willa dedykowana na płytką działkę z ogrodem z boku domu, z niekorzystnym ustawieniem parceli względem słońca – z wjazdem do budynku od strony południowej lub wschodniej (w przypadku odbicia lustrzanego projektu - zachodniej).
Architektura domu Willa Moderna
Projekt Willa Moderna 2 to dwukondygnacyjny jednopiętrowy dom przykryty płaskim dachem, składający się z kilku przenikających się wzajemnie brył części głównej domu i dobudowanych po bokach części garażowej i dwukondygnacyjnego salonu. W osi wejścia do domu zaprojektowano pionową dominantę w postaci podwieszonego wykusza, akcentującą drzwi wejściowe. Architektura budynku Willa Moderna 2 utrzymana jest w modernistycznym stylu przywołującym wspomnienie miejskich rezydencji z lat 30. dwudziestego wieku. W projekcie domu Willa Moderna 2 zastosowano ciekawe detale i wykorzystano nowoczesne dobrej jakości materiały wykończeniowe. Elewacje Willi Moderna 2 podzielono na poziome pasy przeplecione rytmicznym układem dużych okien. Dodatkowym akcentem fasady budynku są gzymsy pod oknami piętra, oraz gzymsy okapowe dachu. Całość sylwetki domu Willa Moderna 2 jest spójna, lekka i elegancka. Wejście Willi Moderna 2 zaakcentowano wiszącym nad drzwiami pionowym wykuszem wykończonym płytami z piaskowca. Od strony elewacji bocznej - ogrodowej projektu Willa Moderna 2 zaprojektowano prostopadłościenną bryłę dwukondygnacyjnego salonu, z dużym narożnym przeszkleniem otwierającym salon na ogród i taras. Elementy domu takie jak: wiata przed garażem połączona z podcieniem wejściowym, taras z sypialni master nad częścią garażową, czy oryginalne zadaszenie nad tarasem ogrodowym, dodatkowo urozmaicają architekturę zewnętrzną Willi Moderna 2.
Willa Moderna 2 wnętrze
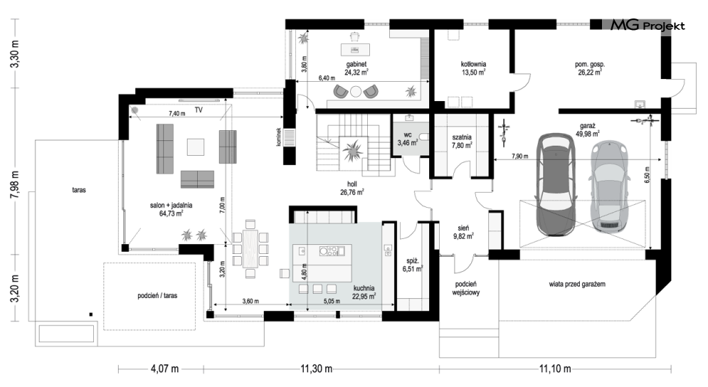
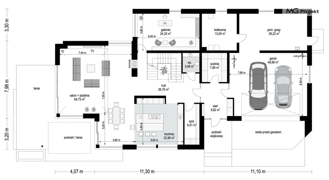
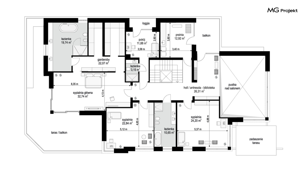
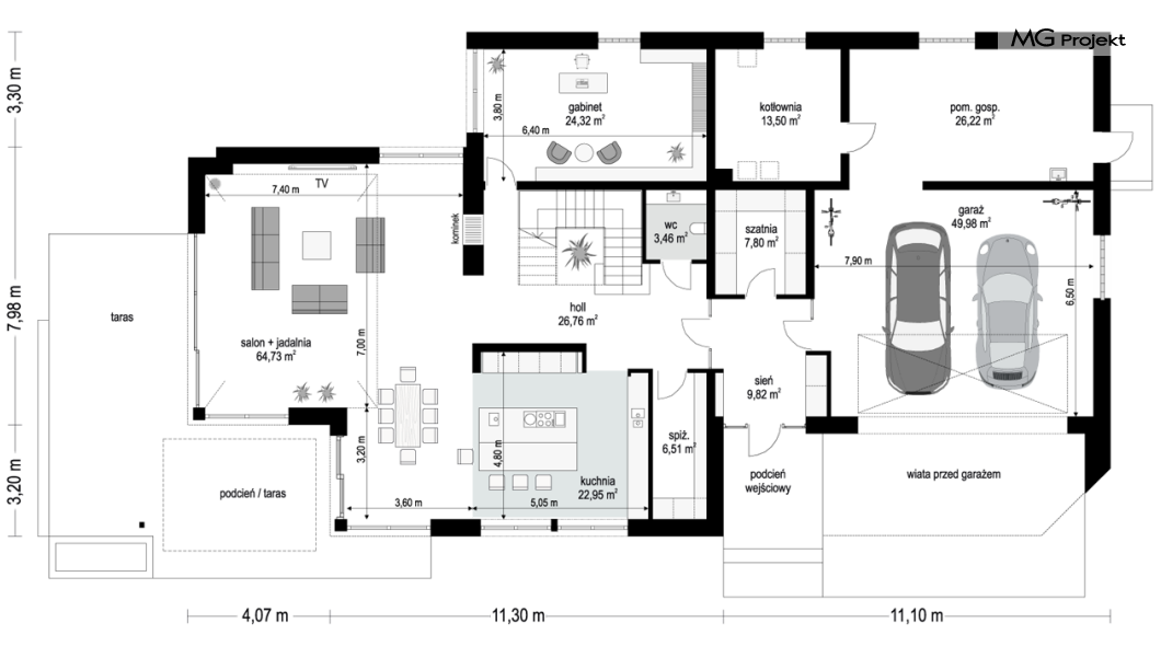
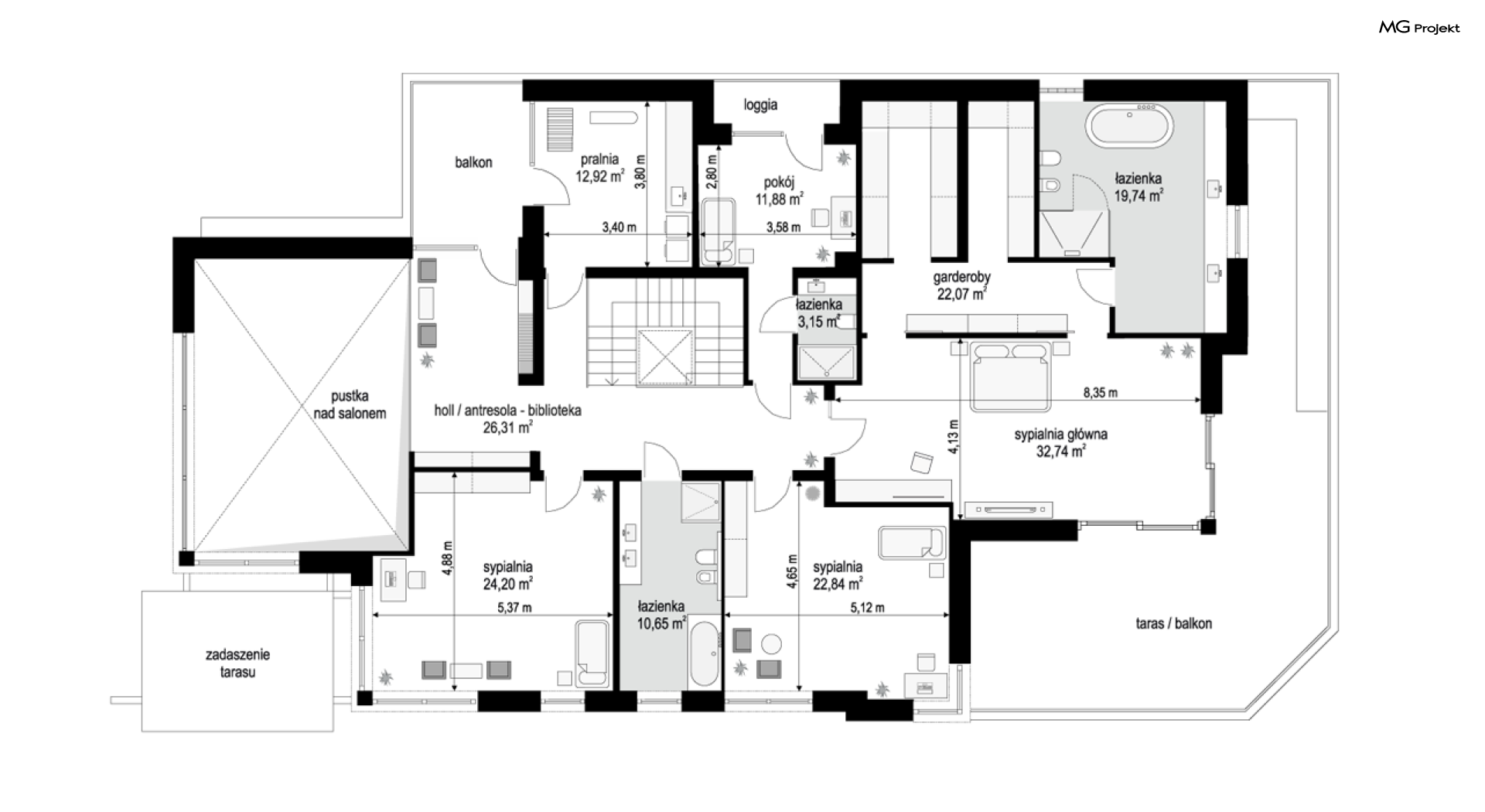
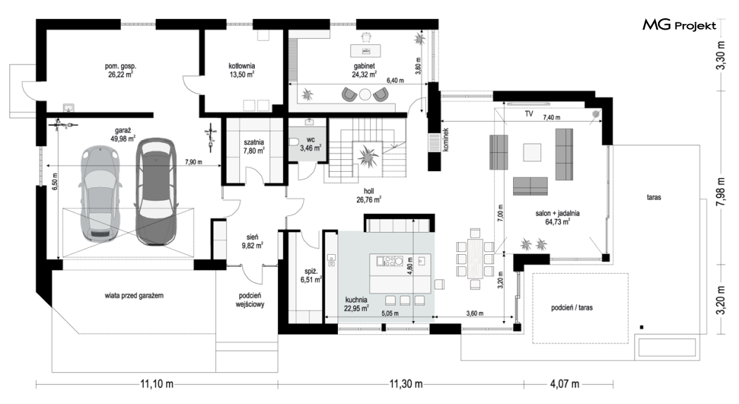
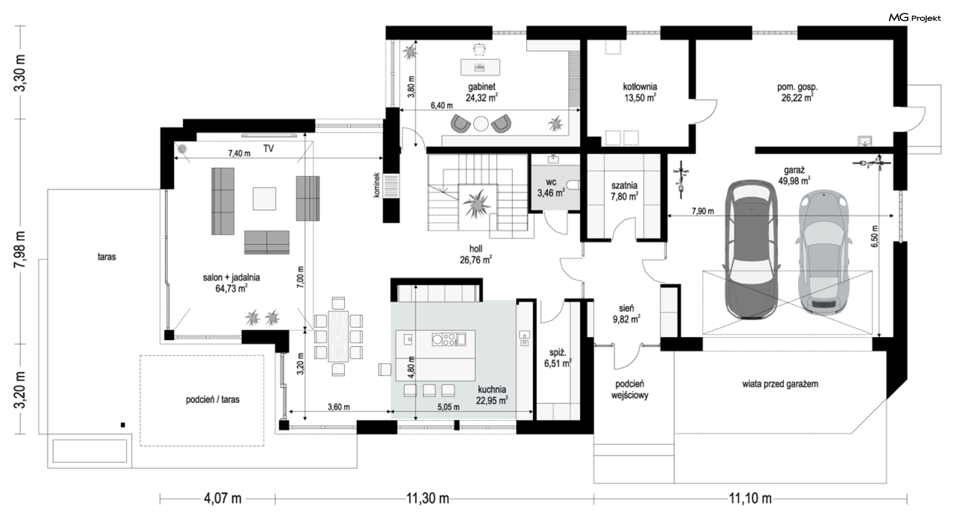
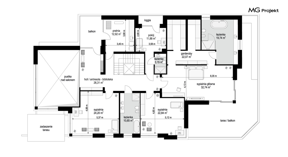
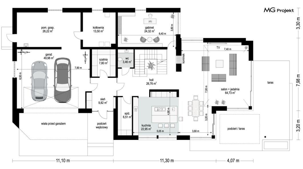
Wnętrze rezydencji Willa Moderna 2 zaprojektowano z podziałem jednoprzestrzenną część dzienną na parterze i sypialnie na piętrze. Do Willi Moderna 2 wchodzimy przez okazałe drzwi z szerokimi bocznymi naświetlami do bardzo obszernego 10-metrowego przedsionka. Obok do dyspozycji domowników jest duża szatnia i przejście do części garażowo-gospodarczej. Z przedsionka projektu Willa Moderna 2 szerokim przejściem przechodzimy do holu domostwa, w którym centralne miejsce zajmują komfortowe, efektowne schody z szeroką pustką w środku zabiegu schodów. Z holu projektu Willa Moderna 2 przenosimy się do jeszcze ciekawszego wnętrza salonu, którego duży fragment ma wysokość dwóch kondygnacji i piękne przeszklenie otwierające wnętrze na otaczający dom Willa Moderna 2 ogród. W projekcie domu Willa Moderna 2 od frontu zaprojektowano wygodną kuchnię z wyspą, ładną spiżarnię, oraz jadalnię. W pokoju dziennym znajdziemy ścianę rozrywkowo – telewizyjną, w której bez problemu zainstalujemy dowolnej wielkości telewizor lub ekran. Od strony holu wkomponowano we wnętrze budynku minimalistyczny trójstronny kominek, widoczny z wielu miejsc domu. Za schodami projektu Willa Moderna 2 przewidziano dodatkowy przestronny gabinet - biuro domowe. Na piętrze budynku Willa Moderna 2 zaprojektowano pokoje sypialne z łazienkami, oraz oddzieloną akustycznie antresolę – bibliotekę nad pustką salonu, stanowiąca jego przedłużenie i dopełnienie. Od frontu mamy dwie duże sypialnie dziecięce z łazienką, za schodami zaprojektowano sypialnię gościnną z własną łazienką, oraz pralnię-suszarnię z własnym balkonem -na tyle dużą aby pełnić też rolę pomieszczenia gospodarczo-pomocniczego. Nad częścią garażową projektu Willa Moderna 2 mieści się oddzielny luksusowy apartament Państwa domu, z dużą sypialnią, podwójną garderobą - Pana i Pani domu, oraz piękną łazienką. Apartament łączy się z dużym tarasem na dachu.
Projekt domu Willa Moderna 2 to propozycja dla Klientów, dysponujących środkami, gustem i wizją posiadania prawdziwej miejskiej willi. Projekt Willa Moderna 2 jest budynkiem dla osób planujących budowę dużego, wygodnego domu, mających już doświadczenia z mniejszymi wnętrzami i stawiających tym razem, przy kolejnej budowie na prawdziwy komfort i wygodę, gotowych zainwestować w komfortową oprawę swojego domostwa do codziennego życia. W projekcie Willa Moderna 2 zastosowano nowoczesne rozwiązania materiałowe i technologicznie, czyniące budynek energooszczędnym i łatwym w przyszłej eksploatacji. Projekt Willa Moderna 2 można zamówić również w wersji odbicia lustrzanego z garażem po lewej stronie. Zapraszamy także do zapoznania się z projektem Willa Moderna 1.

