Sensowny 2






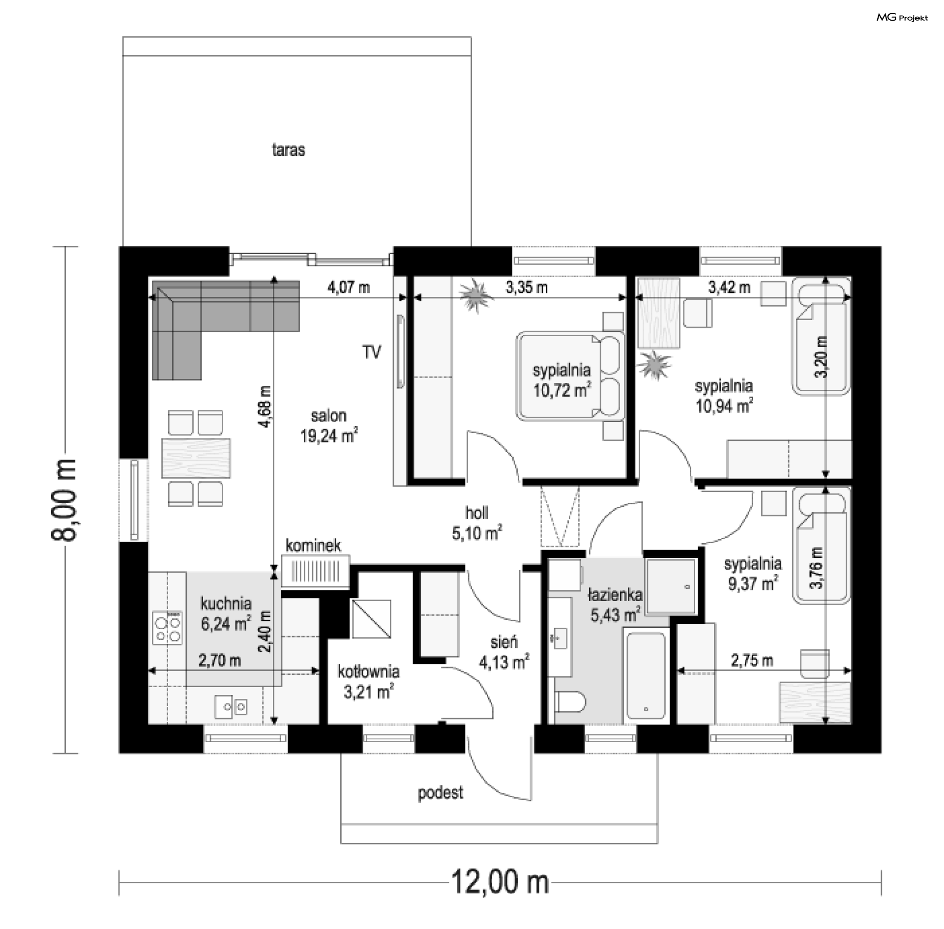
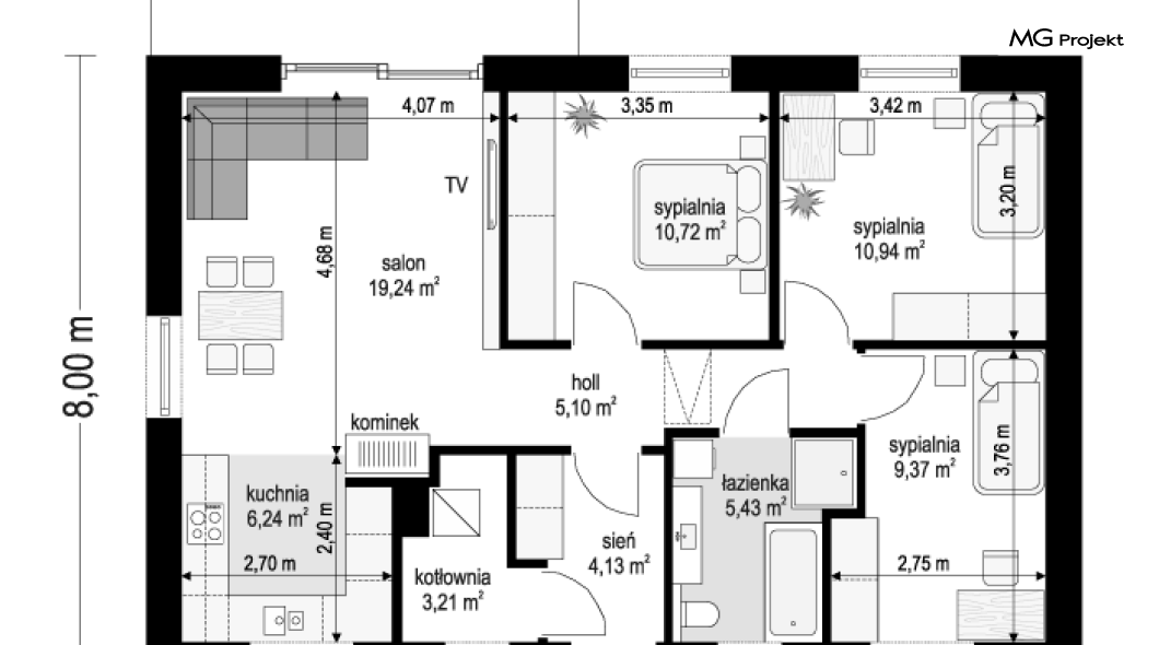
Projekt domu Sensowny 2 to niewielki dom jednorodzinny z serii „Sensownych” z oferty Mg Projekt. Jest to prosty parterowy budynek przykryty dwuspadowym dachem, z prostokątnym rzutem o wymiarach 12x 8 m, kryjący w sobie przestronne i funkcjonalne wnętrze, dające wygodną przestrzeń do życia dla 2-3 lub 4 osobowej rodziny. Domek jest doskonałą propozycją dla rodziny z dziećmi budującej swój pierwszy dom, lub dla par które mają już dorosłe dzieci i nie potrzebują wielkiego domu. „Sensowny” jest praktyczną propozycją na wygodne, ale niedrogie mieszkanie na własnej działce z ogrodem. Dom jest łatwy i tani w budowie, oraz niedrogi w późniejszej eksploatacji. Nie ma w nim żadnych udziwnień architektonicznych, więc nie ma się za bardzo co w nim zepsuć - nie będzie wymagał ciągłej pracy i pielęgnacji. „Sensowny 2” może także być dobrą propozycją na drugi wakacyjny dom. Architektura budynku utrzymana jest w stylistyce będącej symbiozą nowoczesności i tradycji. Symetria elewacji i właściwe proporcje, oraz konsekwentna kolorystyka materiałów wykończeniowych tworzą bardzo miłą dla oka całość. Wejście do domu podkreślono wysuniętym dachem zakrywającym podest wejściowy. Drzwi wejściowe zaakcentowane są kontrastującą opaską. Od strony ogrodu królują szerokie drzwi balkonowe, otwierające przestrzeń pokoju dziennego na taras i otaczający dom ogród. Okna w domu ozdobiono urokliwymi okiennicami – tak rzadko dziś stosowanymi przez Inwestorów, a dodającymi domowi tak wiele urody. Wnętrze podzielono na przestrzeń dzienną – z salonem, kuchnią i holem, oraz na część nocną – z trzema sypialniami i łazienką. Z przedsionka wchodzimy do kotłowni, której komin połączony jest z przewodem kominka salonu w jeden zestaw. Salon ma bardzo ładne ustawienie - ze ścianą telewizyjną i narożnym kominkiem widocznym z każdego miejsca. Mimo niedużej powierzchni, wnętrze domu jest bardzo wygodne, przestronne i funkcjonalne. Konstrukcja budynku jest prosta i tania w budowie. Wszystkie prace murarskie i betoniarskie kończą się na poziomie wieńców nad ścianami parteru. Powyżej zaprojektowaliśmy układ drewnianych wiązarów dachowych, które stanowią konstrukcję zarówno stropu nad parterem jak i więźby dachowej. Takie rozwiązanie znakomicie przyspiesza i upraszcza budowę i - przede wszystkim - obniża koszty. Wiązary dachowe pozwalają oczywiście wykorzystać przestrzeń strychową nad parterem na domowy magazyn. W projekcie zastosowano bardzo dobre izolacje i nowoczesne instalacje, dzięki czemu dom jest energooszczędny i będzie tani w późniejszym utrzymaniu. „Sensowny 2” to sensowna propozycja dla osób, które planują budowę domu, ale nie zamierzają wydać na niego fortuny i podcinać sobie żył po to żeby zaimponować sąsiadom. To doskonała propozycja dla osób podchodzących do budowy swojego domu w sposób praktyczny i rozsądny. Budowa „Sensownego 2” pójdzie jak po maśle. Zapraszamy !
