Sensowny 4







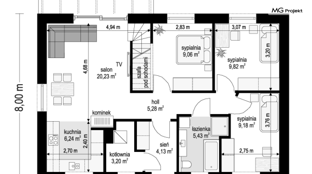
Projekt domu Sensowny 4 to niewielki dom jednorodzinny z serii „Sensownych” z oferty Mg Projekt. Jest to wyjątkowy wariant, zaprojektowany w dworkowo – rezydencyjnej stylistyce, z ozdobnymi detalami wokół okien, drzwi i narożników elewacji, dzięki czemu domek zyskuje oryginalny i bardzo elegancki wygląd. Prostokątną bryłę budynku o wymiarach 12x 8 m przykryto czterospadowym dachem, wieńczącym rzut z funkcjonalnym wnętrzem dla 2-4osobowej rodziny.
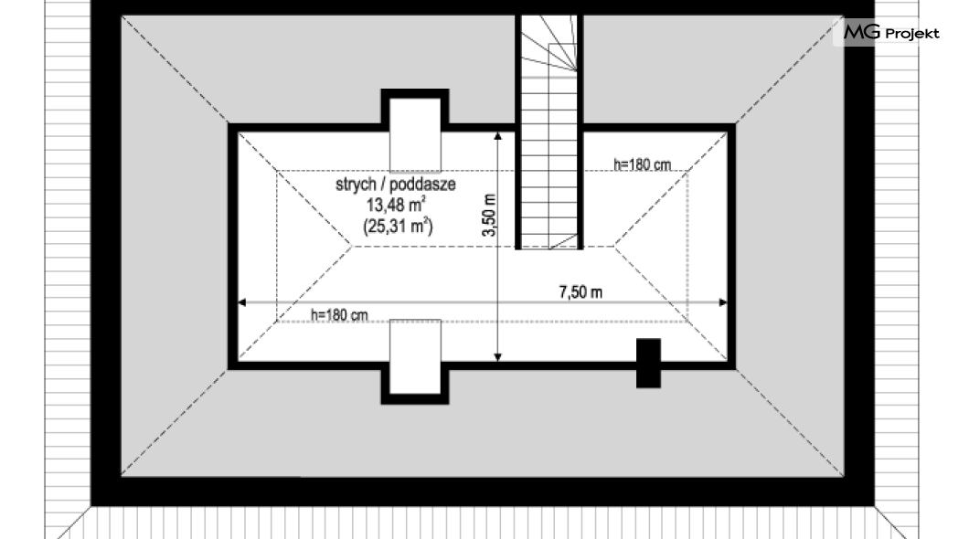
„Sensowny 4” to doskonała propozycja na wygodne i niedrogie mieszkanie na własnej działce z ogrodem i świetne połączenie prostoty z designerskim sznytem.Dom jest łatwy, tani w budowie i będzie niedrogi w późniejszej eksploatacji. Architektura budynku utrzymana jest w stylistyce nawiązującej do podmiejskich rezydencji – to taki mały i przytulny „dworek – pałacyk”. Dom – cukierek. Symetria elewacji, właściwe proporcje i zastosowane detale tworzą razem szykowną i bardzo miłą dla oka całość. Wejście do domu podkreślono wysuniętym zadaszeniem zakrywającym podest wejściowy. Drzwi wejściowe zaakcentowane zostały wypukłym boniowaniem ściany i bocznymi okienkami.Od strony ogrodu królują szerokie drzwi balkonowe, otwierające przestrzeń pokoju dziennego na taras i otaczający dom ogród, kryjące się pod piękną pergolą - zadaszeniem.Okna w domu ozdobiono opaskami i ozdobnymi parapetami z boniowaniem. Wnętrze podzielono na przestrzeń dzienną – z salonem, kuchnią i holem, oraz na część nocną – z trzema sypialniami i łazienką. Z przedsionka mamy dostęp do kotłowni, której komin połączony jest z przewodem kominka salonu w jeden zestaw. Salon ma bardzo ładne ustawienie - ze ścianą telewizyjną i narożnym kominkiem widocznym z każdego miejsca. Mimo niedużej powierzchni, wnętrze domu jest bardzo wygodne, przestronne i funkcjonalne. Z salonu możemy też wejść ukrytymi za ścianą TV schodkami na strych, który można zaadaptować dość łatwo na poddasze. Konstrukcja budynku jest prosta i tania w budowie. Wszystkie prace murarskie i betoniarskie kończą się na poziomie wieńców nad ścianami parteru. Powyżej zaprojektowaliśmy układ drewnianych wiązarów dachowych, które stanowią konstrukcję zarówno stropu nad parterem jak i więźby dachowej. Takie rozwiązanie znakomicie przyspiesza i upraszcza budowę i - przede wszystkim - obniża koszty. Wiązary dachowe pozwalają oczywiście wykorzystać przestrzeń strychową nad parterem na domowy magazyn lub wariantowo na dodatkowe poddasze. W projekcie zastosowano bardzo dobre izolacje i nowoczesne instalacje, dzięki czemu dom jest energooszczędny i będzie tani w późniejszym utrzymaniu. „Sensowny 4” to bardzo dobra propozycja dla osób, które planują budowę ładnego stylowego domu, ale nie zamierzają wydać na niego fortuny i nie potrzebują wielkich powierzchni mieszkalnych. To doskonała propozycja dla osób podchodzących do budowy swojego domu w sposób pragmatyczny i rozsądny. Budowa „Sensownego 4” z pewnością będzie przyjemna. Zapraszamy !

