Sielanka 3







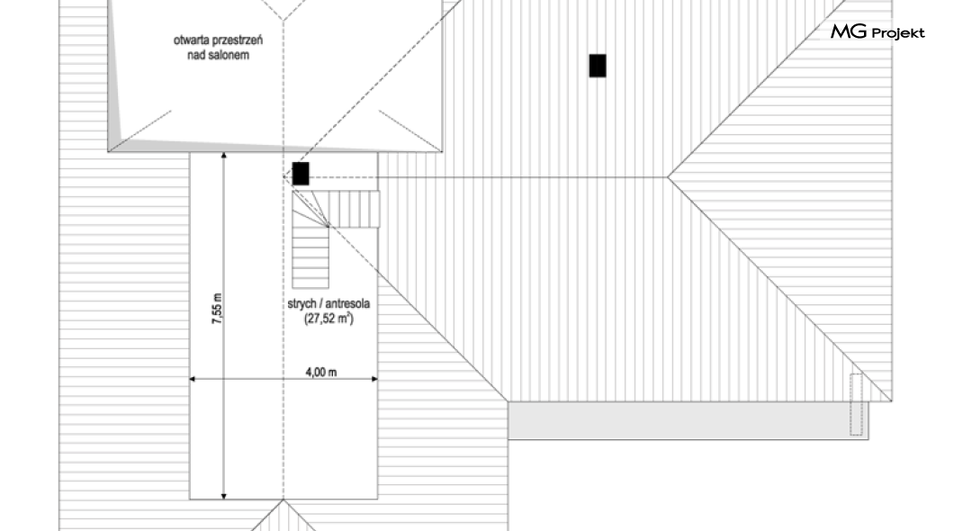
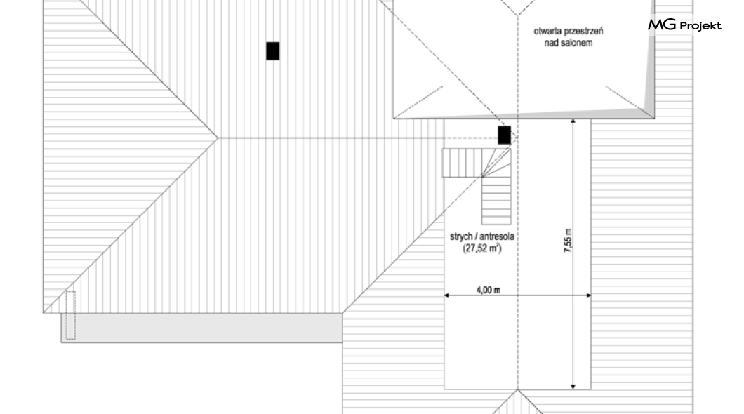
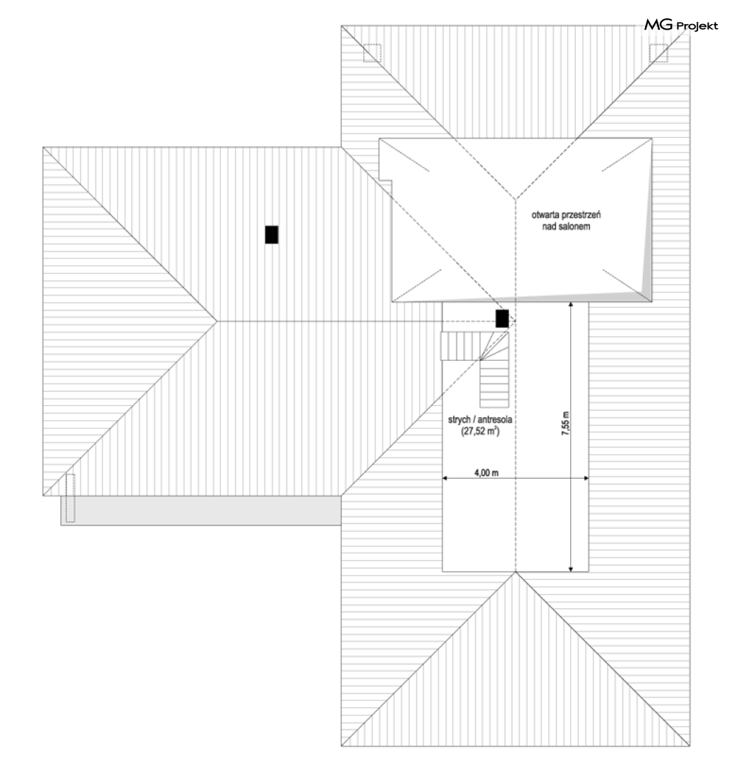
Projekt domu Sielanka 3 jest kolejną wersją projektu z popularnej serii „Sielanek” z MG Projekt. Jest to wersja z dachami czterospadowymi. Sielanka 3 to projekt parterowego budynku, rzutem o kształcie litery T, przykryty wielospadowym dachem, z cofniętym w stosunku do ściany frontowej garażem i wejściem, oraz z elewacją ogrodową z przestronnym zadaszonym tarasem -przesłużeniem salonu. Budynek został zaprojektowany dla 4-5 osobowej rodziny, chcącej komfortowo mieszkać w parterowym domu, bez biegania po schodach, z bezpośrednim dostępem do ogrodu z każdego pokoju. Dom nadaje się na działkę z ogrodem z tyłu lub z od strony bocznej- zależnie od jego posadowienia i orientacji względem stron świata. Architektura budynku jest nowoczesna, wykorzystująca modne materiały i zestawienia kolorystyczne, wykorzystująca kontrasty między poszczególnymi powierzchniami dla lepszego estetycznego efektu. Front budynku urozmaicono ciekawym podcieniem wejściowym z szerokimi drzwiami z naświetlem bocznym, Dodatkową ozdobą jest narożne okno i okna do podłogi rozdzielone drewnianą okładziną ściany. Całość domu przykryta jest pięknym proporcjonalnym dachem przykrytym grafitową nowoczesną dachówką płaską. Od strony ogrodu najważniejszymi elementami są piękne przeszklenia pokoi, zadaszenie tarasu, oraz same tarasy w kształcie litery L. Wnętrze budynku podzielono na strefy : w części środkowej mamy ogólną przestrzeń dzienną do życia, po lewej stronie część garażowo-gospodarczą, a z prawej strony - pokoje sypialne z łazienkami garderobami. Do domu wchodzimy z zadaszonego podestu wejściowego szerokimi doświetlonymi drzwiami do przedsionka z szatnią i następnie do holu połączonego przestrzennie z salonem i kuchnią. Kuchnia jest otwarta na salon i na ogród. Salon ma podniesiony sufit aż do kalenicy dachu, dzięki czemu jest w nim jeszcze więcej przestrzeni i powietrza. Z holu korytarzem przechodzimy do części prywatnej, gdzie znajdziemy 4 pokoje, wśród nich sypialnię master z podwójną garderobą. Wnętrze dopełnia duża łazienka, wc i pomieszczenie na pralkę, suszarkę i kosze do prania. W części gospodarczej znajdziemy duży dwustanowiskowy garaż, z magazynem, oraz kotłownię. Nad częścią parteru zaprojektowano przestrzeń strychową - magazyn domowych rzeczy „nadprogramowych”, dostępną ze schodów w holu. Strych w dość prosty sposób można zaadaptować na poddasze użytkowe. Konstrukcyjne dom jest zaprojektowany w bardzo prosty sposób. Prace murarskie i betoniarskie kończą się na wieńcach nad ścianami parteru. Pozostała konstrukcja budynku to układ drewnianych wiązarów prefabrykowanych, tworzących strop nad parterem, oraz więźbę dachową. Takie rozwiązanie znakomicie upraszcza budowę, przyspiesza ją - i przede wszystkim obniża koszty. Dom zaprojektowano jako energooszczędny, z dobrymi izolacjami i nowoczesnymi instalacjami. Budynek jest łatwy i szybki w budowie i będzie niedrogi w późniejszej eksploatacji. To świetna propozycja dla Inwestorów szukających domu parterowego, wygodnego i ekonomicznego. Zapraszamy do zapoznania się ze wszystkimi projektami z serii Sielanka: https://www.mgprojekt.com.pl/sielanka, https://www.mgprojekt.com.pl/sielanka-2, https://www.mgprojekt.com.pl/sielanka-2-b, https://www.mgprojekt.com.pl/sielanka-3, https://www.mgprojekt.com.pl/sielanka-4.
-
Projekt szamba szczelnego0 zł399 zł
-
Charakterystyka energetyczna0 zł200 zł
-
Pakiet energooszczędny0 zł150 zł
-
Dziennik budowy0 zł60 zł
-
Tablica budowy0 zł120 zł
-
Wersja elektroniczna projektu550 zł
-
Pakiet kosztorys inwestorski550 zł
-
Pakiet ogrzewanie podłogowe470 zł
-
Powietrzna pompa ciepła470 zł
-
Pakiet wentylacja mechaniczna i kominek DGP470 zł
-
Dodatkowy egzemplarz projektu500 zł
-
Pakiet kotłownia na paliwo stałe470 zł
-
Pakiet instalacja fotowoltaiczna470 zł
-
Pakiet klimatyzacja w domu470 zł
-
Pakiet gruntowa pompa ciepła470 zł
-
Pakiet odkurzacz centralny470 zł
-
Pakiet płaszcz wodny470 zł
-
Pakiet kominek DGP399 zł
-
Projekty altan i grillów ogrodowych650 zł
-
Pakiet instalacja solarna470 zł

opieką konsultacyjną w trakcie budowy domu