22 257 84 76 pon-pt: 9-17
Menu

Sielanka 4

Dodaj do porównania Usuń z porównania
Dodaj do ulubionych Usuń z ulubionych
Code icon
Lustrzane odbicie
Pow. użytkowa:
135.58m2
Pow. zabudowy:
218.58m2
Koszt budowy:
716000zł
Liczba pokoi:
5
Liczba łazienek:
2
Garaż:
2
Rzuty Elewacja Specyfikacja techniczna Koszty Opis
Share icon
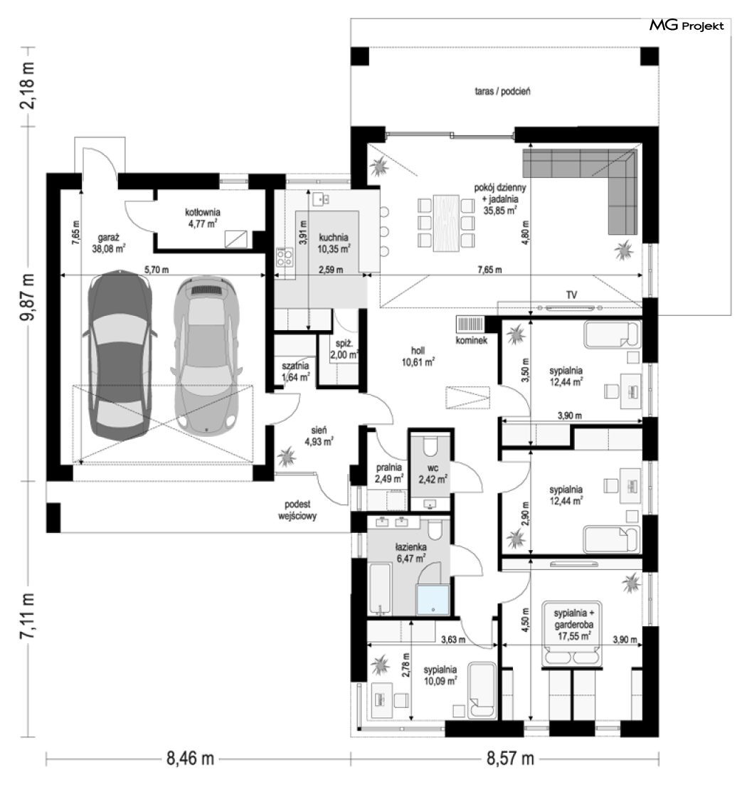
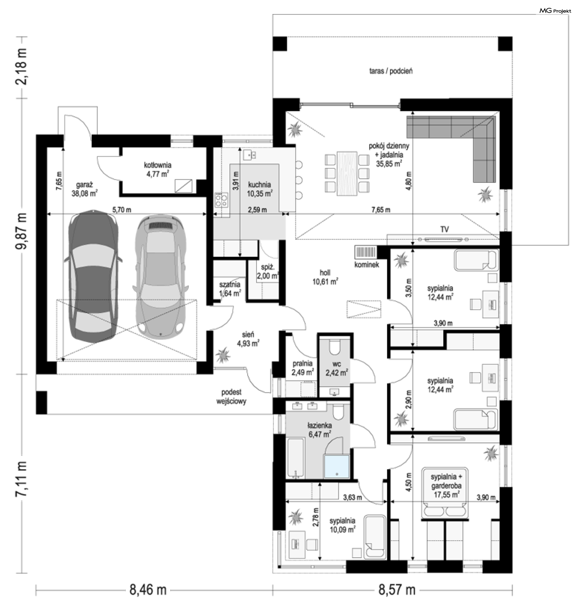
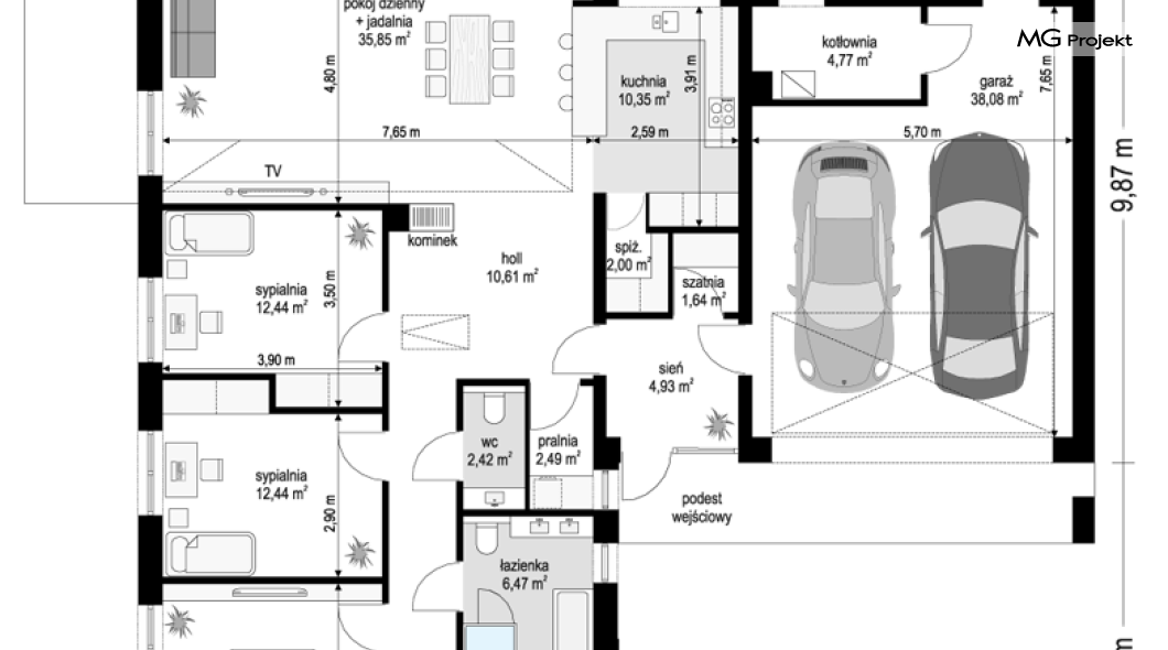
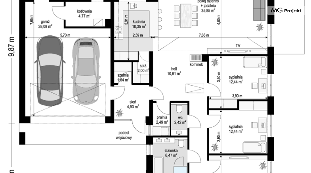
Rzuty
Sielanka 4
Lustrzane odbicie
Pobierz rysunki szczegółowe
Zapytaj, co możesz zmienić
Zamów rysunki szczegółowe
Zapoznaj się ze szczegółowymi rysunkami rzutów kondygnacji w PDF dla tego projektu.
ZAMAWIAM
Order drawings image
Elewacje
Sielanka 4
Frontowa
Sielanka 4
Ogrodowa
Sielanka 4
Lewa
Sielanka 4
Prawa
Specyfikacja techniczna
Główne parametry
Powierzchnia użytkowa
135,58 m2
Łączna powierzchnia tzw. pomieszczeń użytkowych. Przede wszystkim nie zalicza się do niej powierzchni garażu, nieużytkowego strychu, piwnicy, kotłowni.
Liczba pokoi
5
Liczba łazienek
2
Garaż
2
Powierzchnia zabudowy
218,58 m2
Powierzchnia zajmowana przez budynek na działce. W praktyce tzw. powierzchnia rzutu budynku wyznaczana po obrysie ścian zewnętrznych.
Pełna specyfikacja
Maksymalna wysokość budynku
6,00 m
Wysokość wyznaczona od poziomu terenu do najwyżej położonej części dachu (np. kalenicy), zwykle bez uwzględnienia kominów.
Kąt nachylenia dachu
30,00°
Nachylenie połaci dachu podane w stopniach.
Minimalne wymiary działki (szerokość)
24,03 m
Szerokość działki wyznaczona przy założeniu, że minimalna odległość budynku od granic działki wynosi przynajmniej 3 m w przypadku ścian bez otworów okiennych lub drzwiowych, albo 4 m w przypadku ścian budynku z takimi otworami.
Minimalne wymiary działki (długość)
26,15 m
Długość działki wyznaczona przy założeniu, że minimalna odległość budynku od granic działki wynosi przynajmniej 3 m w przypadku ścian bez otworów okiennych lub drzwiowych, albo 4 m w przypadku ścian budynku z takimi otworami.
Technologia budowy
Murowany
Typ dachu
Wielospadowy
Kształt dachu – płaski, jednospadowy (jedna skośna połać), dwuspadowy (dwie połacie), wielospadowy (w praktyce o przynajmniej czterech połaciach).
Energooszczędność
Energooszczędny
Energooszczędny – dom o zapotrzebowaniu na tzw. nieodnawialna energię pierwotną (EP) niższym, niż wymagana przepisami maksymalna wartość.
Typ zabudowy
Jednorodzinny
Koszt: Instalacje
103 220
Łączny koszt wykonania wszystkich niezbędnych instalacji wewnętrznych – grzewczej, wentylacyjnej, wodno-kanalizacyjnej, elektrycznej itd.
Koszt: Wykoczńenie
356 484
Powierzchnia garażu
38,08 m2
Powierzchnia netto budynku
140,35 m2
Łączna powierzchnia wszystkich kondygnacjach obliczana z pominięciem elementów konstrukcyjnych (ściany nośne, słupy itp.) ale wraz z powierzchnią zajmowaną przez ścianki działowe lub inne elementy, które można potencjalnie zdemontować.
Powierzchnia całkowita budynku
218,58 m2
Łączna powierzchnia wszystkich kondygnacjach obliczana po obrysie ścian zewnętrznych, wraz z powierzchnią zajmowaną przez ściany wewnętrzne.
Kubatura budynku
974,00 m3
Objętość budynku, zwykle wraz z elementami konstrukcyjnymi (ścianami, stropami itd.).
Szerokość budynku
17,03 m
Maksymalna szerokość budynku wraz z grubością izolacji cieplnej oraz okładzin ściennych.
Długość budynku
16,98 m
Maksymalna długość budynku wraz z grubością izolacji cieplnej oraz okładzin ściennych.
Liczba kondygnacji
Parterowe
Za kondygnacje uznawane są również poddasza użytkowe oraz piwnice. Kondygnacją nie jest natomiast poddasze nieużytkowe ani antresola.
Koszty
Koszty budowy
716 000 zł
Koszt: Stan pod klucz
Obejmuje koszt wszystkich robót stanu surowego, wykonania instalacji wewnętrznych oraz robót wykończeniowych.
430 000 zł
Koszt: Stan surowy zamknięty
Koszt wzniesienia budynku wraz z pokryciem dachu i stolarką zewnętrzną (okna i drzwi). Bez instalacji, ocieplenia i robót wykończeniowych.
Koszty utrzymania
EP = 69,00 kWh/m2 rok
Oznacza ilość energii nieodnawialnej, jaką budynek może pozyskiwać z nieodnawialnych surowców energetycznych, czyli energii zawartej w paliwach i nośnikach takich jak węgiel, gaz czy ropa naftowa.
Opis

Projekt domu Sielanka 4 jest kolejną wersją projektu z popularnej serii „Sielanek” z MG Projekt. Jest to wersja w architekturze nowoczesnej, z dachami bez okapów, zbliżonej do stylistyki „domu-stodoły”. Sielanka 4 to projekt parterowego budynku, rzutem o kształcie litery T, z główną bryłą z dachem dwuspadowym i dobudowaną częścią garażową przykrytą wielospadowym dachem. Dom z cofniętym garażem i wejściem tworzącym duży placyk – podjazd frontowy. Z elewacją ogrodową z oryginalnym dużym zadaszonym tarasem -przesłużeniem salonu. Budynek zaprojektowano dla 4-5ciosobowej rodziny, chcącej komfortowo mieszkać w parterowym domu, bez biegania po schodach, z bezpośrednim dostępem do ogrodu z każdego pokoju. Dom nadaje się na działkę z ogrodem z tyłu lub z od strony bocznej - zależnie od jego posadowienia i orientacji względem stron świata. Architektura budynku jest nowoczesna, wykorzystująca modne materiały i zestawienia kolorystyczne, korzysta z modnego języka detali wykorzystywanego we współczesnych domach jednorodzinnych. Front budynku urozmaicono ciekawym podcieniem wejściowym z szerokimi drzwiami z naświetlem bocznym. Dodatkową ozdobą jest narożne okno i okna do podłogi rozdzielone drewnianą okładziną ściany. Od strony ogrodu najważniejszym elementem jest interesująco zaprojektowany podcień – zadaszenie tarasu, ozdobiony pięknymi przeszkleniami salonu i okładziną drewnianą. Całość domu przykryta jest dachem z blachy na rąbek stojący w grafitowym kolorze, badącym znakomitym kontrastem dla białych elewacji. Wnętrze budynku podzielono na strefy : w części środkowej mamy ogólną przestrzeń dzienną do życia, po lewej stronie część garażowo-gospodarczą, a z prawej strony - pokoje sypialne z łazienkami garderobami. Do domu wchodzimy z zadaszonego podestu szerokimi doświetlonymi drzwiami do przedsionka z szatnią i następnie do holu połączonego przestrzennie z salonem i kuchnią. Kuchnia jest tutaj otwarta na salon i na ogród. Pokój dzienny ma podniesiony sufit aż do kalenicy dachu, dzięki czemu jest w nim jeszcze więcej przestrzeni i powietrza. Z salonu rozpościera się piękny widok na ogród przez dwukondygnacyjne szerokie okno. Z holu korytarzem przechodzimy do części prywatnej, gdzie znajdziemy 4 pokoje, wśród nich sypialnię master z podwójną garderobą. Wnętrze dopełnia duża łazienka, wc i pomieszczenie na pralkę, suszarkę i kosze do prania. W części gospodarczej znajdziemy duży dwustanowiskowy garaż, z magazynem, oraz kotłownię. Nad częścią parteru zaprojektowano przestrzeń strychową - magazyn domowych rzeczy „nadprogramowych”.Konstrukcyjne dom jest zaprojektowany w bardzo prosty sposób. Prace murarskie i betoniarskie kończą się na wieńcach nad ścianami parteru. Pozostała konstrukcja budynku to układ drewnianych wiązarów prefabrykowanych, tworzących strop nad parterem, oraz więźbę dachową. Takie rozwiązanie znakomicie upraszcza budowę, przyspiesza ją - i przede wszystkim obniża koszty. Dom zaprojektowano jako energooszczędny, z dobrymi izolacjami i nowoczesnymi instalacjami. Budynek jest łatwy i szybki w budowie i będzie niedrogi w późniejszej eksploatacji. To świetna propozycja dla Inwestorów szukających domu parterowego, wygodnego i ekonomicznego, a zarazem na wskroś nowoczesnego i oryginalnego. Zapraszamy do zapoznania się ze wszystkimi projektami z serii Sielanka: https://www.mgprojekt.com.pl/sielanka, https://www.mgprojekt.com.pl/sielanka-2, https://www.mgprojekt.com.pl/sielanka-2-b, https://www.mgprojekt.com.pl/sielanka-3, https://www.mgprojekt.com.pl/sielanka-4.

CZYTAJ WIĘCEJ
Sielanka 4
BD43244
Powierzchnia użytkowa
Łączna powierzchnia tzw. pomieszczeń użytkowych. Przede wszystkim nie zalicza się do niej powierzchni garażu, nieużytkowego strychu, piwnicy, kotłowni.
135,58 m2
Liczba pokoi
5
Liczba łazienek
2
Garaż
2
Powierzchnia zabudowy
Powierzchnia zajmowana przez budynek na działce. W praktyce tzw. powierzchnia rzutu budynku wyznaczana po obrysie ścian zewnętrznych.
218,58 m2
Projekt domu Sielanka 4
Pobierz rysunki szczegółowe tego domu i sprawdź dokładne wymiary pomieszczeń! Wypełnij wszystkie pola, aby dostać rysunki
Administratorem Twoich danych jest AVT-Korporacja sp. z o.o. z siedzibą ul. Leszczynowa 11, 03-197 Warszawa. Chodzi o dane osobowe, które zbieramy, aby móc wysłać Ci nasze produkty (czasopisma w formie drukowanej lub elektronicznej i inne towary) oraz faktury za ich zakup. ... Chcemy przetwarzać Twoje dane osobowe w celach opisanych w naszej polityce prywatności, a w szczególności: w celu realizacji usług świadczonych w naszym sklepie internetowym oraz w innych prawnie usprawiedliwionych celach, w tym marketingu bezpośredniego naszych produktów i usług (tzw. uzasadniony interes administratora). Bez Twojej zgody nie przekażemy i nie będziemy dokonywać obrotu (nie użyczymy, nie sprzedamy) Twoich danych osobowych innym osobom lub instytucjom. Twoje dane osobowe możemy przekazać jedynie podmiotom uprawnionym do ich uzyskania na podstawie obowiązującego prawa (np. sądy lub organy ścigania) – ale tylko na ich żądanie w oparciu o stosowną podstawę prawną. Będziemy przetwarzać Twoje dane osobowe tak długo, jak będzie to niezbędne do wykonania umowy, a po tym czasie – przez okres odpowiadający okresowi przedawnienia roszczeń, jakie może podnosić administrator danych i jakie mogą być podnoszone wobec administratora danych. Masz prawo do żądania od administratora dostępu do Twoich danych, ich sprostowania, usunięcia, ograniczenia ich przetwarzania, wniesienia sprzeciwu wobec przetwarzania Twoich danych lub ich przenoszenia. W każdej chwili możesz odwołać zgodę na przetwarzanie Twoich danych osobowych oraz możesz zażądać, by Twoje wszystkie dane zostały przez nas usunięte. Podstawy prawne przetwarzania Twoich danych osobowych: art. 5, 6, art. 12, art. 13 Ogólnego rozporządzenia o ochronie danych osobowych (RODO), art. 10 Ustawy o świadczeniu usług drogą elektroniczną, Rozporządzenie Ministra Finansów w sprawie przesyłania faktur w formie elektronicznej, zasad ich przechowywania oraz trybu udostępniania organowi podatkowemu lub organowi kontroli skarbowej z dnia 20 grudnia 2012 r. (Dz.U. z 2012 r. poz. 1528) oraz zasadami wystawiania, przesyłania i przechowywania faktury elektronicznej. Czytaj dalej Zwiń
Close icon
Projekt domu Sielanka 4
Pobierz rysunki szczegółowe tego domu i sprawdź dokładne wymiary pomieszczeń! Wypełnij wszystkie pola, aby dostać rysunki
Administrator danych osobowych: AVT-Korporacja sp. z o.o. z siedzibą: ul. Leszczynowa 11, 03-197 Warszawa. Cel przetwarzania danych: realizacja wysyłki newslettera ...
Przez 27 lata
z nami zbudowano 500 000 domów
Nawet, jeśli nie kupisz u nas projektu, skorzystaj z naszej wiedzy.
Przeczytaj porady zebrane w naszych publikacjach. Zamów bezpłatnie:
Prenumeratę (3 numery) magazynu Budujemy Dom
Zamów bezpłatnie
3 tomy Praktyczna Szkoła Budowania
Zamów bezpłatnie
Zapisz się do Klubu Budujących Dom by kontynuować dowolnie długą bezpłatną prenumeratę magazynu Budujemy Dom
Ostatnio oglądane
Projekt domu Sielanka 4
Administratorem Twoich danych jest AVT-Korporacja sp. z o.o. z siedzibą ul. Leszczynowa 11, 03-197 Warszawa. Chodzi o dane osobowe, które zbieramy, aby móc wysłać Ci nasze produkty (czasopisma w formie drukowanej lub elektronicznej i inne towary) oraz faktury za ich zakup. ... Chcemy przetwarzać Twoje dane osobowe w celach opisanych w naszej polityce prywatności, a w szczególności: w celu realizacji usług świadczonych w naszym sklepie internetowym oraz w innych prawnie usprawiedliwionych celach, w tym marketingu bezpośredniego naszych produktów i usług (tzw. uzasadniony interes administratora). Bez Twojej zgody nie przekażemy i nie będziemy dokonywać obrotu (nie użyczymy, nie sprzedamy) Twoich danych osobowych innym osobom lub instytucjom. Twoje dane osobowe możemy przekazać jedynie podmiotom uprawnionym do ich uzyskania na podstawie obowiązującego prawa (np. sądy lub organy ścigania) – ale tylko na ich żądanie w oparciu o stosowną podstawę prawną. Będziemy przetwarzać Twoje dane osobowe tak długo, jak będzie to niezbędne do wykonania umowy, a po tym czasie – przez okres odpowiadający okresowi przedawnienia roszczeń, jakie może podnosić administrator danych i jakie mogą być podnoszone wobec administratora danych. Masz prawo do żądania od administratora dostępu do Twoich danych, ich sprostowania, usunięcia, ograniczenia ich przetwarzania, wniesienia sprzeciwu wobec przetwarzania Twoich danych lub ich przenoszenia. W każdej chwili możesz odwołać zgodę na przetwarzanie Twoich danych osobowych oraz możesz zażądać, by Twoje wszystkie dane zostały przez nas usunięte. Podstawy prawne przetwarzania Twoich danych osobowych: art. 5, 6, art. 12, art. 13 Ogólnego rozporządzenia o ochronie danych osobowych (RODO), art. 10 Ustawy o świadczeniu usług drogą elektroniczną, Rozporządzenie Ministra Finansów w sprawie przesyłania faktur w formie elektronicznej, zasad ich przechowywania oraz trybu udostępniania organowi podatkowemu lub organowi kontroli skarbowej z dnia 20 grudnia 2012 r. (Dz.U. z 2012 r. poz. 1528) oraz zasadami wystawiania, przesyłania i przechowywania faktury elektronicznej. Czytaj dalej Zwiń