22 257 84 76 pon-pt: 9-17
Menu

Willa Parterowa 3

Dodaj do porównania Usuń z porównania
Dodaj do ulubionych Usuń z ulubionych
Code icon
Lustrzane odbicie
Pow. użytkowa:
140.02m2
Pow. zabudowy:
226.91m2
Koszt budowy:
740000zł
Liczba pokoi:
5
Liczba łazienek:
3
Garaż:
2
Rzuty Elewacja Specyfikacja techniczna Koszty Opis
Share icon
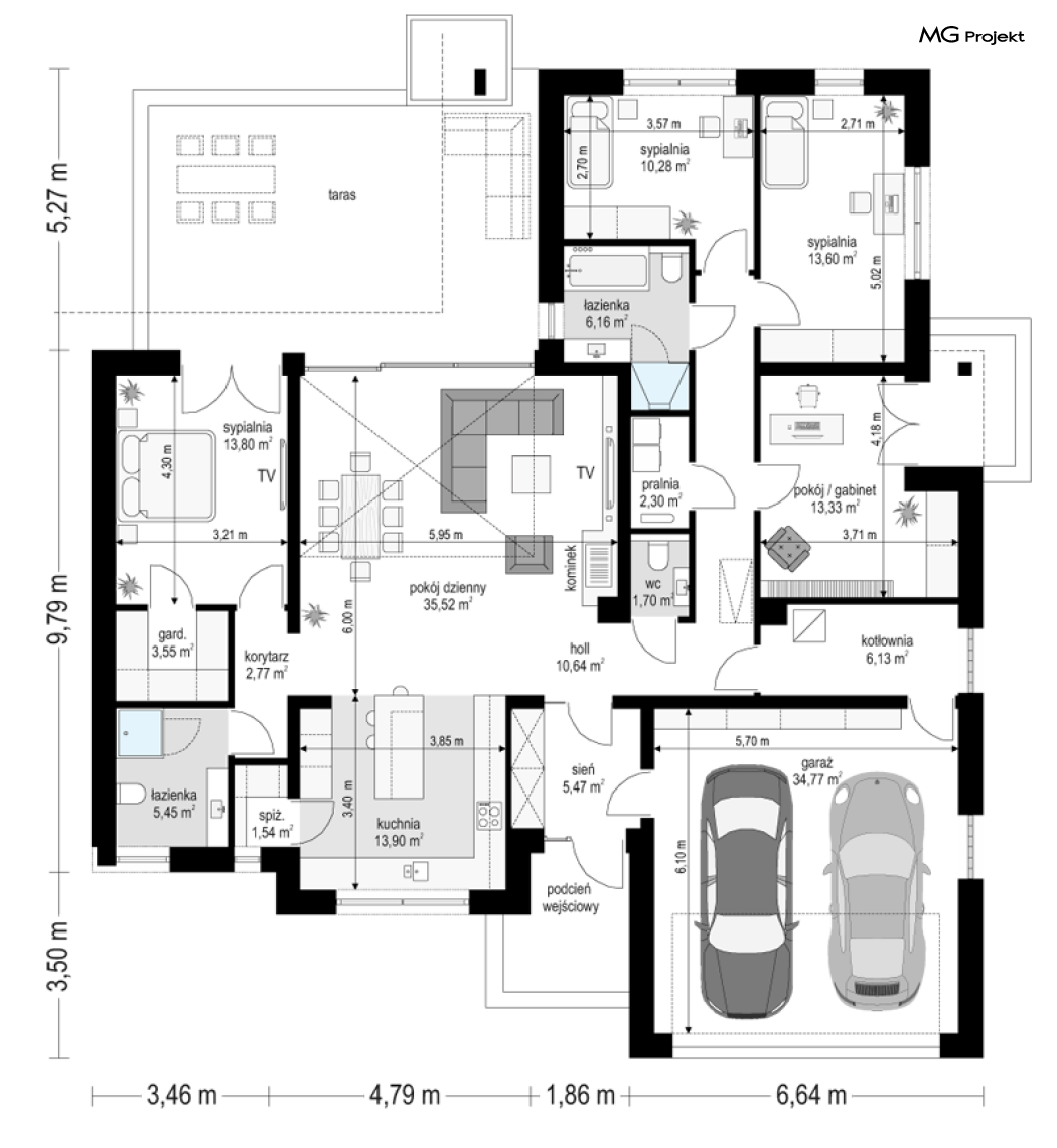
Rzuty
Willa Parterowa 3
Lustrzane odbicie
Pobierz rysunki szczegółowe
Zapytaj, co możesz zmienić
Willa Parterowa 3
Lustrzane odbicie
Pobierz rysunki szczegółowe
Zapytaj, co możesz zmienić
Zamów rysunki szczegółowe
Zapoznaj się ze szczegółowymi rysunkami rzutów kondygnacji w PDF dla tego projektu.
ZAMAWIAM
Order drawings image
Elewacje
Willa Parterowa 3
Frontowa
Willa Parterowa 3
Ogrodowa
Willa Parterowa 3
Lewa
Willa Parterowa 3
Prawa
Specyfikacja techniczna
Główne parametry
Powierzchnia użytkowa
140,02 m2
Łączna powierzchnia tzw. pomieszczeń użytkowych. Przede wszystkim nie zalicza się do niej powierzchni garażu, nieużytkowego strychu, piwnicy, kotłowni.
Liczba pokoi
5
Liczba łazienek
3
Garaż
2
Powierzchnia zabudowy
226,91 m2
Powierzchnia zajmowana przez budynek na działce. W praktyce tzw. powierzchnia rzutu budynku wyznaczana po obrysie ścian zewnętrznych.
Pełna specyfikacja
Maksymalna wysokość budynku
6,65 m
Wysokość wyznaczona od poziomu terenu do najwyżej położonej części dachu (np. kalenicy), zwykle bez uwzględnienia kominów.
Kąt nachylenia dachu
30,00°
Nachylenie połaci dachu podane w stopniach.
Minimalne wymiary działki (szerokość)
22,75 m
Szerokość działki wyznaczona przy założeniu, że minimalna odległość budynku od granic działki wynosi przynajmniej 3 m w przypadku ścian bez otworów okiennych lub drzwiowych, albo 4 m w przypadku ścian budynku z takimi otworami.
Minimalne wymiary działki (długość)
26,56 m
Długość działki wyznaczona przy założeniu, że minimalna odległość budynku od granic działki wynosi przynajmniej 3 m w przypadku ścian bez otworów okiennych lub drzwiowych, albo 4 m w przypadku ścian budynku z takimi otworami.
Technologia budowy
Murowany
Typ dachu
Wielospadowy
Kształt dachu – płaski, jednospadowy (jedna skośna połać), dwuspadowy (dwie połacie), wielospadowy (w praktyce o przynajmniej czterech połaciach).
Energooszczędność
Energooszczędny
Energooszczędny – dom o zapotrzebowaniu na tzw. nieodnawialna energię pierwotną (EP) niższym, niż wymagana przepisami maksymalna wartość.
Typ zabudowy
Jednorodzinny
Koszt: Instalacje
93 058
Łączny koszt wykonania wszystkich niezbędnych instalacji wewnętrznych – grzewczej, wentylacyjnej, wodno-kanalizacyjnej, elektrycznej itd.
Koszt: Wykoczńenie
348 000
Powierzchnia garażu
34,77 m2
Powierzchnia strychu
46,55 m2
Powierzchnia netto budynku
146,15 m2
Łączna powierzchnia wszystkich kondygnacjach obliczana z pominięciem elementów konstrukcyjnych (ściany nośne, słupy itp.) ale wraz z powierzchnią zajmowaną przez ścianki działowe lub inne elementy, które można potencjalnie zdemontować.
Powierzchnia całkowita budynku
226,91 m2
Łączna powierzchnia wszystkich kondygnacjach obliczana po obrysie ścian zewnętrznych, wraz z powierzchnią zajmowaną przez ściany wewnętrzne.
Kubatura budynku
939,00 m3
Objętość budynku, zwykle wraz z elementami konstrukcyjnymi (ścianami, stropami itd.).
Szerokość budynku
16,75 m
Maksymalna szerokość budynku wraz z grubością izolacji cieplnej oraz okładzin ściennych.
Długość budynku
18,56 m
Maksymalna długość budynku wraz z grubością izolacji cieplnej oraz okładzin ściennych.
Liczba kondygnacji
Parterowe
Za kondygnacje uznawane są również poddasza użytkowe oraz piwnice. Kondygnacją nie jest natomiast poddasze nieużytkowe ani antresola.
Koszty
Koszty budowy
740 000 zł
Koszt: Stan pod klucz
Obejmuje koszt wszystkich robót stanu surowego, wykonania instalacji wewnętrznych oraz robót wykończeniowych.
444 000 zł
Koszt: Stan surowy zamknięty
Koszt wzniesienia budynku wraz z pokryciem dachu i stolarką zewnętrzną (okna i drzwi). Bez instalacji, ocieplenia i robót wykończeniowych.
Koszty utrzymania
EP = 68,50 kWh/m2 rok
Oznacza ilość energii nieodnawialnej, jaką budynek może pozyskiwać z nieodnawialnych surowców energetycznych, czyli energii zawartej w paliwach i nośnikach takich jak węgiel, gaz czy ropa naftowa.
Opis

Projekt domu Willa parterowa 3 jest kolejną wersją wariantową domu z cieszącej się dużą popularnością serii projektów „ Willa parterowa”. Willa parterowa 3 to budynek nieco mniejszy, o węższej elewacji frontowej - nadający się na węższą działkę, z głębszą bryłą wchodzącą bardziej w ogród. Projekt przeznaczony dla 4-5osobowej rodziny, parterowy, przykryty wielospadowym dachem zbudowanym na rzucie w kształcie litery „T”. Nowoczesna architektura budynku, z ciekawymi materiałami i detalami wykończeniowymi, schowana jest pod tradycyjnym łagodnym dachem przykrytym dachówką ceramiczną. Budynek daje wrażenie porządnego i solidnego. Mimo niewielkiej powierzchni użytkowej dom sprawia wrażenie dużej willi o rozłożystej bryle. Sylwetka zewnętrza domu została uatrakcyjniona poziomymi podziałami elewacji, oraz dużymi przeszkleniami. Okna połączone z wstawkami z kontrastującego tynku i okładzinami drewnianymi lub drewnopodobnymi dodają dodatkowego sznytu. Do wnętrza wchodzimy szerokimi drzwiami z naświetlem, przez obszerny przedsionek z szafami, połączony z garażem, wprost do przestrzeni dziennej połączonych pomieszczeń salonu, holu i kuchni. Część dzienna w centralnym miejscu domu z oknami na przestrzał całego wnętrza, z widokiem zarówno na front posesji jak i taras z ogrodem to bardzo korzystne rozwiązanie. Od frontu mamy ładną kuchnię z wyspą, spiżarnią, i z dużym szerokim oknem. Od strony tarasu - ustawny salon z wygodnym stołem jadalnym i meblami wypoczynkowymi przy ścianie telewizyjno – kominkowej. Szerokie przesuwne drzwi balkonowe otwierają wnętrze na czesiowo zadaszony piękny taras. Nad częścią salonu zaprojektowano otwartą przestrzeń sufitu aż do skosu dachu, dzięki czemu pokój dzienny jest wyższy i dodatkowo doświetlony świetlikami w połaci dachu. Z salonu przedostajemy się do dwóch części z sypialniami - apartamentu państwa domu w jednym końcu budynku i pozostałymi pokojami dziecięcymi po przeciwległej stronie wnętrza. Sypialnia rodziców ma własne wejście na taras i ogród, oraz garderobę i łazienkę. Część z sypialniami dziecięcymi obejmuje trzy pokoje, łazienkę i pomieszczenie na pralkę, suszarkę, oraz kosze do prania. Całość wnętrza domyka dwustanowiskowy garaż i pomieszczenie gospodarcze kotłowni. Nad parterem zaprojektowano obszerną przestrzeń strychową, którą można w dowolny sposób zaadaptować i wykorzystać. Budynek ma dość prostą konstrukcję, a brak żelbetowego stropu płytowego nad parterem zdecydowanie uprości, przyspieszy i obniży koszt budowy.
W projekcie zastosowano bardzo dobre izolacje termiczne i nowoczesne instalacje, dzięki czemu dom będzie tani w późniejszej eksploatacji.
Willa Parterowa 3 jest świetną propozycją dla Inwestorów planujących budowę nowoczesnego, komfortowego, średniej wielkości domu parterowego, marzących o mieszkaniu na jednej kondygnacji, blisko otaczającego dom ogrodu. Zapraszamy do zapoznania się z pełną ofertą pracowni MG Projekt: https://www.mgprojekt.com.pl/willa-parterowa,  https://www.mgprojekt.com.pl/willa-parterowa-2,  https://www.mgprojekt.com.pl/willa-parterowa-2-wariant-b,  https://www.mgprojekt.com.pl/willa-parterowa-2-wariant-c, https://www.mgprojekt.com.pl/willa-parterowa-2-wariant-d,  https://www.mgprojekt.com.pl/willa-parterowa-3,  https://www.mgprojekt.com.pl/willa-parterowa-3-wariant-b,  https://www.mgprojekt.com.pl/willa-parterowa-4,  https://www.mgprojekt.com.pl/willa-parterowa-4-wariant-b,  https://www.mgprojekt.com.pl/willa-parterowa-wariant-b, https://www.mgprojekt.com.pl/willa-parterowa-wariant-c, https://www.mgprojekt.com.pl/willa-parterowa-wariant-d,  https://www.mgprojekt.com.pl/willa-parterowa-wariant-e.

CZYTAJ WIĘCEJ
Willa Parterowa 3
BD43253
Powierzchnia użytkowa
Łączna powierzchnia tzw. pomieszczeń użytkowych. Przede wszystkim nie zalicza się do niej powierzchni garażu, nieużytkowego strychu, piwnicy, kotłowni.
140,02 m2
Liczba pokoi
5
Liczba łazienek
3
Garaż
2
Powierzchnia zabudowy
Powierzchnia zajmowana przez budynek na działce. W praktyce tzw. powierzchnia rzutu budynku wyznaczana po obrysie ścian zewnętrznych.
226,91 m2
Projekt domu Willa Parterowa 3
Pobierz rysunki szczegółowe tego domu i sprawdź dokładne wymiary pomieszczeń! Wypełnij wszystkie pola, aby dostać rysunki
Administratorem Twoich danych jest AVT-Korporacja sp. z o.o. z siedzibą ul. Leszczynowa 11, 03-197 Warszawa. Chodzi o dane osobowe, które zbieramy, aby móc wysłać Ci nasze produkty (czasopisma w formie drukowanej lub elektronicznej i inne towary) oraz faktury za ich zakup. ... Chcemy przetwarzać Twoje dane osobowe w celach opisanych w naszej polityce prywatności, a w szczególności: w celu realizacji usług świadczonych w naszym sklepie internetowym oraz w innych prawnie usprawiedliwionych celach, w tym marketingu bezpośredniego naszych produktów i usług (tzw. uzasadniony interes administratora). Bez Twojej zgody nie przekażemy i nie będziemy dokonywać obrotu (nie użyczymy, nie sprzedamy) Twoich danych osobowych innym osobom lub instytucjom. Twoje dane osobowe możemy przekazać jedynie podmiotom uprawnionym do ich uzyskania na podstawie obowiązującego prawa (np. sądy lub organy ścigania) – ale tylko na ich żądanie w oparciu o stosowną podstawę prawną. Będziemy przetwarzać Twoje dane osobowe tak długo, jak będzie to niezbędne do wykonania umowy, a po tym czasie – przez okres odpowiadający okresowi przedawnienia roszczeń, jakie może podnosić administrator danych i jakie mogą być podnoszone wobec administratora danych. Masz prawo do żądania od administratora dostępu do Twoich danych, ich sprostowania, usunięcia, ograniczenia ich przetwarzania, wniesienia sprzeciwu wobec przetwarzania Twoich danych lub ich przenoszenia. W każdej chwili możesz odwołać zgodę na przetwarzanie Twoich danych osobowych oraz możesz zażądać, by Twoje wszystkie dane zostały przez nas usunięte. Podstawy prawne przetwarzania Twoich danych osobowych: art. 5, 6, art. 12, art. 13 Ogólnego rozporządzenia o ochronie danych osobowych (RODO), art. 10 Ustawy o świadczeniu usług drogą elektroniczną, Rozporządzenie Ministra Finansów w sprawie przesyłania faktur w formie elektronicznej, zasad ich przechowywania oraz trybu udostępniania organowi podatkowemu lub organowi kontroli skarbowej z dnia 20 grudnia 2012 r. (Dz.U. z 2012 r. poz. 1528) oraz zasadami wystawiania, przesyłania i przechowywania faktury elektronicznej. Czytaj dalej Zwiń
Close icon
Projekt domu Willa Parterowa 3
Pobierz rysunki szczegółowe tego domu i sprawdź dokładne wymiary pomieszczeń! Wypełnij wszystkie pola, aby dostać rysunki
Administrator danych osobowych: AVT-Korporacja sp. z o.o. z siedzibą: ul. Leszczynowa 11, 03-197 Warszawa. Cel przetwarzania danych: realizacja wysyłki newslettera ...
Przez 27 lata
z nami zbudowano 500 000 domów
Nawet, jeśli nie kupisz u nas projektu, skorzystaj z naszej wiedzy.
Przeczytaj porady zebrane w naszych publikacjach. Zamów bezpłatnie:
Prenumeratę (3 numery) magazynu Budujemy Dom
Zamów bezpłatnie
3 tomy Praktyczna Szkoła Budowania
Zamów bezpłatnie
Zapisz się do Klubu Budujących Dom by kontynuować dowolnie długą bezpłatną prenumeratę magazynu Budujemy Dom
Ostatnio oglądane
Projekt domu Willa Parterowa 3
Administratorem Twoich danych jest AVT-Korporacja sp. z o.o. z siedzibą ul. Leszczynowa 11, 03-197 Warszawa. Chodzi o dane osobowe, które zbieramy, aby móc wysłać Ci nasze produkty (czasopisma w formie drukowanej lub elektronicznej i inne towary) oraz faktury za ich zakup. ... Chcemy przetwarzać Twoje dane osobowe w celach opisanych w naszej polityce prywatności, a w szczególności: w celu realizacji usług świadczonych w naszym sklepie internetowym oraz w innych prawnie usprawiedliwionych celach, w tym marketingu bezpośredniego naszych produktów i usług (tzw. uzasadniony interes administratora). Bez Twojej zgody nie przekażemy i nie będziemy dokonywać obrotu (nie użyczymy, nie sprzedamy) Twoich danych osobowych innym osobom lub instytucjom. Twoje dane osobowe możemy przekazać jedynie podmiotom uprawnionym do ich uzyskania na podstawie obowiązującego prawa (np. sądy lub organy ścigania) – ale tylko na ich żądanie w oparciu o stosowną podstawę prawną. Będziemy przetwarzać Twoje dane osobowe tak długo, jak będzie to niezbędne do wykonania umowy, a po tym czasie – przez okres odpowiadający okresowi przedawnienia roszczeń, jakie może podnosić administrator danych i jakie mogą być podnoszone wobec administratora danych. Masz prawo do żądania od administratora dostępu do Twoich danych, ich sprostowania, usunięcia, ograniczenia ich przetwarzania, wniesienia sprzeciwu wobec przetwarzania Twoich danych lub ich przenoszenia. W każdej chwili możesz odwołać zgodę na przetwarzanie Twoich danych osobowych oraz możesz zażądać, by Twoje wszystkie dane zostały przez nas usunięte. Podstawy prawne przetwarzania Twoich danych osobowych: art. 5, 6, art. 12, art. 13 Ogólnego rozporządzenia o ochronie danych osobowych (RODO), art. 10 Ustawy o świadczeniu usług drogą elektroniczną, Rozporządzenie Ministra Finansów w sprawie przesyłania faktur w formie elektronicznej, zasad ich przechowywania oraz trybu udostępniania organowi podatkowemu lub organowi kontroli skarbowej z dnia 20 grudnia 2012 r. (Dz.U. z 2012 r. poz. 1528) oraz zasadami wystawiania, przesyłania i przechowywania faktury elektronicznej. Czytaj dalej Zwiń