Dom na Wygodnej







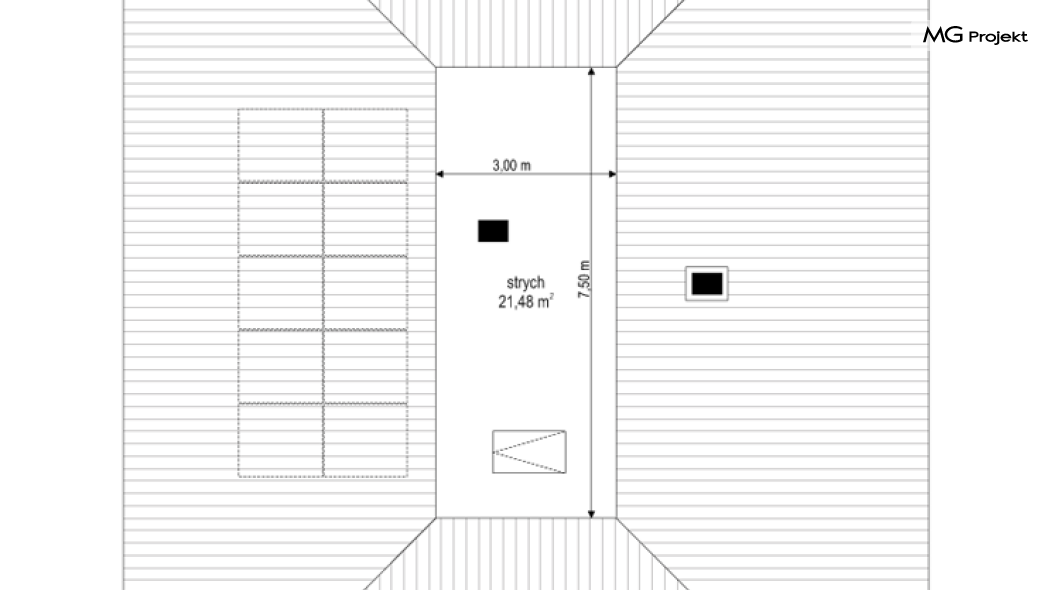
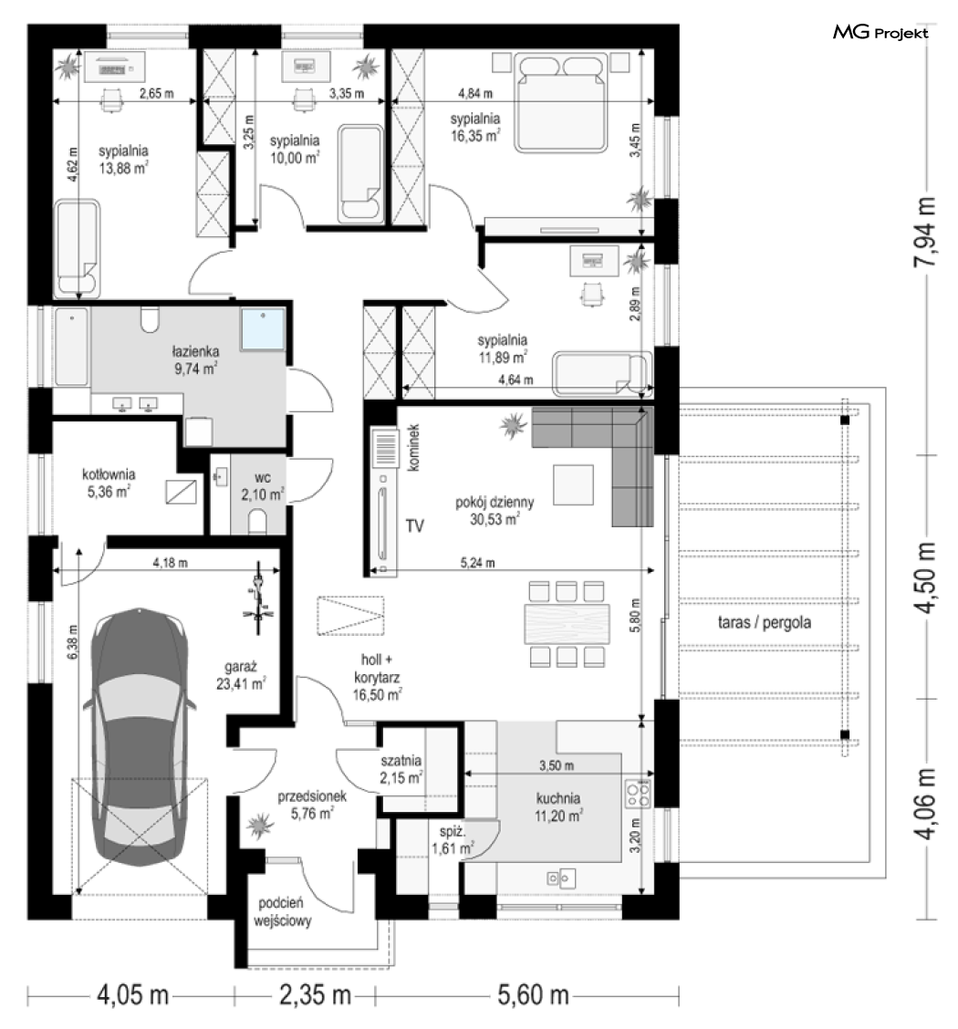
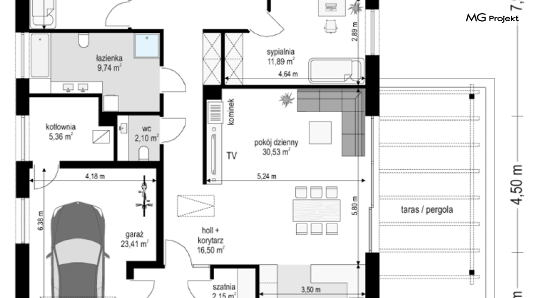
Projekt domu Dom na Wygodnej to projekt idealnej „parterówki” dla 4-5 osobowej rodziny. Dom rzeczywiście jest zaprojektowany jako bardzo wygodna komfortowa mini-willa dla Inwestorów marzących o luksusach życia na jednym poziomie - bez biegania po schodach. To propozycja dla Klientów dysponujących parcelą z ogrodem wychodzącym na stronę boczną ( na przykład w przypadku działek z niekorzystnym usytuowaniem względem stron świata i słońca ). Budynek został zaprojektowany na planie prostokąta i jest przykryty czterospadowym symetrycznym dachem krytym dachówką.Architektura domu jest spokojna i stonowana, choć dzięki właściwym proporcjom i ciekawym detalom dom ma w sobie coś co przyciąga wzrok i interesuje. Elewację frontową budynku ozdabia reprezentacyjne wejście, zaakcentowane nowoczesnym daszkiem i pięknymi szerokimi drzwiami z naświetlem, osadzonymi w kontrastującej ścianie podcienia. Elewację wychodzącą na ogród ozdabiają szerokie piękne przeszklenia salonu z przesuwnymi okiennicami-żaluzjami, oraz zadaszenie pergoli. Całość budynku wieńczy proporcjonalny dach kryjący w sobie dodatkową przestrzeń strychową do wykorzystania dla domowników. Wnętrze domu podzielone zostało tradycyjnie na część dzienną, do której dostajemy się wprost z wygodnego przedsionka z szatnią, następnie część nocną z czterema pokojami sypialnymi, oraz część gospodarczą z garażem i kotłownią. Część dzienna to salon, z wygodną kuchnią i holem, otwarty szeroko na taras i ogród, z wydzielonym narożnikiem wypoczynkowym, ze ścianą kominkowo – telewizyjną. W części nocnej w bazowej wersji projektu przewidziano cztery pokoje, ale można tą część urządzić w dowolny sposób - na przykład zmniejszając ilość sypialni do trzech i dodając dodatkową garderobę i extra łazienkę. Wnętrze domu stosownie do skali i powierzchni budynku jest bardzo funkcjonalne i komfortowe - jak na Dom na Wygodnej przystało. Budynek ma prostą bryłę i konstrukcję – będzie łatwy i szybki w budowie. Zastosowane bardzo dobre izolacje i nowoczesne instalacje dają w efekcie budynek energooszczędny - tani w późniejszej eksploatacji. Dom na Wygodnej to doskonała propozycja dla Inwestorów planujących budowę wygodnego parterowego domu o stonowanej nowoczesnej architekturze.
-
Projekt szamba szczelnego0 zł399 zł
-
Charakterystyka energetyczna0 zł200 zł
-
Pakiet energooszczędny0 zł150 zł
-
Dziennik budowy0 zł60 zł
-
Tablica budowy0 zł120 zł
-
Wersja elektroniczna projektu550 zł
-
Pakiet kosztorys inwestorski550 zł
-
Pakiet ogrzewanie podłogowe470 zł
-
Powietrzna pompa ciepła470 zł
-
Pakiet wentylacja mechaniczna i kominek DGP470 zł
-
Dodatkowy egzemplarz projektu500 zł
-
Pakiet kotłownia na paliwo stałe470 zł
-
Pakiet instalacja fotowoltaiczna470 zł
-
Pakiet klimatyzacja w domu470 zł
-
Pakiet gruntowa pompa ciepła470 zł
-
Pakiet odkurzacz centralny470 zł
-
Pakiet płaszcz wodny470 zł
-
Pakiet kominek DGP399 zł
-
Projekty altan i grillów ogrodowych650 zł
-
Pakiet instalacja solarna470 zł

opieką konsultacyjną w trakcie budowy domu