Dom na Praktycznej






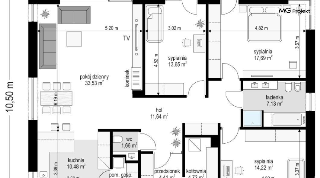
Projekt domu Dom na Praktycznej to projekt parterowego domu jednorodzinnego dla 3-4 osobowej rodziny. Budynek zaprojektowano na planie prostokąta, przykrytego łagodnym dwuspadowym dachem z blachą na rąbek stojący, w modnej stylistyce domu-stodoły, z maksymalnie skróconymi okapami. Prostota architektury, połączona z ciekawymi detalami i konsekwentną, pełną kontrastów kolorystyką, tworzy bardzo interesujący nowoczesny wygląd domu. Budynek sprawia ważenie solidnego, przemyślanego i wykonanego z porządnych materiałów. Front domu ma reprezentacyjne wejście z szerokimi drzwiami z naświetlem bocznym. Podest wejściowy przykrywa ciekawe zadaszenie w kształcie litery „L”. Narożne okno kuchni dodatkowo ozdabia elewację, dając fajny efekt we wnętrzu. Elewację tylną domu dominuje szerokie przeszklenie z salonu na ogród i taras, z zadaszeniem nad tarasem w formie pergoli lub terasoli. Wnętrze zaprojektowano z zachowaniem podziału na część dzienną i nocną. Do środka wchodzimy ładnym przedsionkiem z szafami wprost do holu, z niego rozchodzimy się do części dziennej z salonem i kuchnią, oraz do sypialni domowników. Połączona przestrzeń dzienna składająca się a salonu i kuchni mieści w sobie cześć wypoczynkową z siedziskami i ścianą kominkowo – telewizyjną, kąt jadalny z wygodnym stołem i kuchnię oddzieloną półwyspem (lub wyspą ) - ze ścianą w pełnej zabudowie i spiżarnią. Część nocna domu to trzy wygodne sypialnie z dużymi zabudowanymi szafami, oraz duża łazienka. Z przedsionka dodatkowo mamy przejście do pomieszczenia gospodarczego kotłowni. Cały program funkcjonalny budynku przewidziano na jednym poziomie parteru, ale powyżej właściciele mają jeszcze dostęp do niemałej przestrzeni strychowej, która może być zagospodarowana jako domowy magazyn, ale może też być zaadaptowana na poddasze – wedle inwencji mieszkańców. Konstrukcja domu jest bardzo prosta - cały rzut zamknięty jest czterema zewnętrznymi ścianami. Konstrukcja dachu i stropu wykonana jest z wiązarów prefabrykowanych. Najprościej, najpraktyczniej i najtaniej jak to tylko możliwe.
Budynek jest zaprojektowany jako energooszczędny - dzięki bardzo dobrym ociepleniom i nowoczesnym instalacjom, koszty utrzymania domu będą minimalne. „Dom na Praktycznej” to praktyczna i sensowna propozycja dla Inwestorów planujących budowę zgrabnego, ładnego i nie za dużego domu jednorodzinnego, który będzie łatwy i niedrogi w budowie i tani w późniejszym utrzymaniu. Zapraszamy!
