Dom na Praktycznej 2






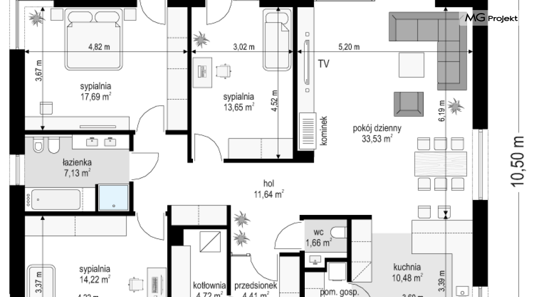
Projekt domu Dom na Praktycznej 2 to projekt parterowego domu jednorodzinnego z serii „Praktycznych”. Budynek zaprojektowano na planie prostokąta, przykrytego łagodnym dwuspadowym dachem przykrytym dachówką.Prosta nowoczesna bryła budynku, połączona z ciekawymi detalami i dobrze dobranymi materiałami i kolorystyką, tworzą udane połączenie i ładny wygląd zewnętrzny domu. Budynek jest estetyczny, czysty i solidny. Patrząc na niego odczuwamy spokój i poczucie harmonii. Front domu ozdabia reprezentacyjne wejście z drzwiami z naświetlem i fajnym designeskim zadaszeniem podestu wejściowego. Od strony ogrodu pierwsze skrzypce gra piękne okno salonu otwierające wnętrze na taras, oraz zadaszenie w postaci pergoli ( lub tarasoli ). Kontrastowe połączenie okładzin ścian, ładnych przeszkleń okiennych z bielą elewacji daje w efekcie ciekawą, elegancką sylwetkę domu. Wnętrze zaprojektowano z zachowaniem podziału na część dzienną i nocną. Do domu dostajemy się przez duży przedsionek wprost do holu, z którego przechodzimy do części dziennej z salonem i kuchnią, lub do sypialni domowników. Otwarta przestrzeń dzienna salonu i kuchni mieści w sobie cześć wypoczynkową z siedziskami i ścianą kominkowo – telewizyjną, jadalnię z wygodnym stołem i pięknym oknem do podłogi i kuchnię z półwyspem (lub wyspą ), pełną zabudową i spiżarnią. Część prywatna domowników trzy wygodne sypialnie z dużymi zabudowanymi szafami, oraz duża łazienka. Z sypialni rodziców możemy wyjść dodatkowym drzwiami balkonowymi na taras – na poranną kawkę. Obok przedsionka znajduje się pomieszczenie gospodarcze kotłowni. Całość wnętrza budynku przewidziano na jednym poziomie parteru, ale powyżej właściciele mają jeszcze dostęp do przestrzeni strychowej, która może być zagospodarowana jako domowy magazyn, lub jako poddasze – wedle inwencji mieszkańców. Konstrukcja domu jest prosta - cały rzut zamykają cztery ściany zewnętrzne, a konstrukcja dachu i stropu wykonana jest z wiązarów prefabrykowanych - czyli najprościej i najpraktyczniej jak to możliwe. Budynek jest zaprojektowany jako energooszczędny - dzięki bardzo dobrym ociepleniom i nowoczesnym instalacjom, koszty utrzymania domu będą minimalne. „Dom na Praktycznej 2 ” to praktyczna i bardzo sensowna propozycja dla Inwestorów planujących budowę ładnego, eleganckiego, ale nie za dużego domu jednorodzinnego, który będzie łatwy i niedrogi w budowie i tani w późniejszym utrzymaniu. Zapraszamy!
-
Projekt szamba szczelnego0 zł399 zł
-
Charakterystyka energetyczna0 zł200 zł
-
Pakiet energooszczędny0 zł150 zł
-
Dziennik budowy0 zł60 zł
-
Tablica budowy0 zł120 zł
-
Wersja elektroniczna projektu550 zł
-
Pakiet kosztorys inwestorski550 zł
-
Pakiet ogrzewanie podłogowe470 zł
-
Powietrzna pompa ciepła470 zł
-
Pakiet wentylacja mechaniczna i kominek DGP470 zł
-
Dodatkowy egzemplarz projektu500 zł
-
Pakiet kotłownia na paliwo stałe470 zł
-
Pakiet instalacja fotowoltaiczna470 zł
-
Pakiet klimatyzacja w domu470 zł
-
Pakiet gruntowa pompa ciepła470 zł
-
Pakiet odkurzacz centralny470 zł
-
Pakiet płaszcz wodny470 zł
-
Pakiet kominek DGP399 zł
-
Projekty altan i grillów ogrodowych650 zł
-
Pakiet instalacja solarna470 zł

opieką konsultacyjną w trakcie budowy domu