Dom na Przytulnej 2







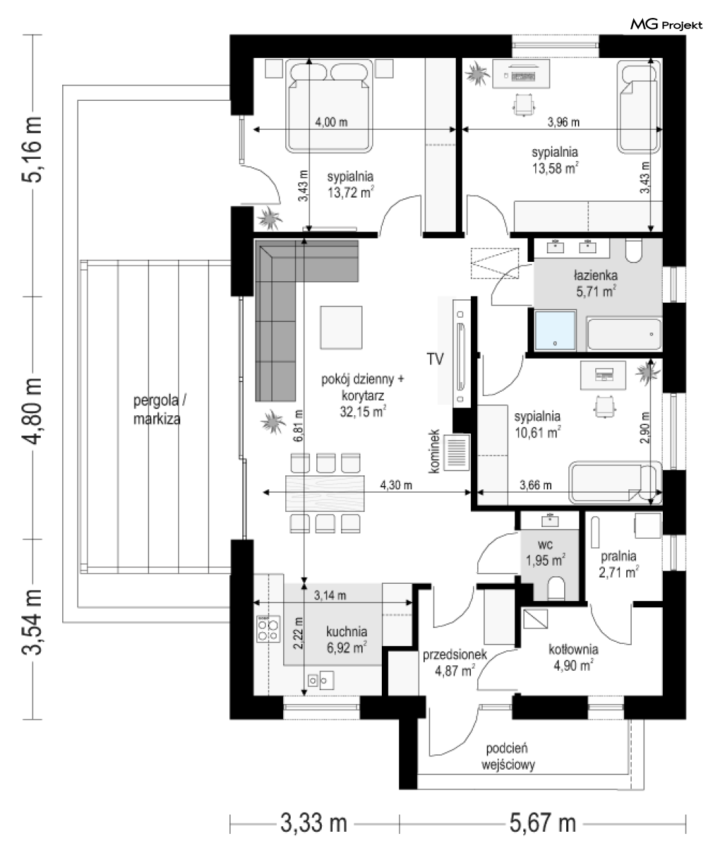
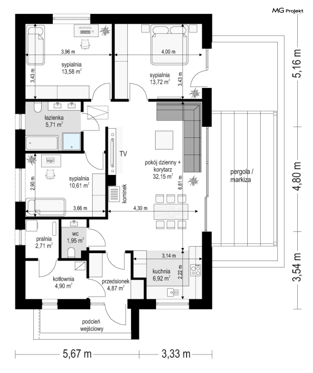
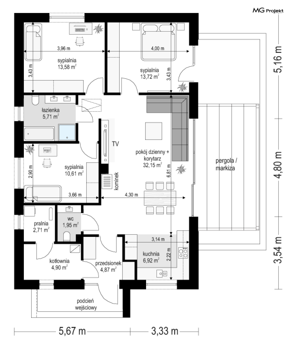
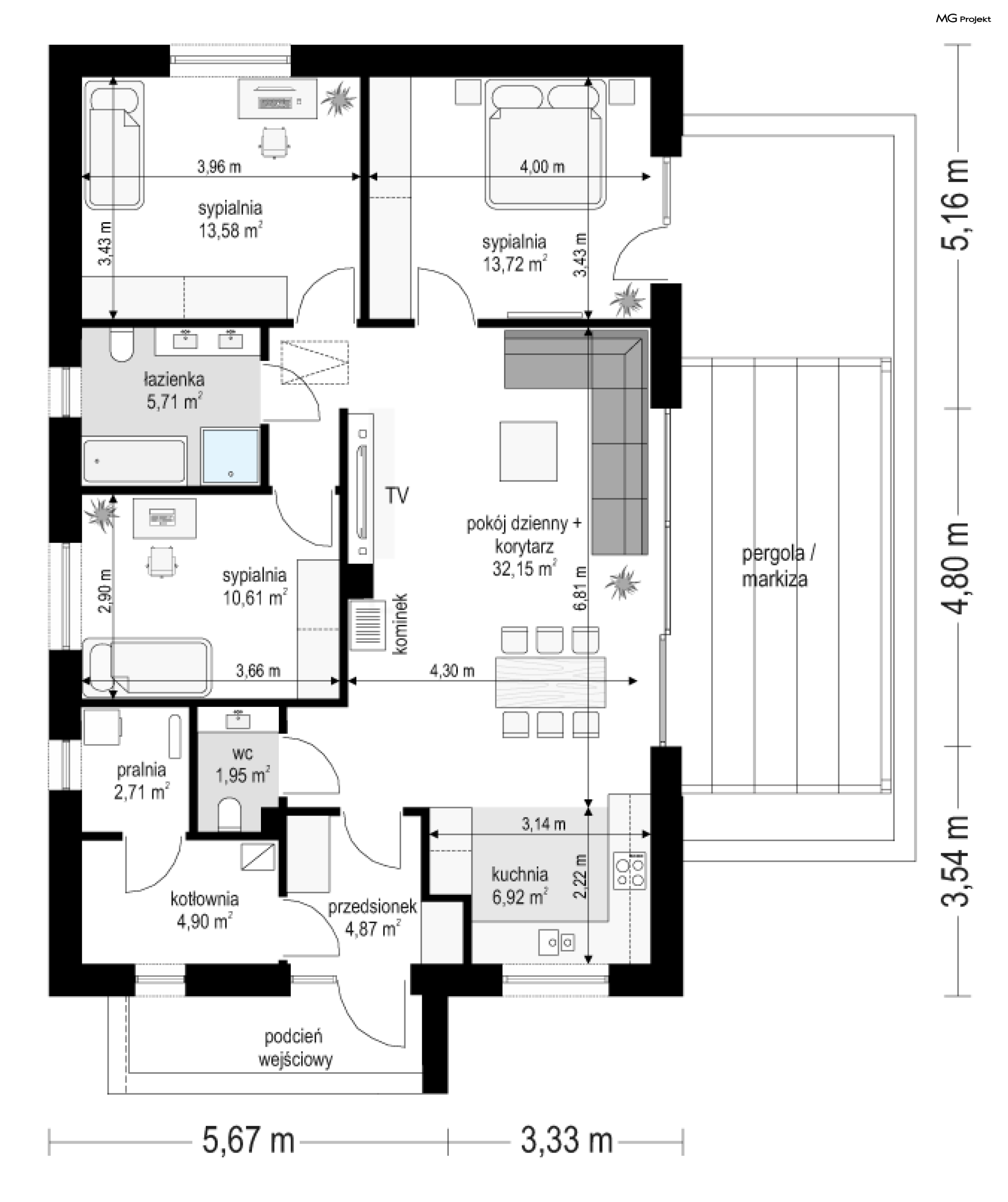
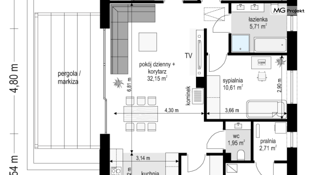
Projekt domu Dom na Przytulnej 2 to kolejna propozycja projektu niewielkiego parterowego domu z serii „przytulnych” - tym razem budynek dla 4-osobowej rodziny, na prostokątnym planie, przykryty czterospadowym dachem krytym dachówką. Cały program użytkowy domu mieści się na jednej kondygnacji. Głównym założeniem projektu jest funkcjonalność budynku, oraz jego późniejsze bezproblemowa użytkowanie. Architektura budynku jest nowoczesna, z atrakcyjną kolorystyką i zastosowanymi nowoczesnymi materiałami. Oszczędny detal, brak zbędnych ozdób i udziwnień, daje w efekcie prosty i elegancji wygląd zewnętrzny domu. Elewacja frontowa urozmaicona została reprezentacyjnym wejściem z zadaszeniem, z drzwiami z bocznym naświetlem i okładziną nawiązującą do podziałów na skrzydle drzwi. Od strony elewacji ogrodowej dominują szerokie drzwi balkonowe łączące salon z tarasem, oraz konstrukcja pergoli z odsuwaną markizą – zadaszeniem ( tarasolą). Wnętrze domu zaprojektowano z podziałem na otwartą przestrzeń dzienną, z salonem i kuchnią, oraz część z trzema sypialniami i łazienką. Przy strefie wejściowej umieszczono dodatkowo dwa pomieszczenia techniczne dostępne z przedsionka - kotłownię i pralnię /suszarnię. W salonie mamy szeroką ścianę telewizyjno – kominkową, zestaw mebli wypoczynkowych i jadalnię z wygodnym stołem, a nade wszystko szerokie otwarcie drzwiami balkonowymi na taras i otaczający dom ogród. Z sypialni rodziców również zaprojektowano dodatkowe drzwi balkonowe na taras - miejsce spożywania porannej kawy. „Dom na Przytulnej 2” to budynek o prostej konstrukcji. Całą bryłę udało się zamknąć czterema ścianami zewnętrznymi - prościej się nie da. Parter domu zwieńczony jest czterospadowym dachem w konstrukcji z wiązarów, z przestrzenią strychową jako domowym magazynem rzeczy mniej i bardziej potrzebnych. Budynek jest energooszczędny, bardzo dobrze ocieplony i wyposażony w nowoczesne instalacje, dzięki czemu będzie tani w utrzymaniu. Łatwa konstrukcja domu uprości i przyspieszy budowę, oraz ułatwi późniejszą eksploatację i serwisowanie budynku. „Dom na Przytulnej 2 ” to propozycja niedużego niedrogiego domu, dla Inwestorów nie planujących wydać ostatnich pieniędzy w swoim życiu na budowę, chcących mieszkać komfortowo i swobodnie w swoim upragnionym domku.
-
Projekt szamba szczelnego0 zł399 zł
-
Charakterystyka energetyczna0 zł200 zł
-
Pakiet energooszczędny0 zł150 zł
-
Dziennik budowy0 zł60 zł
-
Tablica budowy0 zł120 zł
-
Wersja elektroniczna projektu550 zł
-
Pakiet kosztorys inwestorski550 zł
-
Pakiet ogrzewanie podłogowe470 zł
-
Powietrzna pompa ciepła470 zł
-
Pakiet wentylacja mechaniczna i kominek DGP470 zł
-
Dodatkowy egzemplarz projektu500 zł
-
Pakiet kotłownia na paliwo stałe470 zł
-
Pakiet instalacja fotowoltaiczna470 zł
-
Pakiet klimatyzacja w domu470 zł
-
Pakiet gruntowa pompa ciepła470 zł
-
Pakiet odkurzacz centralny470 zł
-
Pakiet płaszcz wodny470 zł
-
Pakiet kominek DGP399 zł
-
Projekty altan i grillów ogrodowych650 zł
-
Pakiet instalacja solarna470 zł

opieką konsultacyjną w trakcie budowy domu