22 257 84 76 pon-pt: 9-17
Menu

Belfast III (DCP268b)

Dodaj do porównania Usuń z porównania
Dodaj do ulubionych Usuń z ulubionych
Code icon
Lustrzane odbicie
Pow. użytkowa:
132.49m2
Pow. zabudowy:
135.88m2
Koszt budowy:
675000zł
Liczba pokoi:
5
Liczba łazienek:
2
Garaż:
2
Rzuty Elewacja Specyfikacja techniczna Koszty Opis
Share icon
Rzuty
Belfast III (DCP268b)
Lustrzane odbicie
Rzut parteru
133.71 m2
Wiatrołap
6.61 m2
Komunikacja
4.05 m2
Schody
2.51 m2
Spiżarnia
1.35 m2
Kuchnia
9.79 m2
Salon, jadalnia
27.78 m2
Pokój
10.47 m2
Łazienka
3.27 m2
Kotłownia
5.75 m2
Pom.pomocnicze
4.08 m2
Garaż
31.8 m2
Podest
5.02 m2
Podest
1.34 m2
Taras
19.89 m2
Pobierz rysunki szczegółowe
Zapytaj, co możesz zmienić
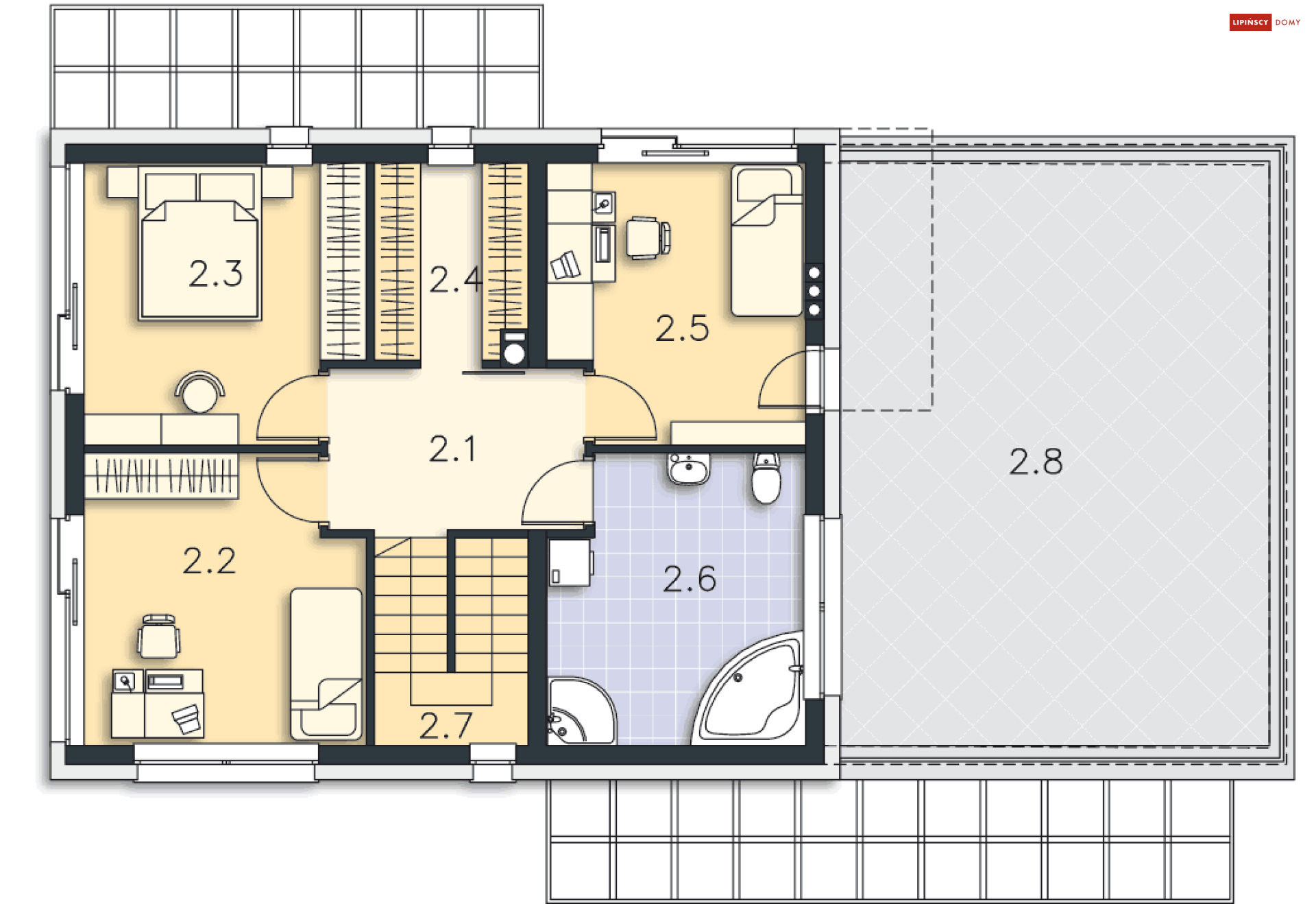
Belfast III (DCP268b)
Lustrzane odbicie
Rzut I piętra
109.03 m2
Komunikacja
7.21 m2
Pokój
13.14 m2
Pokój
12.63 m2
Garderoba
4.9 m2
Pokój
11.49 m2
Łazienka
11.96 m2
Schody
5.33 m2
Taras
42.37 m2
Pobierz rysunki szczegółowe
Zapytaj, co możesz zmienić
Belfast III (DCP268b)
Lustrzane odbicie
Pobierz rysunki szczegółowe
Zapytaj, co możesz zmienić
Zamów rysunki szczegółowe
Zapoznaj się ze szczegółowymi rysunkami rzutów kondygnacji w PDF dla tego projektu.
ZAMAWIAM
Order drawings image
Elewacje
Belfast III (DCP268b)
Frontowa
Belfast III (DCP268b)
Ogrodowa
Belfast III (DCP268b)
Lewa
Belfast III (DCP268b)
Prawa
Specyfikacja techniczna
Główne parametry
Powierzchnia użytkowa
132,49 m2
Łączna powierzchnia tzw. pomieszczeń użytkowych. Przede wszystkim nie zalicza się do niej powierzchni garażu, nieużytkowego strychu, piwnicy, kotłowni.
Liczba pokoi
5
Liczba łazienek
2
Garaż
2
Powierzchnia zabudowy
135,88 m2
Powierzchnia zajmowana przez budynek na działce. W praktyce tzw. powierzchnia rzutu budynku wyznaczana po obrysie ścian zewnętrznych.
Pełna specyfikacja
Maksymalna wysokość budynku
6,99 m
Wysokość wyznaczona od poziomu terenu do najwyżej położonej części dachu (np. kalenicy), zwykle bez uwzględnienia kominów.
Kąt nachylenia dachu
1,20°
Nachylenie połaci dachu podane w stopniach.
Minimalne wymiary działki (szerokość)
24,20 m
Szerokość działki wyznaczona przy założeniu, że minimalna odległość budynku od granic działki wynosi przynajmniej 3 m w przypadku ścian bez otworów okiennych lub drzwiowych, albo 4 m w przypadku ścian budynku z takimi otworami.
Minimalne wymiary działki (długość)
19,70 m
Długość działki wyznaczona przy założeniu, że minimalna odległość budynku od granic działki wynosi przynajmniej 3 m w przypadku ścian bez otworów okiennych lub drzwiowych, albo 4 m w przypadku ścian budynku z takimi otworami.
Technologia budowy
Murowany
Typ dachu
Płaski
Kształt dachu – płaski, jednospadowy (jedna skośna połać), dwuspadowy (dwie połacie), wielospadowy (w praktyce o przynajmniej czterech połaciach).
Energooszczędność
Energooszczędny
Energooszczędny – dom o zapotrzebowaniu na tzw. nieodnawialna energię pierwotną (EP) niższym, niż wymagana przepisami maksymalna wartość.
Typ zabudowy
Jednorodzinny
Powierzchnia netto budynku
217,59 m2
Łączna powierzchnia wszystkich kondygnacjach obliczana z pominięciem elementów konstrukcyjnych (ściany nośne, słupy itp.) ale wraz z powierzchnią zajmowaną przez ścianki działowe lub inne elementy, które można potencjalnie zdemontować.
Kubatura budynku
788,00 m3
Objętość budynku, zwykle wraz z elementami konstrukcyjnymi (ścianami, stropami itd.).
Ściany zewnętrzne (materiały)
Bloczek silikatowy 24 cm + styropian 20 cm
Pokrycie dachu
stropodach gęstożebrowy
EUCO (energia użytkowa)
21,11 kWh/m2 rok
Sposób ogrzewania
c.o. grzejnikowe + c.w.u. - kocioł gazowy
W stylu
Nowoczesnym
Liczba kondygnacji
Piętrowe
Za kondygnacje uznawane są również poddasza użytkowe oraz piwnice. Kondygnacją nie jest natomiast poddasze nieużytkowe ani antresola.
Koszty
Koszty budowy
675 000 zł
Koszt: Stan pod klucz
Obejmuje koszt wszystkich robót stanu surowego, wykonania instalacji wewnętrznych oraz robót wykończeniowych.
395 000 zł
Koszt: Stan surowy zamknięty
Koszt wzniesienia budynku wraz z pokryciem dachu i stolarką zewnętrzną (okna i drzwi). Bez instalacji, ocieplenia i robót wykończeniowych.
Koszty utrzymania
EP = 38,45 kWh/m2 rok
Oznacza ilość energii nieodnawialnej, jaką budynek może pozyskiwać z nieodnawialnych surowców energetycznych, czyli energii zawartej w paliwach i nośnikach takich jak węgiel, gaz czy ropa naftowa.
Opis
Nowoczesny dom z płaskim dachem, z dużymi przeszkleniami, nadającymi bryle lekkości i elegancji. Funkcjonalne wnętrze – parter i poddasze podzielono na strefę dzienną i nocną. Mieszkańcy mogą wspólnie spędzać czas w połączonym z kuchnią salonie, a gdy chcą nieco spokoju, mają do dyspozycji trzy zlokalizowane na parterze sypialnie. Oprócz tych pomieszczeń, jest do ich dyspozycji także osobna sypialnia na parterze, dwie łazienki, garderoba i duży, nowoczesny taras na dachu garażu.
Belfast III (DCP268b)
BD44045
Powierzchnia użytkowa
Łączna powierzchnia tzw. pomieszczeń użytkowych. Przede wszystkim nie zalicza się do niej powierzchni garażu, nieużytkowego strychu, piwnicy, kotłowni.
132,49 m2
Liczba pokoi
5
Liczba łazienek
2
Garaż
2
Powierzchnia zabudowy
Powierzchnia zajmowana przez budynek na działce. W praktyce tzw. powierzchnia rzutu budynku wyznaczana po obrysie ścian zewnętrznych.
135,88 m2
Projekt domu Belfast III (DCP268b)
Pobierz rysunki szczegółowe tego domu i sprawdź dokładne wymiary pomieszczeń! Wypełnij wszystkie pola, aby dostać rysunki
Administratorem Twoich danych jest AVT-Korporacja sp. z o.o. z siedzibą ul. Leszczynowa 11, 03-197 Warszawa. Chodzi o dane osobowe, które zbieramy, aby móc wysłać Ci nasze produkty (czasopisma w formie drukowanej lub elektronicznej i inne towary) oraz faktury za ich zakup. ... Chcemy przetwarzać Twoje dane osobowe w celach opisanych w naszej polityce prywatności, a w szczególności: w celu realizacji usług świadczonych w naszym sklepie internetowym oraz w innych prawnie usprawiedliwionych celach, w tym marketingu bezpośredniego naszych produktów i usług (tzw. uzasadniony interes administratora). Bez Twojej zgody nie przekażemy i nie będziemy dokonywać obrotu (nie użyczymy, nie sprzedamy) Twoich danych osobowych innym osobom lub instytucjom. Twoje dane osobowe możemy przekazać jedynie podmiotom uprawnionym do ich uzyskania na podstawie obowiązującego prawa (np. sądy lub organy ścigania) – ale tylko na ich żądanie w oparciu o stosowną podstawę prawną. Będziemy przetwarzać Twoje dane osobowe tak długo, jak będzie to niezbędne do wykonania umowy, a po tym czasie – przez okres odpowiadający okresowi przedawnienia roszczeń, jakie może podnosić administrator danych i jakie mogą być podnoszone wobec administratora danych. Masz prawo do żądania od administratora dostępu do Twoich danych, ich sprostowania, usunięcia, ograniczenia ich przetwarzania, wniesienia sprzeciwu wobec przetwarzania Twoich danych lub ich przenoszenia. W każdej chwili możesz odwołać zgodę na przetwarzanie Twoich danych osobowych oraz możesz zażądać, by Twoje wszystkie dane zostały przez nas usunięte. Podstawy prawne przetwarzania Twoich danych osobowych: art. 5, 6, art. 12, art. 13 Ogólnego rozporządzenia o ochronie danych osobowych (RODO), art. 10 Ustawy o świadczeniu usług drogą elektroniczną, Rozporządzenie Ministra Finansów w sprawie przesyłania faktur w formie elektronicznej, zasad ich przechowywania oraz trybu udostępniania organowi podatkowemu lub organowi kontroli skarbowej z dnia 20 grudnia 2012 r. (Dz.U. z 2012 r. poz. 1528) oraz zasadami wystawiania, przesyłania i przechowywania faktury elektronicznej. Czytaj dalej Zwiń
Close icon
Projekt domu Belfast III (DCP268b)
Pobierz rysunki szczegółowe tego domu i sprawdź dokładne wymiary pomieszczeń! Wypełnij wszystkie pola, aby dostać rysunki
Administrator danych osobowych: AVT-Korporacja sp. z o.o. z siedzibą: ul. Leszczynowa 11, 03-197 Warszawa. Cel przetwarzania danych: realizacja wysyłki newslettera ...
Przez 27 lata
z nami zbudowano 500 000 domów
Nawet, jeśli nie kupisz u nas projektu, skorzystaj z naszej wiedzy.
Przeczytaj porady zebrane w naszych publikacjach. Zamów bezpłatnie:
Prenumeratę (3 numery) magazynu Budujemy Dom
Zamów bezpłatnie
3 tomy Praktyczna Szkoła Budowania
Zamów bezpłatnie
Zapisz się do Klubu Budujących Dom by kontynuować dowolnie długą bezpłatną prenumeratę magazynu Budujemy Dom
Ostatnio oglądane
Projekt domu Belfast III (DCP268b)
Administratorem Twoich danych jest AVT-Korporacja sp. z o.o. z siedzibą ul. Leszczynowa 11, 03-197 Warszawa. Chodzi o dane osobowe, które zbieramy, aby móc wysłać Ci nasze produkty (czasopisma w formie drukowanej lub elektronicznej i inne towary) oraz faktury za ich zakup. ... Chcemy przetwarzać Twoje dane osobowe w celach opisanych w naszej polityce prywatności, a w szczególności: w celu realizacji usług świadczonych w naszym sklepie internetowym oraz w innych prawnie usprawiedliwionych celach, w tym marketingu bezpośredniego naszych produktów i usług (tzw. uzasadniony interes administratora). Bez Twojej zgody nie przekażemy i nie będziemy dokonywać obrotu (nie użyczymy, nie sprzedamy) Twoich danych osobowych innym osobom lub instytucjom. Twoje dane osobowe możemy przekazać jedynie podmiotom uprawnionym do ich uzyskania na podstawie obowiązującego prawa (np. sądy lub organy ścigania) – ale tylko na ich żądanie w oparciu o stosowną podstawę prawną. Będziemy przetwarzać Twoje dane osobowe tak długo, jak będzie to niezbędne do wykonania umowy, a po tym czasie – przez okres odpowiadający okresowi przedawnienia roszczeń, jakie może podnosić administrator danych i jakie mogą być podnoszone wobec administratora danych. Masz prawo do żądania od administratora dostępu do Twoich danych, ich sprostowania, usunięcia, ograniczenia ich przetwarzania, wniesienia sprzeciwu wobec przetwarzania Twoich danych lub ich przenoszenia. W każdej chwili możesz odwołać zgodę na przetwarzanie Twoich danych osobowych oraz możesz zażądać, by Twoje wszystkie dane zostały przez nas usunięte. Podstawy prawne przetwarzania Twoich danych osobowych: art. 5, 6, art. 12, art. 13 Ogólnego rozporządzenia o ochronie danych osobowych (RODO), art. 10 Ustawy o świadczeniu usług drogą elektroniczną, Rozporządzenie Ministra Finansów w sprawie przesyłania faktur w formie elektronicznej, zasad ich przechowywania oraz trybu udostępniania organowi podatkowemu lub organowi kontroli skarbowej z dnia 20 grudnia 2012 r. (Dz.U. z 2012 r. poz. 1528) oraz zasadami wystawiania, przesyłania i przechowywania faktury elektronicznej. Czytaj dalej Zwiń