Belfast IX (DCP268h)
Dodaj do porównania
Usuń z porównania
Dodaj do ulubionych
Usuń z ulubionych
Pow. użytkowa:
123.98m2
Pow. zabudowy:
129.92m2
Koszt budowy:
615000zł
Liczba pokoi:
5
Liczba łazienek:
2
Garaż:
2
Rzuty

Lustrzane odbicie
Rzut parteru
125 m2
Wiatrołap
3.27 m2
Komunikacja
2.7 m2
Schowek
1.42 m2
Aneks kuchenny
7.51 m2
Pokój dzienny
27.65 m2
Pokój
12.26 m2
Łazienka
3.02 m2
Pom.gosp.
2.68 m2
Kotłownia
2.84 m2
Garaż
35.9 m2
Podest
5.29 m2
Taras
20.46 m2
Pobierz rysunki szczegółowe
Zapytaj, co możesz zmienić

Lustrzane odbicie
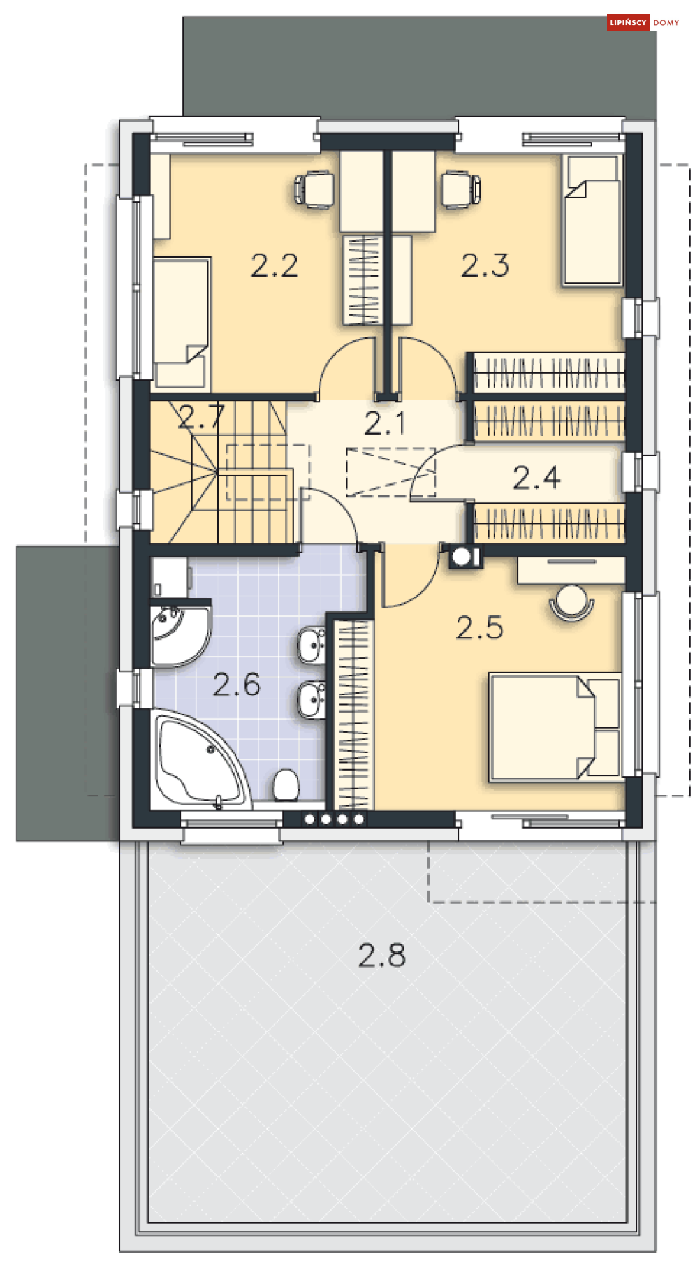
Rzut I piętra
102.53 m2
Komunikacja
5.41 m2
Pokój
12.11 m2
Pokój
12.05 m2
Garderoba
4.65 m2
Pokój
15.23 m2
Łazienka
9.95 m2
Schody
4.07 m2
Taras
39.06 m2
Pobierz rysunki szczegółowe
Zapytaj, co możesz zmienić

Lustrzane odbicie
Pobierz rysunki szczegółowe
Zapytaj, co możesz zmienić
Zamów rysunki szczegółowe
Zapoznaj się ze szczegółowymi rysunkami rzutów kondygnacji w PDF dla tego projektu.
ZAMAWIAM

Elewacje

Frontowa

Ogrodowa

Lewa

Prawa
Specyfikacja techniczna
Główne parametry
Powierzchnia użytkowa
123,98 m2
Łączna powierzchnia tzw. pomieszczeń użytkowych. Przede wszystkim nie zalicza się do niej powierzchni garażu, nieużytkowego strychu, piwnicy, kotłowni.
Liczba pokoi
5
Liczba łazienek
2
Garaż
2
Powierzchnia zabudowy
129,92 m2
Powierzchnia zajmowana przez budynek na działce. W praktyce tzw. powierzchnia rzutu budynku wyznaczana po obrysie ścian zewnętrznych.
Pełna specyfikacja
Maksymalna wysokość budynku
8,69 m
Wysokość wyznaczona od poziomu terenu do najwyżej położonej części dachu (np. kalenicy), zwykle bez uwzględnienia kominów.
Kąt nachylenia dachu
30,00°
Nachylenie połaci dachu podane w stopniach.
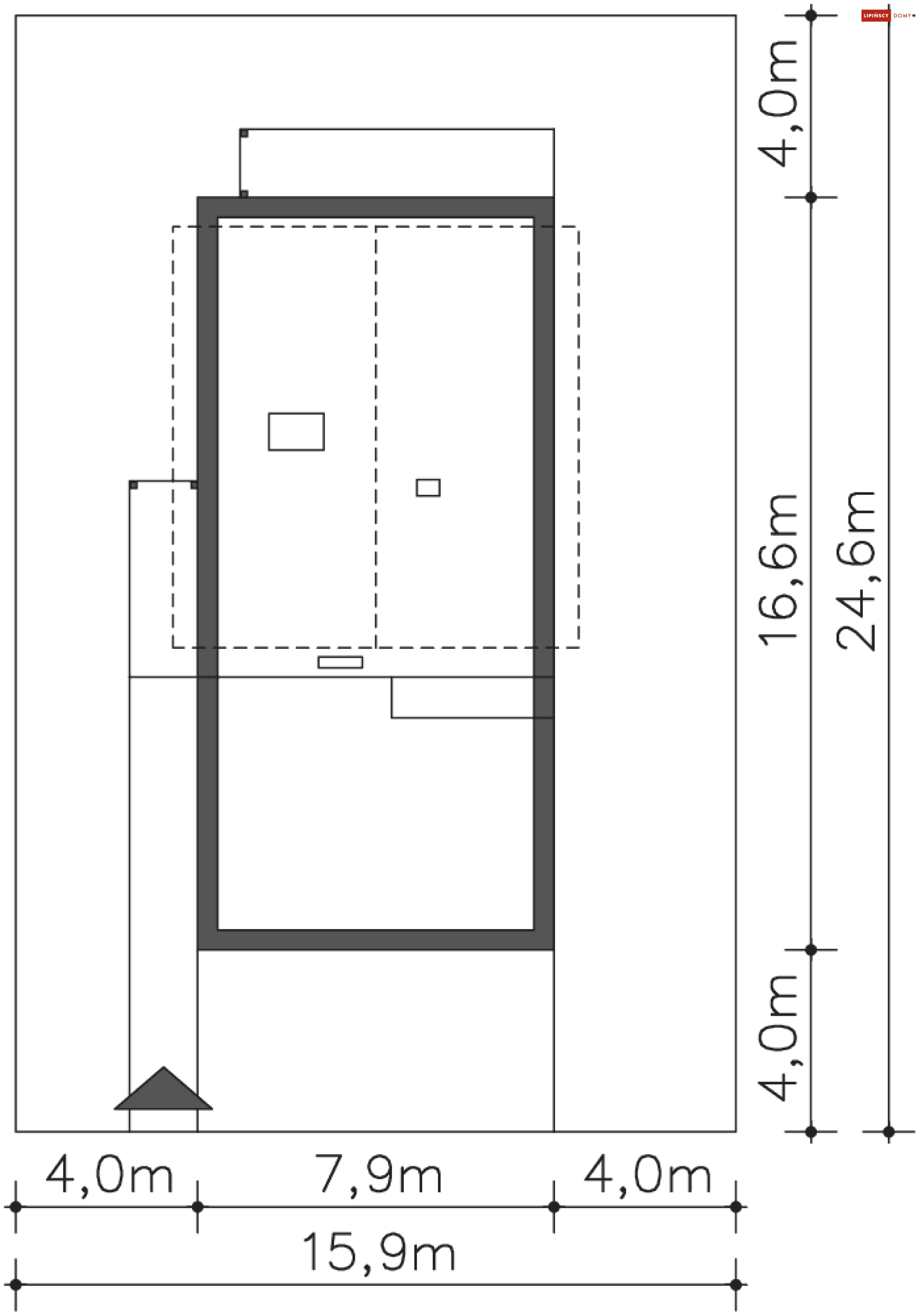
Minimalne wymiary działki (szerokość)
15,90 m
Szerokość działki wyznaczona przy założeniu, że minimalna odległość budynku od granic działki wynosi przynajmniej 3 m w przypadku ścian bez otworów okiennych lub drzwiowych, albo 4 m w przypadku ścian budynku z takimi otworami.
Minimalne wymiary działki (długość)
24,60 m
Długość działki wyznaczona przy założeniu, że minimalna odległość budynku od granic działki wynosi przynajmniej 3 m w przypadku ścian bez otworów okiennych lub drzwiowych, albo 4 m w przypadku ścian budynku z takimi otworami.
Technologia budowy
Murowany
Typ dachu
Dwuspadowy
Kształt dachu – płaski, jednospadowy (jedna skośna połać), dwuspadowy (dwie połacie), wielospadowy (w praktyce o przynajmniej czterech połaciach).
Energooszczędność
Energooszczędny
Energooszczędny – dom o zapotrzebowaniu na tzw. nieodnawialna energię pierwotną (EP) niższym, niż wymagana przepisami maksymalna wartość.
Typ zabudowy
Jednorodzinny
Powierzchnia netto budynku
202,40 m2
Łączna powierzchnia wszystkich kondygnacjach obliczana z pominięciem elementów
konstrukcyjnych (ściany nośne, słupy itp.) ale wraz z powierzchnią zajmowaną przez ścianki działowe lub inne elementy, które można potencjalnie zdemontować.
Kubatura budynku
814,00 m3
Objętość budynku, zwykle wraz z elementami konstrukcyjnymi (ścianami, stropami itd.).
Strop
gęstożebrowy
Pokrycie dachu
wiązary prefabrykowane
EUCO (energia użytkowa)
22,82 kWh/m2 rok
Sposób ogrzewania
c.o. grzejnikowe + c.w.u. - kocioł gazowy
W stylu
Nowoczesnym
Liczba kondygnacji
Piętrowe
Za kondygnacje uznawane są również poddasza użytkowe oraz piwnice. Kondygnacją nie jest natomiast poddasze nieużytkowe ani antresola.
Koszty
Koszty budowy
615 000 zł
Koszt: Stan pod klucz
Obejmuje koszt wszystkich robót stanu surowego, wykonania instalacji wewnętrznych oraz robót wykończeniowych.
360 000 zł
Koszt: Stan surowy zamknięty
Koszt wzniesienia budynku wraz z pokryciem dachu i stolarką zewnętrzną (okna i drzwi). Bez instalacji, ocieplenia i robót wykończeniowych.
Koszty utrzymania
EP = 65,73 kWh/m2 rok
Oznacza ilość energii nieodnawialnej, jaką budynek może pozyskiwać z nieodnawialnych surowców energetycznych, czyli energii zawartej w paliwach i nośnikach takich jak węgiel, gaz czy ropa naftowa.
Opis
Szukasz funkcjonalnego domu piętrowego o nowoczesnej bryle, ale z dachem dwuspadowym? Zwróć uwagę na kolejnego Belfasta w naszej kolekcji, który dzięki usytuowanemu od frontu garażowi można wybudować nawet na wąskiej działce. Obszerny, doświetlony dużymi przeszkleniami salon z kominkiem otwiera się na ogród, a zlokalizowana obok kuchnia sprzyja wspólnemu gotowaniu. Dzięki osobnemu pokojowi na parterze zapewnisz swoim gościom wygodny nocleg, a trzy sypialnie na piętrze oraz wygodna duża łazienka pozwalają odizolować część wspólną od prywatnej.

Belfast IX (DCP268h)
BD44261
Powierzchnia użytkowa
Łączna powierzchnia tzw. pomieszczeń użytkowych. Przede wszystkim nie zalicza się do niej powierzchni garażu, nieużytkowego strychu, piwnicy, kotłowni.
123,98 m2
Liczba pokoi
5
Liczba łazienek
2
Garaż
2
Powierzchnia zabudowy
Powierzchnia zajmowana przez budynek na działce. W praktyce tzw. powierzchnia rzutu budynku wyznaczana po obrysie ścian zewnętrznych.
129,92 m2
Inne wersje projektu
PODOBNE PROJEKTY
