Temerin (DCP313)
Dodaj do porównania
Usuń z porównania
Dodaj do ulubionych
Usuń z ulubionych
Pow. użytkowa:
114.69m2
Pow. zabudowy:
125.08m2
Koszt budowy:
569000zł
Liczba pokoi:
5
Liczba łazienek:
2
Garaż:
2
Rzuty

Lustrzane odbicie
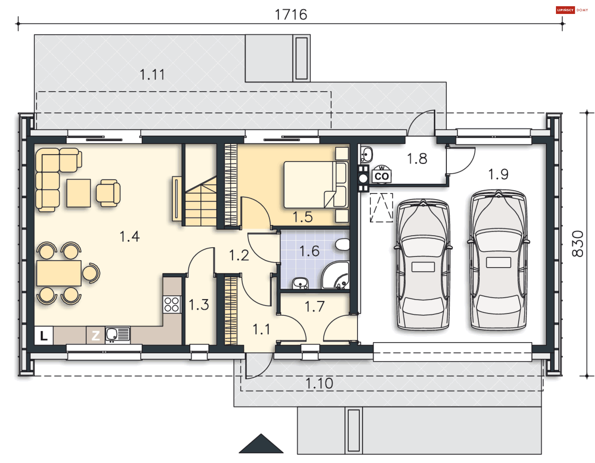
Rzut parteru
136.36 m2
Wiatrołap
3.53 m2
Komunikacja
4.31 m2
Spiżarnia
2.11 m2
Salon z kuchnią
28.29 m2
Pokój
10.16 m2
Łazienka
4.15 m2
Pom.gosp.
3.59 m2
Kotłownia
3.19 m2
Garaż
33.13 m2
Podest
14.5 m2
Taras
29.4 m2
Pobierz rysunki szczegółowe
Zapytaj, co możesz zmienić

Lustrzane odbicie
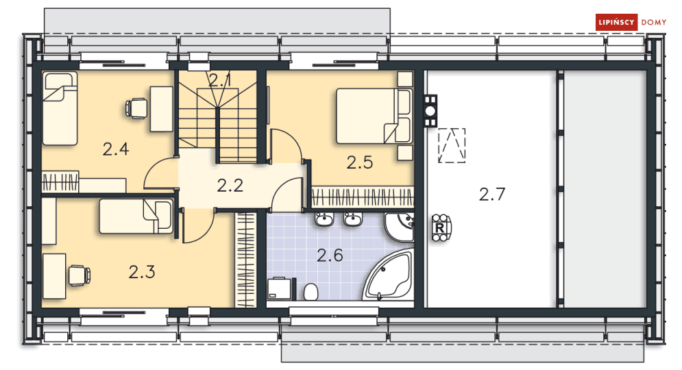
Rzut poddasza
64.97 m2
Schody
4.61 m2
Komunikacja
4.55 m2
Pokój
15.78 m2
Pokój
11.46 m2
Pokój
12.94 m2
Łazienka
9.21 m2
Strych
6.42 m2
Pobierz rysunki szczegółowe
Zapytaj, co możesz zmienić

Lustrzane odbicie
Pobierz rysunki szczegółowe
Zapytaj, co możesz zmienić
Zamów rysunki szczegółowe
Zapoznaj się ze szczegółowymi rysunkami rzutów kondygnacji w PDF dla tego projektu.
ZAMAWIAM

Elewacje

Frontowa

Ogrodowa

Lewa

Prawa
Specyfikacja techniczna
Główne parametry
Powierzchnia użytkowa
114,69 m2
Łączna powierzchnia tzw. pomieszczeń użytkowych. Przede wszystkim nie zalicza się do niej powierzchni garażu, nieużytkowego strychu, piwnicy, kotłowni.
Liczba pokoi
5
Liczba łazienek
2
Garaż
2
Powierzchnia zabudowy
125,08 m2
Powierzchnia zajmowana przez budynek na działce. W praktyce tzw. powierzchnia rzutu budynku wyznaczana po obrysie ścian zewnętrznych.
Pełna specyfikacja
Maksymalna wysokość budynku
7,66 m
Wysokość wyznaczona od poziomu terenu do najwyżej położonej części dachu (np. kalenicy), zwykle bez uwzględnienia kominów.
Kąt nachylenia dachu
20,00°
Nachylenie połaci dachu podane w stopniach.
Minimalne wymiary działki (szerokość)
23,20 m
Szerokość działki wyznaczona przy założeniu, że minimalna odległość budynku od granic działki wynosi przynajmniej 3 m w przypadku ścian bez otworów okiennych lub drzwiowych, albo 4 m w przypadku ścian budynku z takimi otworami.
Minimalne wymiary działki (długość)
17,30 m
Długość działki wyznaczona przy założeniu, że minimalna odległość budynku od granic działki wynosi przynajmniej 3 m w przypadku ścian bez otworów okiennych lub drzwiowych, albo 4 m w przypadku ścian budynku z takimi otworami.
Technologia budowy
Murowany
Typ dachu
Dwuspadowy
Kształt dachu – płaski, jednospadowy (jedna skośna połać), dwuspadowy (dwie połacie), wielospadowy (w praktyce o przynajmniej czterech połaciach).
Energooszczędność
Energooszczędny
Energooszczędny – dom o zapotrzebowaniu na tzw. nieodnawialna energię pierwotną (EP) niższym, niż wymagana przepisami maksymalna wartość.
Typ zabudowy
Jednorodzinny
Powierzchnia netto budynku
173,93 m2
Łączna powierzchnia wszystkich kondygnacjach obliczana z pominięciem elementów
konstrukcyjnych (ściany nośne, słupy itp.) ale wraz z powierzchnią zajmowaną przez ścianki działowe lub inne elementy, które można potencjalnie zdemontować.
Kubatura budynku
721,00 m3
Objętość budynku, zwykle wraz z elementami konstrukcyjnymi (ścianami, stropami itd.).
Ściany zewnętrzne (materiały)
Bloczek silikatowy 24 cm + styropian 20 cm
Strop
gęstożebrowy
Pokrycie dachu
tradycyjna więźba ciesielska
EUCO (energia użytkowa)
24,53 kWh/m2 rok
Sposób ogrzewania
c.o. grzejnikowe + c.w.u. - kocioł gazowy
W stylu
Nowoczesnym
Liczba kondygnacji
Z poddaszem użytkowym
Za kondygnacje uznawane są również poddasza użytkowe oraz piwnice. Kondygnacją nie jest natomiast poddasze nieużytkowe ani antresola.
Koszty
Koszty budowy
569 000 zł
Koszt: Stan pod klucz
Obejmuje koszt wszystkich robót stanu surowego, wykonania instalacji wewnętrznych oraz robót wykończeniowych.
333 000 zł
Koszt: Stan surowy zamknięty
Koszt wzniesienia budynku wraz z pokryciem dachu i stolarką zewnętrzną (okna i drzwi). Bez instalacji, ocieplenia i robót wykończeniowych.
Koszty utrzymania
EP = 69,90 kWh/m2 rok
Oznacza ilość energii nieodnawialnej, jaką budynek może pozyskiwać z nieodnawialnych surowców energetycznych, czyli energii zawartej w paliwach i nośnikach takich jak węgiel, gaz czy ropa naftowa.
Opis
Mocna bryła tego energooszczędnego domu już z daleka przyciąga wzrok. Niestandardowe potraktowanie dachu i ścian, jako osłony domu jest uzasadnione funkcjonalnie i energooszczędnie. Ponadto zapewnia ciągłość izolacji bez mostków termicznych. Wnętrze domu natomiast to czytelny układ pomieszczeń z przestronną strefą dzienną i dodatkowym pokojem dostosowanym do potrzeb osoby niepełnosprawnej. Część techniczna została wydzielona z domu i umieszczona w strefie zadaszenia nad garażem. Do garażu można przejść bezpośrednio z domu. Charakterystycznym elementem domu są także fasadowe żaluzje wielkogabarytowe, z możliwością regulacji kąta nachylenia paneli przy oknach. Ich rysunek jest mocno widoczny na elewacji i nadaje domu nowoczesnego charakteru. W domu zastosowano także szereg elementów znacznie obniżających zapotrzebowanie na energię do ogrzewania, zatem projekt uzyskał znakomity wynik, kwalifikujący ten dom do programu dopłat NFOŚiGW.
CZYTAJ WIĘCEJ

Temerin (DCP313)
BD44082
Powierzchnia użytkowa
Łączna powierzchnia tzw. pomieszczeń użytkowych. Przede wszystkim nie zalicza się do niej powierzchni garażu, nieużytkowego strychu, piwnicy, kotłowni.
114,69 m2
Liczba pokoi
5
Liczba łazienek
2
Garaż
2
Powierzchnia zabudowy
Powierzchnia zajmowana przez budynek na działce. W praktyce tzw. powierzchnia rzutu budynku wyznaczana po obrysie ścian zewnętrznych.
125,08 m2