Eryk III (wiązary)







W projekcie zastosowano systemy zabudowy ścian
działowych i sufitów podwieszanych Rigips. Więźba dachowa w systemie dachu prefabrykowanego w systemie płytki kolczastej MITEK.
Charakterystyka: dom parterowy,
niepodpiwniczony
Przeznaczenie: dom dla 3-4-osobowej
rodziny
Technologia i konstrukcja:
Fundamenty: ławy, bloczki betonowe 24
cm, ocieplenie styropian 15 cm
Ściany zewnętrzne: murowane,
dwuwarstwowe, beton komórkowy 24 cm, ocieplenie 20 cm
Ściany wewnętrzne: ścianki działowe w systemie suchej zabudowy Rigips
12 cm
Podłoga na gruncie: płyta
betonowa, ocieplenie styropian 15 cm
Strop: pas dolny wiązara stanowi konstrukcję, sufit
podwieszony Rigips
Dach: wiązary drewniane prefabrykowane, ocieplenie
wełna mineralna 30 cm,
dachówka ceramiczna Röben
Rozwiązania instalacyjne:
Ogrzewanie: kocioł gazowy kondensacyjny firmy Viessman, rozprowadzenie ciepła: grzejniki
Wentylacja: grawitacyjna
OZE: kolektory słoneczne
Wykończenie:
Elewacja: okładzina klinkierowa Röben i
drewniana
Stolarka: drewniana, PCV lub
aluminiowa, drzwi wejściowe firmy Hörmann
Wersje - zapytaj o dostępność:
- Eryk III G1 - z garażem jednostanowiskowym
- Eryk – podobny układ funkcjonalny, tradycyjna
więźba dachowa, bez garażu lub z garażem jednostanowiskowym
- Eryk (z wiatą) - taki sam układ funkcjonalny,
tradycyjna więźba dachowa, z wiatą samochodową
- Eryk II - podobny układ funkcjonalny, tradycyjna
więźba dachowa, różne wersje garaży
- Eryk IV ECONOMIC - podobny układ
funkcjonalny, standard ociepleń ENERGO, tradycyjna więźba dachowa, bez garażu i
z garażem jednostanowiskowym
- Eryk MULTI-COMFORT - dom z
rozwiązaniami materiałowo-technologicznymi Grupy Saint-Gobain, podobny układ funkcjonalny, tradycyjna
więźba dachowa, bez garażu i z garażem jednostanowiskowym
- Eryk ENERGO PLUS - instalacje
energooszczędne: pompa ciepła, ogrzewanie podłogowe, wentylacja mechaniczna z
rekuperacją firmy Zehnder, system solarny, taki sam układ funkcjonalny, standard
ociepleń ENERGO, tradycyjna więźba dachowa, bez garażu i z garażem
jednostanowiskowym
Wersje z
dachem o kącie nachylenia 30°:
- Eryk (30 stopni), Eryk z wiatą (30 stopni)
- Eryk G1 (30 stopni), Eryk G1
MULTI-COMFORT (30 stopni)
- Eryk II G1 (30 stopni)
- każda wersja z
inną propozycją wykończenia elewacji
- odbicie
lustrzane do każdej wersji
Istnieje techniczna możliwość:
- podpiwniczenia
- zbliźniaczenia
- zmiany kąta nachylenia dachu do 30° i adaptacji poddasza na strych
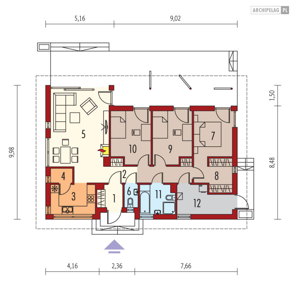
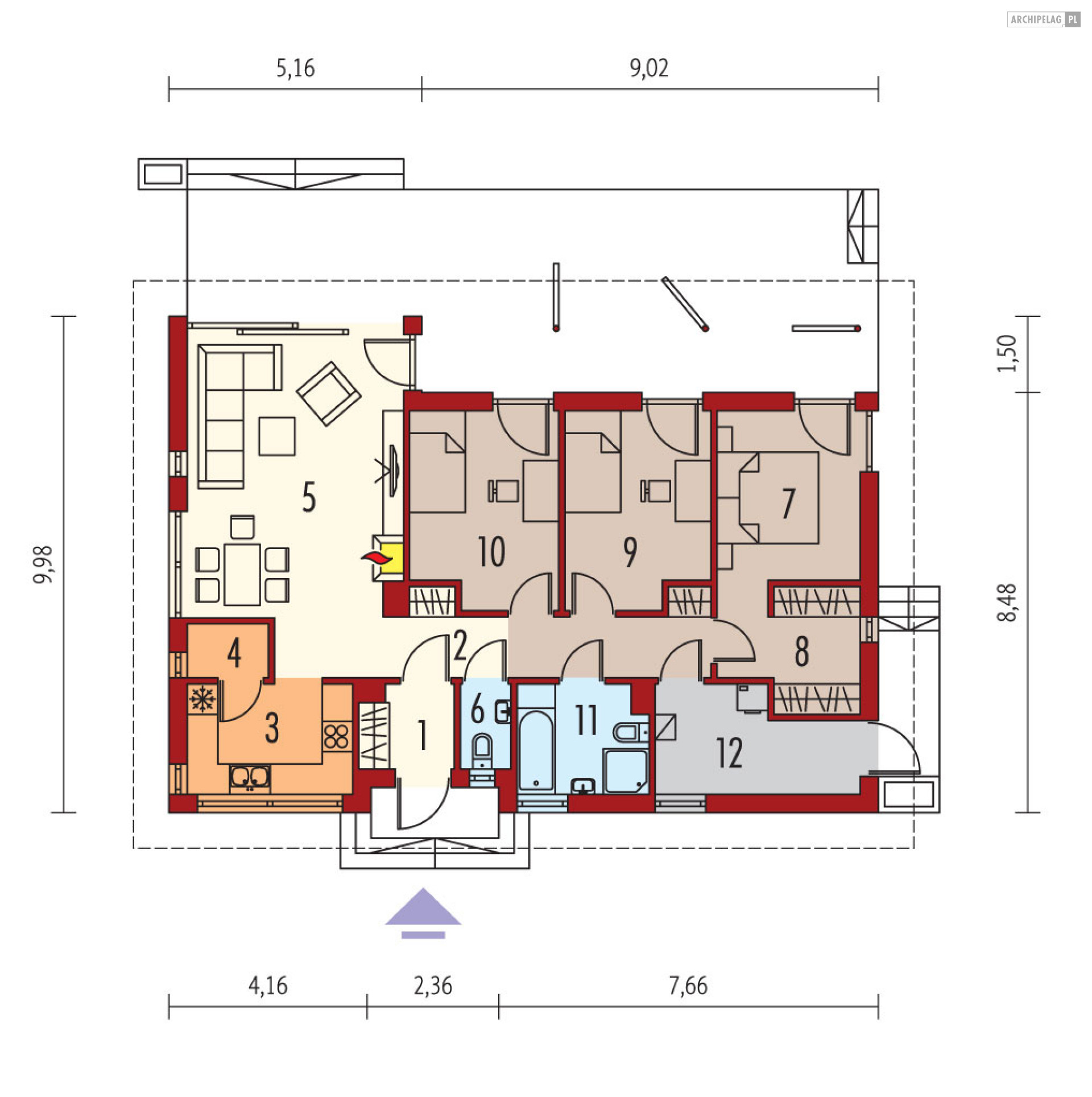
Atuty projektu okiem architekta:
-
Czytelny i funkcjonalny układ wnętrza, z podziałem na strefę dzienną i nocną
-
Duże przeszklenia w salonie oraz w jadalni z widokiem na otaczającą zieleń
-
Sypialnia główna z własną, obszerną garderobą doświetloną oknem
-
Taras dostępny z salonu i wszystkich sypialni
-
Ruchome żaluzje drewniane zapewniające dodatkowe zacienienie sypialni w upalne
dni
-
Duża, przechodnia kotłownia z miejscem na pralnię, umożliwiająca zastosowanie
dowolnego źródła ogrzewania
-
Ścianki działowe wykonane w technologii lekkiej – swoboda w aranżacji wnętrza
- Szybkie
w montażu, prefabrykowane elementy dachu, stanowiące jednocześnie
konstrukcję stropu, eliminują konieczność ponoszenia kosztów związanych
ze stawianiem ścian nośnych, fundamentów oraz stropu żelbetowego nad
parterem
-
Zmiany w projekcie0 zł
-
Teczka na dokumentację0 zł
-
1800 na start1 800 zł
-
Kosztorysy do projektów1 200 zł
-
Wentylacja mechaniczna1 000 zł
-
Pompa ciepła700 zł
-
Panele fotowoltaiczne500 zł
-
Ogrzewanie podłogowe700 zł
-
Centralny odkurzacz200 zł
-
Inteligentny dom400 zł
-
Oczyszczalnia ścieków300 zł
-
Szambo przydomowe200 zł
-
Ogrodzenie domu350 zł
-
Zagospodarowanie wody deszczowej300 zł
-
Dziennik budowy9,90 zł

opieką konsultacyjną w trakcie budowy domu