22 257 84 76 pon-pt: 9-17
Menu

Flori III ECONOMIC (wersja A) 30 stopni

Dodaj do porównania Usuń z porównania
Dodaj do ulubionych Usuń z ulubionych
Code icon
Lustrzane odbicie
Pow. użytkowa:
116.67m2
Koszt budowy:
570000zł
Liczba pokoi:
4
Liczba łazienek:
2
Rzuty Elewacja Specyfikacja techniczna Koszty Opis
Share icon
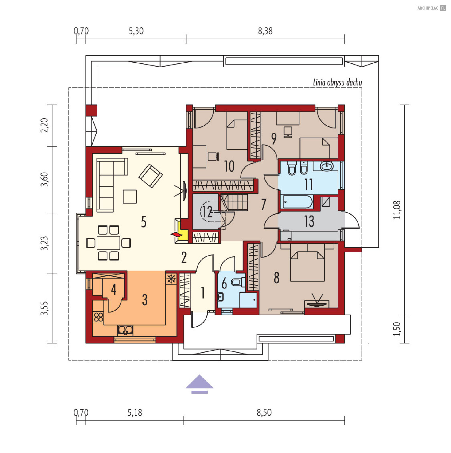
Rzuty
Flori III ECONOMIC (wersja A) 30 stopni
Lustrzane odbicie
Rzut parteru
122.02 m2
Wiatrołap
3.49 m2
Hol
4.94 m2
Kuchnia
12.39 m2
Spiżarnia
2.07 m2
Pokój dzienny + jadalnia
33.02 m2
Łazienka
2.87 m2
Korytarz
11.07 m2
Sypialnia
15.44 m2
Sypialnia
11.66 m2
Sypialnia
11.97 m2
Łazienka
6.57 m2
Schowek
1.18 m2
Kotłownia
5.35 m2
Pobierz rysunki szczegółowe
Zapytaj, co możesz zmienić
Flori III ECONOMIC (wersja A) 30 stopni
Lustrzane odbicie
Pobierz rysunki szczegółowe
Zapytaj, co możesz zmienić
Flori III ECONOMIC (wersja A) 30 stopni
Lustrzane odbicie
Pobierz rysunki szczegółowe
Zapytaj, co możesz zmienić
Zamów rysunki szczegółowe
Zapoznaj się ze szczegółowymi rysunkami rzutów kondygnacji w PDF dla tego projektu.
ZAMAWIAM
Order drawings image
Elewacje
Flori III ECONOMIC (wersja A) 30 stopni
Frontowa
Flori III ECONOMIC (wersja A) 30 stopni
Ogrodowa
Flori III ECONOMIC (wersja A) 30 stopni
Lewa
Flori III ECONOMIC (wersja A) 30 stopni
Prawa
Specyfikacja techniczna
Główne parametry
Powierzchnia użytkowa
116,67 m2
Łączna powierzchnia tzw. pomieszczeń użytkowych. Przede wszystkim nie zalicza się do niej powierzchni garażu, nieużytkowego strychu, piwnicy, kotłowni.
Liczba pokoi
4
Liczba łazienek
2
Pełna specyfikacja
Maksymalna wysokość budynku
7,34 m
Wysokość wyznaczona od poziomu terenu do najwyżej położonej części dachu (np. kalenicy), zwykle bez uwzględnienia kominów.
Kąt nachylenia dachu
30,00°
Nachylenie połaci dachu podane w stopniach.
Minimalne wymiary działki (szerokość)
22,38 m
Szerokość działki wyznaczona przy założeniu, że minimalna odległość budynku od granic działki wynosi przynajmniej 3 m w przypadku ścian bez otworów okiennych lub drzwiowych, albo 4 m w przypadku ścian budynku z takimi otworami.
Minimalne wymiary działki (długość)
20,58 m
Długość działki wyznaczona przy założeniu, że minimalna odległość budynku od granic działki wynosi przynajmniej 3 m w przypadku ścian bez otworów okiennych lub drzwiowych, albo 4 m w przypadku ścian budynku z takimi otworami.
Technologia budowy
Murowany
Typ dachu
Wielospadowy
Kształt dachu – płaski, jednospadowy (jedna skośna połać), dwuspadowy (dwie połacie), wielospadowy (w praktyce o przynajmniej czterech połaciach).
Energooszczędność
Standardowy
Energooszczędny – dom o zapotrzebowaniu na tzw. nieodnawialna energię pierwotną (EP) niższym, niż wymagana przepisami maksymalna wartość.
Koszt: Instalacje
40 208
Łączny koszt wykonania wszystkich niezbędnych instalacji wewnętrznych – grzewczej, wentylacyjnej, wodno-kanalizacyjnej, elektrycznej itd.
Powierzchnia netto budynku
214,55 m2
Łączna powierzchnia wszystkich kondygnacjach obliczana z pominięciem elementów konstrukcyjnych (ściany nośne, słupy itp.) ale wraz z powierzchnią zajmowaną przez ścianki działowe lub inne elementy, które można potencjalnie zdemontować.
Powierzchnia całkowita budynku
151,56 m2
Łączna powierzchnia wszystkich kondygnacjach obliczana po obrysie ścian zewnętrznych, wraz z powierzchnią zajmowaną przez ściany wewnętrzne.
Kubatura budynku
574,97 m3
Objętość budynku, zwykle wraz z elementami konstrukcyjnymi (ścianami, stropami itd.).
Szerokość budynku
14,38 m
Maksymalna szerokość budynku wraz z grubością izolacji cieplnej oraz okładzin ściennych.
Długość budynku
12,58 m
Maksymalna długość budynku wraz z grubością izolacji cieplnej oraz okładzin ściennych.
Liczba kondygnacji
Parterowe
Za kondygnacje uznawane są również poddasza użytkowe oraz piwnice. Kondygnacją nie jest natomiast poddasze nieużytkowe ani antresola.
Koszty
Koszty budowy
570 000 zł
Koszt: Stan pod klucz
Obejmuje koszt wszystkich robót stanu surowego, wykonania instalacji wewnętrznych oraz robót wykończeniowych.
339 000 zł
Koszt: Stan surowy zamknięty
Koszt wzniesienia budynku wraz z pokryciem dachu i stolarką zewnętrzną (okna i drzwi). Bez instalacji, ocieplenia i robót wykończeniowych.
Koszty utrzymania
EP = 66,41 kWh/m2 rok
Oznacza ilość energii nieodnawialnej, jaką budynek może pozyskiwać z nieodnawialnych surowców energetycznych, czyli energii zawartej w paliwach i nośnikach takich jak węgiel, gaz czy ropa naftowa.
Opis

Uwaga! Przedstawione wizualizacje prezentują wersję domu z dachem o kącie nachylenia 28°. Dach o kącie nachylenia 30° może się od niego nieznacznie różnić.

Charakterystyka: Dom parterowy z poddaszem do późniejszej adaptacji na cele mieszkalne, niepodpiwniczony
Przeznaczenie: Dom dla 3-4-osobowej rodziny

Technologia i konstrukcja:
Ściany zewnętrzne:
murowane, dwuwarstwowe, beton komórkowy 24 cm, ocieplenie styropian Termo Organika 12 cm
Ściany wewnętrzne: nośne i działowe murowane, cegła wapienno-piaskowa 24 cm i 12 cm
Strop: gęstożebrowy Teriva
Dach: konstrukcja drewniana, ocieplenie wełna mineralna firmy Isover 28 cm, dachówka ceramiczna firmy Röben, więźba dachowa dostępna również w systemie prefabrykacji drewnianej
Inne: schody wewnętrzne drewniane

Rozwiązania instalacyjne:
Ogrzewanie: kocioł gazowy kondensacyjny firmy Viessmann, rozprowadzenie ciepła: grzejniki firmy Purmo
Wentylacja: grawitacyjna
OZE: kolektory słoneczne firmy Viessmann

Wykończenie:
Elewacje:
tynk cienkowarstwowy mineralny w kolorze białym TO-PA 001 z palety firmy Termo Organika, okładzina drewniana
Stolarka: drewniana, PVC lub aluminiowa
Otoczenie: płyty tarasowe firmy Libet, system tarasowy ProDeck - deska kompozytowa Terra w kolorze orzech

Wersje -zapytaj o dostępność:
- Flori III ECONOMIC (wersja A) 30 stopni – z garażem jedno- i dwustanowiskowym
- Flori II (30 stopni) - podobny układ funkcji, bez garażu
- Flori III (30 stopni), Flori III G2 (30 stopni) - bez garażu i z garażem dwustanowiskowym

Wersje domów z dachami o mniejszym kącie nachylenia:
Flori – inny układ funkcjonalny, kąt nachylenia dachu 25/22°, bez schodów i strychu, inna forma wykusza, różne wersje garaży
Flori II – podobny układ funkcjonalny, kąt nachylenia dachu 22°, inna forma wykusza, różne wersje garaży
Flori III – podobny układ funkcji, kąt nachylenia dachu 28°, różne wersje garaży
Flori III G1 (wersja B) Leca® DOM – dom w technologii Leca® KERAMZYTU, różne wersje garaży
Flori III ECONOMIC (wersja A) – kąt nachylenia dachu 28°, różne wersje garaży

– Każda wersja z inna propozycją wykończenia elewacji
– Odbicia lustrzane do wszystkich wersji

Wszystkie wersje domów możliwe w dwóch standardach/wariantach instalacyjnych:
- ENERGO: kocioł gazowy kondensacyjny, grzejniki, wentylacja grawitacyjna, OZE: kolektory słoneczne
- ENERGO PLUS: pompa ciepła, ogrzewanie podłogowe, wentylacja mechaniczna, OZE: kolektory słoneczne lub panele fotowoltaiczne

Istnieje techniczna możliwość:
- podpiwniczenia budynku
- wykonania budynku w technologii szkieletowej
- dokonania zmian funkcjonalnych wg indywidualnych wymagań

CZYTAJ WIĘCEJ
Flori III ECONOMIC (wersja A) 30 stopni
BD44502
Powierzchnia użytkowa
Łączna powierzchnia tzw. pomieszczeń użytkowych. Przede wszystkim nie zalicza się do niej powierzchni garażu, nieużytkowego strychu, piwnicy, kotłowni.
116,67 m2
Liczba pokoi
4
Liczba łazienek
2
Projekt domu Flori III ECONOMIC (wersja A) 30 stopni
Pobierz rysunki szczegółowe tego domu i sprawdź dokładne wymiary pomieszczeń! Wypełnij wszystkie pola, aby dostać rysunki
Administratorem Twoich danych jest AVT-Korporacja sp. z o.o. z siedzibą ul. Leszczynowa 11, 03-197 Warszawa. Chodzi o dane osobowe, które zbieramy, aby móc wysłać Ci nasze produkty (czasopisma w formie drukowanej lub elektronicznej i inne towary) oraz faktury za ich zakup. ... Chcemy przetwarzać Twoje dane osobowe w celach opisanych w naszej polityce prywatności, a w szczególności: w celu realizacji usług świadczonych w naszym sklepie internetowym oraz w innych prawnie usprawiedliwionych celach, w tym marketingu bezpośredniego naszych produktów i usług (tzw. uzasadniony interes administratora). Bez Twojej zgody nie przekażemy i nie będziemy dokonywać obrotu (nie użyczymy, nie sprzedamy) Twoich danych osobowych innym osobom lub instytucjom. Twoje dane osobowe możemy przekazać jedynie podmiotom uprawnionym do ich uzyskania na podstawie obowiązującego prawa (np. sądy lub organy ścigania) – ale tylko na ich żądanie w oparciu o stosowną podstawę prawną. Będziemy przetwarzać Twoje dane osobowe tak długo, jak będzie to niezbędne do wykonania umowy, a po tym czasie – przez okres odpowiadający okresowi przedawnienia roszczeń, jakie może podnosić administrator danych i jakie mogą być podnoszone wobec administratora danych. Masz prawo do żądania od administratora dostępu do Twoich danych, ich sprostowania, usunięcia, ograniczenia ich przetwarzania, wniesienia sprzeciwu wobec przetwarzania Twoich danych lub ich przenoszenia. W każdej chwili możesz odwołać zgodę na przetwarzanie Twoich danych osobowych oraz możesz zażądać, by Twoje wszystkie dane zostały przez nas usunięte. Podstawy prawne przetwarzania Twoich danych osobowych: art. 5, 6, art. 12, art. 13 Ogólnego rozporządzenia o ochronie danych osobowych (RODO), art. 10 Ustawy o świadczeniu usług drogą elektroniczną, Rozporządzenie Ministra Finansów w sprawie przesyłania faktur w formie elektronicznej, zasad ich przechowywania oraz trybu udostępniania organowi podatkowemu lub organowi kontroli skarbowej z dnia 20 grudnia 2012 r. (Dz.U. z 2012 r. poz. 1528) oraz zasadami wystawiania, przesyłania i przechowywania faktury elektronicznej. Czytaj dalej Zwiń
Close icon
Projekt domu Flori III ECONOMIC (wersja A) 30 stopni
Pobierz rysunki szczegółowe tego domu i sprawdź dokładne wymiary pomieszczeń! Wypełnij wszystkie pola, aby dostać rysunki
Administrator danych osobowych: AVT-Korporacja sp. z o.o. z siedzibą: ul. Leszczynowa 11, 03-197 Warszawa. Cel przetwarzania danych: realizacja wysyłki newslettera ...
Przez 27 lata
z nami zbudowano 500 000 domów
Nawet, jeśli nie kupisz u nas projektu, skorzystaj z naszej wiedzy.
Przeczytaj porady zebrane w naszych publikacjach. Zamów bezpłatnie:
Prenumeratę (3 numery) magazynu Budujemy Dom
Zamów bezpłatnie
3 tomy Praktyczna Szkoła Budowania
Zamów bezpłatnie
Zapisz się do Klubu Budujących Dom by kontynuować dowolnie długą bezpłatną prenumeratę magazynu Budujemy Dom
Ostatnio oglądane
Projekt domu Flori III ECONOMIC (wersja A) 30 stopni
Administratorem Twoich danych jest AVT-Korporacja sp. z o.o. z siedzibą ul. Leszczynowa 11, 03-197 Warszawa. Chodzi o dane osobowe, które zbieramy, aby móc wysłać Ci nasze produkty (czasopisma w formie drukowanej lub elektronicznej i inne towary) oraz faktury za ich zakup. ... Chcemy przetwarzać Twoje dane osobowe w celach opisanych w naszej polityce prywatności, a w szczególności: w celu realizacji usług świadczonych w naszym sklepie internetowym oraz w innych prawnie usprawiedliwionych celach, w tym marketingu bezpośredniego naszych produktów i usług (tzw. uzasadniony interes administratora). Bez Twojej zgody nie przekażemy i nie będziemy dokonywać obrotu (nie użyczymy, nie sprzedamy) Twoich danych osobowych innym osobom lub instytucjom. Twoje dane osobowe możemy przekazać jedynie podmiotom uprawnionym do ich uzyskania na podstawie obowiązującego prawa (np. sądy lub organy ścigania) – ale tylko na ich żądanie w oparciu o stosowną podstawę prawną. Będziemy przetwarzać Twoje dane osobowe tak długo, jak będzie to niezbędne do wykonania umowy, a po tym czasie – przez okres odpowiadający okresowi przedawnienia roszczeń, jakie może podnosić administrator danych i jakie mogą być podnoszone wobec administratora danych. Masz prawo do żądania od administratora dostępu do Twoich danych, ich sprostowania, usunięcia, ograniczenia ich przetwarzania, wniesienia sprzeciwu wobec przetwarzania Twoich danych lub ich przenoszenia. W każdej chwili możesz odwołać zgodę na przetwarzanie Twoich danych osobowych oraz możesz zażądać, by Twoje wszystkie dane zostały przez nas usunięte. Podstawy prawne przetwarzania Twoich danych osobowych: art. 5, 6, art. 12, art. 13 Ogólnego rozporządzenia o ochronie danych osobowych (RODO), art. 10 Ustawy o świadczeniu usług drogą elektroniczną, Rozporządzenie Ministra Finansów w sprawie przesyłania faktur w formie elektronicznej, zasad ich przechowywania oraz trybu udostępniania organowi podatkowemu lub organowi kontroli skarbowej z dnia 20 grudnia 2012 r. (Dz.U. z 2012 r. poz. 1528) oraz zasadami wystawiania, przesyłania i przechowywania faktury elektronicznej. Czytaj dalej Zwiń