22 257 84 76 pon-pt: 9-17
Menu

Simon II G2

Dodaj do porównania Usuń z porównania
Dodaj do ulubionych Usuń z ulubionych
Code icon
Lustrzane odbicie
Pow. użytkowa:
157.39m2
Koszt budowy:
782000zł
Liczba pokoi:
5
Liczba łazienek:
2
Garaż:
2
Rzuty Elewacja Specyfikacja techniczna Koszty Opis
Share icon
Rzuty
Simon II G2
Lustrzane odbicie
Rzut parteru
149.06 m2
Wiatrołap
4.82 m2
Hol + schody
14.46 m2
Kuchnia + jadalnia
15.77 m2
Spiżarnia
1.55 m2
Pokój dzienny
28.37 m2
Korytarz + garderoba
5.78 m2
Sypialnia
13.19 m2
Garderoba
4.98 m2
Gabinet
11.22 m2
Łazienka
3.51 m2
Toaleta
1.37 m2
Kotłownia
10.91 m2
Garaż
33.13 m2
Pobierz rysunki szczegółowe
Zapytaj, co możesz zmienić
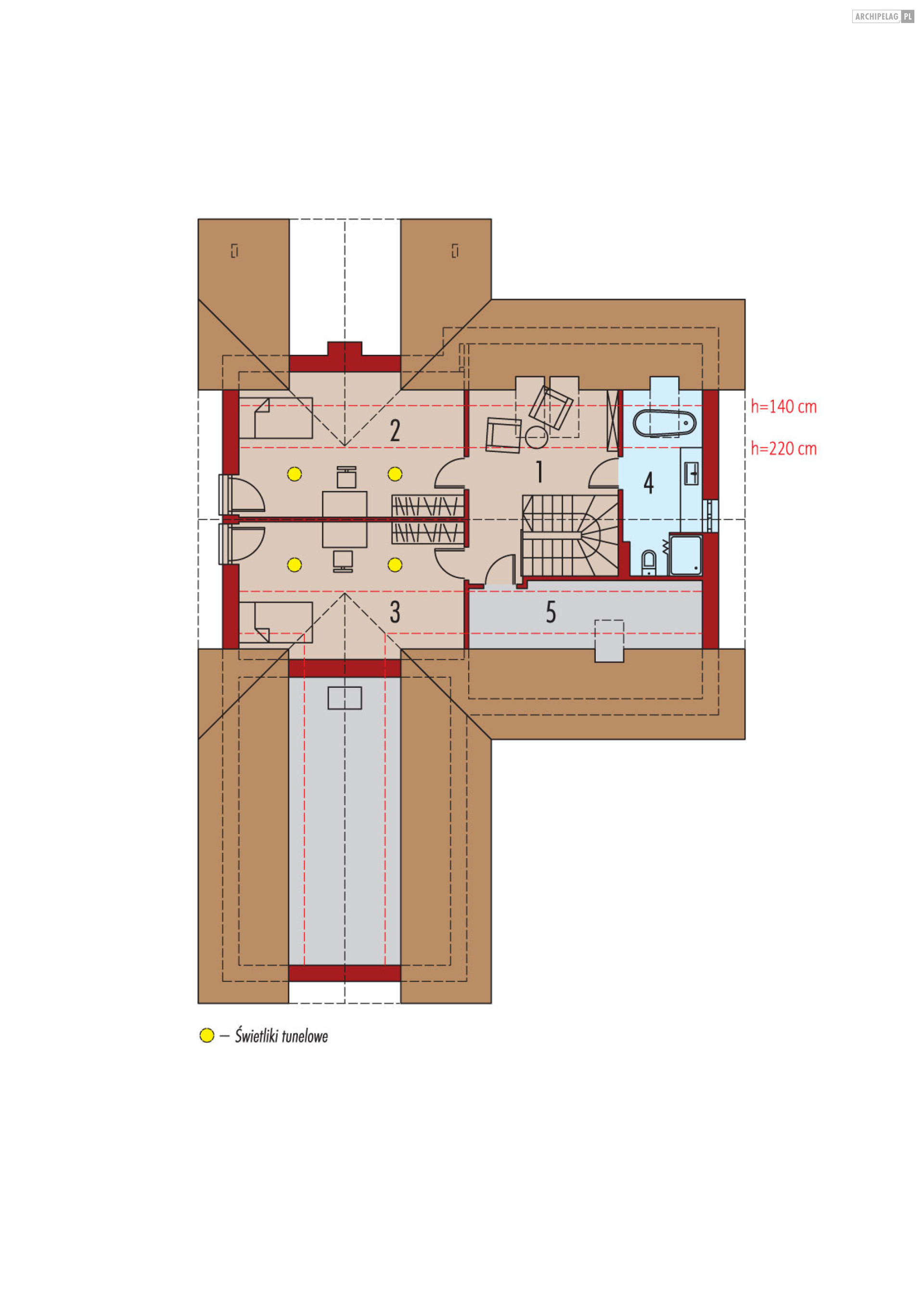
Simon II G2
Lustrzane odbicie
Rzut poddasza
57.36 m2
Korytarz
10.95 m2
Sypialnia
16.52 m2
Sypialnia
16.29 m2
Łazienka
8.61 m2
Pom. gospodarcze
4.99 m2
Pobierz rysunki szczegółowe
Zapytaj, co możesz zmienić
Simon II G2
Lustrzane odbicie
Pobierz rysunki szczegółowe
Zapytaj, co możesz zmienić
Zamów rysunki szczegółowe
Zapoznaj się ze szczegółowymi rysunkami rzutów kondygnacji w PDF dla tego projektu.
ZAMAWIAM
Order drawings image
Elewacje
Simon II G2
Frontowa
Simon II G2
Ogrodowa
Simon II G2
Lewa
Simon II G2
Prawa
Specyfikacja techniczna
Główne parametry
Powierzchnia użytkowa
157,39 m2
Łączna powierzchnia tzw. pomieszczeń użytkowych. Przede wszystkim nie zalicza się do niej powierzchni garażu, nieużytkowego strychu, piwnicy, kotłowni.
Liczba pokoi
5
Liczba łazienek
2
Garaż
2
Pełna specyfikacja
Maksymalna wysokość budynku
7,76 m
Wysokość wyznaczona od poziomu terenu do najwyżej położonej części dachu (np. kalenicy), zwykle bez uwzględnienia kominów.
Kąt nachylenia dachu
35,00°
Nachylenie połaci dachu podane w stopniach.
Minimalne wymiary działki (szerokość)
21,49 m
Szerokość działki wyznaczona przy założeniu, że minimalna odległość budynku od granic działki wynosi przynajmniej 3 m w przypadku ścian bez otworów okiennych lub drzwiowych, albo 4 m w przypadku ścian budynku z takimi otworami.
Minimalne wymiary działki (długość)
26,24 m
Długość działki wyznaczona przy założeniu, że minimalna odległość budynku od granic działki wynosi przynajmniej 3 m w przypadku ścian bez otworów okiennych lub drzwiowych, albo 4 m w przypadku ścian budynku z takimi otworami.
Z poddaszem użytkowym
Tak
Technologia budowy
Murowany
Typ dachu
Dwuspadowy
Kształt dachu – płaski, jednospadowy (jedna skośna połać), dwuspadowy (dwie połacie), wielospadowy (w praktyce o przynajmniej czterech połaciach).
Energooszczędność
Standardowy
Energooszczędny – dom o zapotrzebowaniu na tzw. nieodnawialna energię pierwotną (EP) niższym, niż wymagana przepisami maksymalna wartość.
Koszt: Instalacje
73 349
Łączny koszt wykonania wszystkich niezbędnych instalacji wewnętrznych – grzewczej, wentylacyjnej, wodno-kanalizacyjnej, elektrycznej itd.
Powierzchnia garażu
33,13 m2
Powierzchnia netto budynku
276,79 m2
Łączna powierzchnia wszystkich kondygnacjach obliczana z pominięciem elementów konstrukcyjnych (ściany nośne, słupy itp.) ale wraz z powierzchnią zajmowaną przez ścianki działowe lub inne elementy, które można potencjalnie zdemontować.
Powierzchnia całkowita budynku
204,32 m2
Łączna powierzchnia wszystkich kondygnacjach obliczana po obrysie ścian zewnętrznych, wraz z powierzchnią zajmowaną przez ściany wewnętrzne.
Kubatura budynku
753,61 m3
Objętość budynku, zwykle wraz z elementami konstrukcyjnymi (ścianami, stropami itd.).
Szerokość budynku
13,49 m
Maksymalna szerokość budynku wraz z grubością izolacji cieplnej oraz okładzin ściennych.
Długość budynku
20,06 m
Maksymalna długość budynku wraz z grubością izolacji cieplnej oraz okładzin ściennych.
Liczba kondygnacji
Z poddaszem do adaptacji
Za kondygnacje uznawane są również poddasza użytkowe oraz piwnice. Kondygnacją nie jest natomiast poddasze nieużytkowe ani antresola.
Koszty
Koszty budowy
782 000 zł
Koszt: Stan pod klucz
Obejmuje koszt wszystkich robót stanu surowego, wykonania instalacji wewnętrznych oraz robót wykończeniowych.
502 000 zł
Koszt: Stan surowy zamknięty
Koszt wzniesienia budynku wraz z pokryciem dachu i stolarką zewnętrzną (okna i drzwi). Bez instalacji, ocieplenia i robót wykończeniowych.
Koszty utrzymania
EP = 61,25 kWh/m2 rok
Oznacza ilość energii nieodnawialnej, jaką budynek może pozyskiwać z nieodnawialnych surowców energetycznych, czyli energii zawartej w paliwach i nośnikach takich jak węgiel, gaz czy ropa naftowa.
Opis

Charakterystyka: Dom parterowy z poddaszem użytkowym, niepodpiwniczony, z garażem dwustanowiskowym
Przeznaczenie: Dom dla 3-5-osobowej rodziny 

Technologia i konstrukcja:
Ściany zewnętrzne: 
murowane, dwuwarstwowe, beton komórkowy Solbet 24 cm, ocieplenie styropian Termo Organika 20 cm
Strop: międzypiętrowy gęstożebrowy Teriva
Dach: konstrukcja drewniana, ocieplenie wełna mineralna 30 cm, dachówka ceramiczna płaska Bergamo firmy Röben
Inne: schody wewnętrzne drewniane 

Rozwiązania instalacyjne:
Ogrzewanie: 
kocioł gazowy kondensacyjny, rozprowadzenie ciepła: grzejniki
Wentylacja: grawitacyjna

OZE: kolektory słoneczne

Wykończenie:
Elewacje: 
tynk cienkowarstwowy mineralny w kolorze TO-PA001 z palety firmy Termo Organika, okładzina z płyty HPL z naturalną okleiną drewnianą firmy Prodema, okładzina komina: płytki klinkierowe
Stolarka: drewniana, PVC lub aluminiowa, rolety zewnętrzne w systemie CleverBox firmy BeClever, drzwi wejściowe i brama garażowa firmy Hörmann
Otoczenie: system tarasowy ProDeck - deska kompozytowa Terra w kolorze złoty dąb
Okna połaciowe: rozwiązania technologiczne i wyłaz dachowy firmy VELUX, świetlik tunelowy VELUX
. Pobierz ekspercki poradnik VELUX i dowiedz się jak wybrać okna dachowe

Wersje domów w serii Simon - zapytaj o dostępność:
- Simon – dom z poddaszem do adaptacji, 3 sypialnie, dach o kącie nachylenia 30°
- Simon II – dom z poddaszem użytkowym, 3 sypialnie + gabinet, dach o kącie nachylenia 35°
- Simon III – dom parterowy, 4 sypialnie, dach o kącie nachylenia 25°
- Simon IV – dom parterowy, 3 sypialnie, dach o kącie nachylenia 25°
- Simon (mały) – dom z poddaszem do adaptacji, mniejsza powierzchnia użytkowa, 3 sypialnie, dach o kącie nachylenia 35°
- Simon III (wiązary) – system suchej zabudowy ścian działowych Rigips, wiązary prefabrykowane, rozwiązania materiałowo-technologiczne Grupy Saint-Gobain, układ funkcji jak w domu Simon III G2, dom parterowy, 4 sypialnie, dach o kącie nachylenia 25°
- Simon IV (bliźniak) – dom parterowy w zabudowie bliźniaczej, 3 sypialnie, dach o kącie nachylenia 25°
- Simon 01 (dwulokalowy) – dom z dwoma mieszkaniami, z poddaszem do adaptacji, dach o kącie nachylenia 30°

– wszystkie wersje o podobnym układzie funkcji oraz z inną propozycją wykończenia elewacji
– wszystkie wersje z trzema wariantami garaży: bez garażu, z garażem jedno- i dwustanowiskowym (wyjątek: dom dwulokalowy – tylko w wariancie bez garażu)
– odbicie lustrzane do każdej wersji

Wszystkie wersje domów możliwe w dwóch standardach/wariantach instalacyjnych:
- ENERGO: kocioł gazowy kondensacyjny, grzejniki, wentylacja grawitacyjna, OZE: kolektory słoneczne
- ENERGO PLUS: pompa ciepła, ogrzewanie podłogowe, wentylacja mechaniczna, OZE: kolektory słoneczne lub panele fotowoltaiczne

Istnieją techniczne możliwości wykonania zmian:
- podpiwniczenia budynku
- zmiany kąta nachylenia dachu do 30° i zmiany funkcji poddasza na nieużytkowe
- wykonania budynku w technologii szkieletowej
- dokonania zmian funkcjonalnych wg indywidualnych wymagań

CZYTAJ WIĘCEJ
Simon II G2
BD44771
Powierzchnia użytkowa
Łączna powierzchnia tzw. pomieszczeń użytkowych. Przede wszystkim nie zalicza się do niej powierzchni garażu, nieużytkowego strychu, piwnicy, kotłowni.
157,39 m2
Liczba pokoi
5
Liczba łazienek
2
Garaż
2
Projekt domu Simon II G2
Pobierz rysunki szczegółowe tego domu i sprawdź dokładne wymiary pomieszczeń! Wypełnij wszystkie pola, aby dostać rysunki
Administratorem Twoich danych jest AVT-Korporacja sp. z o.o. z siedzibą ul. Leszczynowa 11, 03-197 Warszawa. Chodzi o dane osobowe, które zbieramy, aby móc wysłać Ci nasze produkty (czasopisma w formie drukowanej lub elektronicznej i inne towary) oraz faktury za ich zakup. ... Chcemy przetwarzać Twoje dane osobowe w celach opisanych w naszej polityce prywatności, a w szczególności: w celu realizacji usług świadczonych w naszym sklepie internetowym oraz w innych prawnie usprawiedliwionych celach, w tym marketingu bezpośredniego naszych produktów i usług (tzw. uzasadniony interes administratora). Bez Twojej zgody nie przekażemy i nie będziemy dokonywać obrotu (nie użyczymy, nie sprzedamy) Twoich danych osobowych innym osobom lub instytucjom. Twoje dane osobowe możemy przekazać jedynie podmiotom uprawnionym do ich uzyskania na podstawie obowiązującego prawa (np. sądy lub organy ścigania) – ale tylko na ich żądanie w oparciu o stosowną podstawę prawną. Będziemy przetwarzać Twoje dane osobowe tak długo, jak będzie to niezbędne do wykonania umowy, a po tym czasie – przez okres odpowiadający okresowi przedawnienia roszczeń, jakie może podnosić administrator danych i jakie mogą być podnoszone wobec administratora danych. Masz prawo do żądania od administratora dostępu do Twoich danych, ich sprostowania, usunięcia, ograniczenia ich przetwarzania, wniesienia sprzeciwu wobec przetwarzania Twoich danych lub ich przenoszenia. W każdej chwili możesz odwołać zgodę na przetwarzanie Twoich danych osobowych oraz możesz zażądać, by Twoje wszystkie dane zostały przez nas usunięte. Podstawy prawne przetwarzania Twoich danych osobowych: art. 5, 6, art. 12, art. 13 Ogólnego rozporządzenia o ochronie danych osobowych (RODO), art. 10 Ustawy o świadczeniu usług drogą elektroniczną, Rozporządzenie Ministra Finansów w sprawie przesyłania faktur w formie elektronicznej, zasad ich przechowywania oraz trybu udostępniania organowi podatkowemu lub organowi kontroli skarbowej z dnia 20 grudnia 2012 r. (Dz.U. z 2012 r. poz. 1528) oraz zasadami wystawiania, przesyłania i przechowywania faktury elektronicznej. Czytaj dalej Zwiń
Close icon
Projekt domu Simon II G2
Pobierz rysunki szczegółowe tego domu i sprawdź dokładne wymiary pomieszczeń! Wypełnij wszystkie pola, aby dostać rysunki
Administrator danych osobowych: AVT-Korporacja sp. z o.o. z siedzibą: ul. Leszczynowa 11, 03-197 Warszawa. Cel przetwarzania danych: realizacja wysyłki newslettera ...
Przez 27 lata
z nami zbudowano 500 000 domów
Nawet, jeśli nie kupisz u nas projektu, skorzystaj z naszej wiedzy.
Przeczytaj porady zebrane w naszych publikacjach. Zamów bezpłatnie:
Prenumeratę (3 numery) magazynu Budujemy Dom
Zamów bezpłatnie
3 tomy Praktyczna Szkoła Budowania
Zamów bezpłatnie
Zapisz się do Klubu Budujących Dom by kontynuować dowolnie długą bezpłatną prenumeratę magazynu Budujemy Dom
Ostatnio oglądane
Projekt domu Simon II G2
Administratorem Twoich danych jest AVT-Korporacja sp. z o.o. z siedzibą ul. Leszczynowa 11, 03-197 Warszawa. Chodzi o dane osobowe, które zbieramy, aby móc wysłać Ci nasze produkty (czasopisma w formie drukowanej lub elektronicznej i inne towary) oraz faktury za ich zakup. ... Chcemy przetwarzać Twoje dane osobowe w celach opisanych w naszej polityce prywatności, a w szczególności: w celu realizacji usług świadczonych w naszym sklepie internetowym oraz w innych prawnie usprawiedliwionych celach, w tym marketingu bezpośredniego naszych produktów i usług (tzw. uzasadniony interes administratora). Bez Twojej zgody nie przekażemy i nie będziemy dokonywać obrotu (nie użyczymy, nie sprzedamy) Twoich danych osobowych innym osobom lub instytucjom. Twoje dane osobowe możemy przekazać jedynie podmiotom uprawnionym do ich uzyskania na podstawie obowiązującego prawa (np. sądy lub organy ścigania) – ale tylko na ich żądanie w oparciu o stosowną podstawę prawną. Będziemy przetwarzać Twoje dane osobowe tak długo, jak będzie to niezbędne do wykonania umowy, a po tym czasie – przez okres odpowiadający okresowi przedawnienia roszczeń, jakie może podnosić administrator danych i jakie mogą być podnoszone wobec administratora danych. Masz prawo do żądania od administratora dostępu do Twoich danych, ich sprostowania, usunięcia, ograniczenia ich przetwarzania, wniesienia sprzeciwu wobec przetwarzania Twoich danych lub ich przenoszenia. W każdej chwili możesz odwołać zgodę na przetwarzanie Twoich danych osobowych oraz możesz zażądać, by Twoje wszystkie dane zostały przez nas usunięte. Podstawy prawne przetwarzania Twoich danych osobowych: art. 5, 6, art. 12, art. 13 Ogólnego rozporządzenia o ochronie danych osobowych (RODO), art. 10 Ustawy o świadczeniu usług drogą elektroniczną, Rozporządzenie Ministra Finansów w sprawie przesyłania faktur w formie elektronicznej, zasad ich przechowywania oraz trybu udostępniania organowi podatkowemu lub organowi kontroli skarbowej z dnia 20 grudnia 2012 r. (Dz.U. z 2012 r. poz. 1528) oraz zasadami wystawiania, przesyłania i przechowywania faktury elektronicznej. Czytaj dalej Zwiń