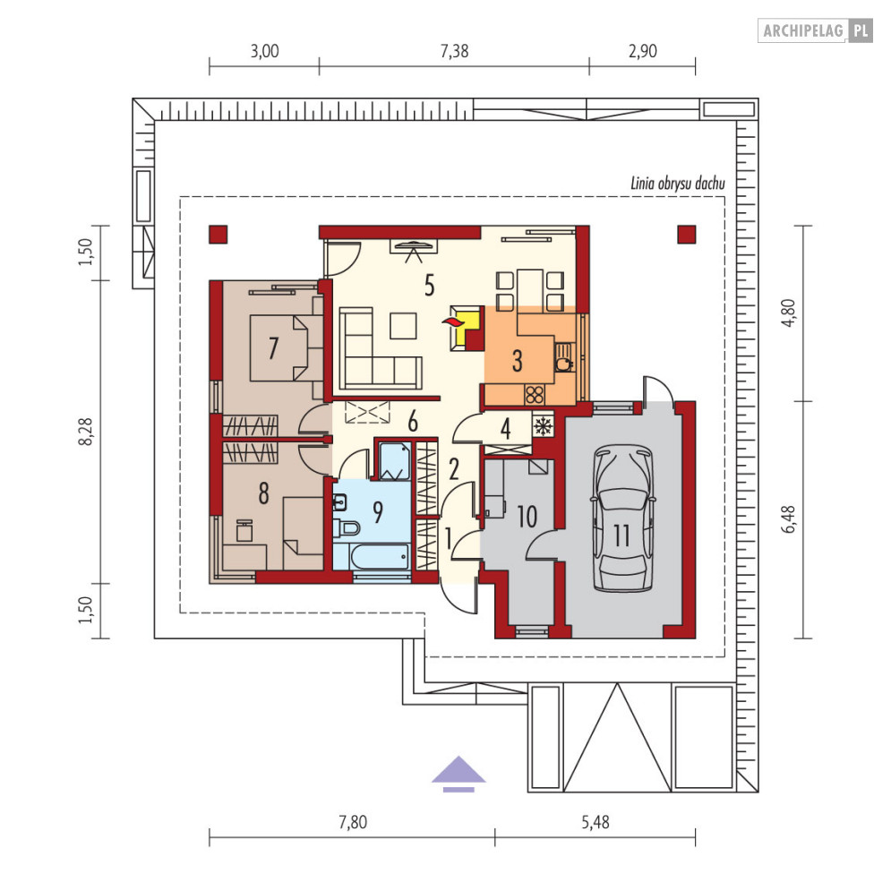
Tori III G1 ECONOMIC (wersja B)







Charakterystyka: Dom
parterowy, niepodpiwniczony, z garażem jednostanowiskowym
Przeznaczenie: Dom
dla 2-3-osobowej rodziny
Technologia
i konstrukcja:
Ściany
zewnętrzne: murowane, dwuwarstwowe, beton komórkowy YTONG
ENERGO 24 cm,
ocieplenie styropian Termo Organika 12
cm
Ściany
wewnętrzne: nośne i działowe murowane,
cegła wapienno-piaskowa 18 i 24
cm
Strop:
gęstożebrowy Teriva, ocieplenie wełna mineralna Isover 30 cm
Dach:
konstrukcja
drewniana, dachówka ceramiczna firmy Röben, więźba dachowa dostępna również w
systemie prefabrykacji drewnianej
Rozwiązania
instalacyjne:
Ogrzewanie: kocioł gazowy
kondensacyjny firmy Viessmann, rozprowadzenie ciepła: grzejniki firmy Purmo
Wentylacja:
grawitacyjna
OZE: kolektory słoneczne firmy Viessmann
Dodatkowo: stacja uzdatniania wody firmy Viessmann
Wykończenie:
Elewacje:
tynk
cienkowarstwowy mineralny, okładzina drewniana
Stolarka:
drewniana,
PVC lub aluminiowa, drzwi wejściowe i brama garażowa firmy Hörmann
Otoczenie: kostka betonowa i
płyty tarasowe firmy Libet, system tarasowy ProDeck - deska kompozytowa Terra w
kolorze orzech
Wersje w serii Tori - zapytaj o dostępność:
- Tori – wersja podstawowa
- Tori II – podobny układ funkcjonalny, dach 4-spadowy
- Tori III – podobny układ funkcjonalny, dach 2-spadowy
- Tori III ECONOMIC (wersja A, B) – podobny układ funkcjonalny, dach
2-spadowy
- wszystkie wersje o podobnymukładzie
funkcji oraz z inną propozycją wykończenia elewacji i pokrycia dachu
- wszystkie wersje z dwoma wariantami garaży: bez garażu i z garażem
jednostanowiskowym
- odbicie lustrzane do każdej wersji
Wszystkie wersje domów możliwe w dwóch
standardach/wariantach instalacyjnych:
- ENERGO: kocioł gazowy kondensacyjny, grzejniki, wentylacja grawitacyjna,
OZE: kolektory słoneczne
- ENERGO PLUS: pompa ciepła, ogrzewanie podłogowe, wentylacja
mechaniczna, OZE: kolektory słoneczne lub panele fotowoltaiczne
Istnieją
techniczne możliwości wykonania zmian:
-
podpiwniczenia budynku
- wykonania budynku w technologii szkieletowej
- dokonania zmian funkcjonalnych wg indywidualnych wymagań
