Platan 2 (CE)
                
                    Dodaj do porównania
                
                
                    Usuń z porównania
                
            
            
        
                
                    Dodaj do ulubionych
                
                
                    Usuń z ulubionych
                
            
            
        
        Pow. użytkowa:
    
    
        184.26m2
    
        Pow. zabudowy:
    
    
        135m2
    
        Koszt budowy:
    
    
        840000zł
    
        Liczba pokoi:
    
    
        4
    
        Liczba łazienek:
    
    
        3
    
        Rzuty
    
        
                                                         
                        
                        Lustrzane odbicie
                    
                    
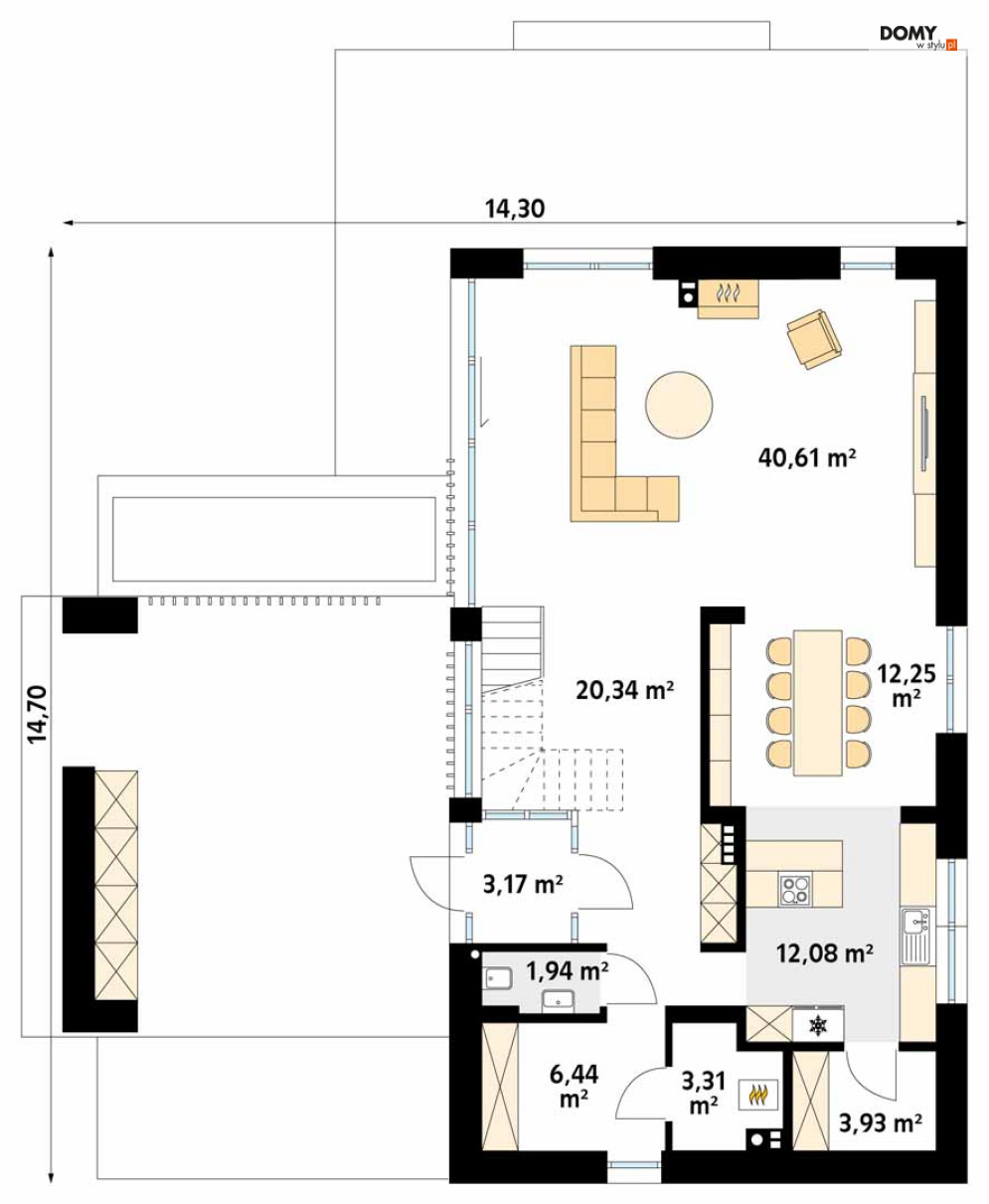
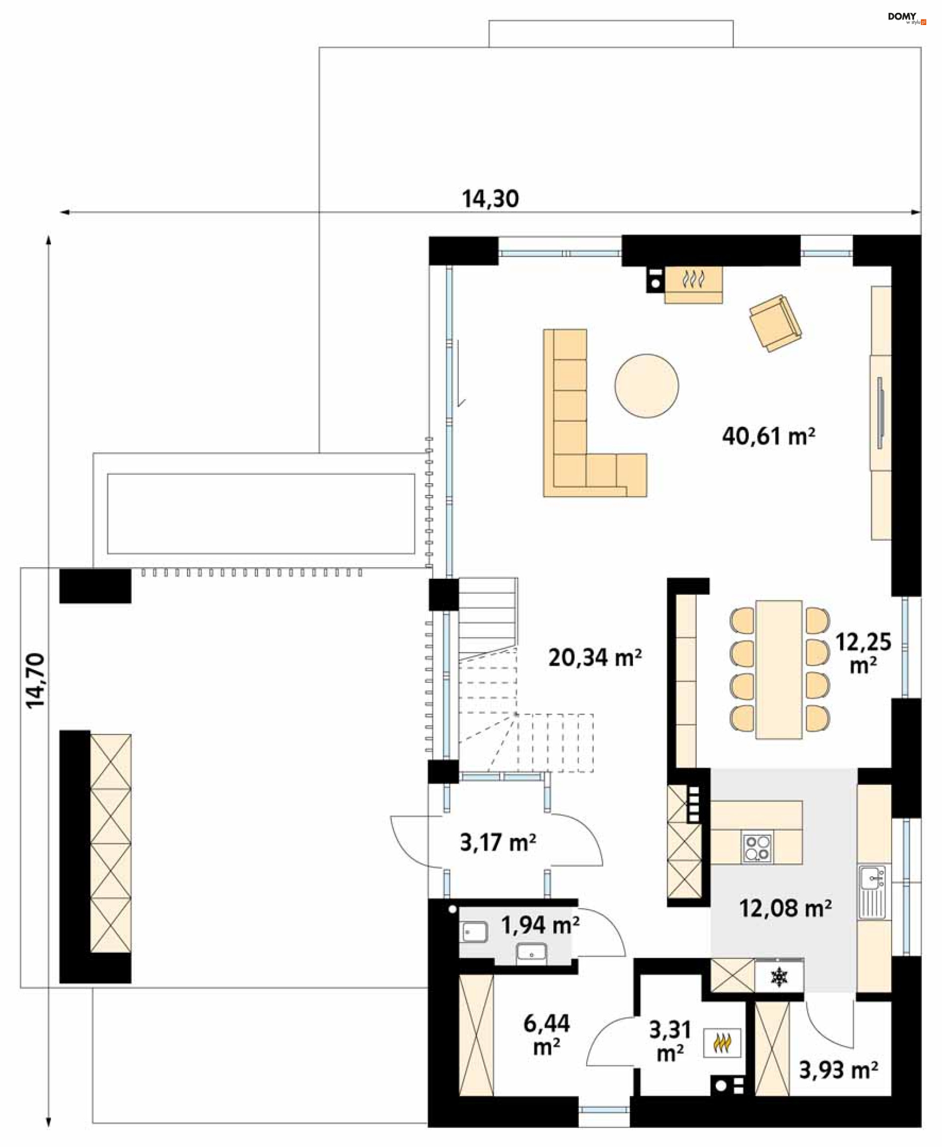
                                    Rzut parteru
                                
                                
                                    104.07 m2
                                
                            
                                            wiatrołap
                                        
                                        
                                            3.17 m2
                                        
                                    
                                            hol
                                        
                                        
                                            20.34 m2
                                        
                                    
                                            salon
                                        
                                        
                                            40.61 m2
                                        
                                    
                                            jadalnia
                                        
                                        
                                            12.25 m2
                                        
                                    
                                            kuchnia
                                        
                                        
                                            12.08 m2
                                        
                                    
                                            spiżarnia
                                        
                                        
                                            3.93 m2
                                        
                                    
                                            WC
                                        
                                        
                                            1.94 m2
                                        
                                    
                                            garderoba
                                        
                                        
                                            6.44 m2
                                        
                                    
                                            kotłownia
                                        
                                        
                                            3.31 m2
                                        
                                    
                            
                            Pobierz rysunki szczegółowe
                        
                        
                            
                            Zapytaj, co możesz zmienić
                        
                     
                        
                        Lustrzane odbicie
                    
                    
                                    Rzut poddasza
                                
                                
                                    80.09 m2
                                
                            
                                            korytarz/komunikacja
                                        
                                        
                                            8.2 m2
                                        
                                    
                                            sypialnia
                                        
                                        
                                            14.26 m2
                                        
                                    
                                            sypialnia
                                        
                                        
                                            16.37 m2
                                        
                                    
                                            pralnia
                                        
                                        
                                            3.71 m2
                                        
                                    
                                            łazienka
                                        
                                        
                                            6.37 m2
                                        
                                    
                                            łazienka
                                        
                                        
                                            5.33 m2
                                        
                                    
                                            garderoba
                                        
                                        
                                            5.25 m2
                                        
                                    
                                            sypialnia
                                        
                                        
                                            20.6 m2
                                        
                                    
                            
                            Pobierz rysunki szczegółowe
                        
                        
                            
                            Zapytaj, co możesz zmienić
                        
                     
                        
                        Lustrzane odbicie
                    
                    
                            
                            Pobierz rysunki szczegółowe
                        
                        
                            
                            Zapytaj, co możesz zmienić
                        
                    
            Zamów rysunki szczegółowe
        
        
            Zapoznaj się ze szczegółowymi rysunkami rzutów kondygnacji w PDF dla tego projektu.
        
        
            ZAMAWIAM
        
     
    
                    Elewacje
                
             
                                Frontowa
                            
                                                             
                                Ogrodowa
                            
                                                             
                                Lewa
                            
                                                             
                                Prawa
                            
                                                            
        Specyfikacja techniczna
    
    
        Główne parametry
    
    
                            Powierzchnia użytkowa
                        
                        
                                                            
                                                                                                                                                                                        184,26 m2
                                
                                                    
                                                    
                                Łączna powierzchnia tzw. pomieszczeń użytkowych. Przede wszystkim nie zalicza się do niej powierzchni garażu, nieużytkowego strychu, piwnicy, kotłowni.
                            
                                            
                            Liczba pokoi
                        
                        
                                                            
                                                                                                                                                                                        4 
                                
                                                    
                                            
                            Liczba łazienek
                        
                        
                                                            
                                                                                                                                                                                        3 
                                
                                                    
                                            
                            Powierzchnia zabudowy
                        
                        
                                                            
                                                                                                                                                                                        135,00 m2
                                
                                                    
                                                    
                                Powierzchnia zajmowana przez budynek na działce. W praktyce tzw. powierzchnia rzutu budynku wyznaczana po obrysie ścian zewnętrznych.
                            
                                            
        Pełna specyfikacja
    
    
                            Maksymalna wysokość budynku
                        
                        
                                                            
                                                                                                                                                                                        8,89 m
                                
                                                    
                                                    
                                Wysokość wyznaczona od poziomu terenu do najwyżej położonej części dachu (np. kalenicy), zwykle bez uwzględnienia kominów.
                            
                                            
                            Kąt nachylenia dachu
                        
                        
                                                            
                                                                                                                                                                                        42,00°
                                
                                                    
                                                    
                                Nachylenie połaci dachu podane w stopniach.
                            
                                            
                            Minimalne wymiary działki (szerokość)
                        
                        
                                                            
                                                                                                                                                                                        22,30 m
                                
                                                    
                                                    
                                Szerokość działki wyznaczona przy założeniu, że minimalna odległość budynku od granic działki wynosi przynajmniej 3 m w przypadku ścian bez otworów okiennych lub drzwiowych, albo 4 m w przypadku ścian budynku z takimi otworami.
                            
                                            
                            Minimalne wymiary działki (długość)
                        
                        
                                                            
                                                                                                                                                                                        23,70 m
                                
                                                    
                                                    
                                Długość działki wyznaczona przy założeniu, że minimalna odległość budynku od granic działki wynosi przynajmniej 3 m w przypadku ścian bez otworów okiennych lub drzwiowych, albo 4 m w przypadku ścian budynku z takimi otworami.
                            
                                            
                            Technologia budowy
                        
                        
                                                            
                                                                            Murowany
                                                                    
                                                    
                                            
                            Typ dachu
                        
                        
                                                            
                                                                            Dwuspadowy
                                                                    
                                                    
                                                    
                                Kształt dachu – płaski, jednospadowy (jedna skośna połać), dwuspadowy (dwie połacie), wielospadowy (w praktyce o przynajmniej czterech połaciach).
                            
                                            
                            Energooszczędność
                        
                        
                                                            
                                                                            Standardowy
                                                                    
                                                    
                                                    
                                Energooszczędny – dom o zapotrzebowaniu na tzw. nieodnawialna energię pierwotną (EP) niższym, niż wymagana przepisami maksymalna wartość.
                            
                                            
                            Typ zabudowy
                        
                        
                                                            
                                                                            Jednorodzinny
                                                                    
                                                    
                                            
                            Kubatura budynku
                        
                        
                                                            
                                                                                                                                                                                        827,45 m3
                                
                                                    
                                                    
                                Objętość budynku, zwykle wraz z elementami konstrukcyjnymi (ścianami, stropami itd.).
                            
                                            
                            Szerokość budynku
                        
                        
                                                            
                                                                                                                                                                                        14,30 m
                                
                                                    
                                                    
                                Maksymalna szerokość budynku wraz z grubością izolacji cieplnej oraz okładzin ściennych.
                            
                                            
                            Długość budynku
                        
                        
                                                            
                                                                                                                                                                                        14,70 m
                                
                                                    
                                                    
                                Maksymalna długość budynku wraz z grubością izolacji cieplnej oraz okładzin ściennych.
                            
                                            
                            W stylu
                        
                        
                                                            
                                                                            Nowoczesnym
                                                                    
                                                    
                                            
                            Liczba kondygnacji
                        
                        
                                                            
                                                                            Z poddaszem użytkowym
                                                                    
                                                    
                                                    
                                Za kondygnacje uznawane są również poddasza użytkowe oraz piwnice. Kondygnacją nie jest natomiast poddasze nieużytkowe ani antresola.
                            
                                            
                    Koszty
                
            
                            Koszty budowy
                        
                        
                                        840 000 zł
                                    
                                    
                                        Koszt: Stan pod klucz
                                    
                                                                            
                                            Obejmuje koszt wszystkich robót stanu surowego, wykonania instalacji wewnętrznych oraz robót wykończeniowych.
                                        
                                                                    
                                        534 000 zł
                                    
                                                                            
                                            Koszt: Stan surowy zamknięty
                                        
                                                                                                                
                                            Koszt wzniesienia budynku wraz z pokryciem dachu i stolarką zewnętrzną (okna i drzwi). Bez instalacji, ocieplenia i robót wykończeniowych.
                                        
                                                                    
            Opis
        
        
            Platan 2 to nowoczesny projekt domu z użytkowym poddaszem, który charakteryzują się prostą bryłą z dwuspadowym dachem bez okapów oraz doprojektowaną do niego wiatą garażową.  Żelbetowa konstrukcja wiaty pozwoliła na zagospodarowanie jej dachu na taras dostępny z sypialni głównej.  Wnętrze projektu Platan 2 stanowi otwartą przestrzeń z podziałem na strefy użytkowe.  Przestronny salon płynnie łączy się z jadalnią, która przechodzi w funkcjonalną kuchnię.  W kuchni znajduje się duża ilość blatu roboczego, praktyczny półwysep z kuchenką oraz pojemna spiżarnia.  Cechą charakterystyczną przestrzeni dziennej są liczne, duże przeszklenia prowadzące na taras okalający budynek z dwóch stron.  Na poddaszu znajduje się prywatna strefa dzienna, na którą składają się trzy przestronne sypialnie, ogólnodostępna łazienka oraz garderoba z pralnią.  Główna sypialnia tworzy apartament gospodarzy z prywatną łazienką, garderobą oraz wyjściem na rozległy taras znajdujący się nad wiatą.
        
                            
                CZYTAJ WIĘCEJ
                
            
             
                            Platan 2 (CE)
                        
                        
                            BD50081
                        
                    
                            Powierzchnia użytkowa
                                                            
                                    
                                
                                
                        
                                    Łączna powierzchnia tzw. pomieszczeń użytkowych. Przede wszystkim nie zalicza się do niej powierzchni garażu, nieużytkowego strychu, piwnicy, kotłowni.
                                
                                                    
                            184,26 m2
                        
                    
                            Liczba pokoi
                                                    
                        
                            4 
                        
                    
                            Liczba łazienek
                                                    
                        
                            3 
                        
                    
                            Powierzchnia zabudowy
                                                            
                                    
                                
                                
                        
                                    Powierzchnia zajmowana przez budynek na działce. W praktyce tzw. powierzchnia rzutu budynku wyznaczana po obrysie ścian zewnętrznych.
                                
                                                    
                            135,00 m2
                        
                    
            Inne wersje projektu
        
        
    
            PODOBNE PROJEKTY
        
        
     
             
 
 
 
 
 
 
 
 
 
 
 
 
 
 
 
 
 
 
 
 
 
 
 
 
 
 
 
 
 
 
 
 
 
 
 
 
 
 
 
 
 
 
 
 
 
 
 
 
 
 
 
 
 
                                         
 
                                         
 
                                         
                         
                         
                     
                         
                        