Szpak 2 (KO)
Dodaj do porównania
Usuń z porównania
Dodaj do ulubionych
Usuń z ulubionych
Pow. użytkowa:
170.68m2
Pow. zabudowy:
199.89m2
Koszt budowy:
847000zł
Liczba pokoi:
5
Liczba łazienek:
2
Garaż:
1
Rzuty

Lustrzane odbicie
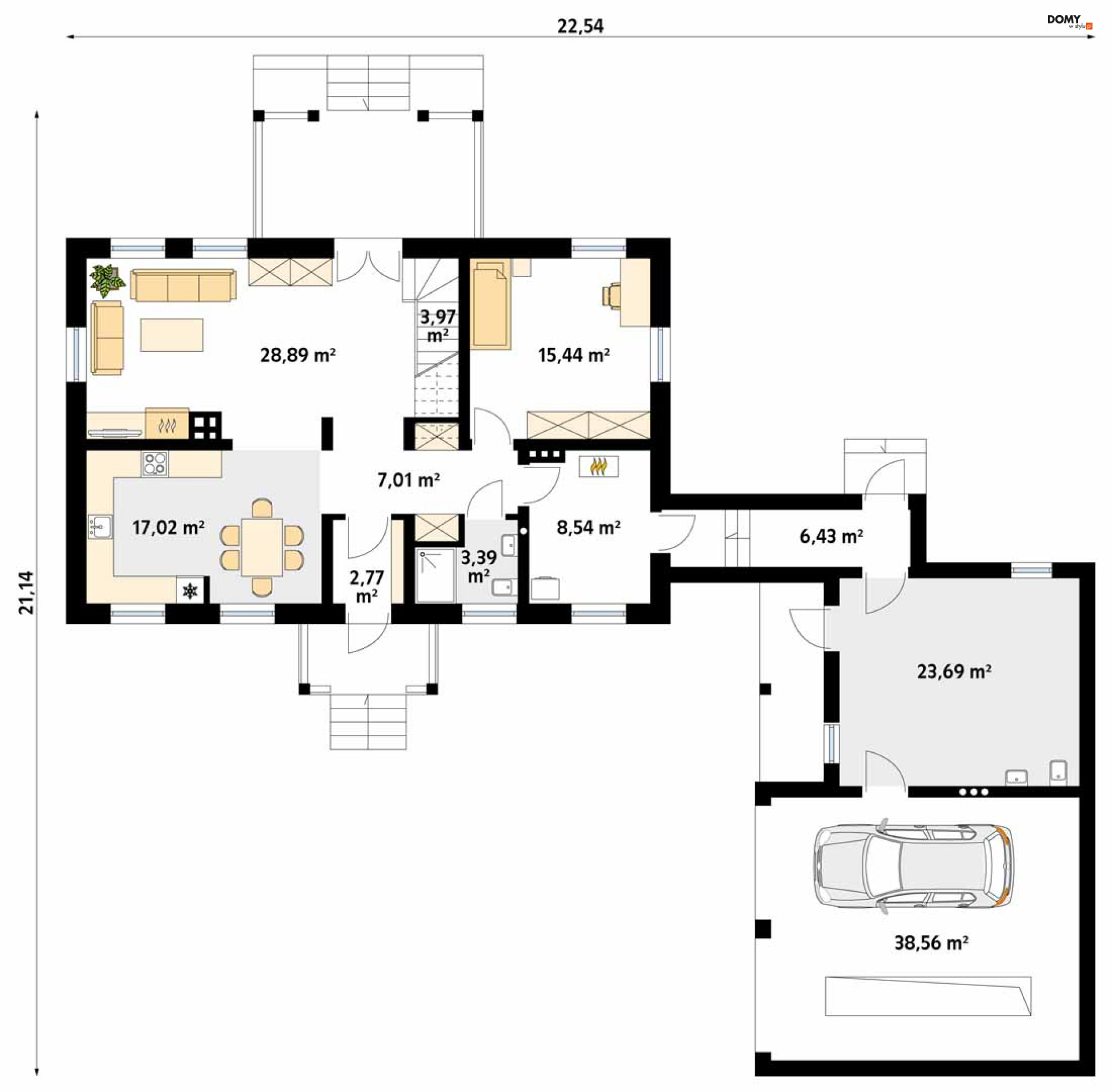
Rzut parteru
155.71 m2
wiatrołap
2.77 m2
korytarz/komunikacja
7.01 m2
kuchnia/jadalnia
17.02 m2
salon
28.89 m2
schody
3.97 m2
pokój
15.44 m2
łazienka
3.39 m2
kotłownia
8.54 m2
korytarz/komunikacja
6.43 m2
pomieszczenie gospodarcze
23.69 m2
garaż
38.56 m2
Pobierz rysunki szczegółowe
Zapytaj, co możesz zmienić

Lustrzane odbicie
Rzut poddasza
53.53 m2
korytarz/komunikacja
12.52 m2
pokój
10.2 m2
łazienka
5.03 m2
garderoba
2.68 m2
pokój
10.23 m2
pokój
12.87 m2
Pobierz rysunki szczegółowe
Zapytaj, co możesz zmienić

Lustrzane odbicie
Pobierz rysunki szczegółowe
Zapytaj, co możesz zmienić
Zamów rysunki szczegółowe
Zapoznaj się ze szczegółowymi rysunkami rzutów kondygnacji w PDF dla tego projektu.
ZAMAWIAM

Elewacje

Frontowa

Ogrodowa

Lewa

Prawa
Specyfikacja techniczna
Główne parametry
Powierzchnia użytkowa
170,68 m2
Łączna powierzchnia tzw. pomieszczeń użytkowych. Przede wszystkim nie zalicza się do niej powierzchni garażu, nieużytkowego strychu, piwnicy, kotłowni.
Liczba pokoi
5
Liczba łazienek
2
Garaż
1
Powierzchnia zabudowy
199,89 m2
Powierzchnia zajmowana przez budynek na działce. W praktyce tzw. powierzchnia rzutu budynku wyznaczana po obrysie ścian zewnętrznych.
Pełna specyfikacja
Maksymalna wysokość budynku
8,40 m
Wysokość wyznaczona od poziomu terenu do najwyżej położonej części dachu (np. kalenicy), zwykle bez uwzględnienia kominów.
Kąt nachylenia dachu
45,00°
Nachylenie połaci dachu podane w stopniach.
Minimalne wymiary działki (szerokość)
30,54 m
Szerokość działki wyznaczona przy założeniu, że minimalna odległość budynku od granic działki wynosi przynajmniej 3 m w przypadku ścian bez otworów okiennych lub drzwiowych, albo 4 m w przypadku ścian budynku z takimi otworami.
Minimalne wymiary działki (długość)
30,14 m
Długość działki wyznaczona przy założeniu, że minimalna odległość budynku od granic działki wynosi przynajmniej 3 m w przypadku ścian bez otworów okiennych lub drzwiowych, albo 4 m w przypadku ścian budynku z takimi otworami.
Technologia budowy
Murowany
Typ dachu
Dwuspadowy
Kształt dachu – płaski, jednospadowy (jedna skośna połać), dwuspadowy (dwie połacie), wielospadowy (w praktyce o przynajmniej czterech połaciach).
Energooszczędność
Standardowy
Energooszczędny – dom o zapotrzebowaniu na tzw. nieodnawialna energię pierwotną (EP) niższym, niż wymagana przepisami maksymalna wartość.
Przystosowany pod instalacje
kotła na paliwa stałe
Typ zabudowy
Jednorodzinny
Powierzchnia garażu
38,56 m2
Kubatura budynku
625,00 m3
Objętość budynku, zwykle wraz z elementami konstrukcyjnymi (ścianami, stropami itd.).
Szerokość budynku
22,54 m
Maksymalna szerokość budynku wraz z grubością izolacji cieplnej oraz okładzin ściennych.
Długość budynku
21,14 m
Maksymalna długość budynku wraz z grubością izolacji cieplnej oraz okładzin ściennych.
EK (energia końcowa)
68,03 kWh/m2 rok
EUCO (energia użytkowa)
26,59 kWh/m2 rok
W stylu
Tradycyjnym
Liczba kondygnacji
Z poddaszem użytkowym
Za kondygnacje uznawane są również poddasza użytkowe oraz piwnice. Kondygnacją nie jest natomiast poddasze nieużytkowe ani antresola.
Koszty
Koszty budowy
847 000 zł
Koszt: Stan pod klucz
Obejmuje koszt wszystkich robót stanu surowego, wykonania instalacji wewnętrznych oraz robót wykończeniowych.
544 000 zł
Koszt: Stan surowy zamknięty
Koszt wzniesienia budynku wraz z pokryciem dachu i stolarką zewnętrzną (okna i drzwi). Bez instalacji, ocieplenia i robót wykończeniowych.
Koszty utrzymania
EP = 68,63 kWh/m2 rok
Oznacza ilość energii nieodnawialnej, jaką budynek może pozyskiwać z nieodnawialnych surowców energetycznych, czyli energii zawartej w paliwach i nośnikach takich jak węgiel, gaz czy ropa naftowa.
Opis
Szpak 2 to projekt domu z użytkowym poddaszem, którego część mieszkalna oraz gospodarcza zostały zaprojektowane w dwóch budynkach, połączonych ze sobą za pomocą łącznika. W części mieszkalnej na parterze znajduje się salon z wyjściem na zadaszony taras oraz kuchnia połączona z jadalnią. Dodatkowo na parterze znajduje się pokój mogący pełnić funkcję gabinetu lub sypialni gościnnej. Program funkcjonalny uzupełnia łazienka oraz kotłownia z wejściem do łącznika, który łączy część mieszkalną z gospodarczą. Na poddaszu zaprojektowano część nocną z trzema sypialniami, łazienką oraz garderobą. W części gospodarczej znajduje się dwustanowiskowy garaż z kanałem samochodowym. Z garażu przechodzimy do dużego pomieszczenia gospodarczego z dodatkowym wejściem od frontu budynku. W tej części znajduje się nieużytkowe poddasze, które może służyć jako strych.
CZYTAJ WIĘCEJ
Dodatki do projektu
Opieka konsultacyjna
0zł
599 zł
Prenumerata 12 tytułów
0zł
599 zł
-
Bioz0 zł
-
Charakterystyka energetyczna0 zł
-
Dziennik budowy0 zł
-
Rzut w skali 1 5000 zł
-
Zgoda na zmiany0 zł
Prenumerata 12 tytułów
0zł
599 zł
-
Dodatkowy egzemplarz projektu1 875 zł
-
Elektroniczna wersja projektu938 zł
-
Kosztorys720 zł
-
Rekuperacja900 zł
-
Schemat szamba60 zł

Szpak 2 (KO)
BD37947
Powierzchnia użytkowa
Łączna powierzchnia tzw. pomieszczeń użytkowych. Przede wszystkim nie zalicza się do niej powierzchni garażu, nieużytkowego strychu, piwnicy, kotłowni.
170,68 m2
Liczba pokoi
5
Liczba łazienek
2
Garaż
1
Powierzchnia zabudowy
Powierzchnia zajmowana przez budynek na działce. W praktyce tzw. powierzchnia rzutu budynku wyznaczana po obrysie ścian zewnętrznych.
199,89 m2
Kup projekt
6 249 zł
Projekt + opieka konsultacyjna
Tylko u nas
kupujesz projekt wraz z
opieką konsultacyjną w trakcie budowy domu
opieką konsultacyjną w trakcie budowy domu
Kup projekt
6 249 zł
Masz pytania?
Zadzwoń!
22 257 84 76
pon-pt: 9-17
Inne wersje projektu
PODOBNE PROJEKTY
