Duo (PH)
Dodaj do porównania
Usuń z porównania
Dodaj do ulubionych
Usuń z ulubionych
Pow. użytkowa:
158.25m2
Pow. zabudowy:
160.41m2
Koszt budowy:
786000zł
Liczba pokoi:
6
Liczba łazienek:
2
Garaż:
1
Rzuty

Lustrzane odbicie
Rzut parteru
115.52 m2
wiatrołap
4.22 m2
spiżarnia
2.58 m2
salon/kuchnia
38.67 m2
korytarz/komunikacja
13.15 m2
sypialnia
19.23 m2
łazienka
4.19 m2
garaż
33.48 m2
Pobierz rysunki szczegółowe
Zapytaj, co możesz zmienić

Lustrzane odbicie
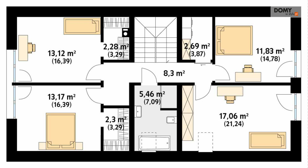
Rzut poddasza
76.21 m2
korytarz/komunikacja
8.3 m2
łazienka
5.46 m2
garderoba
2.3 m2
sypialnia
13.17 m2
sypialnia
13.12 m2
garderoba
2.28 m2
pralnia
2.69 m2
sypialnia
11.83 m2
sypialnia
17.06 m2
Pobierz rysunki szczegółowe
Zapytaj, co możesz zmienić

Lustrzane odbicie
Pobierz rysunki szczegółowe
Zapytaj, co możesz zmienić
Zamów rysunki szczegółowe
Zapoznaj się ze szczegółowymi rysunkami rzutów kondygnacji w PDF dla tego projektu.
ZAMAWIAM

Elewacje

Frontowa

Ogrodowa

Lewa

Prawa
Specyfikacja techniczna
Główne parametry
Powierzchnia użytkowa
158,25 m2
Łączna powierzchnia tzw. pomieszczeń użytkowych. Przede wszystkim nie zalicza się do niej powierzchni garażu, nieużytkowego strychu, piwnicy, kotłowni.
Liczba pokoi
6
Liczba łazienek
2
Garaż
1
Powierzchnia zabudowy
160,41 m2
Powierzchnia zajmowana przez budynek na działce. W praktyce tzw. powierzchnia rzutu budynku wyznaczana po obrysie ścian zewnętrznych.
Pełna specyfikacja
Maksymalna wysokość budynku
8,74 m
Wysokość wyznaczona od poziomu terenu do najwyżej położonej części dachu (np. kalenicy), zwykle bez uwzględnienia kominów.
Kąt nachylenia dachu
45,00°
Nachylenie połaci dachu podane w stopniach.
Minimalne wymiary działki (szerokość)
24,50 m
Szerokość działki wyznaczona przy założeniu, że minimalna odległość budynku od granic działki wynosi przynajmniej 3 m w przypadku ścian bez otworów okiennych lub drzwiowych, albo 4 m w przypadku ścian budynku z takimi otworami.
Minimalne wymiary działki (długość)
20,00 m
Długość działki wyznaczona przy założeniu, że minimalna odległość budynku od granic działki wynosi przynajmniej 3 m w przypadku ścian bez otworów okiennych lub drzwiowych, albo 4 m w przypadku ścian budynku z takimi otworami.
Technologia budowy
Murowany
Typ dachu
Dwuspadowy
Kształt dachu – płaski, jednospadowy (jedna skośna połać), dwuspadowy (dwie połacie), wielospadowy (w praktyce o przynajmniej czterech połaciach).
Energooszczędność
Energooszczędny
Energooszczędny – dom o zapotrzebowaniu na tzw. nieodnawialna energię pierwotną (EP) niższym, niż wymagana przepisami maksymalna wartość.
Typ zabudowy
Jednorodzinny
Powierzchnia garażu
33,48 m2
Kubatura budynku
730,31 m3
Objętość budynku, zwykle wraz z elementami konstrukcyjnymi (ścianami, stropami itd.).
Szerokość budynku
16,05 m
Maksymalna szerokość budynku wraz z grubością izolacji cieplnej oraz okładzin ściennych.
Długość budynku
11,00 m
Maksymalna długość budynku wraz z grubością izolacji cieplnej oraz okładzin ściennych.
W stylu
Nowoczesnym
Liczba kondygnacji
Z poddaszem użytkowym
Za kondygnacje uznawane są również poddasza użytkowe oraz piwnice. Kondygnacją nie jest natomiast poddasze nieużytkowe ani antresola.
Koszty
Koszty budowy
786 000 zł
Koszt: Stan pod klucz
Obejmuje koszt wszystkich robót stanu surowego, wykonania instalacji wewnętrznych oraz robót wykończeniowych.
505 000 zł
Koszt: Stan surowy zamknięty
Koszt wzniesienia budynku wraz z pokryciem dachu i stolarką zewnętrzną (okna i drzwi). Bez instalacji, ocieplenia i robót wykończeniowych.
Opis
DUO to projekt domu z użytkowym poddaszem zaprojektowany dla 3-pokoleniowej rodziny. Na powierzchni użytkowej 159 m2 pojawiło się wszystko czego może potrzebować współczesna rodzina. Projekt posiada otwartą część dzienną, w której pojawił się salon, jadalnia oraz otwarta kuchnia. W kuchni wygospodarowano miejsce na wyspę kuchenną, a obok pojawiła się spiżarnia. Spiżarnia stanowi jednocześnie łącznik pomiędzy kuchnia, a wiatrołapem co na pewno ułatwi wnoszenie zakupów. Na parterze zaprojektowano również dodatkowy pokój dla seniorów, czyli tzw. senioratkę. Seniorzy do dyspozycji mają również łazienkę, którą dostosowano do potrzeb osób niepełnosprawnych. Poddasze kryje w sobie cztery wygodne sypialnie oraz rodzinną łazienkę. Dwie sypialnie posiadają prywatną garderobę. Układ funkcjonalny poddasza dopełnia pralnia, w której oprócz prali i suszarki zaproponowano praktyczne półki. Projekt posiada dwustanowiskowy garaż.
CZYTAJ WIĘCEJ

Duo (PH)
BD51072
Powierzchnia użytkowa
Łączna powierzchnia tzw. pomieszczeń użytkowych. Przede wszystkim nie zalicza się do niej powierzchni garażu, nieużytkowego strychu, piwnicy, kotłowni.
158,25 m2
Liczba pokoi
6
Liczba łazienek
2
Garaż
1
Powierzchnia zabudowy
Powierzchnia zajmowana przez budynek na działce. W praktyce tzw. powierzchnia rzutu budynku wyznaczana po obrysie ścian zewnętrznych.
160,41 m2