Aris Beta Bobo


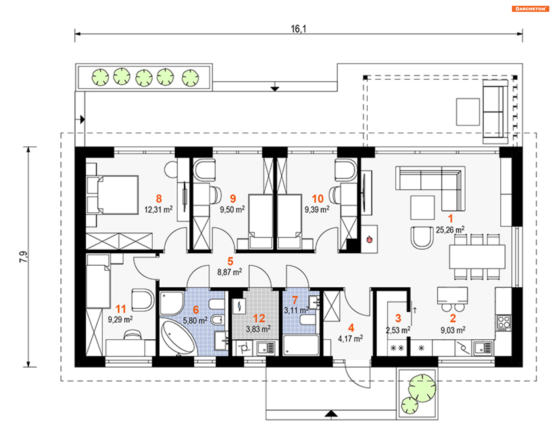
Aris Beta Bobo to projekt domu dla 5-osobowej rodziny o relatywnie niewielkiej powierzchni użytkowej (99,3 m²), który stwarza jednak w pełni komfortowe warunki do życia.
Zaprojektowany na planie prostokąta dom Aris Beta Bobo ma dwuspadowy dach i kalenicę usytuowaną równolegle do drogi dojazdowej. Parterowy budynek o zwartej, zgrabnej bryle pozbawiony jest ornamentów, jednak nie ma tu mowy o ascetycznej surowości. Z zewnątrz ocieplają go deski elewacyjne, których odcień przełamuje surowość szarego tynku, nadając całości energii i dynamiki.
W projekcie domu dla 5-osobowej rodziny znalazło się dość miejsca zarówno na przestrzeń wspólną, jak i na 4 osobne pokoje. Są tu też dwie łazienki oraz sporo przestrzeni do przechowywania (spiżarnia, pomieszczenie gospodarcze, wiatrołap). Latem przestrzeń powiększa się o duży taras, który rozciąga się na całym dłuższym boku prostokątnej bryły. Można na niego wyjść bezpośrednio z salonu, jak również przez drzwi balkonowe z trzech pokojów.
-
Teczka do przechowywania dokumentacji projektowej0 zł
-
Dziennik budowy0 zł
-
Tablica informacyjna na budowę - po otrzymaniu projektu domu i wypełnieniu ankiety0 zł
-
Zgoda na zmiany0 zł
-
Dokumentacja projektowa w plikach pdf0 zł

opieką konsultacyjną w trakcie budowy domu