Jadzia Atu



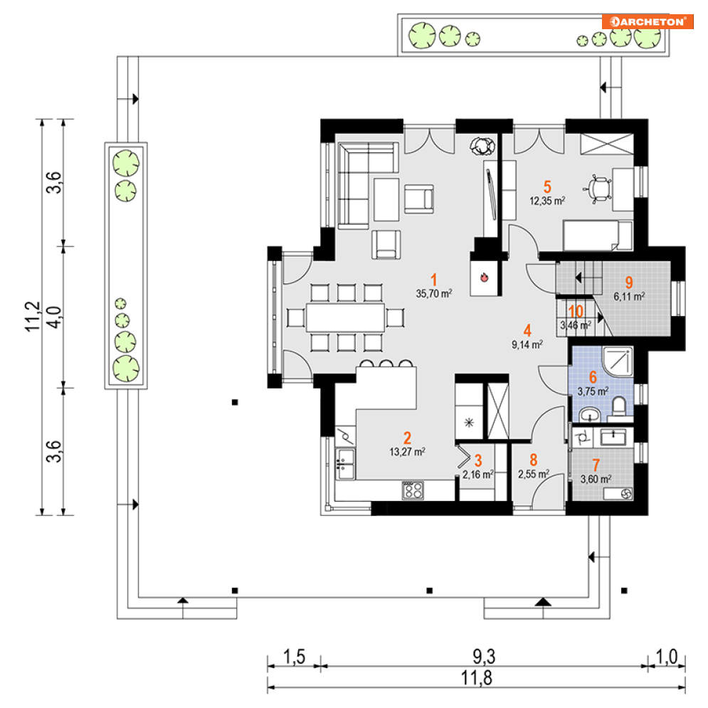
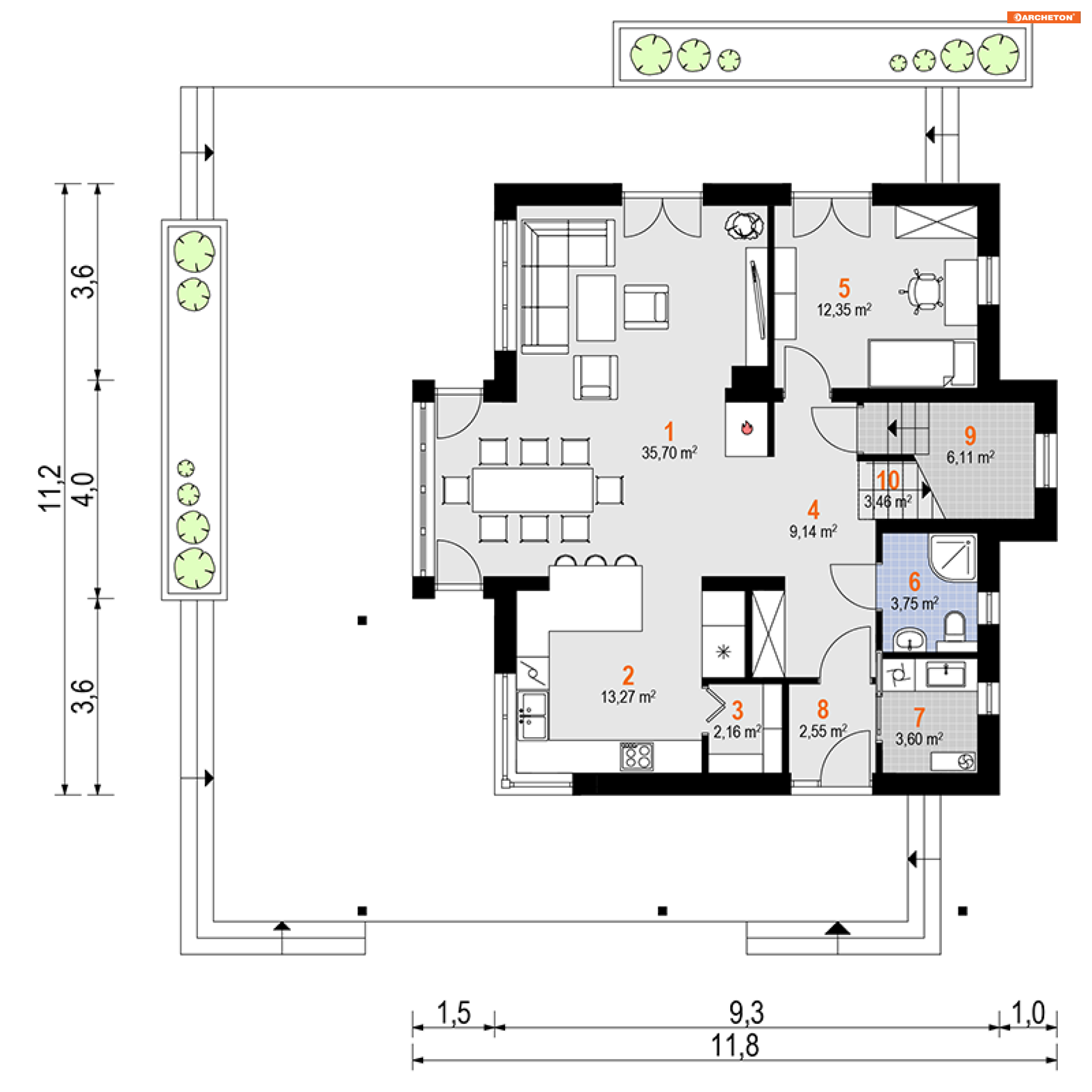
Głęboki, przyczółkowy okap dwuspadowego dachu, kryjący balkony w ścianach szczytowych i drewniane detale zwracają uwagę na potencjał projektu domu Jadzia Atu jako propozycji dla mało zurbanizowanych terenów górskich i nie tylko. Wejście ulokowane w krótszej elewacji prowadzi do komfortowego rozkładu pomieszczeń, z dodatkowym pokojem na parterze ale bez dostępu do garażu. Układ konstrukcyjny Jadzi Atu nie zamyka rygorystycznie pokoju dziennego, a jedynie zarysowuje podziały funkcji w oparciu o dwa ryzality: ze schodami i z jadalnią. W dachu zwieńczone są lukarnami, a na parterze akcentują środek rzutu z otwartym holem. Stąd ruch kierowany jest na poddasze z czterema pokojami i łazienką. Główna sypialnia ma prywatną łazienkę i garderobę. Przykrycie tarasu ogrodowego narożną pergolą, duże przeszklenie jadalni i narożne okno wygodnej kuchni ze spiżarnią wprowadzają do tradycyjnej bryły projektu domu Jadzia Atu elementy nowoczesnej stylistyki.
-
Teczka do przechowywania dokumentacji projektowej0 zł
-
Dziennik budowy0 zł
-
Tablica informacyjna na budowę - po otrzymaniu projektu domu i wypełnieniu ankiety0 zł
-
Zgoda na zmiany0 zł
-
Dokumentacja projektowa w plikach pdf0 zł

opieką konsultacyjną w trakcie budowy domu