Cykada 4 (CE)
Dodaj do porównania
Usuń z porównania
Dodaj do ulubionych
Usuń z ulubionych
Pow. użytkowa:
1058.7m2
Pow. zabudowy:
859.1m2
Koszt budowy:
5187000zł
Liczba pokoi:
13
Liczba łazienek:
15
Rzuty

Lustrzane odbicie
Pobierz rysunki szczegółowe
Zapytaj, co możesz zmienić

Lustrzane odbicie
Rzut parteru
694.8 m2
wiatrołap
5 m2
bar
87.2 m2
sala konsumpcyjna
370 m2
rozdzielnia kelnerska
6.7 m2
zmywalnia
6.4 m2
korytarz/komunikacja
9.1 m2
magazyn baru
3.6 m2
magazyn suchy
5.5 m2
obieralnia
6 m2
przygotowalnia
9.8 m2
korytarz/komunikacja
12 m2
wiatrołap
3.4 m2
pomieszczenie socjalne
3.9 m2
łazienka
4.8 m2
magazyn chłodniczy
7.5 m2
kuchnia
31.9 m2
WC
10.7 m2
WC
9.7 m2
korytarz/komunikacja
10.9 m2
WC
5.5 m2
pomieszczenie gospodarcze
5 m2
korytarz/komunikacja
4.6 m2
pomieszczenie gospodarcze
1.7 m2
łazienka
5.3 m2
sypialnia
20.3 m2
korytarz/komunikacja
6.9 m2
łazienka
5.4 m2
sypialnia
14.8 m2
łazienka
5.2 m2
sypialnia
16 m2
Pobierz rysunki szczegółowe
Zapytaj, co możesz zmienić

Lustrzane odbicie
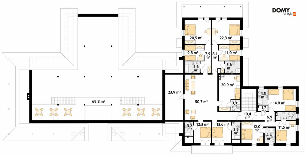
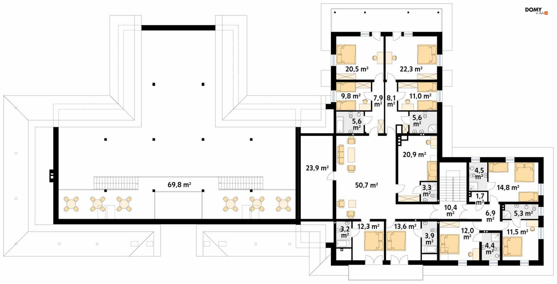
Rzut poddasza
363.9 m2
korytarz/komunikacja
10.4 m2
pomieszczenie rekreacyjne
50.7 m2
wentylatornia
23.9 m2
łazienka
5.6 m2
korytarz/komunikacja
7.9 m2
sypialnia
9.8 m2
sypialnia
20.5 m2
korytarz/komunikacja
8.1 m2
sypialnia
22.3 m2
sypialnia
11 m2
łazienka
5.6 m2
sypialnia
20.9 m2
łazienka
3.3 m2
pomieszczenie gospodarcze
1.7 m2
łazienka
4.5 m2
sypialnia
14.8 m2
korytarz/komunikacja
6.9 m2
łazienka
5.3 m2
sypialnia
11.5 m2
łazienka
4.4 m2
sypialnia
12 m2
łazienka
3.9 m2
sypialnia
13.6 m2
sypialnia
12.3 m2
łazienka
3.2 m2
antresola
69.8 m2
Pobierz rysunki szczegółowe
Zapytaj, co możesz zmienić

Lustrzane odbicie
Pobierz rysunki szczegółowe
Zapytaj, co możesz zmienić
Zamów rysunki szczegółowe
Zapoznaj się ze szczegółowymi rysunkami rzutów kondygnacji w PDF dla tego projektu.
ZAMAWIAM

Elewacje

Frontowa

Ogrodowa

Lewa

Prawa
Specyfikacja techniczna
Główne parametry
Powierzchnia użytkowa
1 058,70 m2
Łączna powierzchnia tzw. pomieszczeń użytkowych. Przede wszystkim nie zalicza się do niej powierzchni garażu, nieużytkowego strychu, piwnicy, kotłowni.
Liczba pokoi
13
Liczba łazienek
15
Powierzchnia zabudowy
859,10 m2
Powierzchnia zajmowana przez budynek na działce. W praktyce tzw. powierzchnia rzutu budynku wyznaczana po obrysie ścian zewnętrznych.
Pełna specyfikacja
Maksymalna wysokość budynku
9,79 m
Wysokość wyznaczona od poziomu terenu do najwyżej położonej części dachu (np. kalenicy), zwykle bez uwzględnienia kominów.
Kąt nachylenia dachu
30,00°
Nachylenie połaci dachu podane w stopniach.
Minimalne wymiary działki (szerokość)
59,90 m
Szerokość działki wyznaczona przy założeniu, że minimalna odległość budynku od granic działki wynosi przynajmniej 3 m w przypadku ścian bez otworów okiennych lub drzwiowych, albo 4 m w przypadku ścian budynku z takimi otworami.
Minimalne wymiary działki (długość)
38,54 m
Długość działki wyznaczona przy założeniu, że minimalna odległość budynku od granic działki wynosi przynajmniej 3 m w przypadku ścian bez otworów okiennych lub drzwiowych, albo 4 m w przypadku ścian budynku z takimi otworami.
Technologia budowy
Murowany
Typ dachu
Wielospadowy
Kształt dachu – płaski, jednospadowy (jedna skośna połać), dwuspadowy (dwie połacie), wielospadowy (w praktyce o przynajmniej czterech połaciach).
Energooszczędność
Standardowy
Energooszczędny – dom o zapotrzebowaniu na tzw. nieodnawialna energię pierwotną (EP) niższym, niż wymagana przepisami maksymalna wartość.
Koszt: Wykoczńenie
64 814 zł
Kubatura budynku
5 050,00 m3
Objętość budynku, zwykle wraz z elementami konstrukcyjnymi (ścianami, stropami itd.).
Szerokość budynku
53,78 m
Maksymalna szerokość budynku wraz z grubością izolacji cieplnej oraz okładzin ściennych.
Długość budynku
26,32 m
Maksymalna długość budynku wraz z grubością izolacji cieplnej oraz okładzin ściennych.
W stylu
Rustykalnym
Liczba kondygnacji
Z poddaszem użytkowym
Za kondygnacje uznawane są również poddasza użytkowe oraz piwnice. Kondygnacją nie jest natomiast poddasze nieużytkowe ani antresola.
Koszty
Koszty budowy
5 187 000 zł
Koszt: Stan pod klucz
Obejmuje koszt wszystkich robót stanu surowego, wykonania instalacji wewnętrznych oraz robót wykończeniowych.
3 377 000 zł
Koszt: Stan surowy zamknięty
Koszt wzniesienia budynku wraz z pokryciem dachu i stolarką zewnętrzną (okna i drzwi). Bez instalacji, ocieplenia i robót wykończeniowych.
Opis
Przestronny pensjonat z użytkowym poddaszem, podpiwniczony. Zaprojektowano 11 pokoi do wynajęcia, w tym: 3 pokoje na parterze przystosowane do potrzeb osób niepełnosprawnych oraz 6 pokoi i 2 apartamenty na poddaszu. Na część rekreacyjną składa się bar oraz sala bankietowa o powierzchni 370 m2 z antresolą i rozległym tarasem.
Dodatki do projektu
Opieka konsultacyjna
0zł
599 zł
Prenumerata 12 tytułów
0zł
599 zł
-
Bioz0 zł
-
Dziennik budowy0 zł
-
Rzut w skali 1 5000 zł
-
Zgoda na zmiany0 zł
-
Dodatkowy egzemplarz projektu19 560 zł
Prenumerata 12 tytułów
0zł
599 zł
-
Elektroniczna wersja projektu9 780 zł
-
Kosztorys2 000 zł
-
Rekuperacja600 zł
-
Schemat szamba60 zł

Cykada 4 (CE)
BD50810
Powierzchnia użytkowa
Łączna powierzchnia tzw. pomieszczeń użytkowych. Przede wszystkim nie zalicza się do niej powierzchni garażu, nieużytkowego strychu, piwnicy, kotłowni.
1 058,70 m2
Liczba pokoi
13
Liczba łazienek
15
Powierzchnia zabudowy
Powierzchnia zajmowana przez budynek na działce. W praktyce tzw. powierzchnia rzutu budynku wyznaczana po obrysie ścian zewnętrznych.
859,10 m2
Kup projekt
65 200 zł
Projekt + opieka konsultacyjna
Tylko u nas
kupujesz projekt wraz z
opieką konsultacyjną w trakcie budowy domu
opieką konsultacyjną w trakcie budowy domu
Kup projekt
65 200 zł
Masz pytania?
Zadzwoń!
22 257 84 76
pon-pt: 9-17