Sensowny 3 B






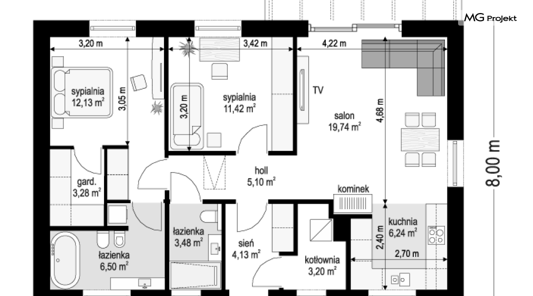
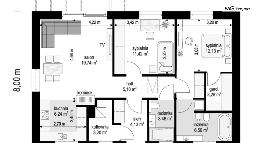
Projekt domu Sensowny 3 B to niewielki dom jednorodzinny z serii „Sensownych” z oferty Mg Projekt. Jest to wariant projektu z czterospadowym dachem, z prostokątnym rzutem o wymiarach 12x 8 m, kryjący w sobie przestronne, funkcjonalne wnętrze, przeznaczone dla 2-3 osobowej rodziny, z dwiema dużymi sypialniami. „Sensowny 3B” to doskonały sposób na wygodne i niedrogie mieszkanie na własnej działce z ogrodem. Dom jest łatwy i tani w budowie, oraz niedrogi w późniejszej eksploatacji. Poza pięknym czterospadowym dachem krytym dachówką ma w nim żadnych udziwnień architektonicznych, więc nie ma się co w nim zepsuć - nie będzie wymagał ciągłej pracy i pielęgnacji. „Sensowny 3B” może też być udaną propozycją na drugi wakacyjny dom poza miastem.Architektura budynku utrzymana jest w stylistyce będącej symbiozą nowoczesności i tradycji. Symetria elewacji i właściwe proporcje, oraz kolorystyka materiałów wykończeniowych tworzą bardzo miłą dla oka całość. Wejście do domu podkreślono wysuniętym dachem zakrywającym podest wejściowy. Drzwi wejściowe zaakcentowane są kontrastującą opaską. Od strony ogrodu królują szerokie drzwi balkonowe, otwierające przestrzeń pokoju dziennego na taras i otaczający dom ogród, kryjące się pod ogrodową pergolą - zadaszeniem.
Okna w domu ozdobiono urokliwymi okiennicami – tak rzadko dziś stosowanymi przez Inwestorów, a dodającymi domowi tak wiele urody. Wnętrze podzielono na przestrzeń dzienną – z salonem, kuchnią i holem, oraz na część nocną – z dwiema sypialniami i dwiema łazienkami. Sypialnia master stanowi własny oddzielny apartament z łazienką i garderobą. Z przedsionka mamy dostęp do kotłowni, której komin połączony jest z przewodem kominka salonu w jeden zestaw. Salon ma bardzo ładne ustawienie - ze ścianą telewizyjną i narożnym kominkiem widocznym z każdego miejsca. Mimo niedużej powierzchni, wnętrze domu jest bardzo wygodne, przestronne i funkcjonalne. Konstrukcja budynku jest prosta i tania w budowie. Wszystkie prace murarskie i betoniarskie kończą się na poziomie wieńców nad ścianami parteru. Powyżej zaprojektowaliśmy układ drewnianych wiązarów dachowych, które stanowią konstrukcję zarówno stropu nad parterem jak i więźby dachowej. Takie rozwiązanie znakomicie przyspiesza i upraszcza budowę i - przede wszystkim - obniża koszty. Wiązary dachowe pozwalają oczywiście wykorzystać przestrzeń strychową nad parterem na domowy magazyn. W projekcie zastosowano bardzo dobre izolacje i nowoczesne instalacje, dzięki czemu dom jest energooszczędny i będzie tani w późniejszym utrzymaniu. „Sensowny 3B” to bardzo dobra propozycja dla osób, które planują budowę domu, ale nie zamierzają wydać na niego ostatnich pieniędzy w życiu tylko po to żeby zaimponować sąsiadom. To doskonała propozycja dla osób podchodzących do budowy swojego domu w sposób pragmatyczny i rozsądny. Budowa „Sensownego 3 B ” będzie czystą przyjemnością. Zapraszamy !
-
Projekt szamba szczelnego0 zł399 zł
-
Charakterystyka energetyczna0 zł200 zł
-
Pakiet energooszczędny0 zł150 zł
-
Dziennik budowy0 zł60 zł
-
Tablica budowy0 zł120 zł
-
Wersja elektroniczna projektu550 zł
-
Pakiet kosztorys inwestorski550 zł
-
Pakiet ogrzewanie podłogowe470 zł
-
Powietrzna pompa ciepła470 zł
-
Pakiet wentylacja mechaniczna i kominek DGP470 zł
-
Dodatkowy egzemplarz projektu500 zł
-
Pakiet kotłownia na paliwo stałe470 zł
-
Pakiet instalacja fotowoltaiczna470 zł
-
Pakiet klimatyzacja w domu470 zł
-
Pakiet gruntowa pompa ciepła470 zł
-
Pakiet odkurzacz centralny470 zł
-
Pakiet płaszcz wodny470 zł
-
Pakiet kominek DGP399 zł
-
Projekty altan i grillów ogrodowych650 zł
-
Pakiet instalacja solarna470 zł

opieką konsultacyjną w trakcie budowy domu