Willa Floryda 7







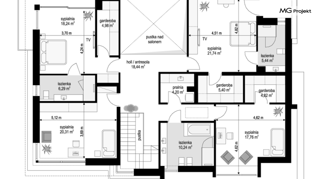
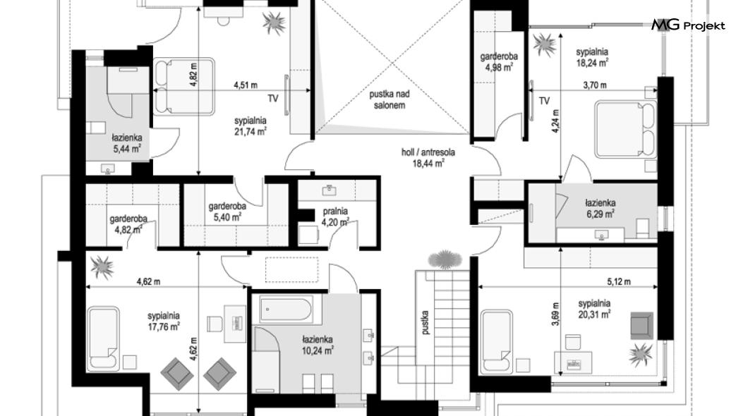
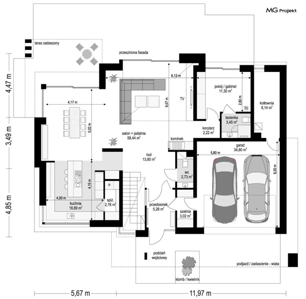
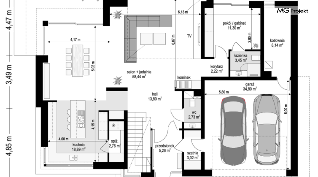
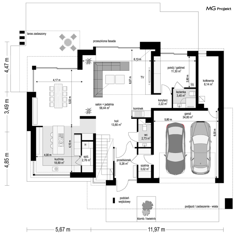
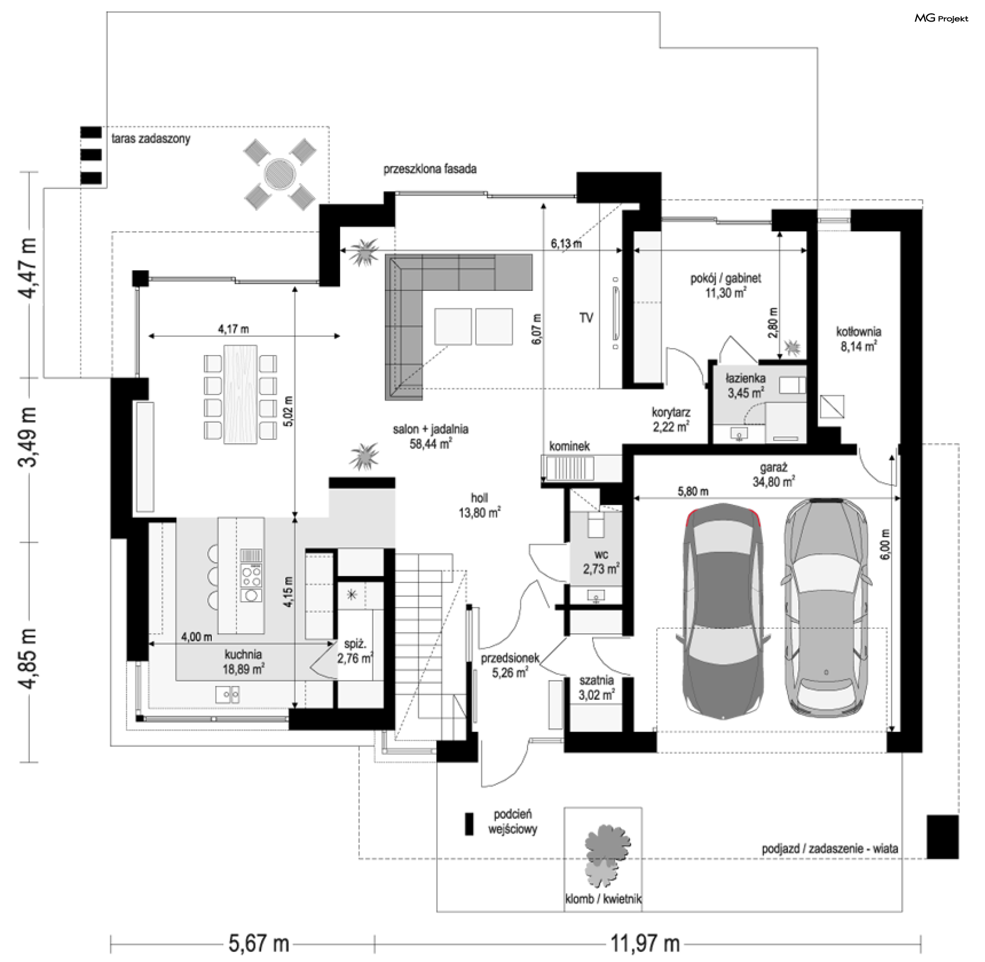
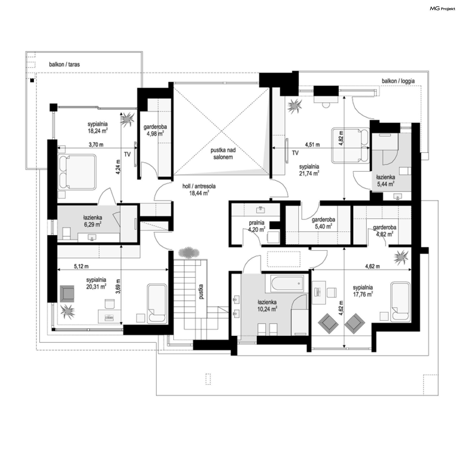
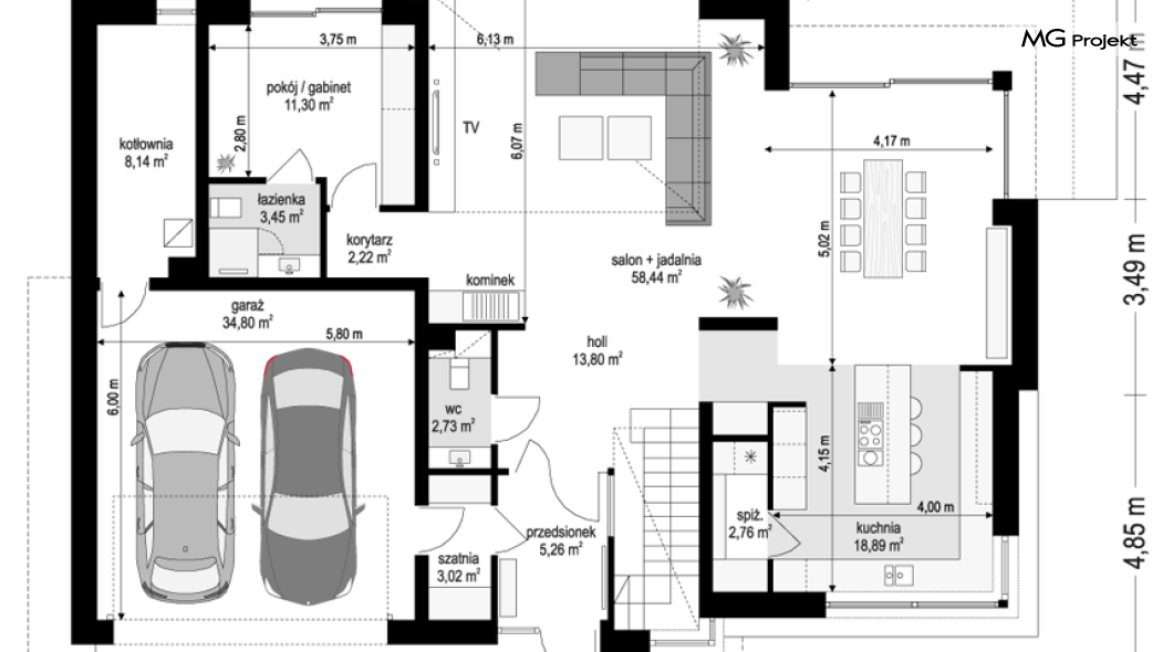
Projekt domu Willa Floryda 7 jest kolejną propozycją dużego reprezentacyjnego domu piętrowego z serii „Willa Floryda” - tym razem jest to projekt Willa Floryda 7. Dom został zaprojektowany jako duża przestronna miejska willa, nadająca się na działkę o minimalnej szerokości 25 metrów. Budynek łączy w sobie zwartą prostopadłościenną bryłę, komfortowe, reprezentacyjne i funkcjonalne wnętrze, oraz nowoczesną atrakcyjną architekturę z ciekawymi detalami. Willa Floryda 7 jest mniejszym budynkiem od podstawowego projektu. Ma mniejszą powierzchnię, mniej rozciągnięty rzut, dzięki czemu budynek jest mniej kosztowny. Zachowaliśmy tu wszystkie charakterystyczne elementy „Floryd” : podział fasad na poziome pasy elewacji, duże ilości przeszkleń, wejście podkreślone dominantą z górującym świetlikiem piętra, oraz zadaszenie – wiata przed garażami i podestem wejściowym. Dodatkowo wprowadziliśmy kolejne architektoniczne smaczki, jak narożnie usytuowaną i przeszkloną klatkę schodową, ciekawy wykusz pierwszego piętra z szerokim oknem nad garażami, a od strony ogrodowej podział elewacji na dwie kolorystycznie zróżnicowane części, z podkreślonym dwukondygnacyjnym oknem salonu. Całość bryły budynku przykryta jest – jak we wszystkich Florydach - dachem skośnym czterospadowym z szerokim gzymsowaniem. O architekturze tego domu można byłoby napisać jeszcze wiele zdań - ale najlepiej opowiedzą o niej same wizualizacje zewnętrzne i wewnętrzne budynku. Jeśli chodzi o układ funkcjonalny : dom podzielono na cześć dzienną i techniczno-garażową na parterze, oraz cześć z sypialniami na piętrze. Do domu wchodzimy wygodnym przedsionkiem z szatnią do otwartego holu z reprezentacyjnymi schodami. Rozległa przestrzeń dzienna składająca się z pokoju dziennego, jadalni i kuchni otwiera się dużymi przeszkleniami na taras i ogród willi. Nad salonem znajduje się pustka i otwarcie na antresolę na górze. Przez wielkie dwukondygnacyjne okno salonu możemy podziwiać ogród. Dodatkowe pomieszczenia na parterze to pokój-gabinet z osobną łazienką, oraz garaż z pomieszczeniem technicznym. Na piętrze miejsce znalazły 4 sypialnie, w tym dwa apartamenty z własnymi łazienkami i garderobami, z balkonami otwartymi na ogród, dodatkowa duża łazienka i pralnia. Wnętrze można oczywiście dowolnie modelować dostosowując do potrzeb konkretnej rodziny. Budynek zaprojektowano jako energooszczędny, z dobrymi izolacjami i nowoczesnymi instalacjami. Dom, mimo nowoczesnego i ekstrawaganckiego wyglądu, ma prostą konstrukcję i zwartą bryłę, dzięki czemu nie będzie trudny w budowie i powinien być niedrogi w późniejszej eksploatacji. Willa Floryda 7 to propozycja dla Inwestorów planujących budowę oryginalnego, wyjątkowego domu o nowoczesnym i reprezentacyjnym stylu. Willa będzie nietuzinkową i wyjątkową scenografią codziennego życia, podkreślającą dobry gust i oczekiwanie komfortu jego użytkowników. Dom stawiając Inwestorom wysoko poprzeczkę, odwdzięczy się ciesząc oko i karmiąc codziennie zmysły właścicieli, przyciągając jednocześnie zaciekawione spojrzenia sąsiadów i przechodniów. Willa Floryda 7 do dom dla Inwestorów chcących wyrazić siebie i zaznaczyć swoje przywiązanie do dobrego smaku i jakościowej architektury. Zapraszamy !
Zapraszamy do zapoznania się z pełną ofertą pracowni: Willa Floryda 2, Willa Floryda, Willa Floryda 3, Willa Floryda 4, Willa Floryda 5, Willa Floryda 6 Rezydencja Floryda, Rezydencja Floryda 2.
-
Projekt szamba szczelnego0 zł399 zł
-
Charakterystyka energetyczna0 zł200 zł
-
Pakiet energooszczędny0 zł150 zł
-
Dziennik budowy0 zł60 zł
-
Tablica budowy0 zł120 zł
-
Wersja elektroniczna projektu550 zł
-
Pakiet kosztorys inwestorski550 zł
-
Pakiet ogrzewanie podłogowe470 zł
-
Powietrzna pompa ciepła470 zł
-
Pakiet wentylacja mechaniczna i kominek DGP470 zł
-
Dodatkowy egzemplarz projektu500 zł
-
Pakiet kotłownia na paliwo stałe470 zł
-
Pakiet instalacja fotowoltaiczna470 zł
-
Pakiet klimatyzacja w domu470 zł
-
Pakiet gruntowa pompa ciepła470 zł
-
Pakiet odkurzacz centralny470 zł
-
Pakiet płaszcz wodny470 zł
-
Pakiet kominek DGP399 zł
-
Projekty altan i grillów ogrodowych650 zł
-
Pakiet instalacja solarna470 zł

opieką konsultacyjną w trakcie budowy domu