Willa Parkowa 9







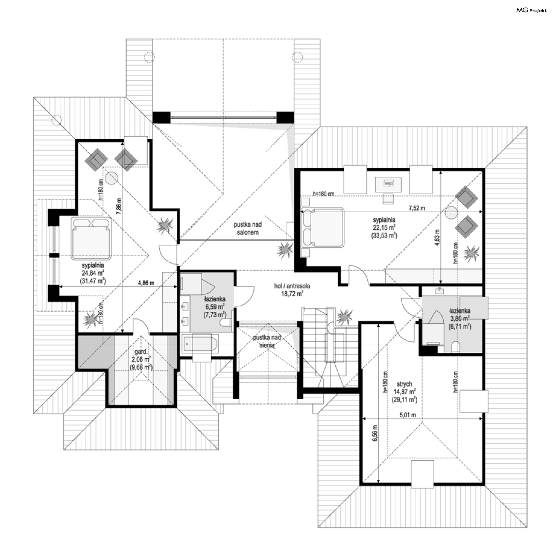
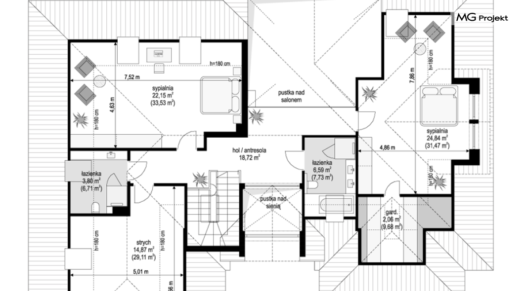
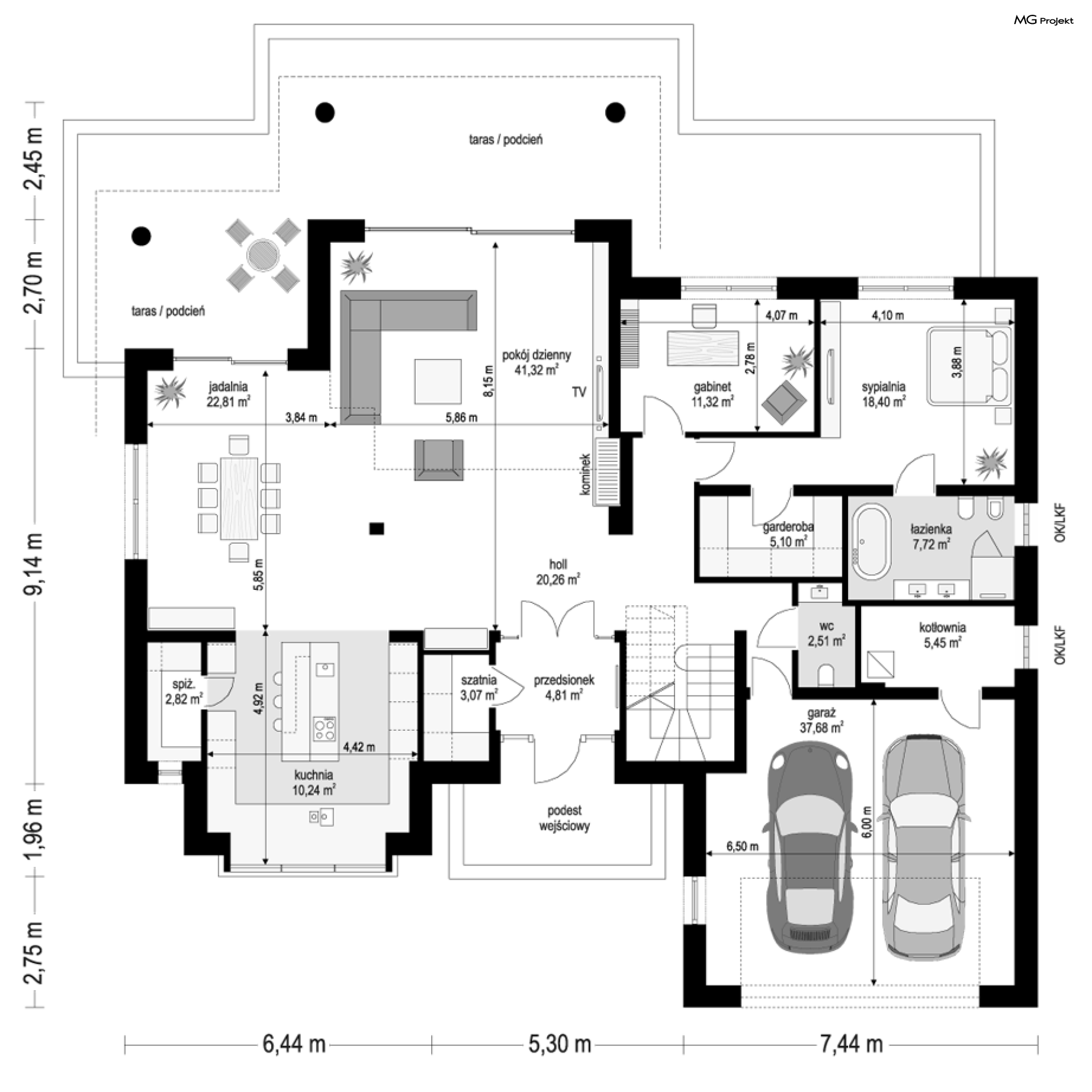
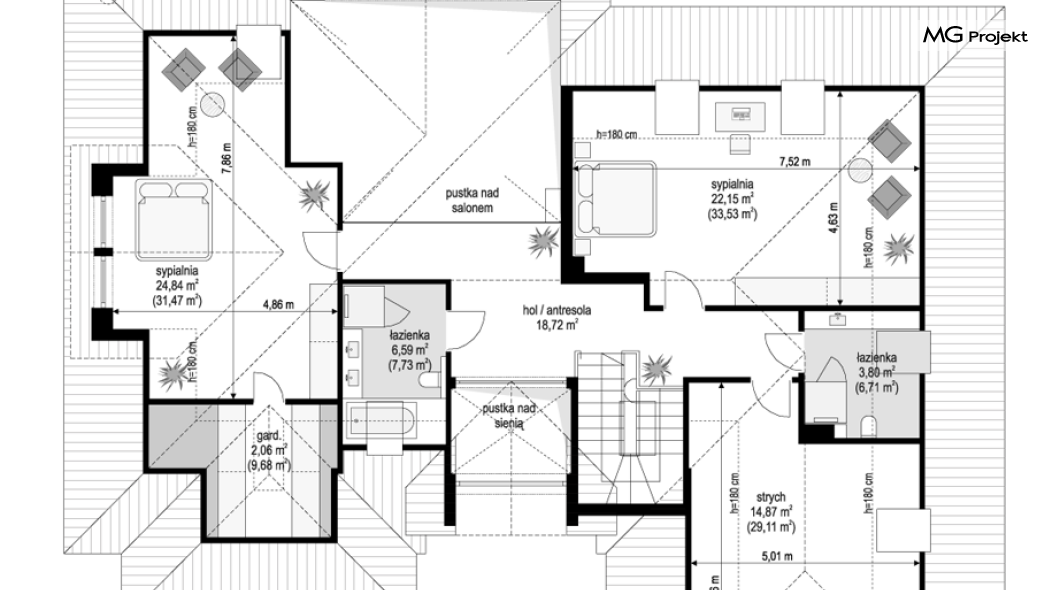
Projekt domu Willa Parkowa 9 jest kolejną wersją projektu z cieszącej się uznaniem serii domów : „Willa Parkowa”. Projekt domu jednorodzinnego, parterowego z poddaszem użytkowym, przeznaczonego dla rodziny 4-5cioosobowej, będącego połączeniem funkcjonalnej nowoczesnej willi, z klasyczną dworkowo-rezydencyjną stylistyką. Dom zaprojektowano na planie prostokąta, z dobudowaną częścią garażową, oraz wykuszami kuchni i salonu. Budynek łączy w sobie detale charakterystyczne dla serii projektów „Parkowa”, ale jednocześnie jest zaprojektowany zupełnie od nowa, z inną zasadą kształtowania wnętrza i zewnętrznych fasad. Bryła budynku jest tutaj bardziej zwarta, węższa a zarazem głębsza, podwyższony dach o kącie 38 stopni mieści w sobie pełne poddasze użytkowe, część wejściowa, wkomponowana między zadaszenie garażu i dach nad kuchnią ma zmienioną – bardziej reprezentacyjną formę, z podwyższonym naświetlem nad drzwiami wejściowymi. Część wejściowa wygląda jeszcze bardziej atrakcyjnie w stosunku do tradycyjnego portalu w projektach „Parkowych” i przypomina swoim wyglądem wzory eleganckich portyków wejściowych amerykańskich rezydencji. Od strony ogrodowej tradycyjnie dla tej serii projektów dominuje wielkie okno salonu z łukowym naświetlem, skryte w dekoracyjnym zadaszeniu nad tarasem. Zadaszenie przesunięte jest bardziej na środek elewacji. Całość bryły domu wieńczy masywny wielospadowy dach przykryty dachówką ceramiczną. Wnętrze „Willi Parkowej 9” podzielono w następujący sposób: parter to cześć dzienna, oddzielny apartament master z dodatkowym pokojem do pracy, oraz garaż z pomieszczeniem technicznym. Poddasze to sypialnie dziecięce z łazienkami i przestrzeń strychowa nad garażem. Do domu wchodzimy przez piękną podwyższoną sień z naświetlami, do holu i następnie części dziennej, składającej się z salonu wypoczynkowego, jadalni, oraz częściowo otwartej kuchni. W salonie dominującymi elementami są duże przeszklenie otwierające pokój dzienny na taras i ogród, oraz otwarcie sufitu na dach i antresolę na poddaszu. Po drugiej stronie domu znajdują się wygodne schody na poddasze, przejście do garażu i kotłowni, a także oddzielna część rodziców z sypialnią master, własną łazienką, garderobą, wyjściem na taras ogrodowy i dodatkowym pokojem – gabinetem. Na poddaszu mieszczą się dwie duże sypialnie dziecięce, dwie łazienki i dodatkowe pomieszczenie nad garażem - strych /magazyn, który w łatwy sposób może być przystosowany jako dodatkowy pokój. Wnętrze domu zaprojektowano w taki sposób aby łatwo można je było przystosować na przestrzeni lat do funkcjonowania rodziny - od małych dzieci, przez dzieci większe -nastoletnie, przez prawie dorosłe, aż do momentu gdy gospodarze zostają sami na swoich „włościach”. „Willa Parkowa 9” została zaprojektowana jako dom energooszczędny, z dobrej jakości materiałów, z dobrą izolacją termiczną i z nowoczesnymi instalacjami. Budynek mimo rozbudowanej bryły wykonano w tradycyjnej technologii, z rozwiązaniami spotykanymi na każdej budowie. Budowa domu nie powinna być problemem dla fachowego wykonawcy. Willa Parkowa 9 to doskonała propozycja dla Inwestorów planujących budowę wygodnego domu o klasycznej architekturze, dającego przestrzeń do komfortowego życia, marzących o realizacji nietuzinkowego projektu o ponadczasowej stylistyce. Zapraszamy do obejrzenia wszystkich projektów domów z serii Willa Parkowa: https://www.mgprojekt.com.pl/willa-parkowa, https://www.mgprojekt.com.pl/willa-parkowa-2, https://www.mgprojekt.com.pl/willa-parkowa-3, https://www.mgprojekt.com.pl/willa-parkowa-4, https://www.mgprojekt.com.pl/willa-parkowa-5, https://www.mgprojekt.com.pl/willa-parkowa-6, https://www.mgprojekt.com.pl/willa-parkowa-6-d, https://www.mgprojekt.com.pl/willa-parkowa-7, https://www.mgprojekt.com.pl/willa-parkowa-8-a, https://www.mgprojekt.com.pl/willa-parkowa-8-b, https://www.mgprojekt.com.pl/willa-parkowa-9, https://www.mgprojekt.com.pl/willa-parkowa-10, https://www.mgprojekt.com.pl/willa-parkowa-b, https://www.mgprojekt.com.pl/willa-parkowa-c, https://www.mgprojekt.com.pl/willa-parkowa-d.
-
Projekt szamba szczelnego0 zł399 zł
-
Charakterystyka energetyczna0 zł200 zł
-
Pakiet energooszczędny0 zł150 zł
-
Dziennik budowy0 zł60 zł
-
Tablica budowy0 zł120 zł
-
Wersja elektroniczna projektu550 zł
-
Pakiet kosztorys inwestorski550 zł
-
Pakiet ogrzewanie podłogowe470 zł
-
Powietrzna pompa ciepła470 zł
-
Pakiet wentylacja mechaniczna i kominek DGP470 zł
-
Dodatkowy egzemplarz projektu500 zł
-
Pakiet kotłownia na paliwo stałe470 zł
-
Pakiet instalacja fotowoltaiczna470 zł
-
Pakiet klimatyzacja w domu470 zł
-
Pakiet gruntowa pompa ciepła470 zł
-
Pakiet odkurzacz centralny470 zł
-
Pakiet płaszcz wodny470 zł
-
Pakiet kominek DGP399 zł
-
Projekty altan i grillów ogrodowych650 zł
-
Pakiet instalacja solarna470 zł

opieką konsultacyjną w trakcie budowy domu