Amelia







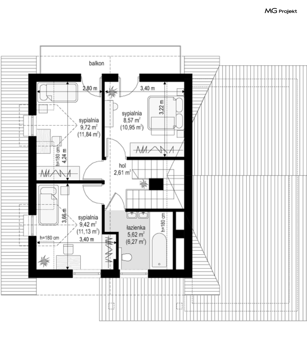
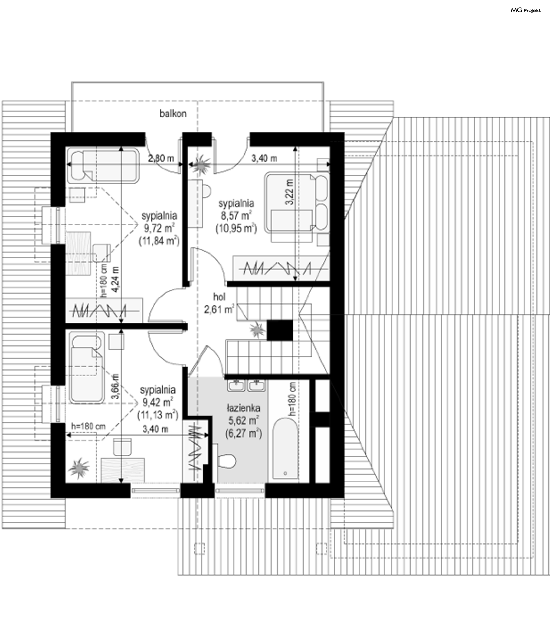
Projekt domu Amelia to nieduży dom parterowy z poddaszem użytkowym dla cztero-pięcioosobowej rodziny. Budynek przekryty został dwuspadowymi dachami, w projekcie przewidziano również garaż. Prostą, bezpretensjonalną bryłę domu Amelia zestawiono z nowoczesnym, oszczędnym detalem, co dodaje domowi elegancji. Dodatkową ozdobą domu są fragmenty elewacji wykończone drewnianą okładziną oraz płytkami klinkierowymi. Na parterze, oprócz jednoprzestrzennej części dziennej, z salonem, holem, otwartą kuchnią i centralnie usytuowanymi schodami, zaprojektowano dodatkowy pokój (np. sypialnię lub pokój do pracy), garaż, oraz łazienkę z miejscem na kocioł c.o. Na poddaszu zaplanowano trzy sypialnie z łazienką. Dom mimo niewielkiej powierzchni mieści w sobie wiele funkcji - w niewielu projektach domów tej wielkości znaleźć można cztery pokoje oraz salon, dwie łazienki i przestronny garaż. Pracownia posiada odbicie lustrzane projektu domu Amelia.
-
Projekt szamba szczelnego0 zł399 zł
-
Charakterystyka energetyczna0 zł200 zł
-
Pakiet energooszczędny0 zł150 zł
-
Dziennik budowy0 zł60 zł
-
Tablica budowy0 zł120 zł
-
Wersja elektroniczna projektu550 zł
-
Pakiet kosztorys inwestorski550 zł
-
Pakiet ogrzewanie podłogowe470 zł
-
Powietrzna pompa ciepła470 zł
-
Pakiet wentylacja mechaniczna i kominek DGP470 zł
-
Dodatkowy egzemplarz projektu500 zł
-
Pakiet kotłownia na paliwo stałe470 zł
-
Pakiet instalacja fotowoltaiczna470 zł
-
Pakiet klimatyzacja w domu470 zł
-
Pakiet gruntowa pompa ciepła470 zł
-
Pakiet odkurzacz centralny470 zł
-
Pakiet płaszcz wodny470 zł
-
Pakiet kominek DGP399 zł
-
Projekty altan i grillów ogrodowych650 zł
-
Pakiet instalacja solarna470 zł

opieką konsultacyjną w trakcie budowy domu