Artemida
 
 
 
 
     
 
 
 
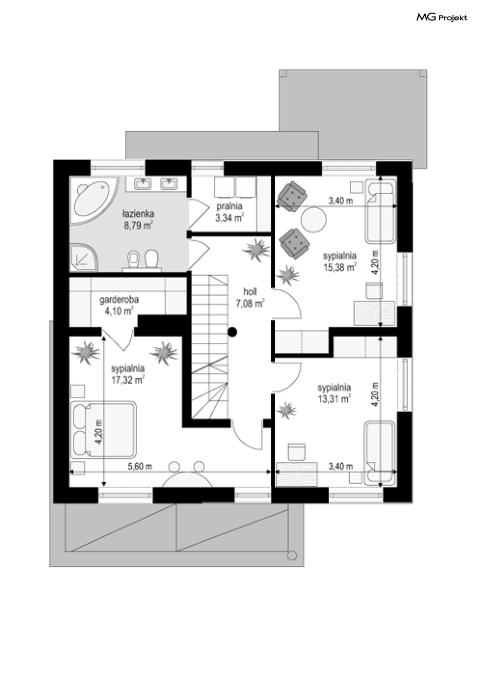
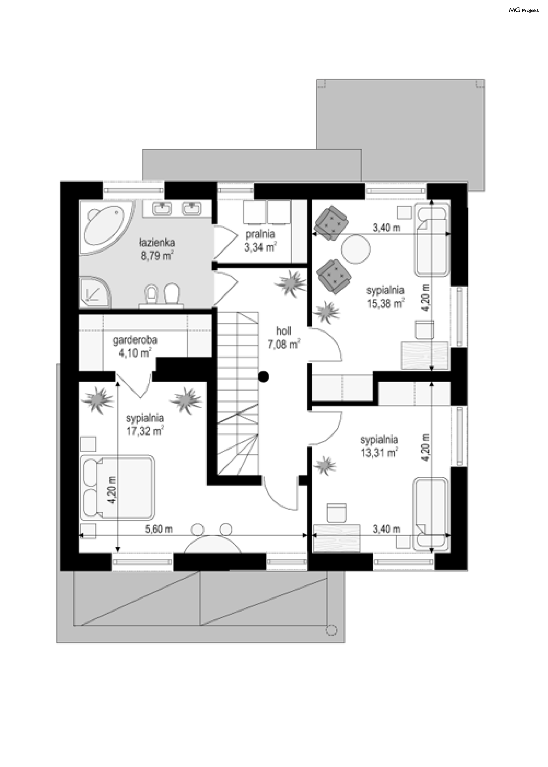
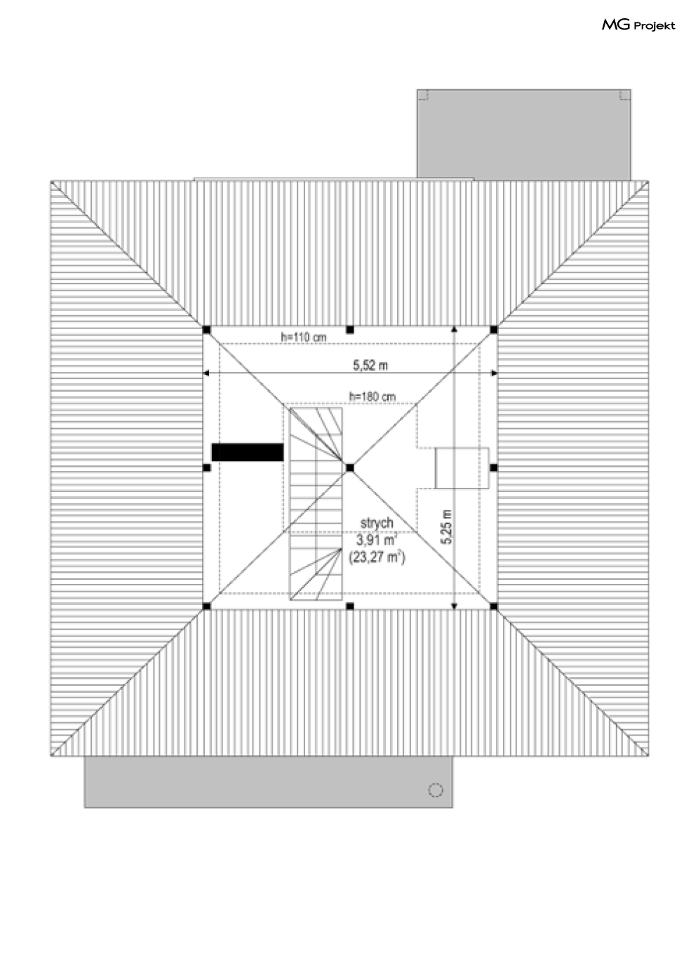
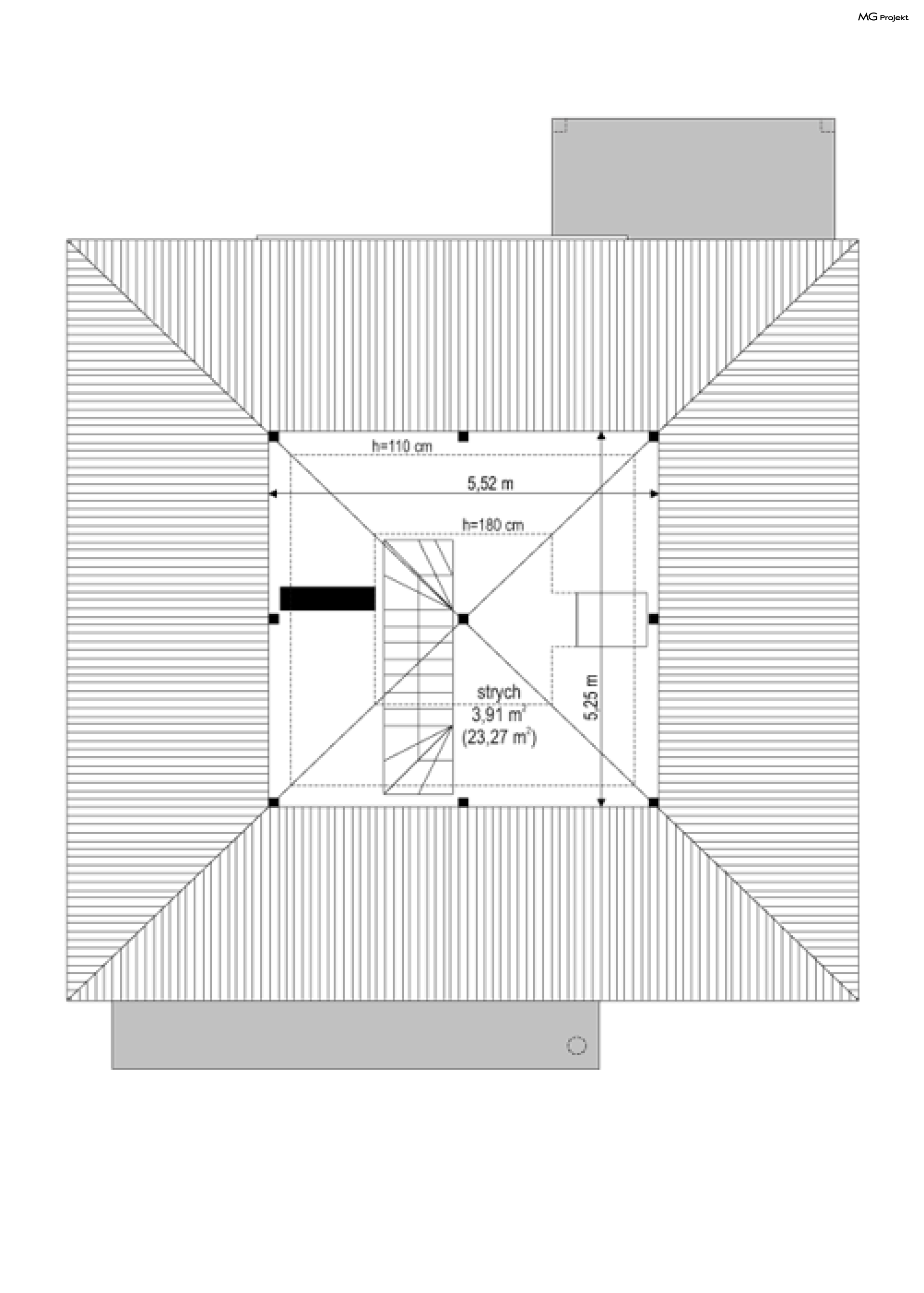
Projekt domu Artemida to nieduży, piętrowy dom, dla czteroosobowej rodziny, o zwartej, prostej w budowie bryle i nowoczesnej architekturze. Projekt domu Artemida zaprojektowano na planie kwadratu i przekryto czterospadowym, kopertowym dachem. Lekko wystający garaż z podcieniem wejściowym, zadaszenie nad tarasem ogrodowym, okładziny naścienne wokół okien - wszystkie te elementy urozmaicają sylwetkę nadając jej atrakcyjny wygląd. Wnętrze domu Artemida podzielono na część dzienną i gospodarczą na parterze, oraz sypialnie na piętrze. Salon połączony został z aneksem jadalnym, holem z wyeksponowanymi schodami i otwartą kuchnią tworząc w ten sposób jednoprzestrzenne, dzienne wnętrze. W projekcie domu Artemida garaż dostępny jest z przedsionka a wraz z dużą kotłownią stanowią część gospodarczą. Trzy wygodne sypialnie na piętrze, z garderobą z sypialni rodziców, oraz łazienka z pralnią, to część nocna. Dom, choć o niewielkiej powierzchni, mieści w sobie wszystkie potrzebne pomieszczenia. Pokoje są obszerne, a dzięki piętru - nie ma skosów. Nad piętrem znajduje się strych do ewentualnej adaptacji. Pracownia posiada wersję odbicia lustrzanego projektu domu Artemida. Zapraszamy!
 
 
 
 
 
 
 
 
 
 
 
 
 
 
 
 
 
 
 
 
 
 
 
 
 
 
 
 
 
 
 
 
 
 
 
 
 
 
 
 
 
 
 
 
 
 
             
 
 
 
 
 
 
 
 
 
 
 
 
 
 
                                         
 
                                         
 
                                         
                         
                         
                     
                         
                        