Szmaragd







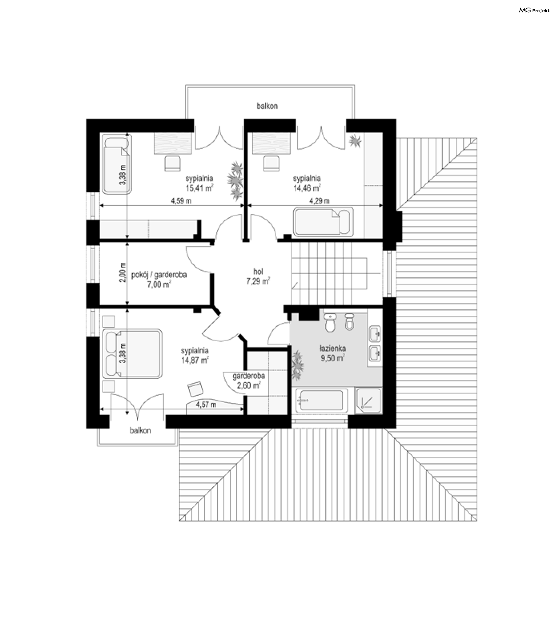
Projekt domu Szmaragd to jeden z najnowszych projektów domów jednorodzinnych. Nowoczesna forma budynku z atrakcyjnymi detalami współgra w nim z prostą formą zbudowanej na planie kwadratu bryły, przekrytej kopertowym dachem. Zasadniczą bryłę domu wzbogacono o częściowo wystający garaż, podcień wejściowy i ogrodowy, wykusz i balkony. Projekt domu Szmaragd, jako całość, tworzy spójną, czystą kompozycję. Nowoczesny wygląd zewnętrzny budynku w harmonijny sposób koresponduje z wnętrzem, gdzie na parterze zaprojektowano jednoprzestrzenną otwartą część dzienną holu, jadalni i salonu, z dużymi przeszkleniami na ogród. Aneks jadalny częściowo połączono z kuchnią. Na parterze swoje miejsce znalazł także dwustanowiskowy garaż oraz kotłownia. W Szmaragdzie, w mieszkaniu na piętrze umieszczono trzy sypialnie i łazienką. Zaprojektowano także dodatkowy pokój mogący służyć jako gabinet, sypialnia gościnna, albo garderoba. Projekt domu Szmaragd dostępny jest w odbiciu lustrzanym jak i w kilku innych wersjach: zbliźniaczona (projekt domu Szmaragd 2), wersja z dodatkowym pokojem na parterze (projekt domu Szmaragd 3) oraz wersje w nowocześniejszym stylu ( projekt domu Szmaragd 4), (projekt domu Szmaragd 5), (projekt domu Szmaragd 6). Zapraszamy !
