Szmaragd 2







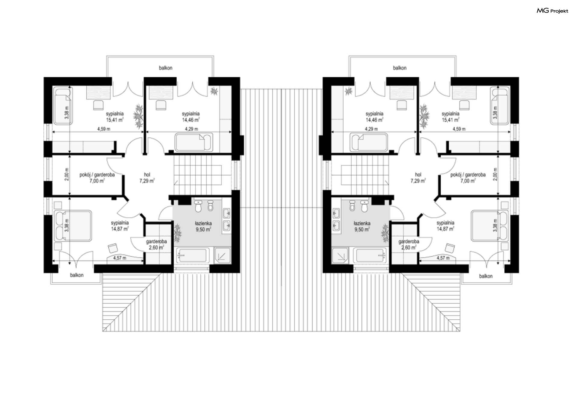
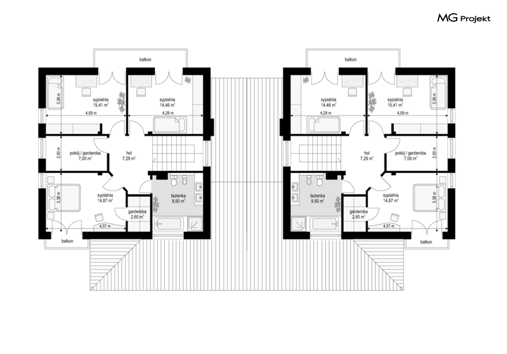
Projekt domu Szmaragd 2 to wariantowe rozwiązanie projektu domu Szmaragd. Zaprojektowano go tym razem w wersji bliźniaczej. Budynek o nowoczesnej formie z atrakcyjnymi detalami współgra z prostotą bryły i konstrukcji. Projekt domu Szmaragd 2 to dwie części bliźniaka przekryte dachami kopertowymi połączono garażami zwieńczonymi dwuspadowym, niższym dachem. Dzięki temu połówki domu są od siebie wizualnie odseparowane. Zasadniczą bryłę projektu domu Szmaragd 2 wzbogacono o częściowo wystający garaż, podcień wejściowy i ogrodowy oraz wykusz i balkony. Całość tworzy spójną, czystą kompozycję. Nowoczesny zewnętrzny wygląd budynku współgra doskonale z wnętrzem. Na parterze zaplanowano jednoprzestrzenną otwartą część dzienną holu, jadalni i salonu, z dużymi przeszkleniami na ogród. Aneks jadalny częściowo połączono z kuchnią. Na parterze mieszkania, swoje miejsce znalazł także dwustanowiskowy garaż i kotłownia. W domu Szmaragd 2, na piętrze, umieszczono trzy sypialnie z łazienką, oraz dodatkowy pokój mogący służyć jako gabinecik, sypialnia gościnna, albo garderoba. Zapraszamy do zapoznania się z pełną ofertą pracowni MG Projekt tej serii : wersja bazowa (projekt domu Szmaragd), wersja z dodatkowym pokojem na parterze (projekt domu Szmaragd 3) oraz wersje w nowocześniejszym stylu ( projekt domu Szmaragd 4), (projekt domu Szmaragd 5), (projekt domu Szmaragd 6). Zapraszamy !
UWAGA! Koszty realizacji oraz dane techniczne dotyczą połowy bliźniaka.
-
Projekt szamba szczelnego0 zł399 zł
-
Charakterystyka energetyczna0 zł200 zł
-
Pakiet energooszczędny0 zł150 zł
-
Dziennik budowy0 zł60 zł
-
Tablica budowy0 zł120 zł
-
Wersja elektroniczna projektu550 zł
-
Pakiet kosztorys inwestorski550 zł
-
Pakiet ogrzewanie podłogowe470 zł
-
Powietrzna pompa ciepła470 zł
-
Pakiet wentylacja mechaniczna i kominek DGP470 zł
-
Dodatkowy egzemplarz projektu500 zł
-
Pakiet kotłownia na paliwo stałe470 zł
-
Pakiet instalacja fotowoltaiczna470 zł
-
Pakiet klimatyzacja w domu470 zł
-
Pakiet gruntowa pompa ciepła470 zł
-
Pakiet odkurzacz centralny470 zł
-
Pakiet płaszcz wodny470 zł
-
Pakiet kominek DGP399 zł
-
Projekty altan i grillów ogrodowych650 zł
-
Pakiet instalacja solarna470 zł

opieką konsultacyjną w trakcie budowy domu