Biedronka 2







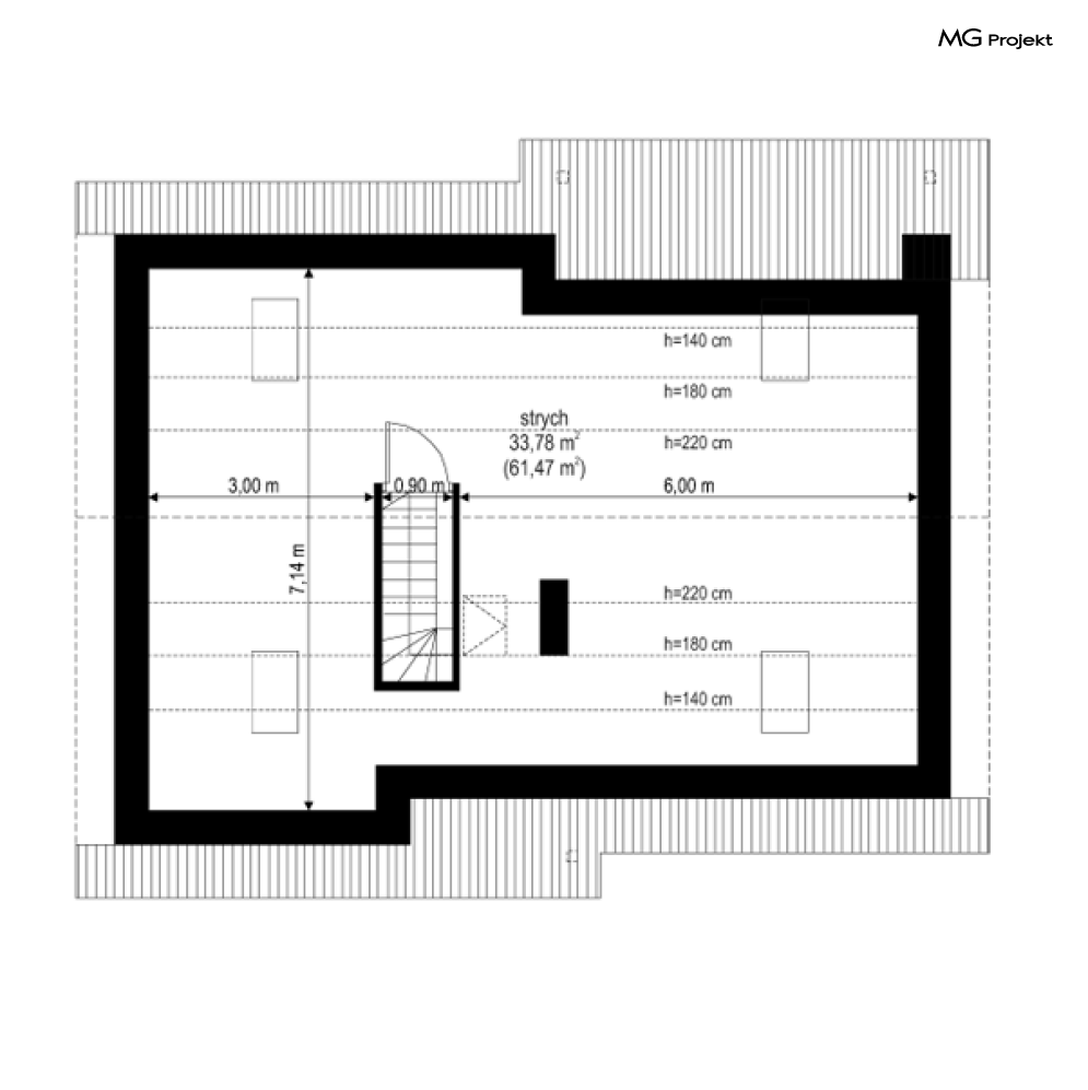
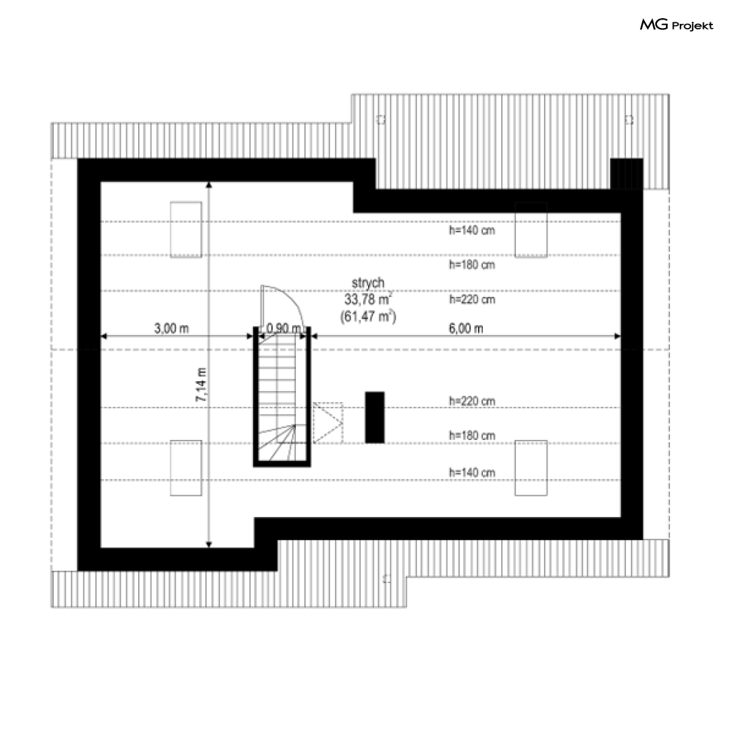
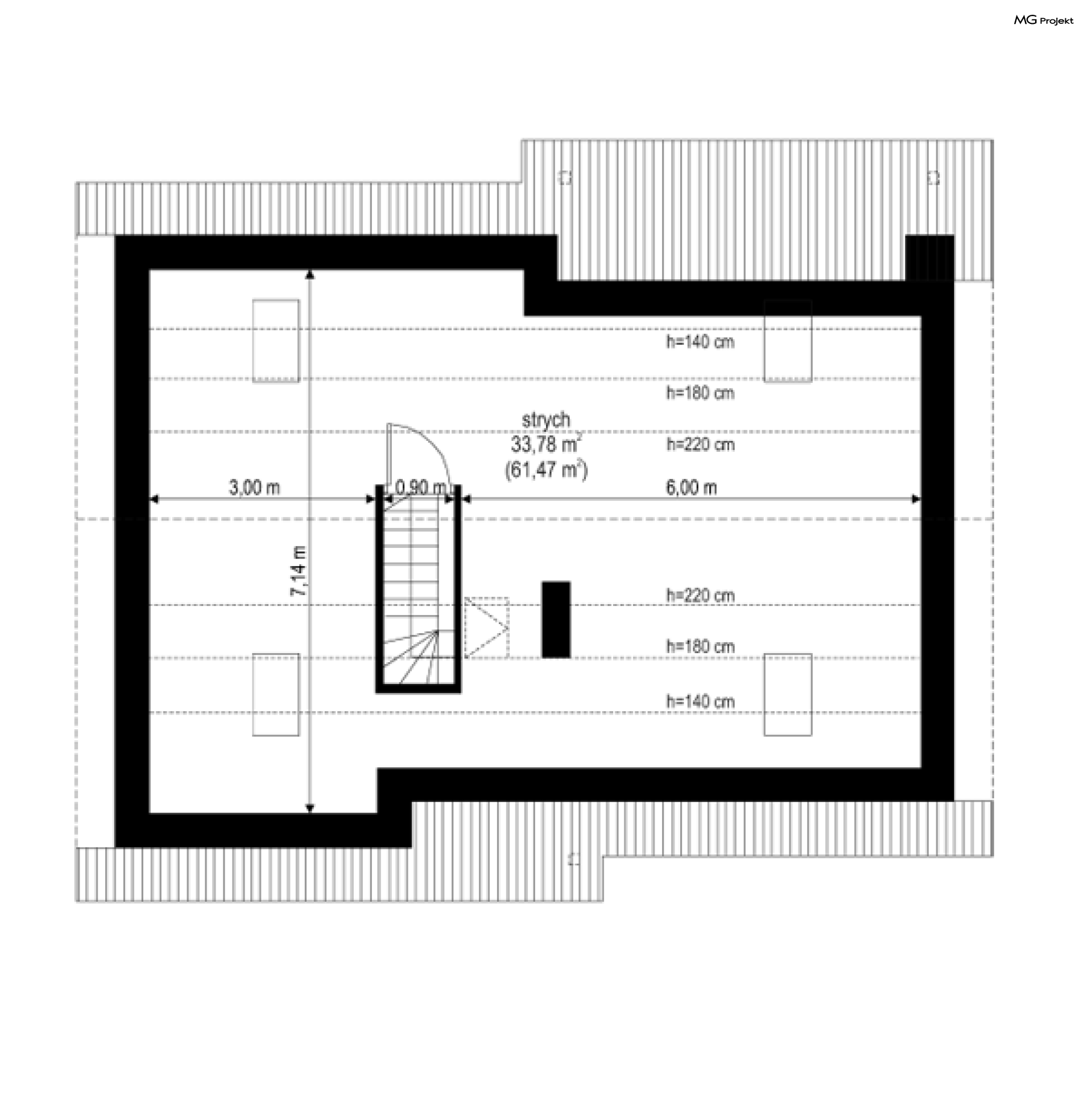
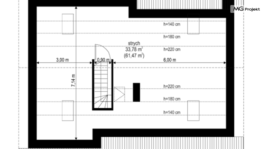
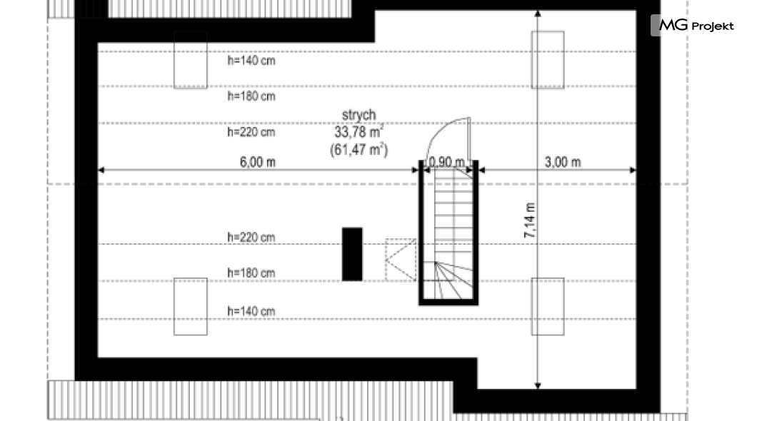
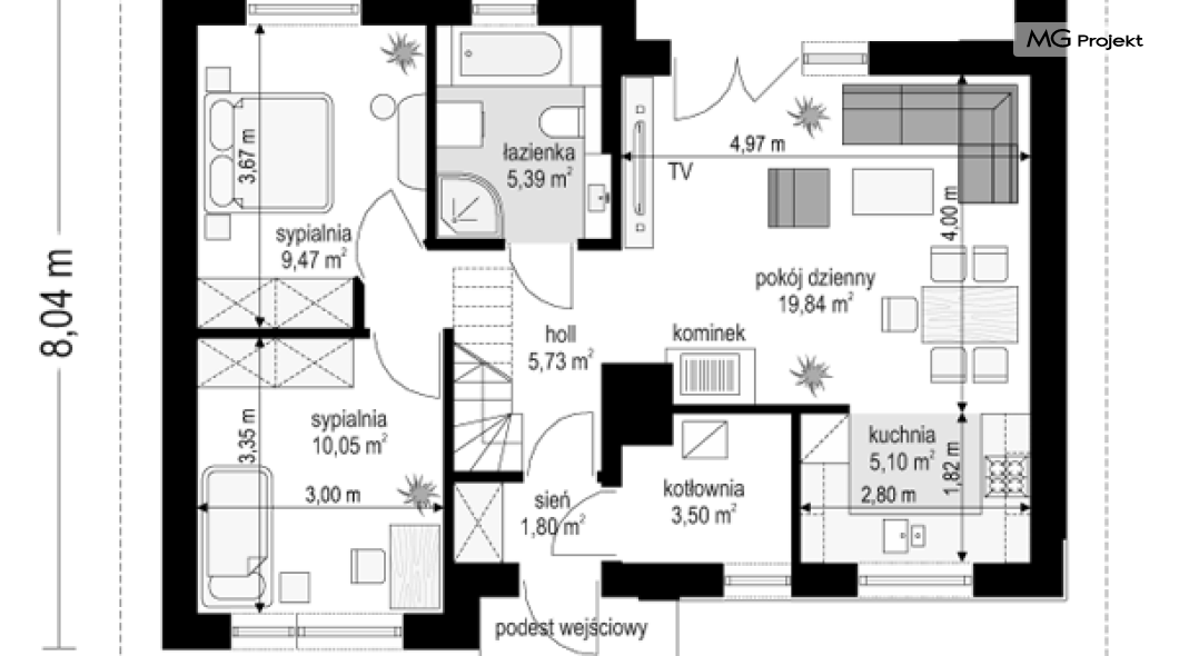
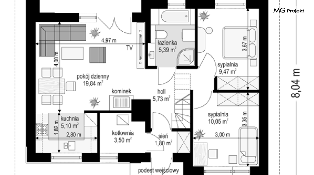
Projekt domu Biedronka 2 jest to wariantowa wersja naszego popularnego niewielkiego domu jednorodzinnego dla trzy-czteroosobowej rodziny, parterowego, przekrytego dwuspadowym łagodnym dachem, ze strychem do adaptacji. Domek ma prostą bryłę i konstrukcję. Jest łatwy w budowie i tani w przyszłej eksploatacji. Dzięki zastosowaniu bardzo dobrego ocieplenia i nowoczesnych instalacji, Biedronka jest budynkiem energooszczędnym. Wygląd zewnętrzny to połączenie nowoczesności z tradycyjną formą. Nowoczesne materiały wykończeniowe i detale architektoniczne łączą się tu z tradycyjną formą parterowego domu na planie prostokąta, z dwuspadowym dachem. Elewacje frontowa i ogrodowa zostały urozmaicone zadaszonymi podcieniami, oraz drewnianymi okładzinami ścian. Oryginalny dach kryty blachą na rąbek można łatwo zastąpić dachówką lub blacho dachówką. Parter domu składa się z części dziennej z salonem, kuchnią i holem, oraz dwóch sypialni z łazienką. Przy przedsionku znajduje się kotłownia gazowa, którą łatwo można zmienić na kotłownię z piecem na paliwo stałe. Strych – poddasze można dowolnie zagospodarować. Mimo niewielkiej powierzchni dom ma przestronne i wygodne wnętrze. Biedronka 2 jest budynkiem całorocznym, może być też wykorzystywana jako dom wakacyjny. Prosta i łatwa konstrukcja pozwoli zaoszczędzić na kosztach budowy. Biedronka to z pewnością propozycja dla rozsądnie myślącego Klienta. Zapraszamy do zapoznania się z pełną ofertą pracowni MG Projekt: projekt domu Biedronka.
-
Projekt szamba szczelnego0 zł399 zł
-
Charakterystyka energetyczna0 zł200 zł
-
Pakiet energooszczędny0 zł150 zł
-
Dziennik budowy0 zł60 zł
-
Tablica budowy0 zł120 zł
-
Wersja elektroniczna projektu550 zł
-
Pakiet kosztorys inwestorski550 zł
-
Pakiet ogrzewanie podłogowe470 zł
-
Powietrzna pompa ciepła470 zł
-
Pakiet wentylacja mechaniczna i kominek DGP470 zł
-
Dodatkowy egzemplarz projektu500 zł
-
Pakiet kotłownia na paliwo stałe470 zł
-
Pakiet instalacja fotowoltaiczna470 zł
-
Pakiet klimatyzacja w domu470 zł
-
Pakiet gruntowa pompa ciepła470 zł
-
Pakiet odkurzacz centralny470 zł
-
Pakiet płaszcz wodny470 zł
-
Pakiet kominek DGP399 zł
-
Projekty altan i grillów ogrodowych650 zł
-
Pakiet instalacja solarna470 zł

opieką konsultacyjną w trakcie budowy domu