Zosia






Projekt domu Zosia to parterowy domek jednorodzinny dla niewielkiej, 4-5 osobowej rodziny. Domek Zosia zbudowany jest na planie kwadratu 9,5x9,5 m i przekryty dwuspadowym symetrycznym dachem o kącie nachylenia 30 stopni. Zosię można wybudować na działce o wymiarach 17,5x17,5m. Istotą gotowego projektu domu jednorodzinnego Zosia jest prostota bryły w połączeniu z dobrze dobranymi proporcjami i ciekawym detalem. Domek Zosia zaprojektowano w tradycyjnej, dobrze znanej wszystkim firmom budowlanym technologii murowanej.
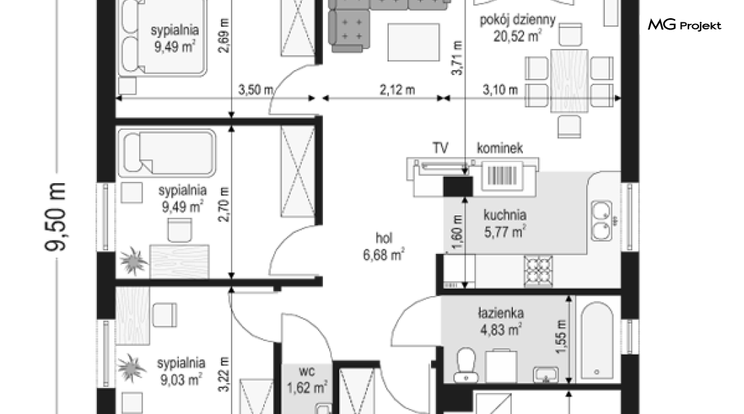
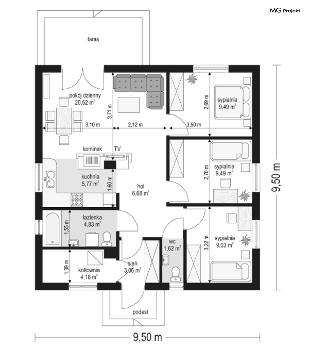
Program użytkowy domu Zosia: wewnątrz domu zaprojektowano wygodne czteropokojowe mieszkanie wraz z zapleczem technicznym. W projekcie domu Zosia projektanci MGProjekt przewidzieli salon z centralnie ustawionym kominkiem i ścianą telewizyjną, połączony z holem, jadalnią i otwartą kuchnią, co daje duże jednoprzestrzenne wnętrze dzienne. Dodatkowo we wnętrzu domku znajdują się trzy sypialnie, łazienka i kotłownia, które znakomicie dopełniają program użytkowy projektu domu jednorodzinnego Zosia, dzięki czemu pomimo niewielkiej powierzchni użytkowej 70,48 m2 jest on funkcjonalny i wygodny dla przyszłych domowników. Dom Zosia ma prostą konstrukcję i jest łatwy w budowie nie tylko systemem zleconym, ale i gospodarczym. Koszt budowy domu Zosia jest niski - szacowana przez naszych kosztorysantów wysokość nakładów do stanu surowego zamkniętego to 80259 zł. Zastosowane w Zosi nowoczesne rozwiązania techniczne i materiały sprawiają, że będzie również energooszczędnym, a tym samym niedrogim w użytkowaniu domostwem. Pracownia architektoniczna MGProjekt, autor projektu, dysponuje odbiciem lustrzanym budynku. Dostępne są również warianty i inne projekty domów z serii Zosia: projekt domu Zosia 2, projekt domu Zosia 3, projekt domu Zosia 4, projekt domu Zosia 5, projekt domu Zosia 6, projekt domu Zosia 7, projekt domu Zosia 7B, projekt domu Zosia 8. Zapraszamy!

