Hiacynt 8







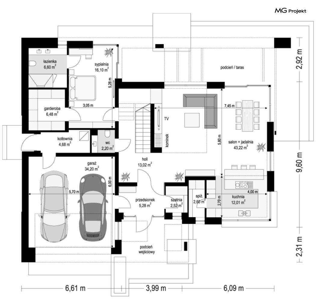
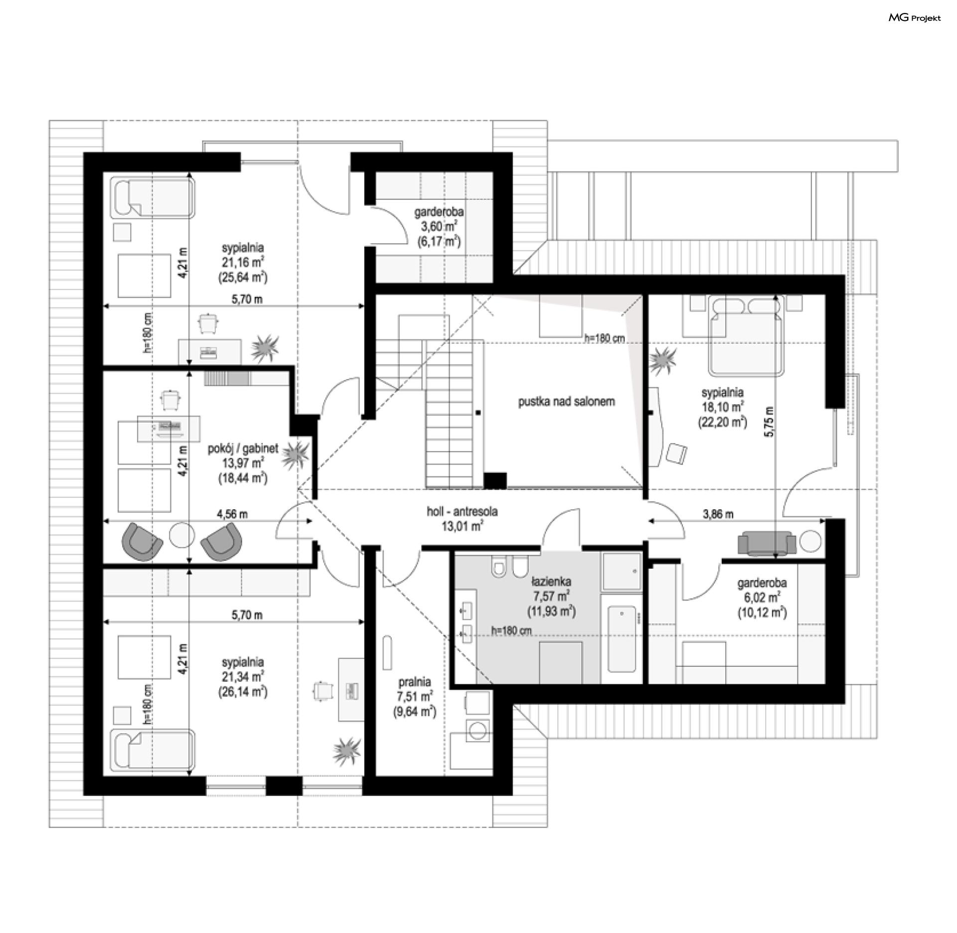
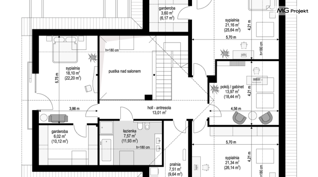
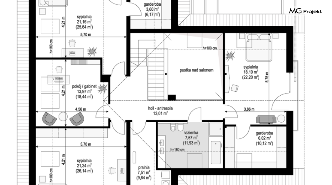
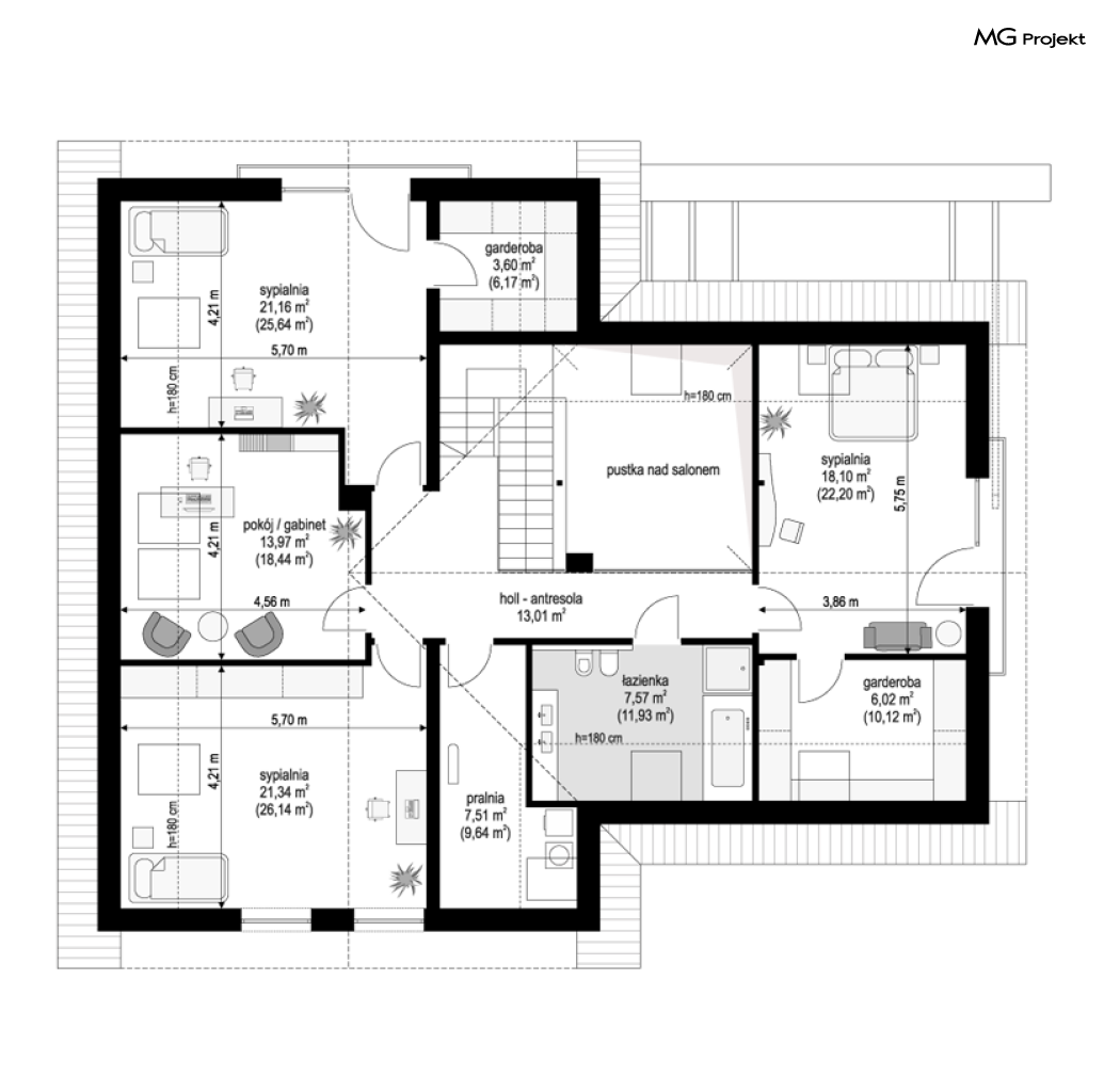
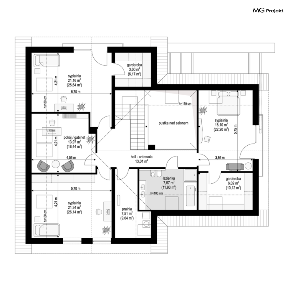
Projekt domu Hiacynt 8 to kolejny wariant projektu z popularnej serii „Hiacyntów”. Jest to parterowy dom z poddaszem użytkowym, zbudowany na planie litery T, z układem dwóch przecinających się dachów dwuspadowych. Zarówno od frontowej elewacji, jak i od strony ogrodowej poddasze posiada ściany szczytowe, dzięki czemu aż trzy szczyty domu zapewniają na poddaszu okna w ścianach zamiast okien tylko połaciowych w skosach dachów. Architektura domu łączy w sobie tradycyjną formę z nowoczesnymi rozwiązaniami,detalami i materiałami wykończeniowymi. Elewacje budynku urozmaicono podziałami kontrastujących powierzchni wykończonych różnymi materiałami. Do domu wchodzimy przez reprezentacyjne drzwi z naświetlami bocznymi, ukryte w podcieniu wejściowym pod podciągami i płytą nad podestem wejściowym i garażem. Dodatkowymi elementami zasługującymi na uwagę jest piękne narożne okno kuchni, oraz ciekawie obudowane okna ściany szczytowej poddasza. Od strony ogrodu uwagę przyciąga szeroka na niemal całą elewację belka podpierająca zadaszenie tarasu i pergolę nad tarasowym patio. Ciekawa i urozmaicona bryła budynku, nowoczesne materiały i kolorystyka, dają w sumie atrakcyjny wygląd domu i niepowtarzalny styl. Wnętrze domu - zarówno parteru jak i poddasza, podzielono na oddzielone strefy o różnej funkcji. Na parterze w centrum domu znajduje się część dzienna, z jednoprzestrzennym wnętrzem salonu z antresolą, jadalnią połączoną z tarasem, oraz obszerną kuchnią ze spiżarnią. Na lewo od schodów przechodzimy do oddzielnego apartamentu rodziców, z własną łazienką i garderobą, połączonego z tarasem i ogrodem. Parter zamyka część techniczna budynku z garażem i kotłownią. Na poddaszu dzięki trzem szczytom i zredukowanej ilości skosów dachów w stosunku do takiej samej powierzchni podłogi, mamy aż cztery pokoje ( w tym dwa z własnymi garderobami ), dużą łazienkę i pomieszczenie pralni. To bardzo duże poddasze udało się uzyskać w identycznym obrysie zewnętrznych ścian jak w wersjach Hiacynta 7, lub 7B. W projekcie zastosowano bardzo dobre izolacje i nowoczesne instalacje, dzięki czemu budynek jest energooszczędny i będzie niedrogi w późniejszej eksploatacji. Hiacynt 8 to idealna propozycja dla osób, którym spodobały się domy z tej serii, ale chcieli uzyskać możliwie największe poddasze, z normalnymi oknami w ścianach i ze zmniejszoną ilością skosów od połaci dachów poddasza. To propozycja dla Inwestorów chcących wybudować spory ale niewielki dom jednorodzinny, o atrakcyjnej nowoczesnej architekturze i funkcjonalnym wnętrzu. Zapraszamy do zapoznania się z innymi projektami: projekt domu Hiacynt, projekt domu Hiacynt 2, projekt domu Hiacynt 3, projekt domu Hiacynt 4, projekt domu Hiacynt 5, projekt domu Hiacynt 6, projekt domu Hiacynt 7, projekt domu Hiacynt 7 B. Projekty dostępne są w odbiciu lustrzanym.
