Gucio







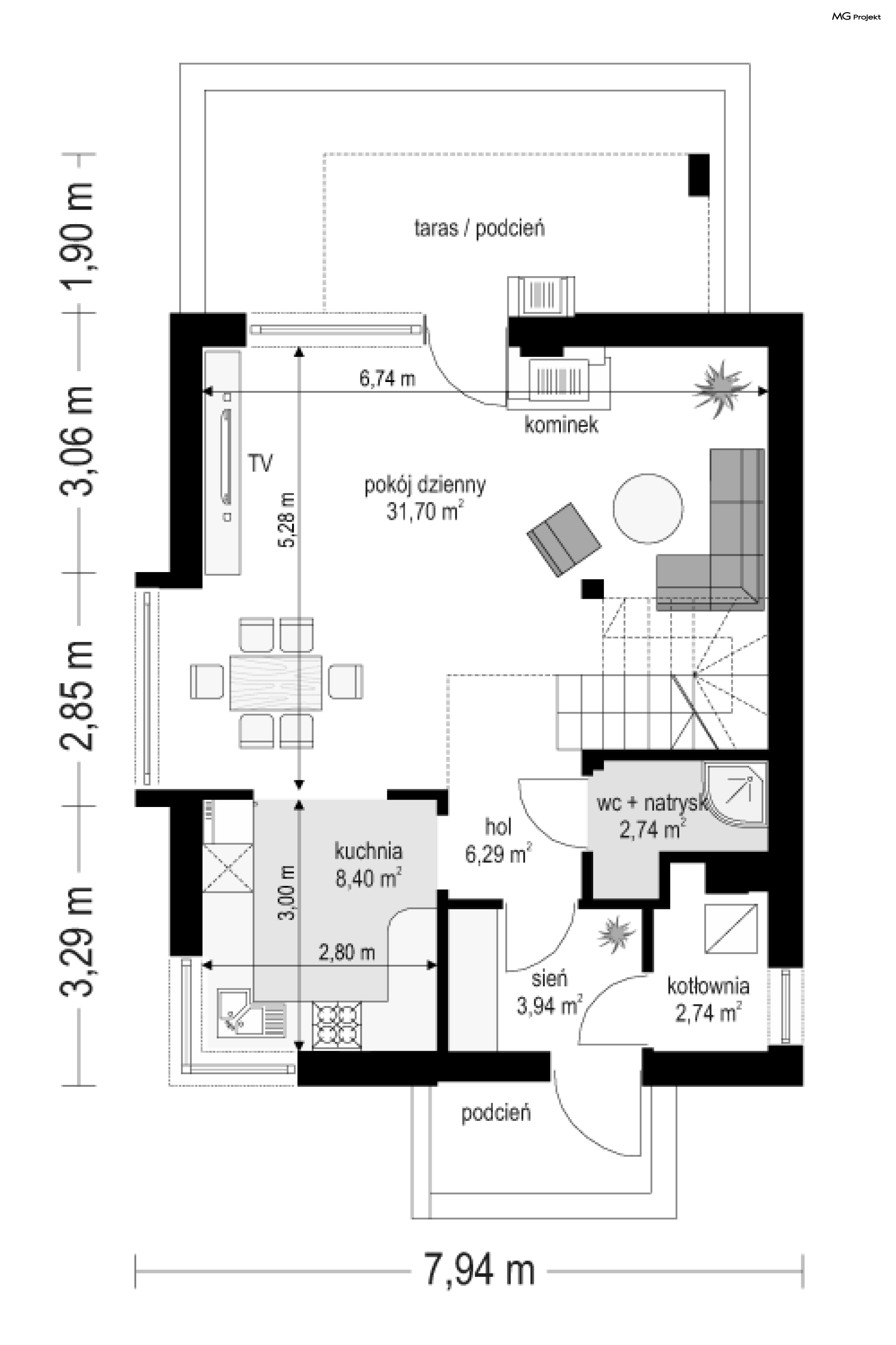
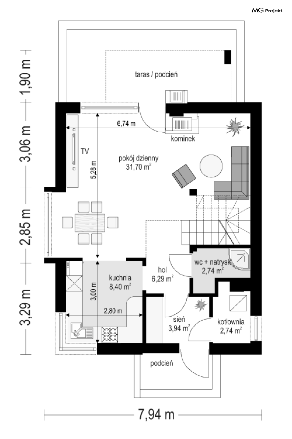
Projekt domu Gucio to parterowy domek jednorodzinny z poddaszem użytkowym dla rodziny cztero-pięcioosobowej. Zaprojektowany został na planie prostokąta i przekryty symetrycznym dwuspadowym dachem. Prosta bryła budynku w połączeniu z nowoczesnym detalem i materiałami daje atrakcyjny wygląd zewnętrzny domu. Fragmenty elewacji obłożone drewnem, czy płytami HPL dodatkowo urozmaicają białe powierzchnie ścian. Wewnątrz domu Gucio, na parterze zaprojektowano jednoprzestrzenną część dzienną, z połączonym salonem, holem, aneksem jadalnym z wykuszem, wyeksponowanymi reprezentacyjnymi schodami. Kominek usytuowany na ścianie zewnętrznej można podziwiać wraz z widokiem na ogród jednocześnie. Duże przeszklone drzwi prowadzą z salonu na częściowo zadaszony taras. Na poddaszu, oprócz sporej łazienki, zaprojektowano trzy wygodne sypialnie z niedużymi "skosami" i wbudowanymi szafami-garderobami. Pracownia posiada także projekt domu Gucio w wersji odbicia lustrzanego oraz w wersji wariantowej projekt domu Gucio 2.
