Gucio 2







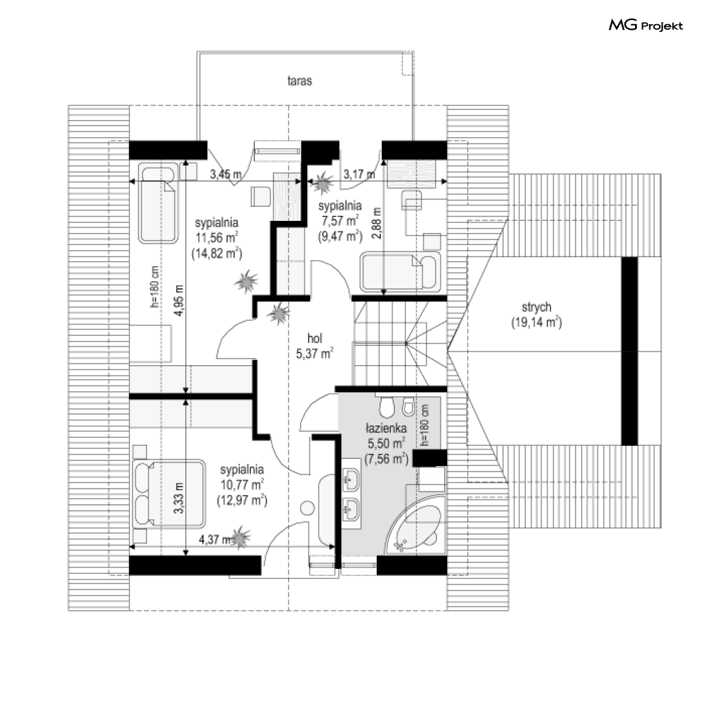
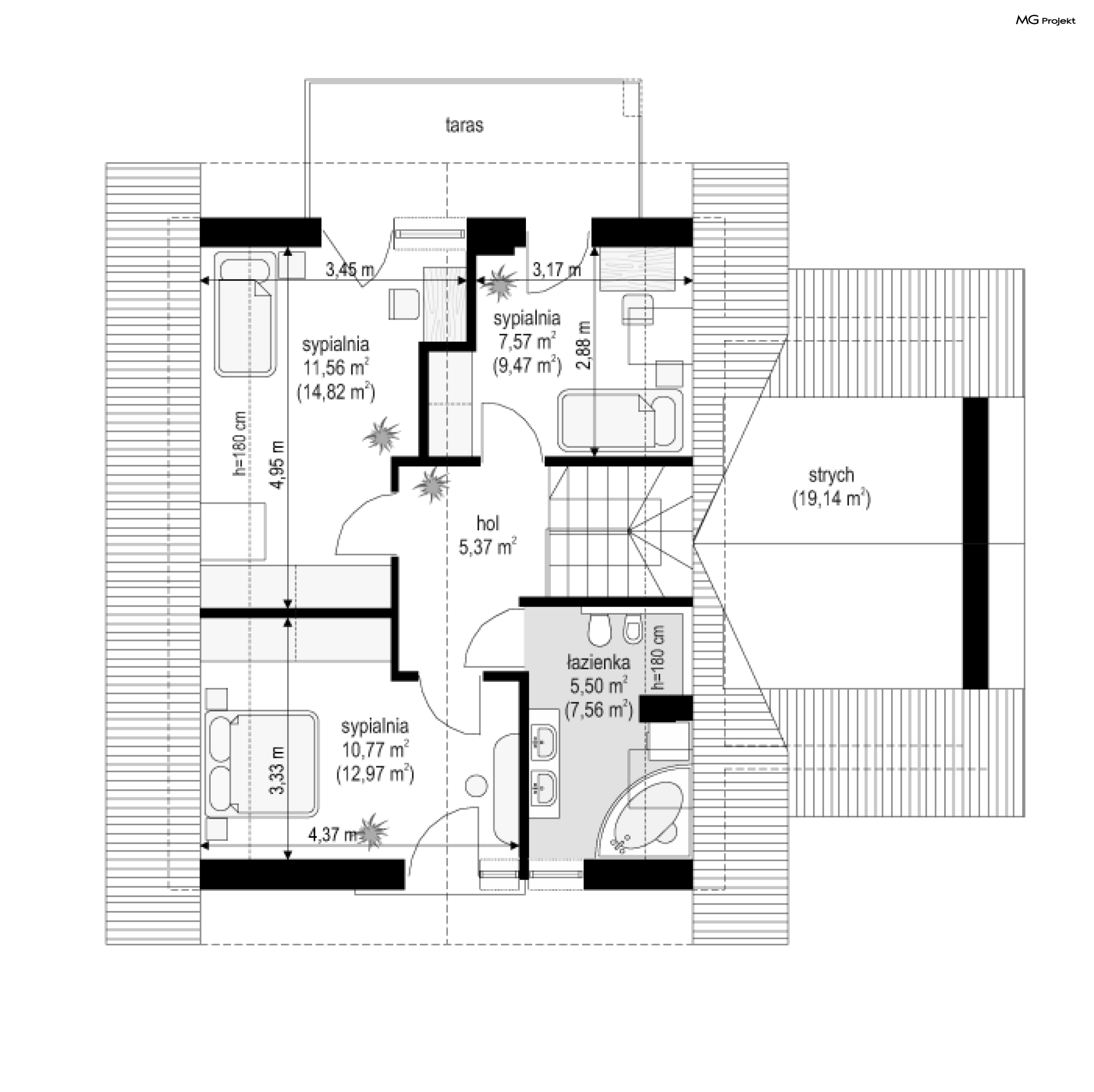
Projekt domu Gucio 2 to nowoczesny niewielki domek dla cztero-pięcioosobowej rodziny. Parterowy budynek przekryty dwuspadowymi dachami, z dobudowanym do głównej bryły garażem. Dom zaprojektowano, aby dać jak największy komfort przyszłym mieszkańcom, tworząc otwartą przestrzeń dzienną, charakterystyczną dla dużych domów jednorodzinnych. Salon połączony z holem, aneksem jadalnym z wykuszem, wyeksponowanymi reprezentacyjnymi schodami będzie wspaniałym miejscem do życia dla przyszłych domowników. Kominek w domu Gucio 2 usytuowany został na ścianie zewnętrznej, co pozwoli rozkoszować się widokiem ognia i ogrodu równocześnie. Duże przeszklone drzwi łączą pokój dzienny z częściowo zadaszonym tarasem. Na parterze znajduje się też wygodna kuchnia, przedsionek, kotłownia, wc z natryskiem i garaż. Na poddaszu zaprojektowano trzy wygodne sypialnie z niewielkimi "skosami", oraz z wbudowanymi szafami - garderobami. Dodatkowo na poddaszu znajduje się ładna łazienka. Nad garażem mieści się strych gospodarczy dostępny z garażu. Architektura domu podkreśla prostotę form, nowoczesność w doborze materiałów, co wszystko razem tworzy udaną kompozycję. Dom jest łatwy w budowie i niedrogi w późniejszym utrzymaniu. Projekt domu Gucio 2 dostępny jest także w wersji odbicia lustrzanego oraz w wersji bez garażu projekt domu Gucio.
-
Projekt szamba szczelnego0 zł399 zł
-
Charakterystyka energetyczna0 zł200 zł
-
Pakiet energooszczędny0 zł150 zł
-
Dziennik budowy0 zł60 zł
-
Tablica budowy0 zł120 zł
-
Wersja elektroniczna projektu550 zł
-
Pakiet kosztorys inwestorski550 zł
-
Pakiet ogrzewanie podłogowe470 zł
-
Powietrzna pompa ciepła470 zł
-
Pakiet wentylacja mechaniczna i kominek DGP470 zł
-
Dodatkowy egzemplarz projektu500 zł
-
Pakiet kotłownia na paliwo stałe470 zł
-
Pakiet instalacja fotowoltaiczna470 zł
-
Pakiet klimatyzacja w domu470 zł
-
Pakiet gruntowa pompa ciepła470 zł
-
Pakiet odkurzacz centralny470 zł
-
Pakiet płaszcz wodny470 zł
-
Pakiet kominek DGP399 zł
-
Projekty altan i grillów ogrodowych650 zł
-
Pakiet instalacja solarna470 zł

opieką konsultacyjną w trakcie budowy domu