Hetman








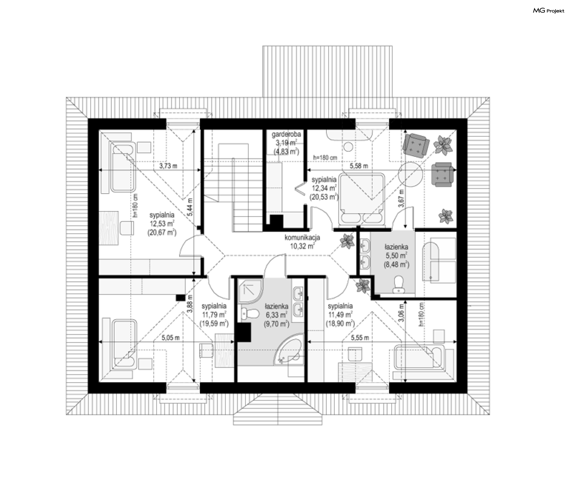
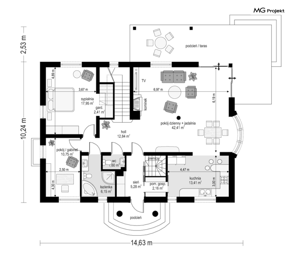
Projekt domu Hetman to domek jednorodzinny dla rodziny cztero-siedmioosobowej z możliwością zamieszkania rodziny wielopokoleniowej - dzieci, rodziców i dziadków. Budynek jest parterowy z poddaszem użytkowym przykrytym czterospadowym dachem. W częściowym podpiwniczeniu umieszczono zaplecze gospodarcze. Projekt domu Hetman, swoją bryłą z symetrycznymi elewacjami nawiązuje do polskiego dworku, ale we współczesnym ujęciu. Przełamanie monotonii osiowego podziału wnętrz choćby przez narożne otwarcie salonu na ogród czy częściowo zadaszony taras, daje ciekawy architektonicznie efekt. Elementy te nadają domowi Hetman oryginalną, niepowtarzalną formę, nie wpływając przy tym na zwiększenie kosztów budowy. Cały dom architektonicznie podporządkowano układowi funkcjonalnemu wnętrza. Na parterze zaprojektowano część dzienną z otwartą przestrzenią pokoju dziennego z częścią jadalną i holu, oraz częściowo otwartą kuchnią. Po drugiej stronie umieszczono dwa pokoje i oddzielną łazienkę. Pokoje mogą pełnić rolę osobnego mieszkania seniorów, lub spełniać funkcję dodatkowych pomieszczeń - gabinetu, czy sypialni dla gości. Otwarcie salonu na taras i ogród narożnymi drzwiami doda uroku temu dużemu wnętrzu. Na poddaszu zaplanowano cztery sypialnie i dwie łazienki. Jeden z pokoi może być sypialnią rodziców z garderobą i własną łazienką. Do piwnicy, w której zaprojektowano duże otwarte pomieszczenie techniczne schodzi się schodami dostępnymi z sieni na parterze. Częściowe zadaszenie tarasu pozwoli korzystać z niego również przy niepogodzie, lub zbyt dużym nasłonecznieniu. Pracownia posiada również wersję odbicia lustrzanego projektu domu Hetman.
-
Projekt szamba szczelnego0 zł399 zł
-
Charakterystyka energetyczna0 zł200 zł
-
Pakiet energooszczędny0 zł150 zł
-
Dziennik budowy0 zł60 zł
-
Tablica budowy0 zł120 zł
-
Wersja elektroniczna projektu550 zł
-
Pakiet kosztorys inwestorski550 zł
-
Pakiet ogrzewanie podłogowe470 zł
-
Powietrzna pompa ciepła470 zł
-
Pakiet wentylacja mechaniczna i kominek DGP470 zł
-
Dodatkowy egzemplarz projektu500 zł
-
Pakiet kotłownia na paliwo stałe470 zł
-
Pakiet instalacja fotowoltaiczna470 zł
-
Pakiet klimatyzacja w domu470 zł
-
Pakiet gruntowa pompa ciepła470 zł
-
Pakiet odkurzacz centralny470 zł
-
Pakiet płaszcz wodny470 zł
-
Pakiet kominek DGP399 zł
-
Projekty altan i grillów ogrodowych650 zł
-
Pakiet instalacja solarna470 zł

opieką konsultacyjną w trakcie budowy domu
