Maja







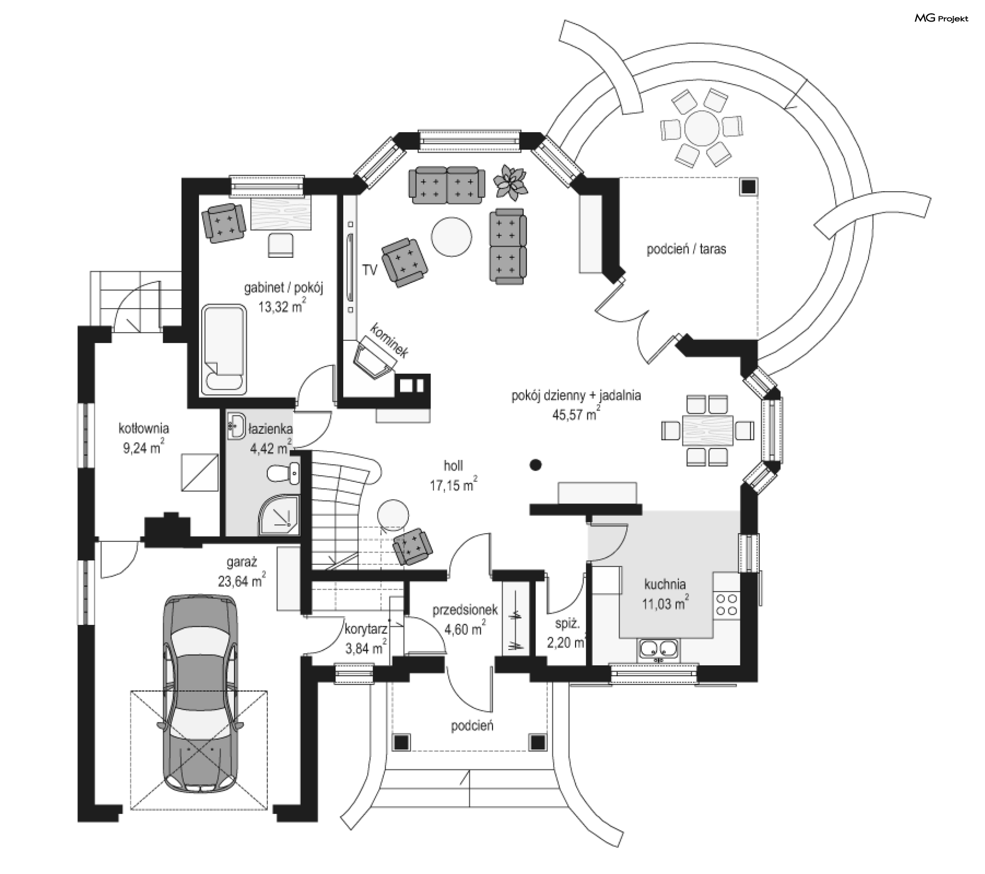
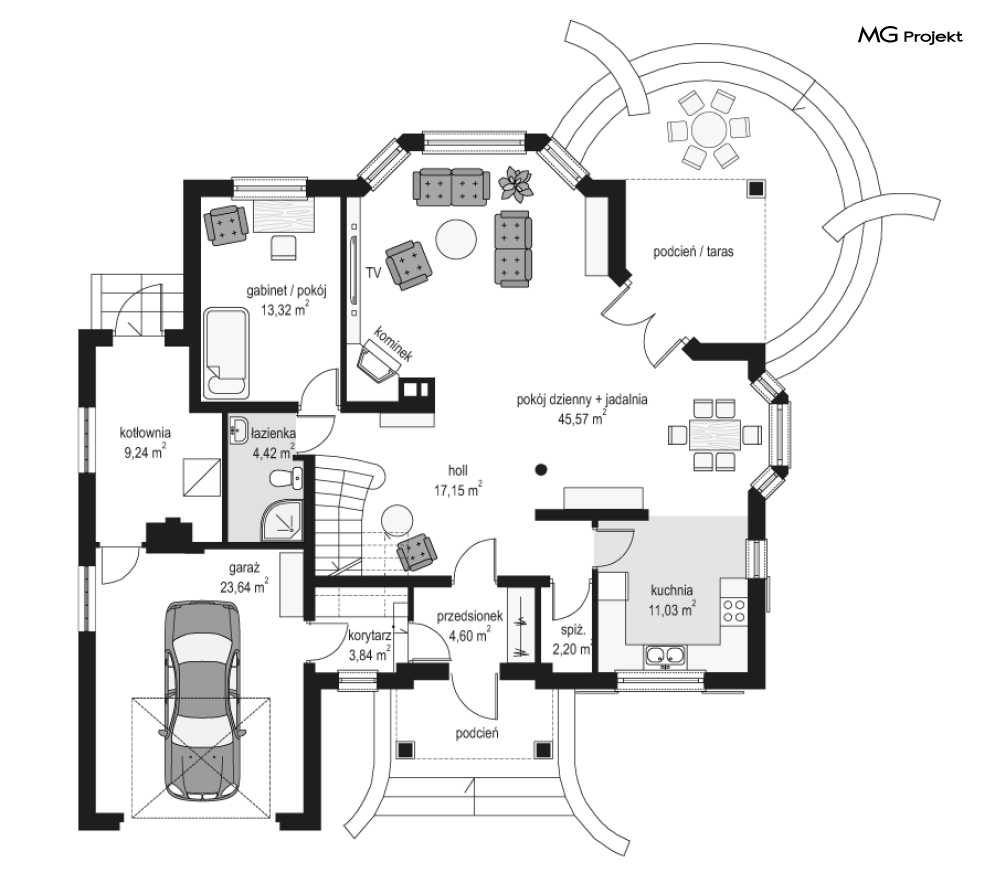
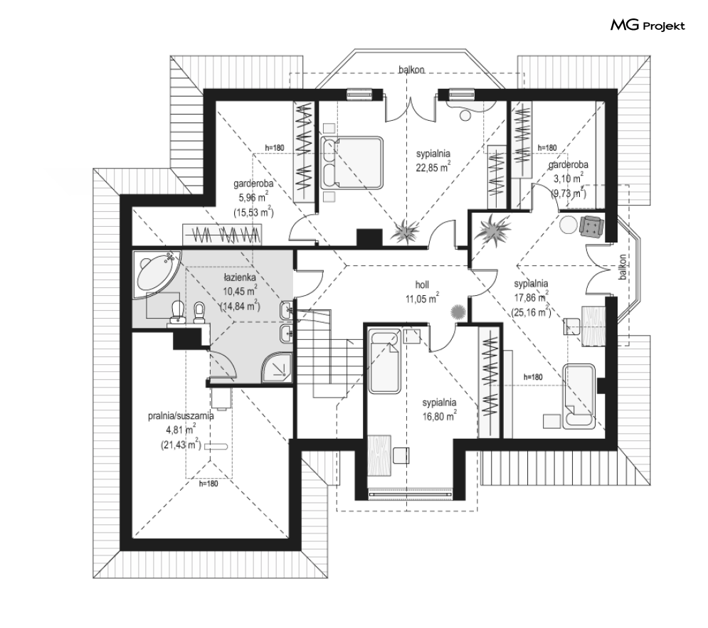
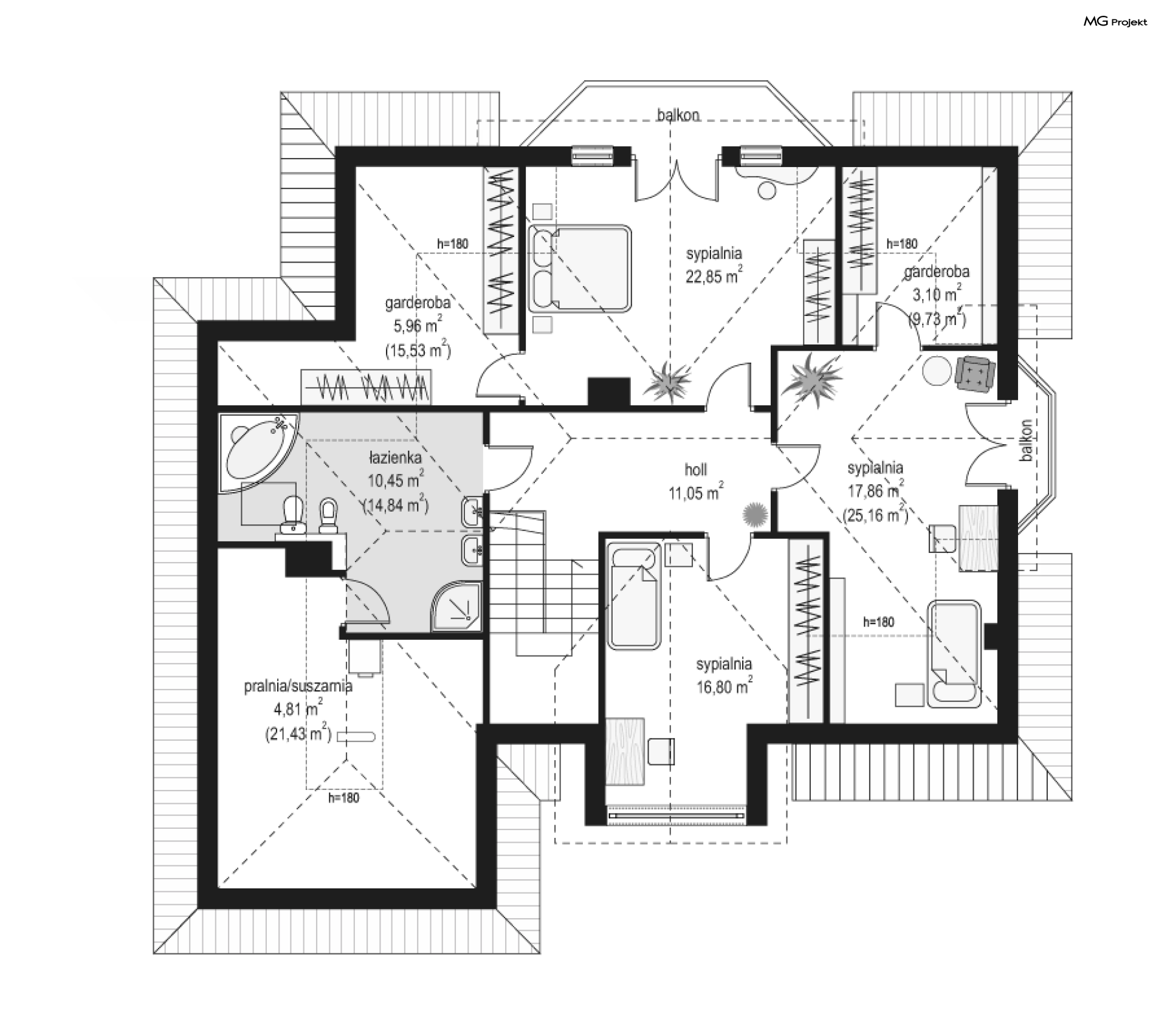
Projekt domu Maja to idealny dom dla rodziny cztero-pięcioosobowej. Powierzchnia użytkowa budynku to 195,13 m2, co pozwoli na wygodne zaaranżowanie wnętrza domu.
Projekt domu Maja architektura i wnetrze
Projekt Maja posiada atrakcyjną bryłę z łagodnym, wielospadowym dachem, w który wkomponowano duże lukarny z balkonami oraz obszerny podcień od strony ogrodu. Na parterze projektu domu Maja prócz dużego salonu zaprojektowano dodatkowy pokój - gabinet lub sypialnię gościnną. W części piętra projektu Maja znajdują się sypialnie oraz duża, wygodna łazienka. Strych w projekcie domu Maja nad wbudowanym w bryłę budynku garażem można wykorzystać na przykład jako pralnię z suszarnią.
Koszty budowy domu Maja to 204513 zł za stan surowy zamknięty. Do realizacji projektu Maja potrzebna jest działka o wymiarach: szerokość min 22,96 m, długość min 21,98 m.
W pracowni MG Projekt dostępna jest także wersja projektu Maja w odbiciu lustrzanym oraz inne jego warianty: projekt domu Maja, projekt domu Maja 2, projekt domu Maja 3, projekt domu Maja 4.
-
Projekt szamba szczelnego0 zł399 zł
-
Charakterystyka energetyczna0 zł200 zł
-
Pakiet energooszczędny0 zł150 zł
-
Dziennik budowy0 zł60 zł
-
Tablica budowy0 zł120 zł
-
Wersja elektroniczna projektu550 zł
-
Pakiet kosztorys inwestorski550 zł
-
Pakiet ogrzewanie podłogowe470 zł
-
Powietrzna pompa ciepła470 zł
-
Pakiet wentylacja mechaniczna i kominek DGP470 zł
-
Dodatkowy egzemplarz projektu500 zł
-
Pakiet kotłownia na paliwo stałe470 zł
-
Pakiet instalacja fotowoltaiczna470 zł
-
Pakiet klimatyzacja w domu470 zł
-
Pakiet gruntowa pompa ciepła470 zł
-
Pakiet odkurzacz centralny470 zł
-
Pakiet płaszcz wodny470 zł
-
Pakiet kominek DGP399 zł
-
Projekty altan i grillów ogrodowych650 zł
-
Pakiet instalacja solarna470 zł

opieką konsultacyjną w trakcie budowy domu
