Natalia 2







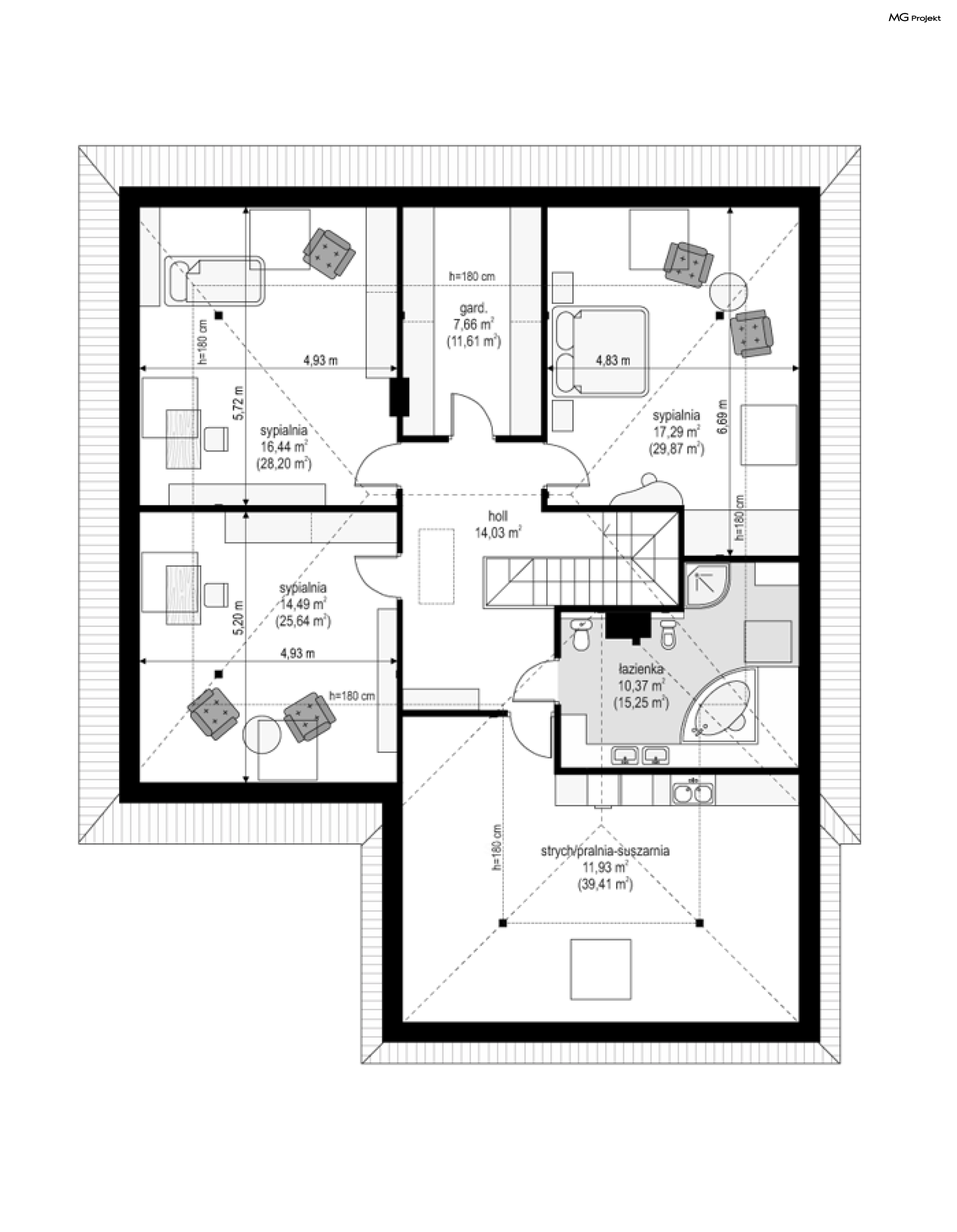
Projekt domu Natalia 2 to wariantowa wersja projektu Natalia. W tej wersji dom zaprojektowany został tak, aby nadawał się też na działkę z niekorzystnym względem stron świata wjazdem. Salon w projekcie domu Natalia 2 został zaplanowany w taki sposób, aby mógł być oświetlony przez słońce zarówno z przodu jak i z tyłu domu. We wnętrzu zaprojektowano na parterze dodatkowo dwa pokoje z łazienką i dwustanowiskowy garaż. Na poddaszu umieszczono trzy ładne sypialnie z dużą łazienką i strychem - pralnią/suszarnią. Góra może być wykończona w drugim etapie. Można ją też wyłączyć z powierzchni użytkowej domu zostawiając jako strych. Pracownia posiada projekt domu Natalia 2 w odbiciu lustrzanym oraz podstawową wersję (projekt domu Natalia), komfortową z trzema sypialniami (projekt domu Natalia 3) oraz największą (projekt domu Natalia 4). Zapraszamy!
-
Projekt szamba szczelnego0 zł399 zł
-
Charakterystyka energetyczna0 zł200 zł
-
Pakiet energooszczędny0 zł150 zł
-
Dziennik budowy0 zł60 zł
-
Tablica budowy0 zł120 zł
-
Wersja elektroniczna projektu550 zł
-
Pakiet kosztorys inwestorski550 zł
-
Pakiet ogrzewanie podłogowe470 zł
-
Powietrzna pompa ciepła470 zł
-
Pakiet wentylacja mechaniczna i kominek DGP470 zł
-
Dodatkowy egzemplarz projektu500 zł
-
Pakiet kotłownia na paliwo stałe470 zł
-
Pakiet instalacja fotowoltaiczna470 zł
-
Pakiet klimatyzacja w domu470 zł
-
Pakiet gruntowa pompa ciepła470 zł
-
Pakiet odkurzacz centralny470 zł
-
Pakiet płaszcz wodny470 zł
-
Pakiet kominek DGP399 zł
-
Projekty altan i grillów ogrodowych650 zł
-
Pakiet instalacja solarna470 zł

opieką konsultacyjną w trakcie budowy domu