Niezapominajka z garażem







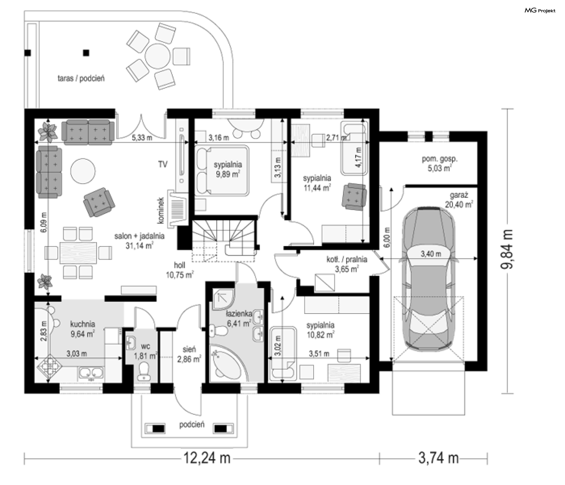
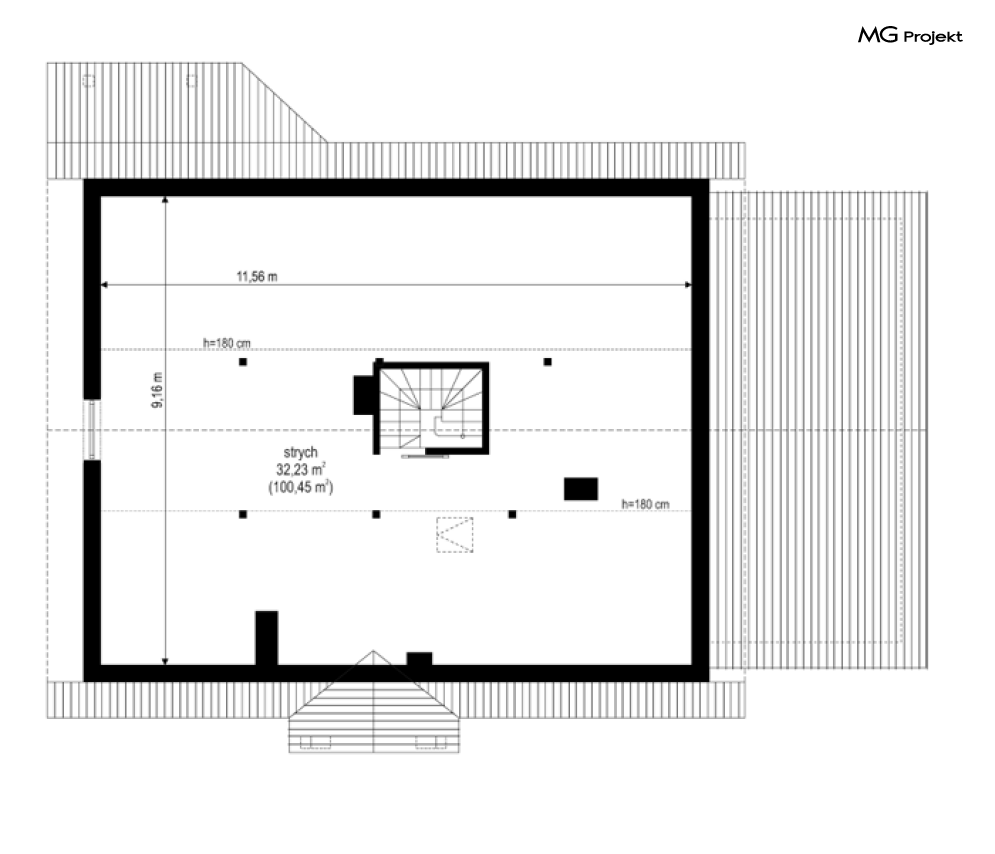
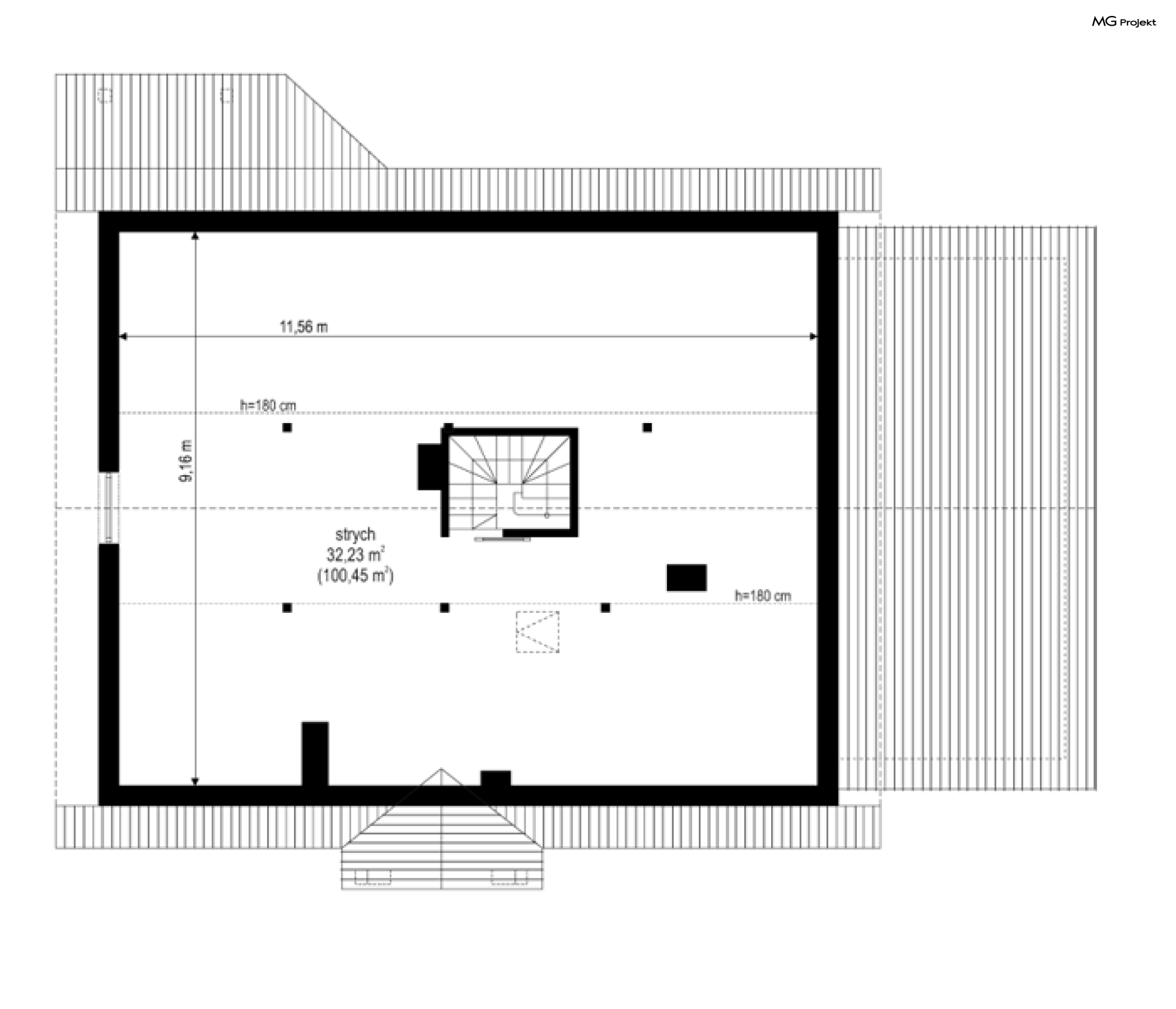
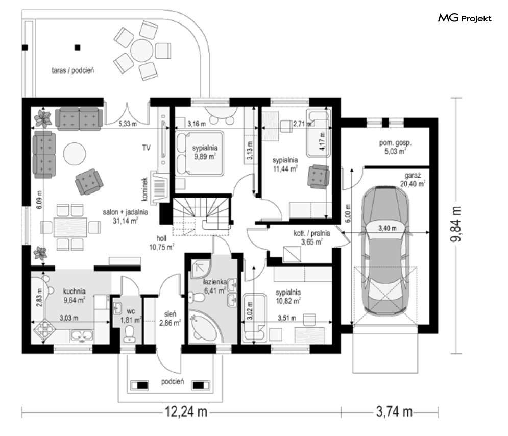
Projekt domu Niezapominajka z garażem jest wariantową wersją projektu domu Niezapominajka. Dom jednorodzinny, parterowy, zaprojektowany został z myślą o czteroosobowej rodzinie. Prostokątna bryła budynku z dobudowanym garażem została przekryta dwuspadowymi dachami. Nieużytkowy strych nad parterem można zaadaptować na poddasze. Architektonicznie dom Niezapominajka z Garażem nawiązuje do typowej tradycyjnej stylistyki. Front domu z zaakcentowanym gankiem wejściowym wspartym na dwóch kolumnach z oknami po bokach, przypomina klasyczny polski dworek. Wnętrze domu podzielono na część dzienną, z salonem, holem i częściowo otwartą kuchnią, oraz część nocną z trzema sypialniami i łazienką. W niewielkiej kotłowni można zainstalować kocioł gazowy, lub można przenieść kotłownię do pomieszczenia za garażem i umieścić tam kocioł na paliwo stałe. Projekt domu Niezapominajka z garażem stanowi świetną propozycję dla Inwestorów chcących niedrogo wybudować dom, którzy chcą zostawić sobie możliwość wykończenia w drugim etapie dodatkowej przestrzeni na strychu - lub po prostu mieć duży przydatny przecież strych. Projekt domu Niezapominajka z garażem dostępny jest także w odbiciu lustrzanym oraz innych jego wariantów: projekt domu Niezapominajka, projekt domu Niezapominajka z garażem 2.
-
Projekt szamba szczelnego0 zł399 zł
-
Charakterystyka energetyczna0 zł200 zł
-
Pakiet energooszczędny0 zł150 zł
-
Dziennik budowy0 zł60 zł
-
Tablica budowy0 zł120 zł
-
Wersja elektroniczna projektu550 zł
-
Pakiet kosztorys inwestorski550 zł
-
Pakiet ogrzewanie podłogowe470 zł
-
Powietrzna pompa ciepła470 zł
-
Pakiet wentylacja mechaniczna i kominek DGP470 zł
-
Dodatkowy egzemplarz projektu500 zł
-
Pakiet kotłownia na paliwo stałe470 zł
-
Pakiet instalacja fotowoltaiczna470 zł
-
Pakiet klimatyzacja w domu470 zł
-
Pakiet gruntowa pompa ciepła470 zł
-
Pakiet odkurzacz centralny470 zł
-
Pakiet płaszcz wodny470 zł
-
Pakiet kominek DGP399 zł
-
Projekty altan i grillów ogrodowych650 zł
-
Pakiet instalacja solarna470 zł

opieką konsultacyjną w trakcie budowy domu