Oszczędny 2







Projekt domu Oszczędny 2 to projekt niedużego domu jednorodzinnego, dla osób, które lubią nowoczesne rozwiązania, nie przepadają na dachami z okapami, ale muszą budować dom z poddaszem użytkowym. Poddasze w projekcie ma na tyle wysoką ścianę kolankową, że prawie nie ma żadnych skosów. Dzięki temu można je w pełni wykorzystać. Powierzchnia użytkowa domu 87,18 m2 pozwala na wygodne zaaranżowanie wnętrza.
Projekt domu Oszczędny 2 architektura i wnętrze
Projektu dom Oszczędny 2 zaprojektowano na planie zbliżonym do kwadratu. Poddasze projektu Oszczędny 2 przykrywa dwuspadowy symetryczny dach. Do głównej bryły budynku dobudowany jest garaż.
Projekt domu Oszczędny 2 to wariantowa wersja projektu – z garażem dobudowanym wdłuż bryły domu. Prosta, nowoczesna bryła domu, symetrycznie i proporcjonalnie rozłożone okna - wszystko to sprawia, że projekt Oszczędny 2 dobrze wkomponuje się w każde sąsiedztwo. Zastosowane nowoczesne materiały, ciekawa kolorystyka budynku, idą w parze z energooszczędnością i prostą konstrukcją domu, która ułatwi i zminimalizuje koszty budowy domu.
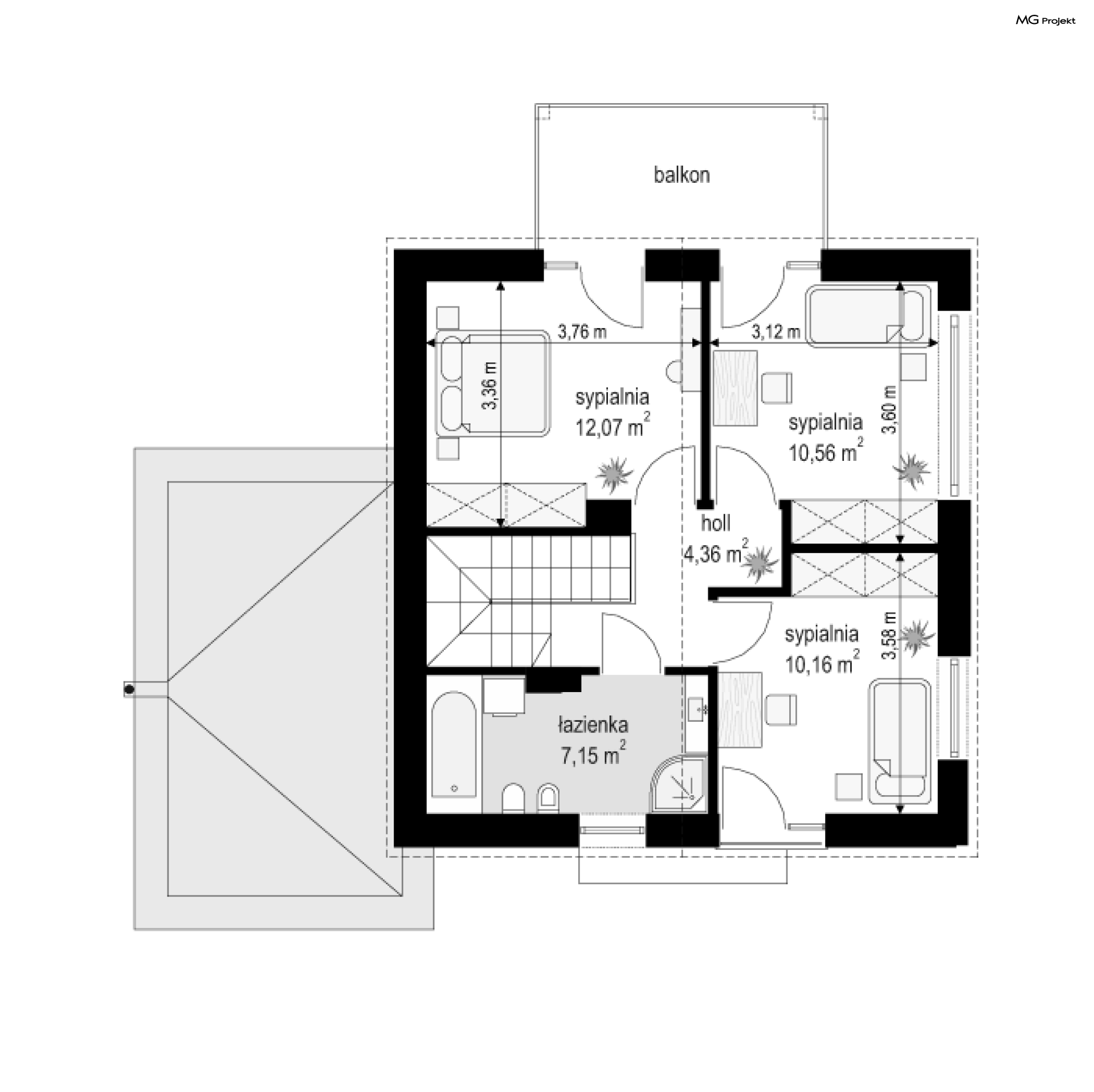
Wnętrze projektu domu Oszczędny 2 to przestrzeń dzienna na parterze, z pokojem dziennym, holem i kuchnią, z ładnie wyeksponowanymi schodami i kominkiem. Na poddaszu znajdują się trzy sypialnie z łazienką. Na parterze miejsce znalazła spora kotłownia i dobudowany garaż. Można oczywiście wybudować dom Oszczędny 2 także bez garażu.
Projekt domu Oszczędny 2 ma zwartą bryłę i bardzo dobre ocieplenia, co czyni go projektem energooszczędnym. W łatwy sposób można go dostosować do standardu NF40. Konstrukcja domu jest bardzo prosta, co ułatwi budowę i obniży koszty realizacji. Koszt budowy domu Oszczędny 2 to 125035 zł za stan surowy zamknięty. Projekty domów z serii projekt domu Oszczędny można zamówić także w wersji odbicia lustrzanego.
-
Projekt szamba szczelnego0 zł399 zł
-
Charakterystyka energetyczna0 zł200 zł
-
Pakiet energooszczędny0 zł150 zł
-
Dziennik budowy0 zł60 zł
-
Tablica budowy0 zł120 zł
-
Wersja elektroniczna projektu550 zł
-
Pakiet kosztorys inwestorski550 zł
-
Pakiet ogrzewanie podłogowe470 zł
-
Powietrzna pompa ciepła470 zł
-
Pakiet wentylacja mechaniczna i kominek DGP470 zł
-
Dodatkowy egzemplarz projektu500 zł
-
Pakiet kotłownia na paliwo stałe470 zł
-
Pakiet instalacja fotowoltaiczna470 zł
-
Pakiet klimatyzacja w domu470 zł
-
Pakiet gruntowa pompa ciepła470 zł
-
Pakiet odkurzacz centralny470 zł
-
Pakiet płaszcz wodny470 zł
-
Pakiet kominek DGP399 zł
-
Projekty altan i grillów ogrodowych650 zł
-
Pakiet instalacja solarna470 zł

opieką konsultacyjną w trakcie budowy domu