Przytulny







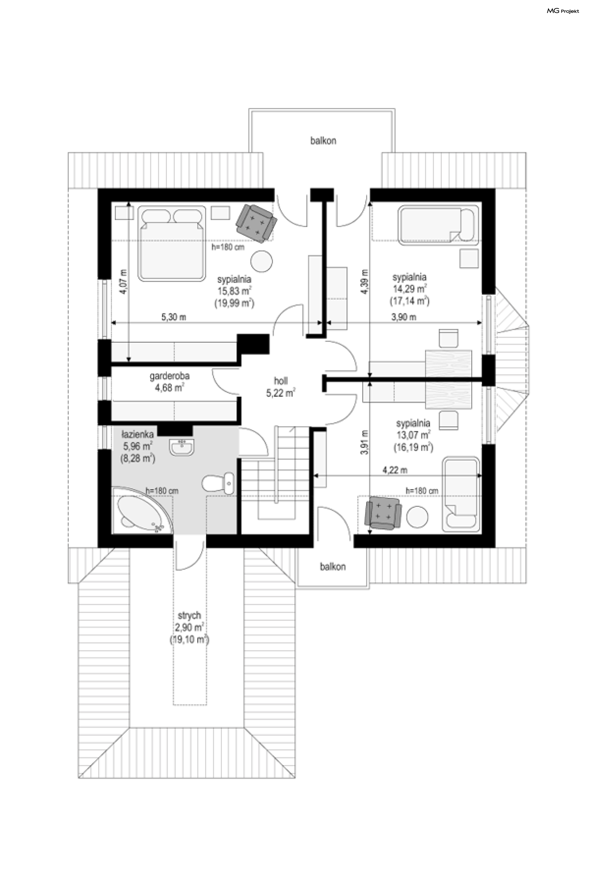
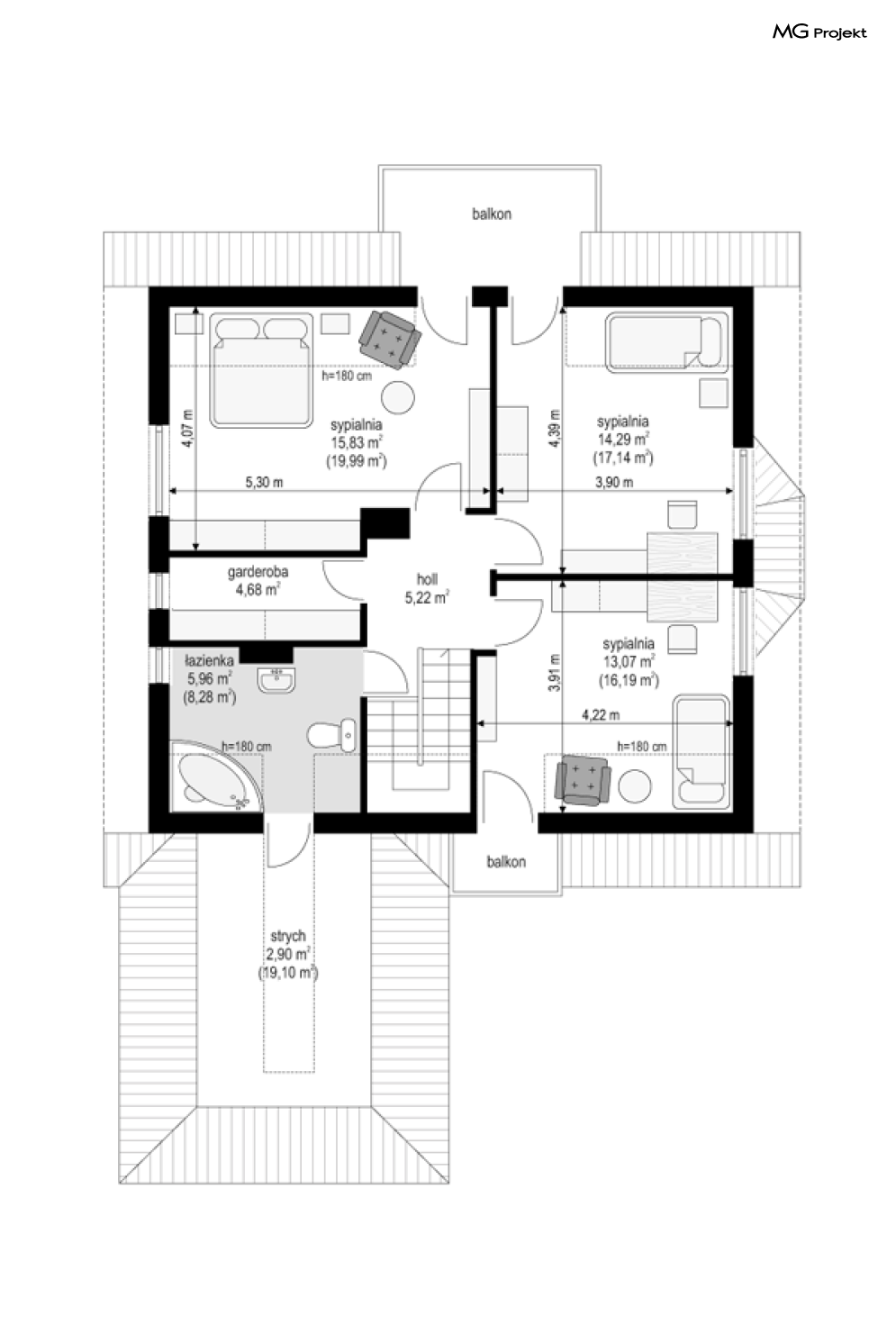
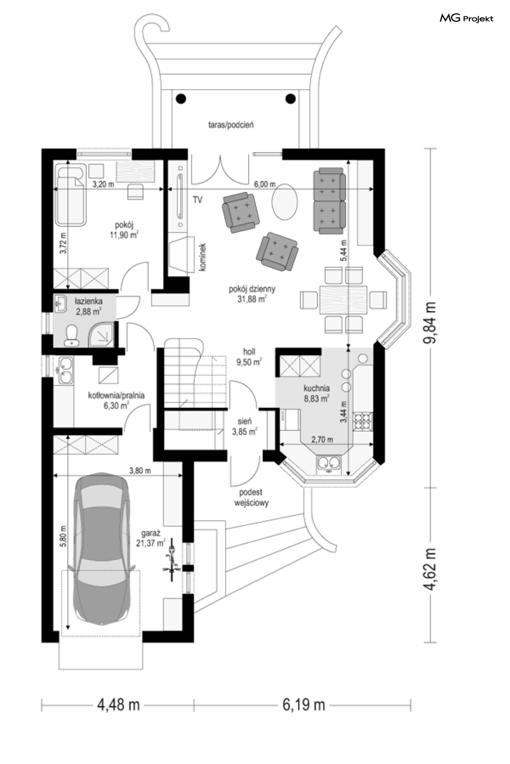
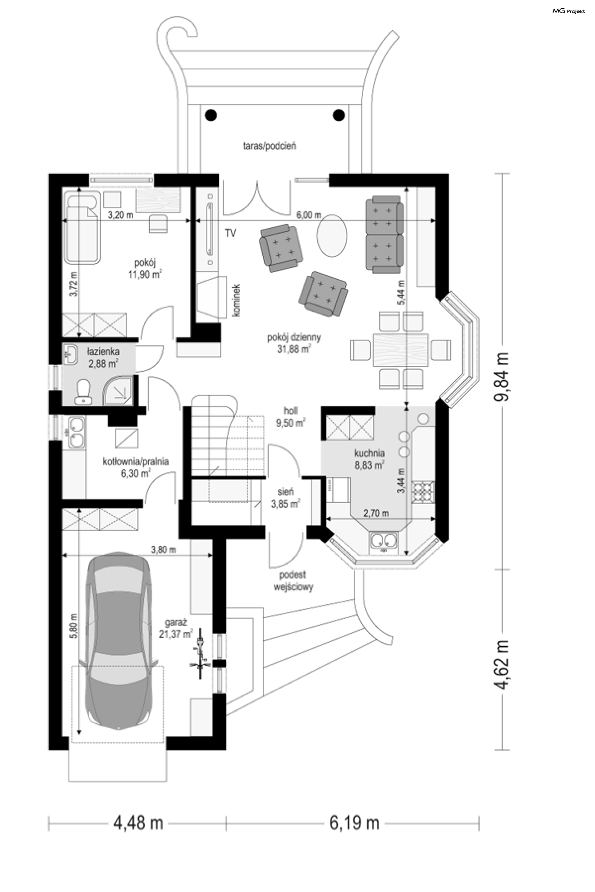
Projekt domu Przytulny to prawdziwy podmiejski dom, siedziba dla szczęśliwej rodziny. Dom emanuje spokojem, statecznością, ale również radością i energią - wszystko dzięki połączeniu tradycyjnych elementów architektury z nowoczesnością. Bryła budynku z wysuniętym do przodu garażem doskonale wkomponuje się w wąską działkę. Wnętrze projektu domu zaplanowano oddzielając część dzienną na parterze (gdzie oprócz salonu znajduje się również zaplecze techniczne i gabinet oraz łazienka) od sypialni na poddaszu. Na piętrze znajdują się trzy wygodne sypialnie, garderoba i łazienka. W projekcie domu Przytulny każda sypialnia ma wyjście na balkon. Dostępna jest również wersja projektu domu Przytulny w odbiciu lustrzanym.
-
Projekt szamba szczelnego0 zł399 zł
-
Charakterystyka energetyczna0 zł200 zł
-
Pakiet energooszczędny0 zł150 zł
-
Dziennik budowy0 zł60 zł
-
Tablica budowy0 zł120 zł
-
Wersja elektroniczna projektu550 zł
-
Pakiet kosztorys inwestorski550 zł
-
Pakiet ogrzewanie podłogowe470 zł
-
Powietrzna pompa ciepła470 zł
-
Pakiet wentylacja mechaniczna i kominek DGP470 zł
-
Dodatkowy egzemplarz projektu500 zł
-
Pakiet kotłownia na paliwo stałe470 zł
-
Pakiet instalacja fotowoltaiczna470 zł
-
Pakiet klimatyzacja w domu470 zł
-
Pakiet gruntowa pompa ciepła470 zł
-
Pakiet odkurzacz centralny470 zł
-
Pakiet płaszcz wodny470 zł
-
Pakiet kominek DGP399 zł
-
Projekty altan i grillów ogrodowych650 zł
-
Pakiet instalacja solarna470 zł

opieką konsultacyjną w trakcie budowy domu