Riwiera 3







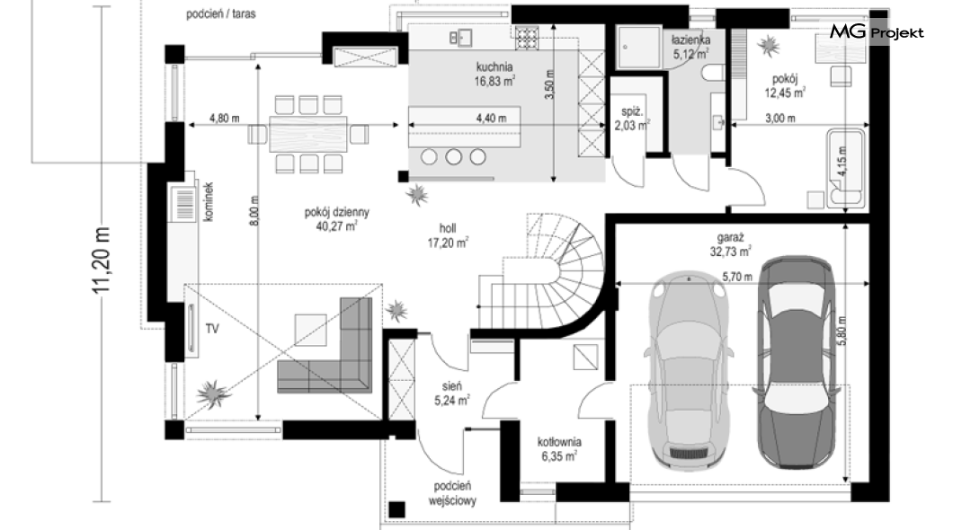
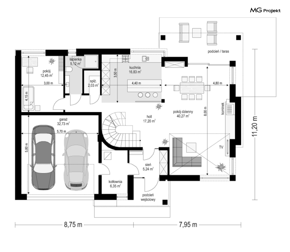
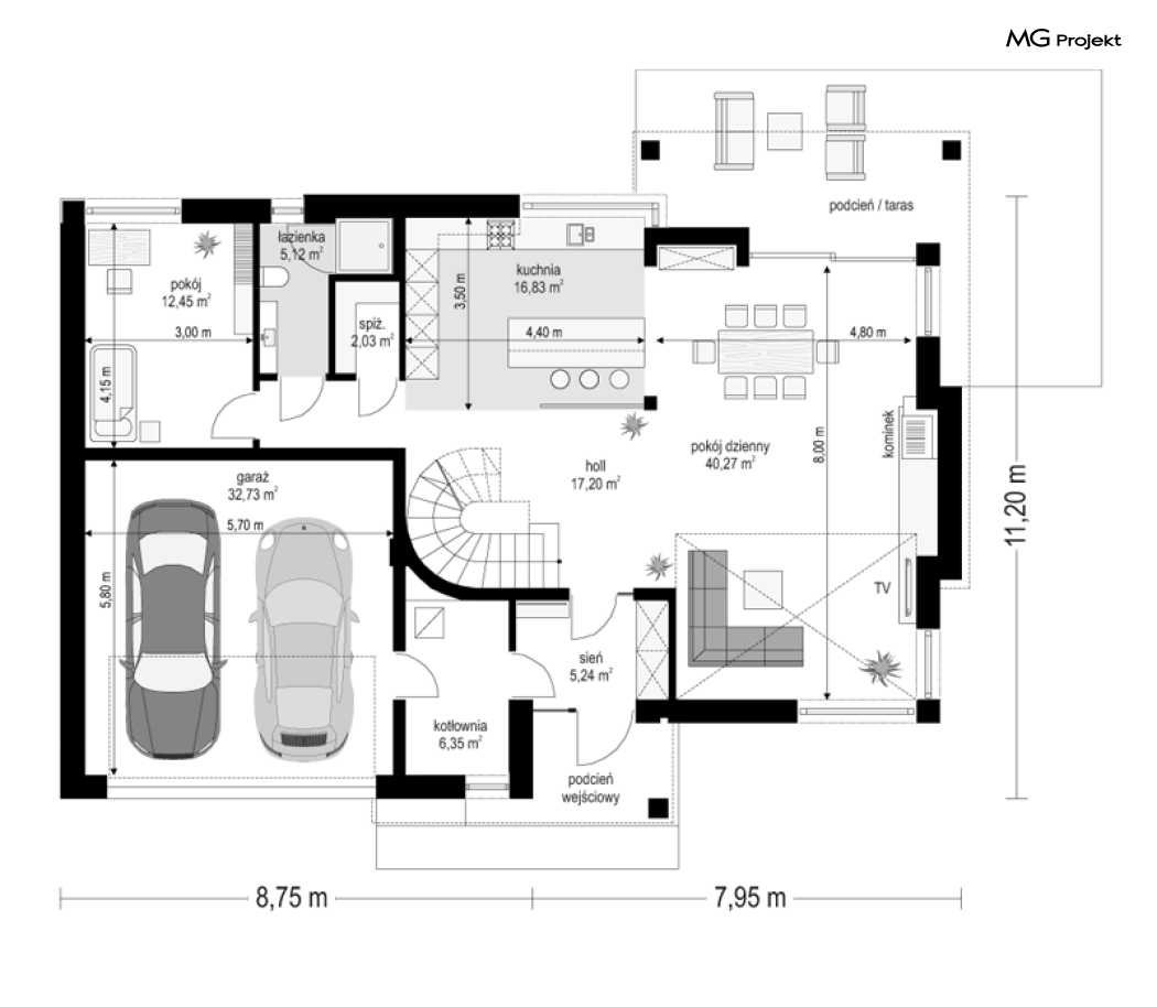
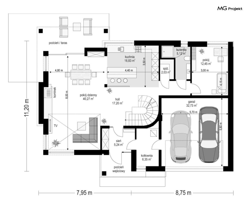
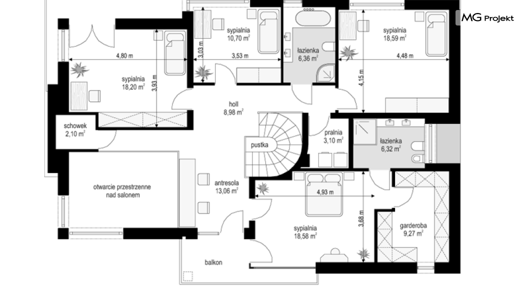
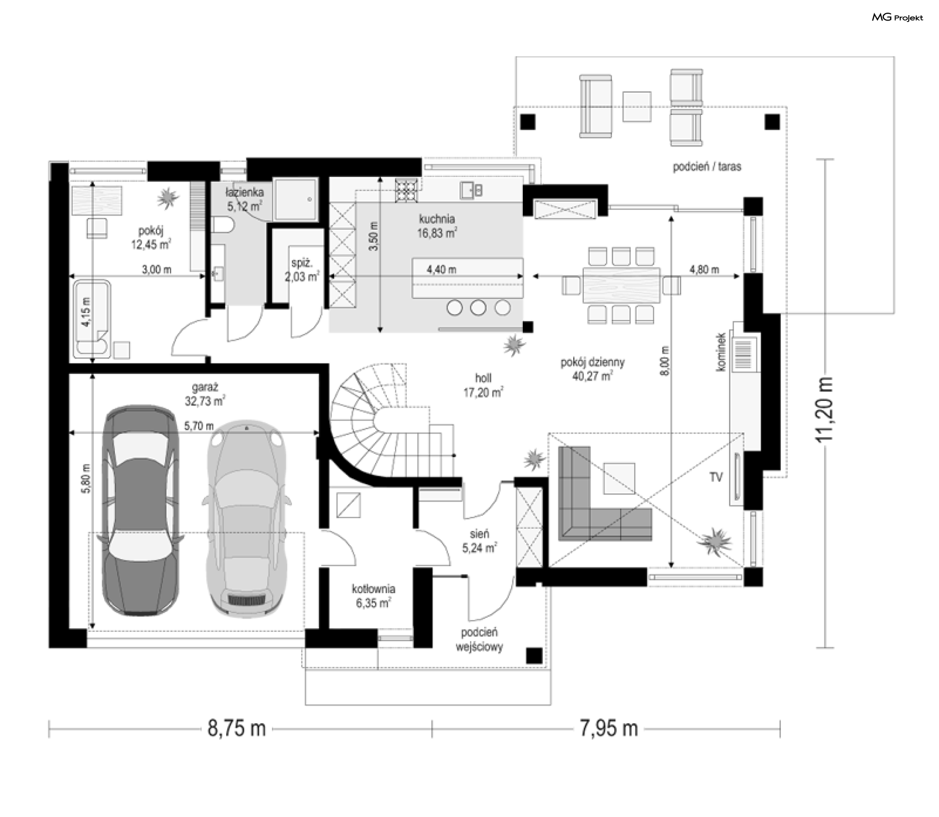
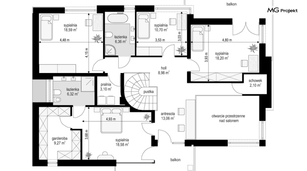
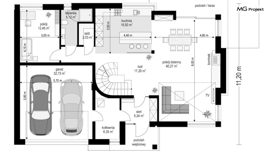
Projekt domu Riwiera 3 to kolejna wersja popularnego projektu „Riwiera” - tym razem wariant domu poszerzonego, o mniejszej głębokości, nadającego się naszerszą i płytszą działkę, z ogródkiem w tylnym bocznym narożniku. Projekt domu Riwiera 3 to wygodny komfortowy dom dla cztero-sześcioosobowej rodziny. Na parterze mieszczą się pomieszczenia dzienne, jak salon, hol z reprezentacyjnymi ozdobnymi schodami, czy kuchnia, oraz część gospodarcza z garażem i kotłownią i dodatkowy pokój - gabinet lub sypialnia gościnna. Piętro mieści cztery pokoje, z oddzielnym apartamentem rodziców z łazienką i dużą garderobą. Obie kondygnacje łączy otwarta pustka nad salonem i antresola obszernego holu na piętrze. Dzięki temu wnętrze domu jest wyjątkowo atrakcyjne i wydaje się jeszcze większe. Wygląd zewnętrzny budynku to nowoczesna bryła przekryta wielospadowym dachem, z elewacją rozdzieloną poziomymi pasami gzymsów, urozmaiconą dużymi przeszkleniami okien. Architektura domu jest jednocześnie nowoczesna i bezpretensjonalna. Budynek szczególnie przypadnie do gustu osobom, które mają trudną działkę - z drogą od nasłonecznionej strony. Osobom, które z jednej strony muszą wpuścić możliwie dużo światła do salonu i pokoi od południa, z drugiej strony nie chcą mieć tarasu od frontu domu, tylko ogródek za domem lub z jego boku. Projekt domu Riwiera 3 dostępny jest również w odbiciu lustrzanym. Zapraszamy do zapoznania się z pełną ofertą pracowni MG Projekt tej serii: bazowa (Projekt domu Riwiera), pomniejszonej (Projekt domu Riwiera 2), pomniejszonej ze zmienionym układem wewnętrznym (Projekt domu Riwiera 4) oraz zmodyfikowana i ulepszona wersja bazowego projektu (Projekt domu Riwiera 5). Zapraszamy!

