Saga 3







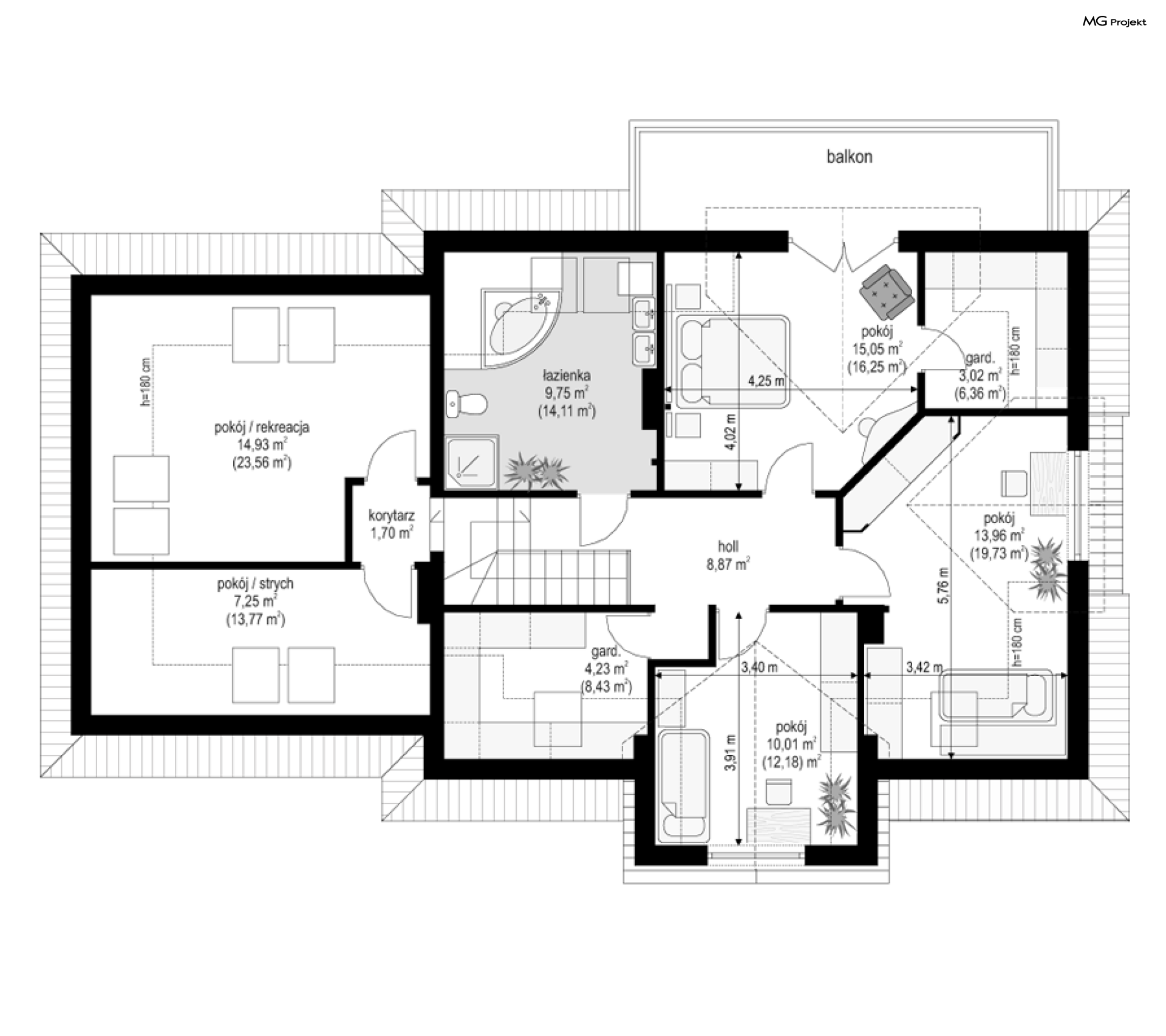
Projekt domu Saga 3, to odpowiedź naszej pracowni na życzenie wielu naszych Klientów, którzy chcieli widzieć ten domek z dwustanowiskowym garażem. Projekt domu Saga cieszy się dużą popularnością, nie mniej jednak część osób rezygnowało z niego ze względu na pojedynczy garaż. Teraz możecie Państwo wybierać między projektami Sagą z pojedynczym i podwójnym garażem. Dom ma bardzo zgrabną bryłę, główna część budynku przekryta jest czterospadowym dachem, z eleganckim frontonem wspartym na kolumnach wejściowych, oraz pięknym balkonem i lukarną od strony ogrodu. Dobudowany szerszy garaż wpływa korzystnie na proporcje domu - Saga 3 wygląda wręcz bardziej dostojnie w tej wersji. Wnętrze w projekcie nie uległo zmianie - na parterze znajduje się jednoprzestrzenny salon, połączony z holem, jadalnią i częściowo z kuchnią. Na parterze zaprojektowano dodatkowy pokój, łazienkę i kotłownię. W projekcie, za podwójnym garażem znajduje się pomieszczenie gospodarcze. Na poddaszudomu, dzięki powiększeniu przestrzeni nad garażem zmieściły się cztery pokoje z łazienką, garderobami i dodatkowo stryszkiem. Pracownia dysponuje odbiciem lustrzanym projektu domu Saga oraz inne wersje: projekt domu Saga projekt domu Saga 2, projekt domu Saga 3.
