Stylowy









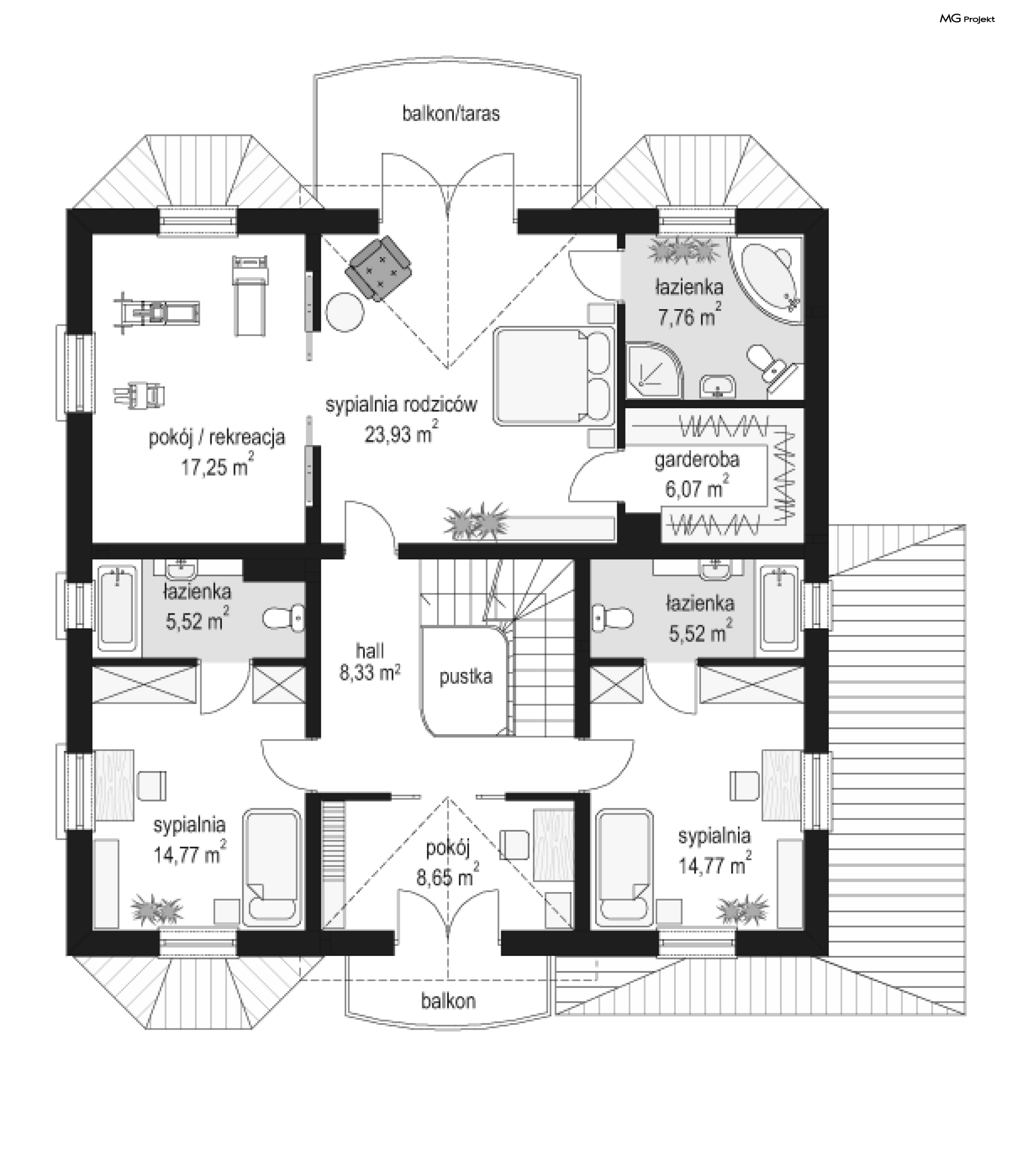
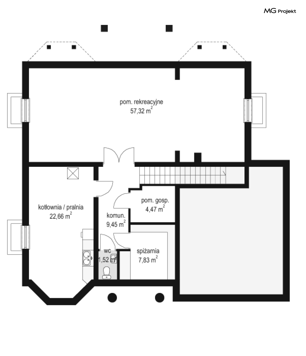
Projekt domu Stylowy to uroczy domek jednorodzinny, z serii naszych piętrowych budynków. Tym razem o trochę mniejszej powierzchni - jeśli nie liczyć piwnicy. Projekt przeznaczony jest dla rodziny 4-6cio osobowej. Projekt domu Stylowy zaprojektowano na planie zbliżonym do kwadratu, z wkomponowanym w bryłę główną garażem. Wykusze, balkony na kolumnach (wejściowy i ogrodowy), frontony, czy łukowo zakańczane piękne okna z podziałami. To wszystko daje domowi piękny klasyczny wygląd zewnętrzny. Wewnątrz mieszkanie również zostało tradycyjnie podzielone, z zachowaniem symetrii i osi widokowych. Z centralnego holu z zabiegowymi schodami przechodzimy do dużego salonu, lub w bok do prawdziwie wielkiej kuchni - z wyspą i kącikiem jadalnym. Z salonu z kolei możemy przejść do gabinetu-biblioteki (biblioteka może być też po prostu połączona z salonem). Ciekawym rozwiązaniem w projekcie, jest możliwość dostępu do schodów piwnicznych zarówno z części gospodarczej - od garażu, jak i od strony wypoczynkowej (część piwnicy jest przeznaczona na rekreację). Na piętrze domu Stylowy zaprojektowano apartament rodziców - z łazienką, garderobą, tarasem ogrodowym i dodatkowym pokojem (np. fitness), oraz dwie sypialnie dzieci z łazienkami. Dodatkowy pokój można przeznaczyć na dodatkową sypialnię zapewniając mu wejście z holu. Swoje miejsce znalazł także nieduży pokój do pracy - gabinet (połączony z holem przeszklonymi ścianami i posiadający wyjście na frontowy balkon). W piwnicy zaprojektowano pomieszczenia techniczne, oraz rekreacyjne. Dom posiada duży strych, który również można zaadaptować. Projekt domu Stylowy dostępny jest też w wersji lustrzanej.
