Szmaragd 4







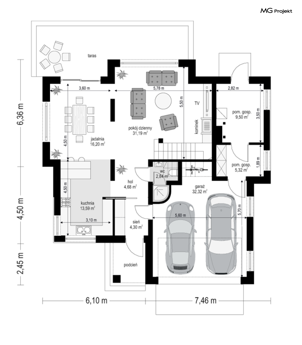
Projekt domu Szmaragd 4 jest wariantową wersją popularnego projektu typu Szmaragd. Dom jest zaprojektowany dla rodziny 4-5 osobowej. Jest to piętrowy budynek, zbudowany na planie kwadratu przekrytego kopertowym dachem, z wbudowanym w bryłę garażem, z parterowymi dobudówkami i wykuszami. Niewielka powierzchnia domu została zamknięta w atrakcyjnej nowoczesnej bryle, z ładnymi przeszkleniami i urozmaiconymi elewacjami. Wnętrze domu podzielono na część dzienną i gospodarczą na parterze, oraz sypialnie na piętrze. Na dole zaprojektowaliśmy obszerny pokój dzienny, lekko odgrodzony od jadalni i kuchni, oraz holu. Schody na piętro są ozdobą salonu i holu. Całość tworzy jednoprzestrzenne duże wnętrze, otwarte szerokimi przeszkleniami na ogród i taras. Dwustanowiskowy garaż dostępny z przedsionka ma dodatkowo dwa pomieszczenia gospodarcze – w tym kotłownię. Na piętrze przewidziano trzy sypialnie ( rodziców – z garderobą i dziecinne – z szafami wbudowanymi ), dużą rodzinną łazienkę, oraz dodatkowe pomieszczenie - pokój lub garderobę. Nad piętrem znajduje się strych – magazyn. Dom został zaprojektowany z uwzględnieniem rozwiązań energooszczędnych. Późniejsza eksploatacja Szmaragda 4 nie powinna być kosztowna. Budowa samego domu również nie powinna przysporzyć wielu problemów – dom jest dość prosty, ma nieskomplikowaną konstrukcję, zwartą bryłę. Projekt domu Szmaragd 4 do projekt w sam raz dla osób, które cenią sobie dobrą architekturę i ładny efekt, ale jednocześnie nie chcą wydać na swój przyszły dom fortuny. Dostępna jest także wersja domu w odbiciu lustrzanym, wersja podstawowa (projekt domu Szmaragd), bliźniak (projekt domu Szmaragd 2), wersja największa z dodatkowym pokojem na parterze (projekt szmaragd 3) oraz najnowsze (projekt domu Szmaragd 5), (projekt domu Szmaragd 6).
-
Projekt szamba szczelnego0 zł399 zł
-
Charakterystyka energetyczna0 zł200 zł
-
Pakiet energooszczędny0 zł150 zł
-
Dziennik budowy0 zł60 zł
-
Tablica budowy0 zł120 zł
-
Wersja elektroniczna projektu550 zł
-
Pakiet kosztorys inwestorski550 zł
-
Pakiet ogrzewanie podłogowe470 zł
-
Powietrzna pompa ciepła470 zł
-
Pakiet wentylacja mechaniczna i kominek DGP470 zł
-
Dodatkowy egzemplarz projektu500 zł
-
Pakiet kotłownia na paliwo stałe470 zł
-
Pakiet instalacja fotowoltaiczna470 zł
-
Pakiet klimatyzacja w domu470 zł
-
Pakiet gruntowa pompa ciepła470 zł
-
Pakiet odkurzacz centralny470 zł
-
Pakiet płaszcz wodny470 zł
-
Pakiet kominek DGP399 zł
-
Projekty altan i grillów ogrodowych650 zł
-
Pakiet instalacja solarna470 zł

opieką konsultacyjną w trakcie budowy domu
