Dom na parkowej 3







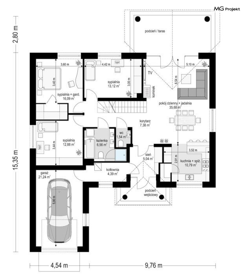
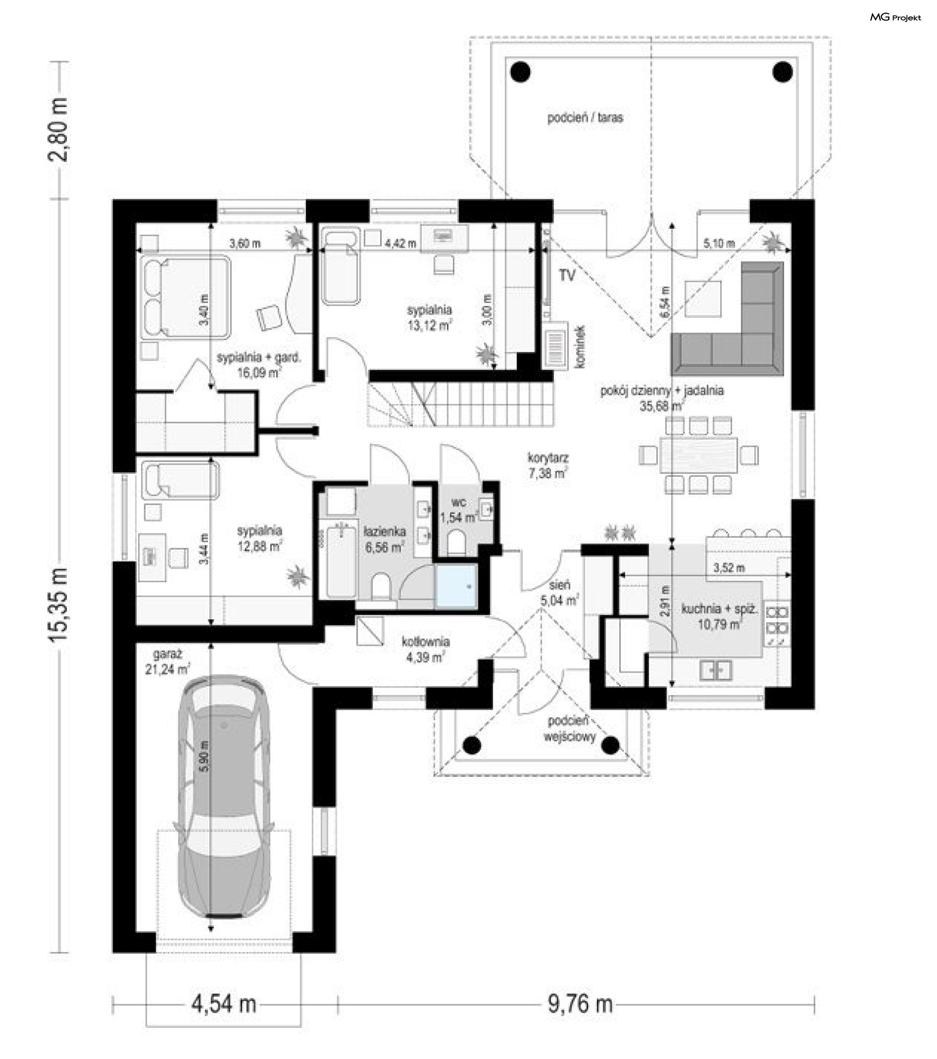
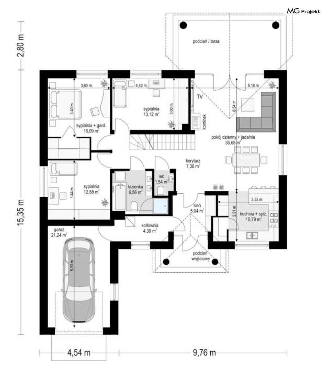
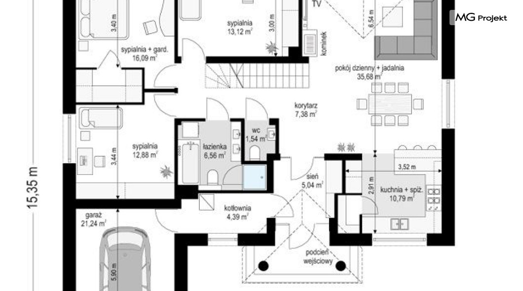
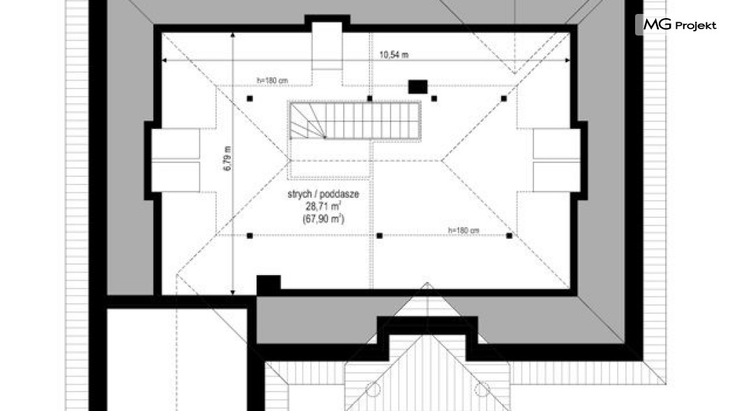
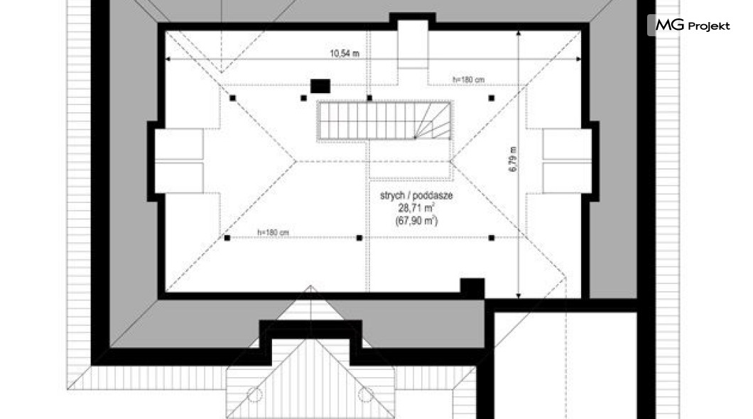
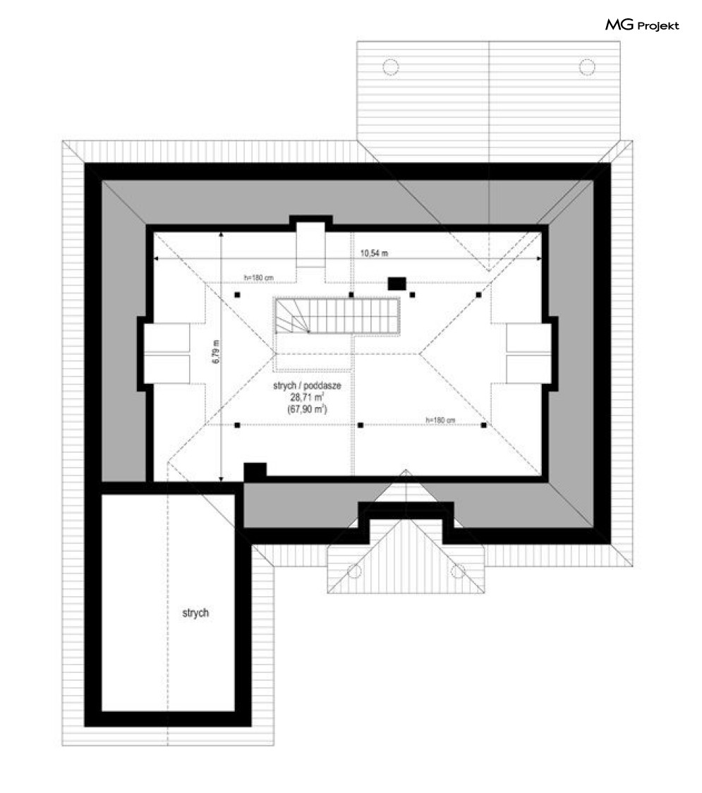
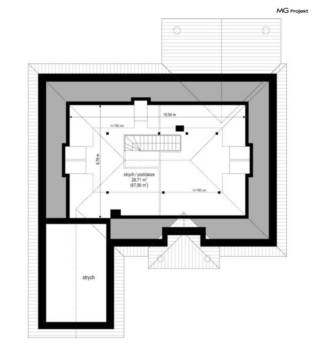
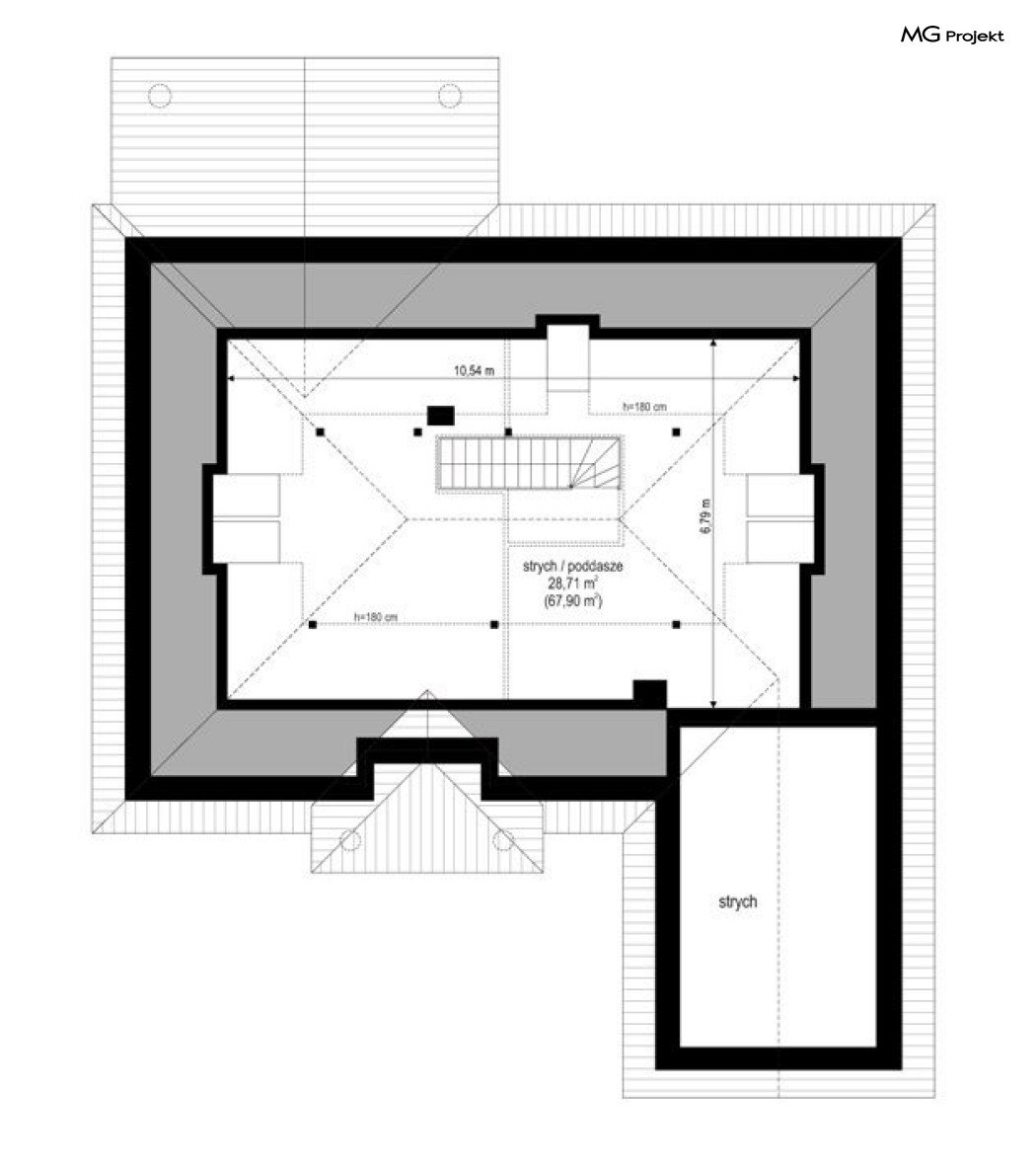
Projekt domu Dom na parkowej 3 jest kolejną wersją wariantową cieszącego się dużą popularnością projektu domu z serii „Dom na parkowej”. Nieco zmniejszony domek, z pojedynczym garażem, zlikwidowaną pustką nad salonem i uproszczonym portykiem wejściowym. Dzięki tym zmianom strych nad parterem można swobodnie wykorzystać na większe niż w podstawowym projekcie poddasze użytkowe z dodatkowymi pokojami. Architektura domu stanowi nawiązanie do amerykańskich podmiejskich willi, oraz po części do wzoru domu polskiego z lat 20-tych i 30-tych. Wygląd zewnętrzny domu pozostaje tradycyjny - jego wnętrze natomiast ma już zupełnie współczesny, funkcjonalny program i układ. Wnętrze podzielono na część dzienną, z ładnym salonem z jadalnią, połączonym z holem i kuchnią, oraz część intymną, nocną z trzema sypialniami i łazienką. Sypialnie dziecięce posiadają szafy wbudowane, wnękowe, sypialnia rodziców natomiast – własną garderobę. W obszernego przedsionka z szafami przedostajemy się też do części gospodarczo –garażowej domu, czyli do kotłowni i garażu. Na strychu przewidziano możliwość zaadaptowania przestrzeni na poddasze użytkowe, na przykład z dwoma dodatkowymi pokojami. Ten w sumie nieduży dom dzięki zwartej prostokątnej bryle i sensownemu wnętrzu, jest bardzo funkcjonalny, a dzięki dużej ilości szaf wbudowanych , spiżarce, garderobie, oraz niebagatelnej dodatkowej powierzchni strychu, będzie bardzo „pakowny”. Architektura domu Dom na parkowej 3 jest spokojna , stonowana, operuje nawiązującym do tradycji detalem, ale z zachowaniem dystansu i smaku. Front domu ozdabia reprezentacyjne wejście (kto powiedział, że nawet mały dom nie zasługuje na piękne drzwi wejściowe!). Od strony elewacji tylnej mamy z kolei duży zadaszony taras z szerokim przeszkleniem otwierającym salon na ogród. Projekt domu Dom na parkowej 3 stanowi świetną propozycję dla osób, które z przyczyn finansowych, lub po prostu praktycznych, wcale nie chcą mieć bardzo dużego domu, ale jednocześnie w ramach ograniczonej powierzchni chcą uzyskać maksimum komfortu, wygody i poczucia luksusu. Mały dom nie musi oznaczać rezygnacji ze spełnienia marzeń. Jednocześnie materiały, izolacje i instalacje zastosowane w projekcie sprawią, że budynek będzie prosty i niedrogi w budowie, oraz tani w późniejszym utrzymaniu. Zapraszamy do zapoznania się z pełną ofertą pracowni MG Projekt: Dom na parkowej, Dom na parkowej 2, Dom na parkowej 4, Dom na parkowej 5, Dom na parkowej 6, Dom na parkowej 7 A, Dom na parkowej 7 B.
