Kasjopea 7







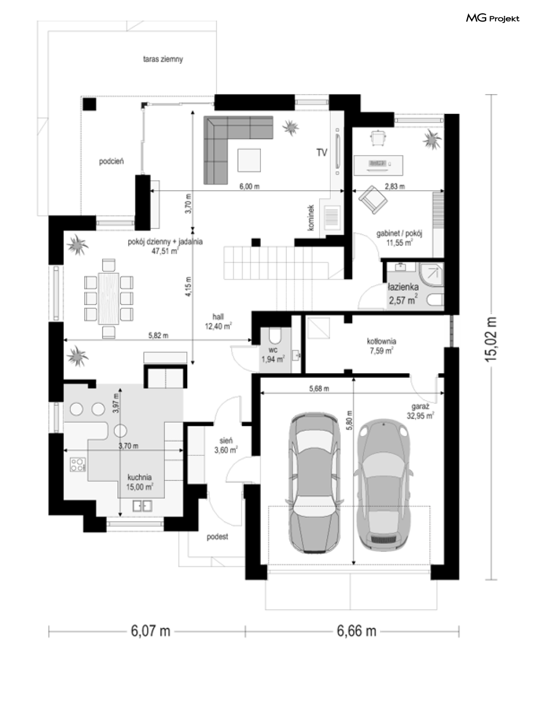
Projekt domu Kasjopea 7 to zupełnie nowy projekt z popularnej kolekcji domów „Kasjopea”. Projekt różni się zasadniczo od pozostałych domków z tej kolekcji, ma nowy oryginalny i nowoczesny wyraz architektoniczny. Osiągnięto go łącząc prostotę, oszczędność dodatków i detali, oraz ciekawą kolorystykę i materiały. Projekt domu Kasjopea 7 to budynek piętrowy, dla cztero-siedmioosobowej rodziny. Bryła domu jest piętrowa, przykryta czterospadowym dachem, z dobudowaną parterową częścią z garażem dwustanowiskowym. Projekt domu Kasjopea 7 to duża, komfortowa i reprezentacyjna willa, przeznaczona dla Inwestorów, którzy marzą o swobodzie przestrzeni. Jednocześnie budynek ma praktycznie zaprojektowane wnętrze, a jego konstrukcja jest dość prosta i łatwa w budowie. Elewacje domu podzielone są na poziome pasy. Dolny pas parteru ma szare boniowania, ściany piętra pozostają białe. Duże okna, podcienie i balkony dodatkowo ozdabiają bryłę budynku. Całość tworzy nowoczesną i dynamiczną sylwetkę domu. Wnętrze : parter to przede wszystkim naprawdę duży salon, połączony z jadalnią i holem, tworzący niemal 60ciometrową przestrzeń dzienną. Przy wejściu do domu od frontu zaprojektowano dużą kuchnię ze stołem na szybkie posiłki. Z przedsionka dostajemy się do podwójnego garażu i do kotłowni. Za schodami, nieco odseparowany od salonu zlokalizowany jest dodatkowy pokój z własną łazienką : gabinet, lub sypialnia gościnna. Może to być również pokój dla seniora. Na piętrze zaprojektowano aż cztery sypialnie i dwie łazienki. Sypialnie dzieci mają wbudowane szafy. Sypialnia rodziców to osobny apartament z własną łazienką, garderoba i zadaszonym balkonem. Projekt domu Kasjopea 7 to komfortowy, funkcjonalnie zaprojektowany dom, o nowoczesnej i reprezentacyjnej architekturze. Projekt bardzo łatwo można dostosować do standardu NF40. Projekt dostępny jest w odbiciu lustrzanym i z wyższym kątem nachylenia dachu (projekt domu Kasjopea 7 B) oraz kilku wersjach: podstawowa (projekt domu Kasjopea) i jej wersja odświeżona (projekt domu Kasjopea 8), bliźniak (projekt domu Kasjopea 2), ze zmienionym układem pomieszczeń (projekt domu Kasjopea 3), pomniejszona (projekt domu Kasjopea 4), komfortowa (projekt domu Kasjopea 5), największa (projekt domu Kasjopea 6).
-
Projekt szamba szczelnego0 zł399 zł
-
Charakterystyka energetyczna0 zł200 zł
-
Pakiet energooszczędny0 zł150 zł
-
Dziennik budowy0 zł60 zł
-
Tablica budowy0 zł120 zł
-
Wersja elektroniczna projektu550 zł
-
Pakiet kosztorys inwestorski550 zł
-
Pakiet ogrzewanie podłogowe470 zł
-
Powietrzna pompa ciepła470 zł
-
Pakiet wentylacja mechaniczna i kominek DGP470 zł
-
Dodatkowy egzemplarz projektu500 zł
-
Pakiet kotłownia na paliwo stałe470 zł
-
Pakiet instalacja fotowoltaiczna470 zł
-
Pakiet klimatyzacja w domu470 zł
-
Pakiet gruntowa pompa ciepła470 zł
-
Pakiet odkurzacz centralny470 zł
-
Pakiet płaszcz wodny470 zł
-
Pakiet kominek DGP399 zł
-
Projekty altan i grillów ogrodowych650 zł
-
Pakiet instalacja solarna470 zł

opieką konsultacyjną w trakcie budowy domu
